
| 賃料 | 予想金額:167,000〜187,000円程度 | 管理費 | 予想金額:8,000〜12,000円程度 |
| 礼金/敷金 | 非公開(アーカイブ) | 平米数 | 39.43㎡ |
| 初期費用概算(参考) | 目安:321,300〜421,300 円 | みなし賃料(月額・参考) | 181,048〜201,048 円 |
| 備考 | 本ページは過去募集のアーカイブです。表示の金額は周辺相場・過去募集を踏まえた参考レンジであり、実際の契約金額・条件ではありません。 | ||
※上記みなし賃料(月額)は仲介手数料割引・無料&キャッシュバックを加味した高級賃貸バイブル限定の金額です。一般的なみなし賃料とは異なります。
【建物ページ】KDXレジデンス芝公園の詳細・最新空室はこちら▶▶選ばれる理由
仲介手数料無料・キャンペーン情報(毎月15名様限定)
〇引っ越しお祝い金106200円プレゼント(キャッシュバック)
〇仲介手数料無料キャンペーン
KDXレジデンス芝公園 903の口コミ・レビュー
KDXレジデンス芝公園 903。その名を口にするだけで、まるで都会の喧騒から離れ、静謐な森の中に佇む憩いの場が目に浮かびます。この特別な空間は、東京都港区芝3-4-16に位置し、南向きの窓からは柔らかな陽射しが優しく降り注ぎ、心地よい自然光に包まれることでしょう。高級感漂うこの物件は、ただの住まいではなく、あなたの人生そのものを彩る舞台となるのです。
KDXレジデンス芝公園 903に足を踏み入れ…KDXレジデンス芝公園 903。その名を口にするだけで、まるで都会の喧騒から離れ、静謐な森の中に佇む憩いの場が目に浮かびます。この特別な空間は、東京都港区芝3-4-16に位置し、南向きの窓からは柔らかな陽射しが優しく降り注ぎ、心地よい自然光に包まれることでしょう。高級感漂うこの物件は、ただの住まいではなく、あなたの人生そのものを彩る舞台となるのです。
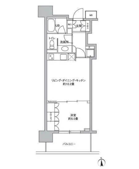
KDXレジデンス芝公園 903に足を踏み入れるとすぐに、そこは映画のワンシーンのような美しさが広がっています。45.32㎡の空間は、まるで細やかな絵画のように、計算され尽くした美しいラインと、柔らかな色調で構成されています。洋室5.0帖の空間は、まるで心の底から安らぎをもたらす秘密の隠れ家であり、あなたの思索や創造を誘い出します。また、LDK10.2帖は、日常の喧騒を忘れさせてくれる優雅な空間へと変わります。ここでは、香ばしいコーヒーの香りが漂い、家族や友人との語らいが心を温め、何気ない日常が特別な瞬間へと昇華していくのです。
さらに、この物件は最新の設備によって守られています。TVモニターホンやオートロック、宅配ボックスなど、快適な生活を送るための要素が詰まっています。エレベーターでの上昇を感じながら、浮遊感の中で、自分の特別な空間へと近づく感覚は、まさに非日常の体験です。駐車場や駐輪場も完備されており、都市の利便性を享受しながらも、穏やかな日常が待っていることを感じさせてくれます。
周辺には、歴史と文化が息づいています。芝公園駅から徒歩2分という立地は、まさに都市の中心と自然の調和が見事に融和した場所です。個性的なカフェやアートギャラリー、伝統的な日本庭園が点在するこのエリアは、まるでタイムスリップしたかのように、古き良き日本の面影を感じさせてくれます。美しい景色を眺めながら、午後のひとときを過ごすことができるのも、KDXレジデンス芝公園 903の魅力の一つです。
日々の暮らしの中で、あなたの感性を刺激し、心の豊かさを育む場所がここにあることを、このKDXレジデンス芝公園 903は教えてくれます。何気ない朝の光景が、特別な一日への始まりを告げ、日暮れの静けさが、静寂に包まれた夜を迎えるのです。この物件が、あなたの人生を歩む舞台であり、未来を共に創り上げるパートナーとなることを、心から願っております。
KDXレジデンス芝公園 903に足を踏み入れ…KDXレジデンス芝公園 903。その名を口にするだけで、まるで都会の喧騒から離れ、静謐な森の中に佇む憩いの場が目に浮かびます。この特別な空間は、東京都港区芝3-4-16に位置し、南向きの窓からは柔らかな陽射しが優しく降り注ぎ、心地よい自然光に包まれることでしょう。高級感漂うこの物件は、ただの住まいではなく、あなたの人生そのものを彩る舞台となるのです。
KDXレジデンス芝公園 903に足を踏み入れるとすぐに、そこは映画のワンシーンのような美しさが広がっています。45.32㎡の空間は、まるで細やかな絵画のように、計算され尽くした美しいラインと、柔らかな色調で構成されています。洋室5.0帖の空間は、まるで心の底から安らぎをもたらす秘密の隠れ家であり、あなたの思索や創造を誘い出します。また、LDK10.2帖は、日常の喧騒を忘れさせてくれる優雅な空間へと変わります。ここでは、香ばしいコーヒーの香りが漂い、家族や友人との語らいが心を温め、何気ない日常が特別な瞬間へと昇華していくのです。
さらに、この物件は最新の設備によって守られています。TVモニターホンやオートロック、宅配ボックスなど、快適な生活を送るための要素が詰まっています。エレベーターでの上昇を感じながら、浮遊感の中で、自分の特別な空間へと近づく感覚は、まさに非日常の体験です。駐車場や駐輪場も完備されており、都市の利便性を享受しながらも、穏やかな日常が待っていることを感じさせてくれます。
周辺には、歴史と文化が息づいています。芝公園駅から徒歩2分という立地は、まさに都市の中心と自然の調和が見事に融和した場所です。個性的なカフェやアートギャラリー、伝統的な日本庭園が点在するこのエリアは、まるでタイムスリップしたかのように、古き良き日本の面影を感じさせてくれます。美しい景色を眺めながら、午後のひとときを過ごすことができるのも、KDXレジデンス芝公園 903の魅力の一つです。
日々の暮らしの中で、あなたの感性を刺激し、心の豊かさを育む場所がここにあることを、このKDXレジデンス芝公園 903は教えてくれます。何気ない朝の光景が、特別な一日への始まりを告げ、日暮れの静けさが、静寂に包まれた夜を迎えるのです。この物件が、あなたの人生を歩む舞台であり、未来を共に創り上げるパートナーとなることを、心から願っております。
バイブルスコア
バイブルスコア: 82.6
レア物件です、すぐ仮押さえしましょう!
このお部屋は、現在ご入居中のため空室情報はございません。ただし、将来的に募集が開始される際、バイブルスコアにおいて非常に高い評価が期待されます。特にご興味をお持ちの方は、今のうちにブックマークやお気に入りに登録していただくと、募集開始のお知らせをすぐに受け取ることができます。是非ともご検討くださいませ。
※バイブルスコア詳細はこちら
バイブルスコアとは独自のAI機械学習技術を利用した物件評価システムで、物件のおすすめ度を示します。最高得点は100点で、スコアが高いほど、よりおすすめの物件と評価されています。
写真
契約条件
| 賃料 | 予想金額:167,000〜187,000円程度 | 管理費 | 予想金額:8,000〜12,000円程度 |
| 礼金 | 非公開(アーカイブ) | 敷金 | 非公開(アーカイブ) |
| フリーレント | なし | 平米数 | 39.43㎡ |
| 間取り | 1LDK | 大型収納 | |
| 契約期間 | 2年 | 方角 | 南 |
| 更新料 | 1ヶ月 | 契約形態 | 普通賃貸借契約 |
| 取引態様 | 媒介 | 内見状況 | 入居中 |
| 入居時期 | 入居中 | SOHO・事務所 | |
| ペット | 間取り内訳 | 洋室5.0畳 LDK10.2畳 | |
| キャンペーン情報・備考 | 本情報は賃料改定交渉の資料作成、収益物件の利回り試算、周辺エリアや最寄り駅の坪単価分析、次回募集開始時期の予測などにご活用いただけます。 | ||
※「どの不動産に頼めばいいのか分からない」「信頼できる営業マンの話を聞きたい」「一番親切な会社と契約したい」とお悩みの方におすすめなのが「高級賃貸バイブル」です。
高級賃貸バイブルは業界10年以上の熟練スタッフ群がお客様ファーストで対応します。
下記ボタンから、まずは無料でご相談下さい。
※内覧をご希望の際には、どうぞ物件のエントランス前にてお待ち合わせくださいませ。ご内覧後は、同じ場所でお別れとさせていただきます。お客様のご都合に合わせたスムーズなご案内を心がけておりますので、ご質問等がございましたら何なりとお申し付けください。 物件概要
| 物件名 |
| 築年月 |
|
|---|---|---|---|
| 所在地 | |||
| 交通 | |||
| 総戸数 |
| 総階数 |
|
| 構造 |
| ||
地図
物件までの道のりは、「拡大地図を表示」をクリックしてナビ機能をご利用ください。
部屋設備















建物設備

TVモニターホン

エレベーター

オートロック

宅配ボックス

敷地内ゴミ置場

駐車場平置き

駐車場機械式

駐輪場
KDXレジデンス芝公園の現在募集中のお部屋
- KDXレジデンス芝公園 1303 - 間取り: 1LDK - 賃料: 20.3万円
- KDXレジデンス芝公園 604 - 間取り: 1LDK - 賃料: 19.3万円
- KDXレジデンス芝公園 903 - 間取り: 1LDK - 賃料: 20万円
- KDXレジデンス芝公園 1201 - 間取り: 1LDK - 賃料: 20.7万円
- KDXレジデンス芝公園 501 - 間取り: 1LDK - 賃料: 20.2万円
- KDXレジデンス芝公園 502 - 間取り: 1LDK - 賃料: 21.4万円





























