
| 賃料 | 予想金額:312,000〜332,000円程度 | 管理費 | 予想金額:13,000〜17,000円程度 |
| 礼金/敷金 | 非公開(アーカイブ) | 平米数 | 51.74㎡ |
| 初期費用概算(参考) | 目安:421,160〜521,160 円 | みなし賃料(月額・参考) | 336,816〜356,816 円 |
| 備考 | 本ページは過去募集のアーカイブです。表示の金額は周辺相場・過去募集を踏まえた参考レンジであり、実際の契約金額・条件ではありません。 | ||
※上記みなし賃料(月額)は仲介手数料割引・無料&キャッシュバックを加味した高級賃貸バイブル限定の金額です。一般的なみなし賃料とは異なります。
【建物ページ】カーサスプレンディッド南麻布フラットの詳細・最新空室はこちら▶▶選ばれる理由
仲介手数料無料・キャンペーン情報(毎月15名様限定)
〇引っ越しお祝い金70840円プレゼント(キャッシュバック)
〇フリーレント1か月キャンペーン
〇仲介手数料無料キャンペーン
カーサスプレンディッド南麻布フラット 503の口コミ・レビュー
カーサスプレンディッド南麻布フラット 503は、あなたを迎えるために佇む、まるで絵画のような美しい住まいです。東京都港区南麻布1-9-4に位置し、北東向きのこの503号室からは、朝日が優しく差し込み、街の目覚めを告げるかのようです。ここに住まうことは、日常を特別なものに変える魔法のような体験を意味します。
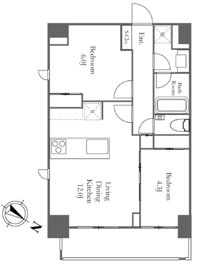
広々とした面積51.74㎡の空間は、あなただけの舞台となり、12帖のLDKは、友人や…カーサスプレンディッド南麻布フラット 503は、あなたを迎えるために佇む、まるで絵画のような美しい住まいです。東京都港区南麻布1-9-4に位置し、北東向きのこの503号室からは、朝日が優しく差し込み、街の目覚めを告げるかのようです。ここに住まうことは、日常を特別なものに変える魔法のような体験を意味します。
広々とした面積51.74㎡の空間は、あなただけの舞台となり、12帖のLDKは、友人や家族と過ごす穏やかなひとときを彩ります。大きな窓からの光が、木の温もりを活かすフローリングを柔らかく照らし出し、心地よい風が穏やかに吹き抜けるのが感じられます。ここに足を踏み入れた瞬間、調理に挑むあなたの隣で、食材の香りが漂い、心躍る料理の時間が始まります。6帖の寝室であるBRは、静寂を求めるあなたに最適な空間です。そこで、心地よい眠りに誘う穏やかな空気が流れ、夢の世界への扉を開いてくれることでしょう。そして、4.3帖の〝小さな隠れ家〟としてのBRでは、読書や趣味に没頭できる贅沢なひとときを得られるのです。
カーサスプレンディッド南麻布フラット 503は、ただの住まいではなく、心の豊かさを育む場所。エレベーターで上がるその瞬間、まるで自分自身が特別な存在であるかのような気持ちが高まります。また、オートロックと管理人が常駐するこのマンションでは、安心感を抱きながら心安らぐ生活を実現できます。宅配ボックスがあるため、あなたの大切なものもいつでも受け取ることができ、日常の小さな幸せが積み重なります。
そして、ここは単なる住まいではありません。周辺を散策すれば、歴史と文化の薫る港区南麻布の街並みに触れ合うことができます。麻布十番駅から徒歩8分、散策がてらに立ち寄れるカフェやギャラリーは、まるであなたの感性を刺激するアートのように、生活に彩りを加えてくれるでしょう。街の喧騒から少し離れたこの場所は、まるで都会のオアシスのようであり、自然の息吹を感じつつ、心を豊かにする素晴らしい空間です。
カーサスプレンディッド南麻布フラット 503は、あなたの人生に寄り添い、さまざまな物語を紡ぎ出す場所です。そこに住むことで、毎日が映画のワンシーンのように感じられることでしょう。あなたの新しい生活が、どのような美しいストーリーになるのか、心を躍らせながらお待ちしております。さあ、あなたの物語をここから始めてみませんか。
広々とした面積51.74㎡の空間は、あなただけの舞台となり、12帖のLDKは、友人や…カーサスプレンディッド南麻布フラット 503は、あなたを迎えるために佇む、まるで絵画のような美しい住まいです。東京都港区南麻布1-9-4に位置し、北東向きのこの503号室からは、朝日が優しく差し込み、街の目覚めを告げるかのようです。ここに住まうことは、日常を特別なものに変える魔法のような体験を意味します。
広々とした面積51.74㎡の空間は、あなただけの舞台となり、12帖のLDKは、友人や家族と過ごす穏やかなひとときを彩ります。大きな窓からの光が、木の温もりを活かすフローリングを柔らかく照らし出し、心地よい風が穏やかに吹き抜けるのが感じられます。ここに足を踏み入れた瞬間、調理に挑むあなたの隣で、食材の香りが漂い、心躍る料理の時間が始まります。6帖の寝室であるBRは、静寂を求めるあなたに最適な空間です。そこで、心地よい眠りに誘う穏やかな空気が流れ、夢の世界への扉を開いてくれることでしょう。そして、4.3帖の〝小さな隠れ家〟としてのBRでは、読書や趣味に没頭できる贅沢なひとときを得られるのです。
カーサスプレンディッド南麻布フラット 503は、ただの住まいではなく、心の豊かさを育む場所。エレベーターで上がるその瞬間、まるで自分自身が特別な存在であるかのような気持ちが高まります。また、オートロックと管理人が常駐するこのマンションでは、安心感を抱きながら心安らぐ生活を実現できます。宅配ボックスがあるため、あなたの大切なものもいつでも受け取ることができ、日常の小さな幸せが積み重なります。
そして、ここは単なる住まいではありません。周辺を散策すれば、歴史と文化の薫る港区南麻布の街並みに触れ合うことができます。麻布十番駅から徒歩8分、散策がてらに立ち寄れるカフェやギャラリーは、まるであなたの感性を刺激するアートのように、生活に彩りを加えてくれるでしょう。街の喧騒から少し離れたこの場所は、まるで都会のオアシスのようであり、自然の息吹を感じつつ、心を豊かにする素晴らしい空間です。
カーサスプレンディッド南麻布フラット 503は、あなたの人生に寄り添い、さまざまな物語を紡ぎ出す場所です。そこに住むことで、毎日が映画のワンシーンのように感じられることでしょう。あなたの新しい生活が、どのような美しいストーリーになるのか、心を躍らせながらお待ちしております。さあ、あなたの物語をここから始めてみませんか。
バイブルスコア
バイブルスコア: 18.2
高級な物件でない場合は割高な物件です。。
※バイブルスコア詳細はこちら
バイブルスコアとは独自のAI機械学習技術を利用した物件評価システムで、物件のおすすめ度を示します。最高得点は100点で、スコアが高いほど、よりおすすめの物件と評価されています。
写真
契約条件
| 賃料 | 予想金額:312,000〜332,000円程度 | 管理費 | 予想金額:13,000〜17,000円程度 |
| 礼金 | 非公開(アーカイブ) | 敷金 | 非公開(アーカイブ) |
| フリーレント | 1.0ヶ月 | 平米数 | 51.74㎡ |
| 間取り | 2LDK | 大型収納 | |
| 契約期間 |
| 方角 | 北東 |
| 更新料 | 契約形態 | 普通賃貸借契約 | |
| 取引態様 | 媒介 | 内見状況 | 入居中 |
| 入居時期 | 入居中 | SOHO・事務所 | |
| ペット | ペット可 | 間取り内訳 | LDK=12J / BR=6J , 4.3J |
| キャンペーン情報・備考 | 本情報は賃料改定交渉の資料作成、収益物件の利回り試算、周辺エリアや最寄り駅の坪単価分析、次回募集開始時期の予測などにご活用いただけます。 | ||
※「どの不動産に頼めばいいのか分からない」「信頼できる営業マンの話を聞きたい」「一番親切な会社と契約したい」とお悩みの方におすすめなのが「高級賃貸バイブル」です。
高級賃貸バイブルは業界10年以上の熟練スタッフ群がお客様ファーストで対応します。
下記ボタンから、まずは無料でご相談下さい。
※内覧をご希望の際には、どうぞ物件のエントランス前にてお待ち合わせくださいませ。ご内覧後は、同じ場所でお別れとさせていただきます。お客様のご都合に合わせたスムーズなご案内を心がけておりますので、ご質問等がございましたら何なりとお申し付けください。 物件概要
| 物件名 |
| 築年月 |
|
|---|---|---|---|
| 所在地 | |||
| 交通 | |||
| 総戸数 |
| 総階数 |
|
| 構造 |
| ||
地図
物件までの道のりは、「拡大地図を表示」をクリックしてナビ機能をご利用ください。
部屋設備



















建物設備

TVモニターホン

エレベーター

オートロック

宅配ボックス

敷地内ゴミ置場

管理人

駐車場平置き

駐輪場
カーサスプレンディッド南麻布フラットの現在募集中のお部屋
- カーサスプレンディッド南麻布FLAT 802 - 間取り: 1K - 賃料: 15.9万円
- カーサスプレンディッド南麻布FLAT 10F1 - 間取り: 2LDK - 賃料: 34.7万円
- カーサスプレンディッド南麻布FLAT 902 - 間取り: 1K - 賃料: 15.9万円



























