
| 賃料 | 予想金額:130,000〜150,000円程度 | 管理費 | 予想金額:8,000〜12,000円程度 |
| 礼金/敷金 | 非公開(アーカイブ) | 平米数 | 25.65㎡ |
| 初期費用概算(参考) | 目安:406,500〜506,500 円 | みなし賃料(月額・参考) | 146,594〜166,594 円 |
| 備考 | 本ページは過去募集のアーカイブです。表示の金額は周辺相場・過去募集を踏まえた参考レンジであり、実際の契約金額・条件ではありません。 | ||
※上記みなし賃料(月額)は仲介手数料割引・無料&キャッシュバックを加味した高級賃貸バイブル限定の金額です。一般的なみなし賃料とは異なります。
【建物ページ】カーサスプレンディッド南麻布フラットの詳細・最新空室はこちら▶▶選ばれる理由
仲介手数料無料・キャンペーン情報(毎月15名様限定)
〇仲介手数料割引キャンペーン
カーサスプレンディッド南麻布フラット 902の口コミ・レビュー
カーサスプレンディッド南麻布フラット 902。この名前を耳にした瞬間、まるで都会の喧騒を忘れさせる静謐なオアシスが、心の中にふわりと浮かび上がります。902号室は、北東向きに広がる静かな眺望と共に、あなたを新たな生活へと誘います。
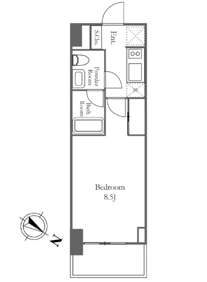
この独特なスペースは、25.65㎡の中に、独自の魅力がぎっしりと詰まっており、まるで洗練された芸術作品のようです。一歩足を踏み入れると、8.5帖のベッドルーム(…カーサスプレンディッド南麻布フラット 902。この名前を耳にした瞬間、まるで都会の喧騒を忘れさせる静謐なオアシスが、心の中にふわりと浮かび上がります。902号室は、北東向きに広がる静かな眺望と共に、あなたを新たな生活へと誘います。
この独特なスペースは、25.65㎡の中に、独自の魅力がぎっしりと詰まっており、まるで洗練された芸術作品のようです。一歩足を踏み入れると、8.5帖のベッドルーム(BR)があなたを迎え入れ、その空間の中に広がる安らぎは、まるで柔らかな絹に包まれているかのような感覚を与えてくれます。白を基調とした内装が心を穏やかにし、シャワーの水音や風のそよぎが耳に心地よく響きます。
カーサスプレンディッド南麻布フラット 902には、時代を超えたデザインが施されています。エレベーターでのアクセスはスムーズで、オートロックのセキュリティーが日々の安心をもたらします。まるであなたのプライバシーをそっと守る優しい守護者のようです。また、宅配ボックスは、忙しい毎日の中でも、いつでも荷物を受け取ることができる便利さを提供し、生活の質をさらに向上させます。
この物件がある南麻布は、歴史と文化が交錯する場所。周囲には、名高い美術館や洗練されたカフェが点在し、アートやコーヒーの香りに包まれた日常があなたを待っています。麻布十番駅までの8分の道のりには、洗練されたお店が並び、心地よい風がそよいでいることでしょう。まるで映画のワンシーンのように、街の情景を背景にした散策が楽しめます。
カーサスプレンディッド南麻布フラット 902で過ごす日々は、まさにあなた自身の物語の始まりです。どうかこの空間で、心の奥深くに響く感動を感じ、五感を存分に解き放ってください。あなたがこの素晴らしい場所に住むことで、日常生活が特別なものに変わることでしょう。隣人と共にあなたの物語を綴る喜びを感じながら、日々の小さな瞬間を大切に過ごしてください。この高級賃貸物件は、ただの住まいではなく、あなたの新しい人生の舞台なのです。ここであなた自身の美しい物語を描いてみてはいかがでしょうか。
この独特なスペースは、25.65㎡の中に、独自の魅力がぎっしりと詰まっており、まるで洗練された芸術作品のようです。一歩足を踏み入れると、8.5帖のベッドルーム(…カーサスプレンディッド南麻布フラット 902。この名前を耳にした瞬間、まるで都会の喧騒を忘れさせる静謐なオアシスが、心の中にふわりと浮かび上がります。902号室は、北東向きに広がる静かな眺望と共に、あなたを新たな生活へと誘います。
この独特なスペースは、25.65㎡の中に、独自の魅力がぎっしりと詰まっており、まるで洗練された芸術作品のようです。一歩足を踏み入れると、8.5帖のベッドルーム(BR)があなたを迎え入れ、その空間の中に広がる安らぎは、まるで柔らかな絹に包まれているかのような感覚を与えてくれます。白を基調とした内装が心を穏やかにし、シャワーの水音や風のそよぎが耳に心地よく響きます。
カーサスプレンディッド南麻布フラット 902には、時代を超えたデザインが施されています。エレベーターでのアクセスはスムーズで、オートロックのセキュリティーが日々の安心をもたらします。まるであなたのプライバシーをそっと守る優しい守護者のようです。また、宅配ボックスは、忙しい毎日の中でも、いつでも荷物を受け取ることができる便利さを提供し、生活の質をさらに向上させます。
この物件がある南麻布は、歴史と文化が交錯する場所。周囲には、名高い美術館や洗練されたカフェが点在し、アートやコーヒーの香りに包まれた日常があなたを待っています。麻布十番駅までの8分の道のりには、洗練されたお店が並び、心地よい風がそよいでいることでしょう。まるで映画のワンシーンのように、街の情景を背景にした散策が楽しめます。
カーサスプレンディッド南麻布フラット 902で過ごす日々は、まさにあなた自身の物語の始まりです。どうかこの空間で、心の奥深くに響く感動を感じ、五感を存分に解き放ってください。あなたがこの素晴らしい場所に住むことで、日常生活が特別なものに変わることでしょう。隣人と共にあなたの物語を綴る喜びを感じながら、日々の小さな瞬間を大切に過ごしてください。この高級賃貸物件は、ただの住まいではなく、あなたの新しい人生の舞台なのです。ここであなた自身の美しい物語を描いてみてはいかがでしょうか。
バイブルスコア
バイブルスコア: 33.2
平均的なスコアです。
※バイブルスコア詳細はこちら
バイブルスコアとは独自のAI機械学習技術を利用した物件評価システムで、物件のおすすめ度を示します。最高得点は100点で、スコアが高いほど、よりおすすめの物件と評価されています。
写真
契約条件
| 賃料 | 予想金額:130,000〜150,000円程度 | 管理費 | 予想金額:8,000〜12,000円程度 |
| 礼金 | 非公開(アーカイブ) | 敷金 | 非公開(アーカイブ) |
| フリーレント | なし | 平米数 | 25.65㎡ |
| 間取り | 1K | 大型収納 | |
| 契約期間 |
| 方角 | 北東 |
| 更新料 | 契約形態 | 普通賃貸借契約 | |
| 取引態様 | 媒介 | 内見状況 | 入居中 |
| 入居時期 | 入居中 | SOHO・事務所 | |
| ペット | ペット可 | 間取り内訳 | BR=8.5 |
| キャンペーン情報・備考 | 本情報は賃料改定交渉の資料作成、収益物件の利回り試算、周辺エリアや最寄り駅の坪単価分析、次回募集開始時期の予測などにご活用いただけます。 | ||
※「どの不動産に頼めばいいのか分からない」「信頼できる営業マンの話を聞きたい」「一番親切な会社と契約したい」とお悩みの方におすすめなのが「高級賃貸バイブル」です。
高級賃貸バイブルは業界10年以上の熟練スタッフ群がお客様ファーストで対応します。
下記ボタンから、まずは無料でご相談下さい。
※内覧をご希望の際には、どうぞ物件のエントランス前にてお待ち合わせくださいませ。ご内覧後は、同じ場所でお別れとさせていただきます。お客様のご都合に合わせたスムーズなご案内を心がけておりますので、ご質問等がございましたら何なりとお申し付けください。 物件概要
| 物件名 |
| 築年月 |
|
|---|---|---|---|
| 所在地 | |||
| 交通 | |||
| 総戸数 |
| 総階数 |
|
| 構造 |
| ||
地図
物件までの道のりは、「拡大地図を表示」をクリックしてナビ機能をご利用ください。
部屋設備















建物設備

TVモニターホン

エレベーター

オートロック

宅配ボックス

敷地内ゴミ置場

管理人

駐車場平置き

駐輪場
カーサスプレンディッド南麻布フラットの現在募集中のお部屋
- カーサスプレンディッド南麻布FLAT 802 - 間取り: 1K - 賃料: 15.9万円
- カーサスプレンディッド南麻布FLAT 10F1 - 間取り: 2LDK - 賃料: 34.7万円
- カーサスプレンディッド南麻布FLAT 902 - 間取り: 1K - 賃料: 15.9万円



























