
| 賃料 | 予想金額:113,000〜133,000円程度 | 管理費 | 予想金額:8,000〜12,000円程度 |
| 礼金/敷金 | 非公開(アーカイブ) | 平米数 | 25.45㎡ |
| 初期費用概算(参考) | 目安:35,940〜135,940 円 | みなし賃料(月額・参考) | 124,790〜144,790 円 |
| 備考 | 本ページは過去募集のアーカイブです。表示の金額は周辺相場・過去募集を踏まえた参考レンジであり、実際の契約金額・条件ではありません。 | ||
※上記みなし賃料(月額)は仲介手数料割引・無料&キャッシュバックを加味した高級賃貸バイブル限定の金額です。一般的なみなし賃料とは異なります。
【建物ページ】カーサスプレンディッド南麻布の詳細・最新空室はこちら▶▶選ばれる理由
仲介手数料無料・キャンペーン情報(毎月15名様限定)
〇引っ越しお祝い金150060円プレゼント(キャッシュバック)
〇フリーレント1か月キャンペーン
〇仲介手数料無料キャンペーン
カーサスプレンディッド南麻布 404の口コミ・レビュー
カーサスプレンディッド南麻布 404は、まるで都会の喧騒からの逃避行のように、特別な時間を提供する静謐な空間です。東京都港区南麻布という場所に、その美しさをたたえたこの物件は、あなたを心地よい非日常の世界へと導いてくれます。西向きの窓から差し込む温かな光は、ゆっくりとした朝のひとときを演出し、そよ風と共にあなたの心に安らぎを与えます。
この物件に足を踏み入れれば、まず目に飛び込んでくるのは、デザ…カーサスプレンディッド南麻布 404は、まるで都会の喧騒からの逃避行のように、特別な時間を提供する静謐な空間です。東京都港区南麻布という場所に、その美しさをたたえたこの物件は、あなたを心地よい非日常の世界へと導いてくれます。西向きの窓から差し込む温かな光は、ゆっくりとした朝のひとときを演出し、そよ風と共にあなたの心に安らぎを与えます。
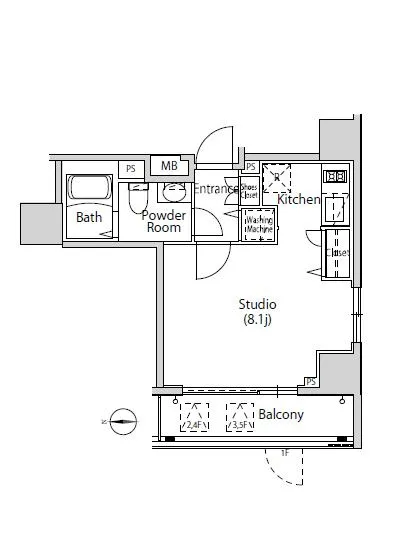
この物件に足を踏み入れれば、まず目に飛び込んでくるのは、デザイナーズならではの洗練された空間。25.45㎡の専有面積の中に、シンプルでありながらも品格のあるデザインが見事に調和しています。洋室は8.1帖の広さを誇り、まるで貴族の寝宮のように、あなたを優雅な夢へと招き入れることでしょう。ここで過ごす時間は、まるで映画のワンシーンを体験しているかのような感覚に包まれます。
朝目覚めると、窓から優しく流れ込む光が、あなたの顔を穏やかに照らし出し、同時に外の世界の香りが漂い込んできます。花々が咲き誇る南麻布の街角から、微かに香る甘い花の香りや、街の活気を感じさせる人々の生活音が、心に響きます。あなたは、毎日の生活が特別なものであることに気づくでしょう。時にはバルコニーに出て、精神を解放し、街の喧騒を遠くに置き去りにして、ただ静かなひとときを楽しむこともできるのです。
カーサスプレンディッド南麻布 404は、ただの住まいではありません。それは、あなたの生活がアートであり、日々の瞬間が美しいストーリーであることを思い出させてくれる舞台なのです。オートロックや宅配ボックス、エレベーターなど、快適さと安全を確保する設備も整っていますが、それらはあくまでこの物件の魅力を引き立てるためのスパイスに過ぎません。
近隣には、麻布十番駅があり、徒歩13分でアクセス可能な利便性もまた、この物件が持つ隠れた魅力の一つです。歴史ある街並みと、新しい文化が交錯するこのエリアは、住む人々に常に新たなインスピレーションを与えてくれます。美味しい食事や、有名なアートギャラリー、心を豊かにするカフェと、あなたの生活を彩る場所がそこには広がっています。
カーサスプレンディッド南麻布 404での生活は、単なる日常ではなく、あなた自身の物語を書く舞台となるでしょう。そこには、感じることのできる美しさがあり、味わうことのできる豊かさが待っています。この空間で、新たなスタートを切り、人生を謳歌してみませんか。あなたの物語の第一章が、この特別な場所で始まることを願ってやみません。
この物件に足を踏み入れれば、まず目に飛び込んでくるのは、デザ…カーサスプレンディッド南麻布 404は、まるで都会の喧騒からの逃避行のように、特別な時間を提供する静謐な空間です。東京都港区南麻布という場所に、その美しさをたたえたこの物件は、あなたを心地よい非日常の世界へと導いてくれます。西向きの窓から差し込む温かな光は、ゆっくりとした朝のひとときを演出し、そよ風と共にあなたの心に安らぎを与えます。
この物件に足を踏み入れれば、まず目に飛び込んでくるのは、デザイナーズならではの洗練された空間。25.45㎡の専有面積の中に、シンプルでありながらも品格のあるデザインが見事に調和しています。洋室は8.1帖の広さを誇り、まるで貴族の寝宮のように、あなたを優雅な夢へと招き入れることでしょう。ここで過ごす時間は、まるで映画のワンシーンを体験しているかのような感覚に包まれます。
朝目覚めると、窓から優しく流れ込む光が、あなたの顔を穏やかに照らし出し、同時に外の世界の香りが漂い込んできます。花々が咲き誇る南麻布の街角から、微かに香る甘い花の香りや、街の活気を感じさせる人々の生活音が、心に響きます。あなたは、毎日の生活が特別なものであることに気づくでしょう。時にはバルコニーに出て、精神を解放し、街の喧騒を遠くに置き去りにして、ただ静かなひとときを楽しむこともできるのです。
カーサスプレンディッド南麻布 404は、ただの住まいではありません。それは、あなたの生活がアートであり、日々の瞬間が美しいストーリーであることを思い出させてくれる舞台なのです。オートロックや宅配ボックス、エレベーターなど、快適さと安全を確保する設備も整っていますが、それらはあくまでこの物件の魅力を引き立てるためのスパイスに過ぎません。
近隣には、麻布十番駅があり、徒歩13分でアクセス可能な利便性もまた、この物件が持つ隠れた魅力の一つです。歴史ある街並みと、新しい文化が交錯するこのエリアは、住む人々に常に新たなインスピレーションを与えてくれます。美味しい食事や、有名なアートギャラリー、心を豊かにするカフェと、あなたの生活を彩る場所がそこには広がっています。
カーサスプレンディッド南麻布 404での生活は、単なる日常ではなく、あなた自身の物語を書く舞台となるでしょう。そこには、感じることのできる美しさがあり、味わうことのできる豊かさが待っています。この空間で、新たなスタートを切り、人生を謳歌してみませんか。あなたの物語の第一章が、この特別な場所で始まることを願ってやみません。
バイブルスコア
バイブルスコア: 22.8
平均的なスコアです。
※バイブルスコア詳細はこちら
バイブルスコアとは独自のAI機械学習技術を利用した物件評価システムで、物件のおすすめ度を示します。最高得点は100点で、スコアが高いほど、よりおすすめの物件と評価されています。
写真
契約条件
| 賃料 | 予想金額:113,000〜133,000円程度 | 管理費 | 予想金額:8,000〜12,000円程度 |
| 礼金 | 非公開(アーカイブ) | 敷金 | 非公開(アーカイブ) |
| フリーレント | 1ヶ月 | 平米数 | 25.45㎡ |
| 間取り | 1R | 大型収納 | |
| 契約期間 |
| 方角 | 西 |
| 更新料 | 契約形態 | 普通賃貸借契約 | |
| 取引態様 | 媒介 | 内見状況 | 入居中 |
| 入居時期 | 入居中 | SOHO・事務所 | |
| ペット | ペット可 | 間取り内訳 | 洋:8.1 |
| キャンペーン情報・備考 | 本情報は賃料改定交渉の資料作成、収益物件の利回り試算、周辺エリアや最寄り駅の坪単価分析、次回募集開始時期の予測などにご活用いただけます。 | ||
※「どの不動産に頼めばいいのか分からない」「信頼できる営業マンの話を聞きたい」「一番親切な会社と契約したい」とお悩みの方におすすめなのが「高級賃貸バイブル」です。
高級賃貸バイブルは業界10年以上の熟練スタッフ群がお客様ファーストで対応します。
下記ボタンから、まずは無料でご相談下さい。
※内覧をご希望の際には、どうぞ物件のエントランス前にてお待ち合わせくださいませ。ご内覧後は、同じ場所でお別れとさせていただきます。お客様のご都合に合わせたスムーズなご案内を心がけておりますので、ご質問等がございましたら何なりとお申し付けください。 物件概要
| 物件名 |
| 築年月 |
|
|---|---|---|---|
| 所在地 | |||
| 交通 | |||
| 総戸数 |
| 総階数 |
|
| 構造 |
| ||
地図
物件までの道のりは、「拡大地図を表示」をクリックしてナビ機能をご利用ください。
部屋設備














建物設備

TVモニターホン

エレベーター

オートロック

バイク置場

宅配ボックス

敷地内ゴミ置場

駐輪場
カーサスプレンディッド南麻布の現在募集中のお部屋
- No rooms found for this property.





















