
| 賃料 | 予想金額:113,000〜133,000円程度 | 管理費 | 予想金額:8,000〜12,000円程度 |
| 礼金/敷金 | 非公開(アーカイブ) | 平米数 | 25.33㎡ |
| 初期費用概算(参考) | 目安:284,400〜384,400 円 | みなし賃料(月額・参考) | 127,404〜147,404 円 |
| 備考 | 本ページは過去募集のアーカイブです。表示の金額は周辺相場・過去募集を踏まえた参考レンジであり、実際の契約金額・条件ではありません。 | ||
※上記みなし賃料(月額)は仲介手数料割引・無料&キャッシュバックを加味した高級賃貸バイブル限定の金額です。一般的なみなし賃料とは異なります。
【建物ページ】カーサスプレンディッド南麻布の詳細・最新空室はこちら▶▶選ばれる理由
仲介手数料無料・キャンペーン情報(毎月15名様限定)
〇引っ越しお祝い金24600円プレゼント(キャッシュバック)
〇仲介手数料無料キャンペーン
カーサスプレンディッド南麻布 201の口コミ・レビュー
入口を開けるや否や、カーサスプレンデ…カーサスプレンディッド南麻布 201は、まるで都会のオアシスのように、貴方を柔らかな生活の海へと誘います。東京都港区南麻布1-27-6のこの物件は、200のエレガンスを纏った一角で、深い歴史を持つ南麻布の通りに静かに佇んでいます。賢くも洗練された贅沢を求める貴方に、特別な住まいを提供するために設計されたこの空間は、まさにデザイナーズの名のもとに生まれました。
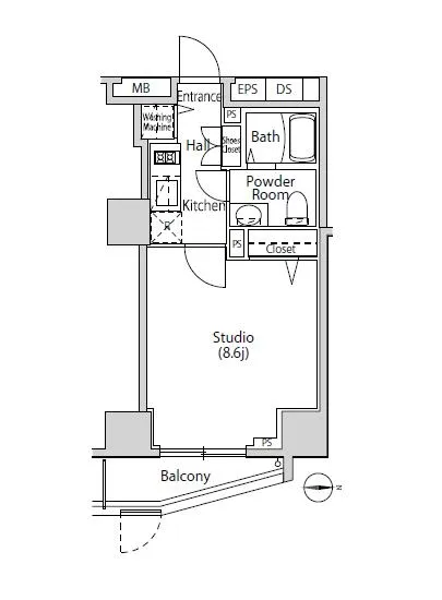
入口を開けるや否や、カーサスプレンディッド南麻布 201の住人となる貴方を、優雅なアプローチが迎え入れます。静寂に包まれたロビーを通り抜け、エレベーターのボタンを軽く押すと、心が躍る期待感が胸を満たします。この物件の2階、特別な空間へと導きます。そこには、25.33㎡の贅沢な世界が広がり、洗練されたリビングとプライベートな空間とが調和する、まるで舞台のセットのような1Kが、貴方を待っています。
部屋に一歩足を踏み入れると、8.6帖の洋室には、暖かい光が差し込みます。朝日が優しくカーテンをこぼし、どこかスウィートな香りが漂う時、目の前に広がる空間が呼吸を始めるのを感じます。淡いトーンが織りなす壁面は、貴方の心の安らぎを一層引き立て、どんな日々の疲れも解きほぐすかのようです。
カーサスプレンディッド南麻布 201の窓を開ければ、静かに街を行き交う車の音や、遠くの公園から聞こえる子供たちの笑い声が耳に心地よく響きます。この地の歴史ある文化も、その音の中に息づいています。貴方がこの部屋でカップを片手に朝を迎え、コーヒーの香りに包まれながら、扉の外に広がる麻布十番の街を眺める光景は、まるで映画の一コマのようです。毎日の生活が、日常という名のシナリオの中で冴え渡る瞬間をもたらすことでしょう。
カーサスプレンディッド南麻布 201は、便利用度も兼ね備えています。オートロックやTVモニターホンといった設備は、安心感をもたらすだけでなく、貴方のプライベートをしっかりと守ってくれます。また、宅配ボックスやバイク置場など、生活に必要な便利さを十分に取り入れることで、きっとこの場所を愛着を持って受け入れていただけることでしょう。
高級賃貸物件としてのカーサスプレンディッド南麻布 201は、都会の喧騒を忘れさせる隠れ家的な存在であり、同時に洗練された生活を求める方々にピッタリです。どうか貴方の新たな生活の舞台として、この特別な空間を選んでください。カーサスプレンディッド南麻布 201での生活が、貴方の人生に新たな彩りをもたらすことでしょう。まるで、人生のフィルムが一瞬の美しさを捉え続けるかのように。
バイブルスコア
バイブルスコア: 52
条件のいい物件です、引っ越しが2か月以内の場合は仮申し込みを検討すべき物件です。
このお部屋は、現在ご入居中のため空室情報はございません。ただし、将来的に募集が開始される際、バイブルスコアにおいて非常に高い評価が期待されます。特にご興味をお持ちの方は、今のうちにブックマークやお気に入りに登録していただくと、募集開始のお知らせをすぐに受け取ることができます。是非ともご検討くださいませ。
※バイブルスコア詳細はこちら
バイブルスコアとは独自のAI機械学習技術を利用した物件評価システムで、物件のおすすめ度を示します。最高得点は100点で、スコアが高いほど、よりおすすめの物件と評価されています。
写真
契約条件
| 賃料 | 予想金額:113,000〜133,000円程度 | 管理費 | 予想金額:8,000〜12,000円程度 |
| 礼金 | 非公開(アーカイブ) | 敷金 | 非公開(アーカイブ) |
| フリーレント | なし | 平米数 | 25.33㎡ |
| 間取り | 1K | 大型収納 | なし |
| 契約期間 | 2年 | 方角 | 東 |
| 更新料 | 1ヶ月 | 契約形態 | 普通賃貸借契約 |
| 取引態様 | 媒介 | 内見状況 | 入居中 |
| 入居時期 | 入居中 | SOHO・事務所 | 不可 |
| ペット | ペット可 | 間取り内訳 | 洋:8.6 |
| キャンペーン情報・備考 | 本情報は賃料改定交渉の資料作成、収益物件の利回り試算、周辺エリアや最寄り駅の坪単価分析、次回募集開始時期の予測などにご活用いただけます。 | ||
※「どの不動産に頼めばいいのか分からない」「信頼できる営業マンの話を聞きたい」「一番親切な会社と契約したい」とお悩みの方におすすめなのが「高級賃貸バイブル」です。
高級賃貸バイブルは業界10年以上の熟練スタッフ群がお客様ファーストで対応します。
下記ボタンから、まずは無料でご相談下さい。
※内覧をご希望の際には、どうぞ物件のエントランス前にてお待ち合わせくださいませ。ご内覧後は、同じ場所でお別れとさせていただきます。お客様のご都合に合わせたスムーズなご案内を心がけておりますので、ご質問等がございましたら何なりとお申し付けください。 物件概要
| 物件名 |
| 築年月 |
|
|---|---|---|---|
| 所在地 | |||
| 交通 | |||
| 総戸数 |
| 総階数 |
|
| 構造 |
| ||
地図
物件までの道のりは、「拡大地図を表示」をクリックしてナビ機能をご利用ください。
部屋設備














建物設備

TVモニターホン

エレベーター

オートロック

バイク置場

宅配ボックス

敷地内ゴミ置場

駐輪場
カーサスプレンディッド南麻布の現在募集中のお部屋
- No rooms found for this property.





















