
| 賃料 | 予想金額:236,000〜256,000円程度 | 管理費 | 予想金額:18,000〜22,000円程度 |
| 礼金/敷金 | 非公開(アーカイブ) | 平米数 | 50.67㎡ |
| 初期費用概算(参考) | 目安:686,500〜786,500 円 | みなし賃料(月額・参考) | 266,219〜286,219 円 |
| 備考 | 本ページは過去募集のアーカイブです。表示の金額は周辺相場・過去募集を踏まえた参考レンジであり、実際の契約金額・条件ではありません。 | ||
※上記みなし賃料(月額)は仲介手数料割引・無料&キャッシュバックを加味した高級賃貸バイブル限定の金額です。一般的なみなし賃料とは異なります。
【建物ページ】カーサスプレンディッド南麻布の詳細・最新空室はこちら▶▶選ばれる理由
仲介手数料無料・キャンペーン情報(毎月15名様限定)
〇仲介手数料割引キャンペーン
カーサスプレンディッド南麻布 305の口コミ・レビュー
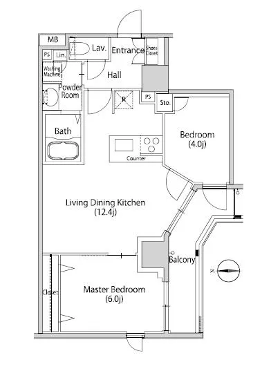
カーサスプレンディッド南麻布 305。この名称が響くと同時に、あなたの心は新しい生活の期待で高鳴ります。305号室は、まるで心の奥底から湧き上がるような魅力を持ち、その2LDKの間取りは、あなたの人生を豊かに彩るキャンバスのようです。広々としたLDKは12.4帖を誇り、窓から差し込む南の光が、まるで大自然が描いた絵の具のように、心を優しく包んでくれます。
この家は、ただの住まいではありません。カ…カーサスプレンディッド南麻布 305。この名称が響くと同時に、あなたの心は新しい生活の期待で高鳴ります。305号室は、まるで心の奥底から湧き上がるような魅力を持ち、その2LDKの間取りは、あなたの人生を豊かに彩るキャンバスのようです。広々としたLDKは12.4帖を誇り、窓から差し込む南の光が、まるで大自然が描いた絵の具のように、心を優しく包んでくれます。
この家は、ただの住まいではありません。カーサスプレンディッド南麻布 305は、あなたに語りかける友人のようです。「ここで、素敵な物語を紡ごう」と、その温もりが感じられます。お部屋に足を踏み入れると、心地よい木の香りと、柔らかな光があなたを迎え入れてくれます。6.0帖の洋室は、落ち着いたトーンの壁に囲まれ、心が落ち着くスペース。ここには、あなたの思い出が詰まった秘宝のようなコレクションが、ゆっくりと並べられることでしょう。
一方、4.0帖の洋室は、ゲストを迎えるための心地良い隠れ家です。扉を開ければ、優雅な調光が広がり、訪れた人を瞬時にリラックスさせる魔法のような空間。アート作品や家具の選び方で、さらなる個性を引き出せる場所です。この部屋は、静かに語りかけるスピリチュアルな空間です。
このカーサスプレンディッド南麻布 305には、快適な暮らしをサポートする多彩な設備が揃っています。TVモニターホンが安心をもたらし、オートロックの扉は安全の盾となります。デザイナーズの風格が漂うその内装は、まるで美術館の一角にいるかのような感覚を与えてくれます。特に、宅配ボックスは、忙しい日々の中であなたの時間を大切にするための存在です。
周辺には、麻布十番の文化的な香りが漂い、喧騒の中にも落ち着きを感じさせてくれます。美しいカフェや洗練されたレストランが所狭しと並び、食の楽しみもあなたを待っています。あなたの味覚を刺激する料理が、厨房で踊り、香ばしい香りが漂うことでしょう。
カーサスプレンディッド南麻布 305は、ただの物件ではなく、あなたの新しい人生の舞台なのです。ここでの時間は、まるで映画の一幕のように特別で、毎日が新たな発見と感動に満ちています。そして、あなたの物語は、今、ここから始まるのです。
この家は、ただの住まいではありません。カ…カーサスプレンディッド南麻布 305。この名称が響くと同時に、あなたの心は新しい生活の期待で高鳴ります。305号室は、まるで心の奥底から湧き上がるような魅力を持ち、その2LDKの間取りは、あなたの人生を豊かに彩るキャンバスのようです。広々としたLDKは12.4帖を誇り、窓から差し込む南の光が、まるで大自然が描いた絵の具のように、心を優しく包んでくれます。
この家は、ただの住まいではありません。カーサスプレンディッド南麻布 305は、あなたに語りかける友人のようです。「ここで、素敵な物語を紡ごう」と、その温もりが感じられます。お部屋に足を踏み入れると、心地よい木の香りと、柔らかな光があなたを迎え入れてくれます。6.0帖の洋室は、落ち着いたトーンの壁に囲まれ、心が落ち着くスペース。ここには、あなたの思い出が詰まった秘宝のようなコレクションが、ゆっくりと並べられることでしょう。
一方、4.0帖の洋室は、ゲストを迎えるための心地良い隠れ家です。扉を開ければ、優雅な調光が広がり、訪れた人を瞬時にリラックスさせる魔法のような空間。アート作品や家具の選び方で、さらなる個性を引き出せる場所です。この部屋は、静かに語りかけるスピリチュアルな空間です。
このカーサスプレンディッド南麻布 305には、快適な暮らしをサポートする多彩な設備が揃っています。TVモニターホンが安心をもたらし、オートロックの扉は安全の盾となります。デザイナーズの風格が漂うその内装は、まるで美術館の一角にいるかのような感覚を与えてくれます。特に、宅配ボックスは、忙しい日々の中であなたの時間を大切にするための存在です。
周辺には、麻布十番の文化的な香りが漂い、喧騒の中にも落ち着きを感じさせてくれます。美しいカフェや洗練されたレストランが所狭しと並び、食の楽しみもあなたを待っています。あなたの味覚を刺激する料理が、厨房で踊り、香ばしい香りが漂うことでしょう。
カーサスプレンディッド南麻布 305は、ただの物件ではなく、あなたの新しい人生の舞台なのです。ここでの時間は、まるで映画の一幕のように特別で、毎日が新たな発見と感動に満ちています。そして、あなたの物語は、今、ここから始まるのです。
バイブルスコア
バイブルスコア: 25
平均的なスコアです。
※バイブルスコア詳細はこちら
バイブルスコアとは独自のAI機械学習技術を利用した物件評価システムで、物件のおすすめ度を示します。最高得点は100点で、スコアが高いほど、よりおすすめの物件と評価されています。
写真
契約条件
| 賃料 | 予想金額:236,000〜256,000円程度 | 管理費 | 予想金額:18,000〜22,000円程度 |
| 礼金 | 非公開(アーカイブ) | 敷金 | 非公開(アーカイブ) |
| フリーレント | なし | 平米数 | 50.67㎡ |
| 間取り | 2LDK | 大型収納 | |
| 契約期間 |
| 方角 | 南 |
| 更新料 | 契約形態 | 普通賃貸借契約 | |
| 取引態様 | 媒介 | 内見状況 | 入居中 |
| 入居時期 | 入居中 | SOHO・事務所 | |
| ペット | ペット可 | 間取り内訳 | 洋:6.0 洋:4.0 LDK:12.4 |
| キャンペーン情報・備考 | 本情報は賃料改定交渉の資料作成、収益物件の利回り試算、周辺エリアや最寄り駅の坪単価分析、次回募集開始時期の予測などにご活用いただけます。 | ||
※「どの不動産に頼めばいいのか分からない」「信頼できる営業マンの話を聞きたい」「一番親切な会社と契約したい」とお悩みの方におすすめなのが「高級賃貸バイブル」です。
高級賃貸バイブルは業界10年以上の熟練スタッフ群がお客様ファーストで対応します。
下記ボタンから、まずは無料でご相談下さい。
※内覧をご希望の際には、どうぞ物件のエントランス前にてお待ち合わせくださいませ。ご内覧後は、同じ場所でお別れとさせていただきます。お客様のご都合に合わせたスムーズなご案内を心がけておりますので、ご質問等がございましたら何なりとお申し付けください。 物件概要
| 物件名 |
| 築年月 |
|
|---|---|---|---|
| 所在地 | |||
| 交通 | |||
| 総戸数 |
| 総階数 |
|
| 構造 |
| ||
地図
物件までの道のりは、「拡大地図を表示」をクリックしてナビ機能をご利用ください。
部屋設備


















建物設備

TVモニターホン

エレベーター

オートロック

バイク置場

宅配ボックス

敷地内ゴミ置場

駐輪場
カーサスプレンディッド南麻布の現在募集中のお部屋
- No rooms found for this property.





















