
| 賃料 | 予想金額:210,000〜230,000円程度 | 管理費 | 予想金額:0〜2,000円程度 |
| 礼金/敷金 | 非公開(アーカイブ) | 平米数 | 34.56㎡ |
| 初期費用概算(参考) | 目安:646,500〜746,500 円 | みなし賃料(月額・参考) | 219,927〜239,927 円 |
| 備考 | 本ページは過去募集のアーカイブです。表示の金額は周辺相場・過去募集を踏まえた参考レンジであり、実際の契約金額・条件ではありません。 | ||
※上記みなし賃料(月額)は仲介手数料割引・無料&キャッシュバックを加味した高級賃貸バイブル限定の金額です。一般的なみなし賃料とは異なります。
【建物ページ】パークキューブ愛宕山タワーの詳細・最新空室はこちら▶▶選ばれる理由
仲介手数料無料・キャンペーン情報(毎月15名様限定)
〇引っ越しお祝い金110000円プレゼント(キャッシュバック)
〇仲介手数料無料キャンペーン
パークキューブ愛宕山タワー 2304の口コミ・レビュー
パークキューブ愛宕山タワー 2304。高潔な佇まいが、訪れる人々を優雅に迎え入れるこのタワーは、まさに都市の中に佇む宝石のような存在です。2304という特別な部屋番号のもと、34.56㎡の広さは、まるで贅沢なシルクのように、あなたの暮らしを包み込みます。朝日が東の窓から差し込むその瞬間、あなたは新しい日の始まりを感じ、まるで映画の主人公のように心躍ることでしょう。
洋室9.2帖が織りなす空間は、…パークキューブ愛宕山タワー 2304。高潔な佇まいが、訪れる人々を優雅に迎え入れるこのタワーは、まさに都市の中に佇む宝石のような存在です。2304という特別な部屋番号のもと、34.56㎡の広さは、まるで贅沢なシルクのように、あなたの暮らしを包み込みます。朝日が東の窓から差し込むその瞬間、あなたは新しい日の始まりを感じ、まるで映画の主人公のように心躍ることでしょう。
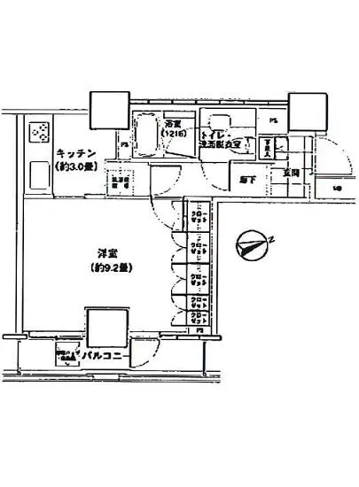
洋室9.2帖が織りなす空間は、心地よい静けさに包まれています。ここでは、あなたの想像力が自由に羽ばたき、心地よい香りのコーヒーを香ばしく淹れ、朝の光を浴びながら読書にふける姿が目に浮かびます。キッチン(K=2J)は、料理をする楽しさを与えてくれ、あなたの手から生まれる味わいは、まるでフランスのビストロで味わうような贅沢なひとときです。誰か大切な人と分かち合うための料理を作る、その瞬間が、あなたの心を満たしてくれることでしょう。
パークキューブ愛宕山タワー 2304では、生活が単なる日常ではなく、まるで芸術的なパフォーマンスであるかのように感じられます。24時間管理の安心感、フロントサービスの温かい笑顔、エレベーターの静かな移動、オートロックがもたらすプライバシーの保護。それらはすべて、あなたの生活を彩る一部となり、心を豊かにしてくれるのです。
周辺には、東京メトロ日比谷線の虎ノ門ヒルズ駅が徒歩4分の距離にあり、忙しい日常の中でも、アクセスの良さはあなたの時間を有効に活用する助けとなります。歴史的な背景を持つこのエリアは、古い文化と新しいアートが交錯する場所としても知られています。歩を進めれば、趣あるカフェやアートギャラリーが待ち受けており、あなたの五感をさらに刺激することでしょう。
夕暮れ時、窓から見える東京の夜景は、まるで無数の星が降り注いだかのように輝き、心が高揚するのを感じます。パークキューブ愛宕山タワー 2304での生活は、決して平凡ではありません。それは、毎日が特別な映画のワンシーンであり、あなた自身がその主演俳優なのです。
この特別な場所に足を運び、まるで物語の中に入り込んだかのような感覚を味わいませんか?高級な生活の中で、心豊かなひとときをお過ごしになることができるのです。さあ、パークキューブ愛宕山タワー 2304へ、あなたの新しい章を始めに来てください。どんな日々が待っているのか、期待に胸を膨らませて。あなたの人生に、特別な色を添える場所がここにあります。
洋室9.2帖が織りなす空間は、…パークキューブ愛宕山タワー 2304。高潔な佇まいが、訪れる人々を優雅に迎え入れるこのタワーは、まさに都市の中に佇む宝石のような存在です。2304という特別な部屋番号のもと、34.56㎡の広さは、まるで贅沢なシルクのように、あなたの暮らしを包み込みます。朝日が東の窓から差し込むその瞬間、あなたは新しい日の始まりを感じ、まるで映画の主人公のように心躍ることでしょう。
洋室9.2帖が織りなす空間は、心地よい静けさに包まれています。ここでは、あなたの想像力が自由に羽ばたき、心地よい香りのコーヒーを香ばしく淹れ、朝の光を浴びながら読書にふける姿が目に浮かびます。キッチン(K=2J)は、料理をする楽しさを与えてくれ、あなたの手から生まれる味わいは、まるでフランスのビストロで味わうような贅沢なひとときです。誰か大切な人と分かち合うための料理を作る、その瞬間が、あなたの心を満たしてくれることでしょう。
パークキューブ愛宕山タワー 2304では、生活が単なる日常ではなく、まるで芸術的なパフォーマンスであるかのように感じられます。24時間管理の安心感、フロントサービスの温かい笑顔、エレベーターの静かな移動、オートロックがもたらすプライバシーの保護。それらはすべて、あなたの生活を彩る一部となり、心を豊かにしてくれるのです。
周辺には、東京メトロ日比谷線の虎ノ門ヒルズ駅が徒歩4分の距離にあり、忙しい日常の中でも、アクセスの良さはあなたの時間を有効に活用する助けとなります。歴史的な背景を持つこのエリアは、古い文化と新しいアートが交錯する場所としても知られています。歩を進めれば、趣あるカフェやアートギャラリーが待ち受けており、あなたの五感をさらに刺激することでしょう。
夕暮れ時、窓から見える東京の夜景は、まるで無数の星が降り注いだかのように輝き、心が高揚するのを感じます。パークキューブ愛宕山タワー 2304での生活は、決して平凡ではありません。それは、毎日が特別な映画のワンシーンであり、あなた自身がその主演俳優なのです。
この特別な場所に足を運び、まるで物語の中に入り込んだかのような感覚を味わいませんか?高級な生活の中で、心豊かなひとときをお過ごしになることができるのです。さあ、パークキューブ愛宕山タワー 2304へ、あなたの新しい章を始めに来てください。どんな日々が待っているのか、期待に胸を膨らませて。あなたの人生に、特別な色を添える場所がここにあります。
バイブルスコア
バイブルスコア: 88.6
レア物件です、すぐ仮押さえしましょう!
このお部屋は、現在ご入居中のため空室情報はございません。ただし、将来的に募集が開始される際、バイブルスコアにおいて非常に高い評価が期待されます。特にご興味をお持ちの方は、今のうちにブックマークやお気に入りに登録していただくと、募集開始のお知らせをすぐに受け取ることができます。是非ともご検討くださいませ。
※バイブルスコア詳細はこちら
バイブルスコアとは独自のAI機械学習技術を利用した物件評価システムで、物件のおすすめ度を示します。最高得点は100点で、スコアが高いほど、よりおすすめの物件と評価されています。
写真
契約条件
| 賃料 | 予想金額:210,000〜230,000円程度 | 管理費 | 予想金額:0〜2,000円程度 |
| 礼金 | 非公開(アーカイブ) | 敷金 | 非公開(アーカイブ) |
| フリーレント | なし | 平米数 | 34.56㎡ |
| 間取り | 1K | 大型収納 | なし |
| 契約期間 | 2年 | 方角 | 東 |
| 更新料 | 1ヶ月 | 契約形態 | 普通賃貸借契約 |
| 取引態様 | 媒介 | 内見状況 | 入居中 |
| 入居時期 | 入居中 | SOHO・事務所 | 不可 |
| ペット | 相談 | 間取り内訳 | 洋室9.2帖 K3帖 |
| キャンペーン情報・備考 | 本情報は賃料改定交渉の資料作成、収益物件の利回り試算、周辺エリアや最寄り駅の坪単価分析、次回募集開始時期の予測などにご活用いただけます。 | ||
※「どの不動産に頼めばいいのか分からない」「信頼できる営業マンの話を聞きたい」「一番親切な会社と契約したい」とお悩みの方におすすめなのが「高級賃貸バイブル」です。
高級賃貸バイブルは業界10年以上の熟練スタッフ群がお客様ファーストで対応します。
下記ボタンから、まずは無料でご相談下さい。
※内覧をご希望の際には、どうぞ物件のエントランス前にてお待ち合わせくださいませ。ご内覧後は、同じ場所でお別れとさせていただきます。お客様のご都合に合わせたスムーズなご案内を心がけておりますので、ご質問等がございましたら何なりとお申し付けください。 物件概要
| 物件名 |
| 築年月 |
|
|---|---|---|---|
| 所在地 | |||
| 交通 | |||
| 総戸数 |
| 総階数 |
|
| 構造 |
| ||
地図
物件までの道のりは、「拡大地図を表示」をクリックしてナビ機能をご利用ください。
部屋設備









建物設備

24時間管理

TVモニターホン

エレベーター

オートロック

バイク置場

フロントサービス

宅配ボックス

敷地内ゴミ置場

管理人

駐車場平置き

駐車場機械式

駐輪場
パークキューブ愛宕山タワーの現在募集中のお部屋
- パークキューブ愛宕山タワー 2701 - 間取り: 1LDK+WIC - 賃料: 48万円
- パークキューブ愛宕山タワー 401 - 間取り: 2LDK - 賃料: 42.5万円
- パークキューブ愛宕山タワー 2105 - 間取り: 1LDK - 賃料: 37万円
- パークキューブ愛宕山タワー 1405 - 間取り: 1R+WIC - 賃料: 17.3万円
- パークキューブ愛宕山タワー 1102 - 間取り: 3LDK - 賃料: 51万円





























