
| 賃料 | 予想金額:144,000〜164,000円程度 | 管理費 | 予想金額:8,000〜12,000円程度 |
| 礼金/敷金 | 非公開(アーカイブ) | 平米数 | 30.07㎡ |
| 初期費用概算(参考) | 目安:0〜46,500 円 | みなし賃料(月額・参考) | 153,927〜173,927 円 |
| 備考 | 本ページは過去募集のアーカイブです。表示の金額は周辺相場・過去募集を踏まえた参考レンジであり、実際の契約金額・条件ではありません。 | ||
※上記みなし賃料(月額)は仲介手数料割引・無料&キャッシュバックを加味した高級賃貸バイブル限定の金額です。一般的なみなし賃料とは異なります。
【建物ページ】ルミークアン南麻布の詳細・最新空室はこちら▶▶選ばれる理由
仲介手数料無料・キャンペーン情報(毎月15名様限定)
〇引っ越しお祝い金132000円プレゼント(キャッシュバック)
〇フリーレント1か月キャンペーン
〇仲介手数料無料キャンペーン
ルミークアン南麻布 209の口コミ・レビュー
ルミークアン南麻布 209。あなたが新たに住むその場所は、まるで現代アートのように美しく洗練された空間が広がる、特別な御殿です。東京都港区南麻布3-21-14という地は、歴史と文化が交錯する特権的なエリア。周辺には、名刹やアートギャラリーが点在し、静かな佇まいが心を和ませてくれます。この場所からは、白金高輪駅へもわずか徒歩7分。都会の喧騒から少し離れた、心安らぐ隠れ家のように感じることでしょう。
…ルミークアン南麻布 209。あなたが新たに住むその場所は、まるで現代アートのように美しく洗練された空間が広がる、特別な御殿です。東京都港区南麻布3-21-14という地は、歴史と文化が交錯する特権的なエリア。周辺には、名刹やアートギャラリーが点在し、静かな佇まいが心を和ませてくれます。この場所からは、白金高輪駅へもわずか徒歩7分。都会の喧騒から少し離れた、心安らぐ隠れ家のように感じることでしょう。
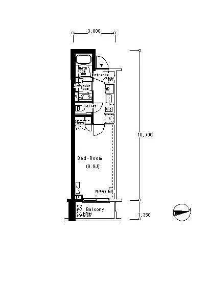
この物件、ルミークアン南麻布 209は、エレベーターで上がると現れるその扉が、あなたを新たな生活への冒険へと誘います。開けると出迎えるのは、9.9帖の洋室。柔らかな日差しが東の窓から差し込み、空間を金色に染め上げる瞬間は、まるで一瞬の夢のよう。朝起きた瞬間、カーテンを開けた瞬間の新鮮な空気が、柑橘の香りのようにあなたを包み込みます。そして、フローリングを素足で踏みしめる感触は、絨毯のように優しく、心が安らいでいきます。
そして、2.5帖のキッチンスペースは、料理する歓びを呼び覚ます特別な場所。新鮮な食材を手に取り、その香りを楽しみながら、素材の味を引き出す料理が生まれる場所でもあります。ルミークアン南麻布 209では、あなたの食卓がまるで美しい絵画のように彩られていくことでしょう。そして、その横にある小さなバルコニーからの眺めは、都心の緑が息づく様子を見守りながら、日常の喧騒を忘れさせてくれるはずです。
この特別な暮らしを支えてくれるのは、24時間体制の管理と、安心のオートロックシステム。まるで警備員があなたを守るかのように、安心感をもたらしてくれます。宅配ボックスやバイク置き場も完備されており、便利さと優雅さを兼ね備えた生活が待っています。駐車場も平置きと機械式の選択肢があり、車と共に自由なライフスタイルを楽しむことができます。
ルミークアン南麻布 209での生活は、まるで映画のワンシーンのように流れる瞬間が待っています。朝の光に包まれたキッチンでコーヒーの香りを楽しみ、午後には近くのアートギャラリーを訪れ、夜には友人を招いてディナーを楽しむ。そんな素敵な時間が、あなたの毎日を彩ってくれるのです。
さあ、ルミークアン南麻布 209で、あなた自身の物語を紡いでみませんか。この特別な空間で、人生をさらに美しく、豊かにするための新しいページが待っています。あなたの生活の舞台が、ここにあります。
…ルミークアン南麻布 209。あなたが新たに住むその場所は、まるで現代アートのように美しく洗練された空間が広がる、特別な御殿です。東京都港区南麻布3-21-14という地は、歴史と文化が交錯する特権的なエリア。周辺には、名刹やアートギャラリーが点在し、静かな佇まいが心を和ませてくれます。この場所からは、白金高輪駅へもわずか徒歩7分。都会の喧騒から少し離れた、心安らぐ隠れ家のように感じることでしょう。
この物件、ルミークアン南麻布 209は、エレベーターで上がると現れるその扉が、あなたを新たな生活への冒険へと誘います。開けると出迎えるのは、9.9帖の洋室。柔らかな日差しが東の窓から差し込み、空間を金色に染め上げる瞬間は、まるで一瞬の夢のよう。朝起きた瞬間、カーテンを開けた瞬間の新鮮な空気が、柑橘の香りのようにあなたを包み込みます。そして、フローリングを素足で踏みしめる感触は、絨毯のように優しく、心が安らいでいきます。
そして、2.5帖のキッチンスペースは、料理する歓びを呼び覚ます特別な場所。新鮮な食材を手に取り、その香りを楽しみながら、素材の味を引き出す料理が生まれる場所でもあります。ルミークアン南麻布 209では、あなたの食卓がまるで美しい絵画のように彩られていくことでしょう。そして、その横にある小さなバルコニーからの眺めは、都心の緑が息づく様子を見守りながら、日常の喧騒を忘れさせてくれるはずです。
この特別な暮らしを支えてくれるのは、24時間体制の管理と、安心のオートロックシステム。まるで警備員があなたを守るかのように、安心感をもたらしてくれます。宅配ボックスやバイク置き場も完備されており、便利さと優雅さを兼ね備えた生活が待っています。駐車場も平置きと機械式の選択肢があり、車と共に自由なライフスタイルを楽しむことができます。
ルミークアン南麻布 209での生活は、まるで映画のワンシーンのように流れる瞬間が待っています。朝の光に包まれたキッチンでコーヒーの香りを楽しみ、午後には近くのアートギャラリーを訪れ、夜には友人を招いてディナーを楽しむ。そんな素敵な時間が、あなたの毎日を彩ってくれるのです。
さあ、ルミークアン南麻布 209で、あなた自身の物語を紡いでみませんか。この特別な空間で、人生をさらに美しく、豊かにするための新しいページが待っています。あなたの生活の舞台が、ここにあります。
バイブルスコア
バイブルスコア: 40.7
条件のいい物件です、引っ越しが2か月以内の場合は仮申し込みを検討すべき物件です。
※バイブルスコア詳細はこちら
バイブルスコアとは独自のAI機械学習技術を利用した物件評価システムで、物件のおすすめ度を示します。最高得点は100点で、スコアが高いほど、よりおすすめの物件と評価されています。
写真
契約条件
| 賃料 | 予想金額:144,000〜164,000円程度 | 管理費 | 予想金額:8,000〜12,000円程度 |
| 礼金 | 非公開(アーカイブ) | 敷金 | 非公開(アーカイブ) |
| フリーレント | 1ヶ月 | 平米数 | 30.07㎡ |
| 間取り | 1K | 大型収納 | |
| 契約期間 | 2年 | 方角 | 東 |
| 更新料 | 1ヶ月 | 契約形態 | 普通賃貸借契約 |
| 取引態様 | 媒介 | 内見状況 | 入居中 |
| 入居時期 | 入居中 | SOHO・事務所 | |
| ペット | ペット可 | 間取り内訳 | 洋室9.9帖 K2.5帖 |
| キャンペーン情報・備考 | 本情報は賃料改定交渉の資料作成、収益物件の利回り試算、周辺エリアや最寄り駅の坪単価分析、次回募集開始時期の予測などにご活用いただけます。 | ||
※「どの不動産に頼めばいいのか分からない」「信頼できる営業マンの話を聞きたい」「一番親切な会社と契約したい」とお悩みの方におすすめなのが「高級賃貸バイブル」です。
高級賃貸バイブルは業界10年以上の熟練スタッフ群がお客様ファーストで対応します。
下記ボタンから、まずは無料でご相談下さい。
※内覧をご希望の際には、どうぞ物件のエントランス前にてお待ち合わせくださいませ。ご内覧後は、同じ場所でお別れとさせていただきます。お客様のご都合に合わせたスムーズなご案内を心がけておりますので、ご質問等がございましたら何なりとお申し付けください。 物件概要
| 物件名 |
| 築年月 |
|
|---|---|---|---|
| 所在地 | |||
| 交通 | |||
| 総戸数 |
| 総階数 |
|
| 構造 |
| ||
地図
物件までの道のりは、「拡大地図を表示」をクリックしてナビ機能をご利用ください。
部屋設備
















建物設備

24時間管理

TVモニターホン

エレベーター

オートロック

バイク置場

宅配ボックス

敷地内ゴミ置場

管理人

駐車場平置き

駐車場機械式

駐輪場
ルミークアン南麻布の現在募集中のお部屋
- No rooms found for this property.






























