
| 賃料 | 予想金額:114,000〜134,000円程度 | 管理費 | 予想金額:8,000〜12,000円程度 |
| 礼金/敷金 | 非公開(アーカイブ) | 平米数 | 25.07㎡ |
| 初期費用概算(参考) | 目安:408,220〜508,220 円 | みなし賃料(月額・参考) | 130,963〜150,963 円 |
| 備考 | 本ページは過去募集のアーカイブです。表示の金額は周辺相場・過去募集を踏まえた参考レンジであり、実際の契約金額・条件ではありません。 | ||
※上記みなし賃料(月額)は仲介手数料割引・無料&キャッシュバックを加味した高級賃貸バイブル限定の金額です。一般的なみなし賃料とは異なります。
【建物ページ】パークキューブ西新宿の詳細・最新空室はこちら▶▶選ばれる理由
仲介手数料無料・キャンペーン情報(毎月15名様限定)
〇引っ越しお祝い金27280円プレゼント(キャッシュバック)
〇仲介手数料無料キャンペーン
パークキューブ西新宿 703の口コミ・レビュー
パークキューブ西新宿 703。このコンセプトは、まるで洗練された都市の中に一輪の花が咲いているかのようです。東京都新宿区北新宿1-2-6に佇むこの物件は、南向きの窓から注ぎ込む心地よい陽射しに包まれ、まるで朝のコーヒーの香りが漂うキッチンで目を覚ます瞬間を待ちわびているかのようです。
想像してみてください。ある朝、カーテンを開けると、心の底から安らぎを与える青空と共に、新宿の街の活気が広がります…パークキューブ西新宿 703。このコンセプトは、まるで洗練された都市の中に一輪の花が咲いているかのようです。東京都新宿区北新宿1-2-6に佇むこの物件は、南向きの窓から注ぎ込む心地よい陽射しに包まれ、まるで朝のコーヒーの香りが漂うキッチンで目を覚ます瞬間を待ちわびているかのようです。
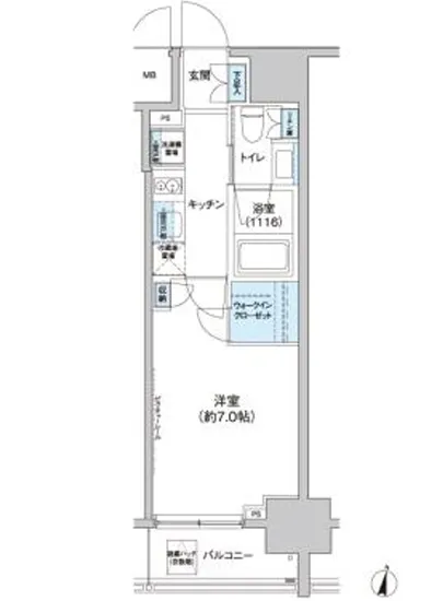
想像してみてください。ある朝、カーテンを開けると、心の底から安らぎを与える青空と共に、新宿の街の活気が広がります。パークキューブ西新宿 703は、その小さな空間の中に、広がりと可能性を秘めた世界を通り抜ける扉となります。25.07㎡の専有面積には、無限のストーリーが詰まっています。あなたが朝食を楽しむキッチン、友人たちと語らうリビング、そしてくつろぎの時間を過ごす洋室7帖は、まさにあなたの生活の舞台です。
この1Kの生活は、まさに都会的な夢を実現するためのキャンバス。エレガントなデザインの中に、TVモニターホンやオートロックといった先進的な設備が調和し、安心感をもたらします。まるで、あなたを守るために存在する忠実な仲間のように。宅配ボックスは、日々の小さな喜びを届ける使者のようです。管理人の存在は、あなたの日常に温かさを加え、何気ない瞬間に笑顔を添えてくれます。
パークキューブ西新宿 703のすぐそばには、歴史ある新宿の文化が息づいています。かつてこの地には、多くの文学者やアーティストが集い、彼らの心を打った風景が広がっていました。あなたもこの地で、新たな物語を紡ぐ一歩を踏み出せば、自然とその芸術の一部となることでしょう。周囲のカフェやギャラリーに足を運べば、五感が刺激される体験が待っています。コーヒーの濃厚な香り、画布に触れる瞬間のざわめき、アートに囲まれた時間は、まるで映画のワンシーンのように美しい思い出となることでしょう。
最寄駅のJR中央線 大久保駅から徒歩4分という立地は、あなたにとってビジネスや趣味の拠点となります。朝の通勤や休日の散策も、心の中で新しい物語を描く旅の始まりです。パークキューブ西新宿 703では、ただ住むのでなく、まるで人生の舞台に立つような感覚を味わえます。
どうぞ、この素晴らしい生活の一部になって、パークキューブ西新宿 703の住人として新たな物語を紡いでください。ここには、心を満たす空間と感動が待っています。あなたの未来を、この場所で輝かせてほしいと、マンションが静かに語りかけているかのようです。
想像してみてください。ある朝、カーテンを開けると、心の底から安らぎを与える青空と共に、新宿の街の活気が広がります…パークキューブ西新宿 703。このコンセプトは、まるで洗練された都市の中に一輪の花が咲いているかのようです。東京都新宿区北新宿1-2-6に佇むこの物件は、南向きの窓から注ぎ込む心地よい陽射しに包まれ、まるで朝のコーヒーの香りが漂うキッチンで目を覚ます瞬間を待ちわびているかのようです。
想像してみてください。ある朝、カーテンを開けると、心の底から安らぎを与える青空と共に、新宿の街の活気が広がります。パークキューブ西新宿 703は、その小さな空間の中に、広がりと可能性を秘めた世界を通り抜ける扉となります。25.07㎡の専有面積には、無限のストーリーが詰まっています。あなたが朝食を楽しむキッチン、友人たちと語らうリビング、そしてくつろぎの時間を過ごす洋室7帖は、まさにあなたの生活の舞台です。
この1Kの生活は、まさに都会的な夢を実現するためのキャンバス。エレガントなデザインの中に、TVモニターホンやオートロックといった先進的な設備が調和し、安心感をもたらします。まるで、あなたを守るために存在する忠実な仲間のように。宅配ボックスは、日々の小さな喜びを届ける使者のようです。管理人の存在は、あなたの日常に温かさを加え、何気ない瞬間に笑顔を添えてくれます。
パークキューブ西新宿 703のすぐそばには、歴史ある新宿の文化が息づいています。かつてこの地には、多くの文学者やアーティストが集い、彼らの心を打った風景が広がっていました。あなたもこの地で、新たな物語を紡ぐ一歩を踏み出せば、自然とその芸術の一部となることでしょう。周囲のカフェやギャラリーに足を運べば、五感が刺激される体験が待っています。コーヒーの濃厚な香り、画布に触れる瞬間のざわめき、アートに囲まれた時間は、まるで映画のワンシーンのように美しい思い出となることでしょう。
最寄駅のJR中央線 大久保駅から徒歩4分という立地は、あなたにとってビジネスや趣味の拠点となります。朝の通勤や休日の散策も、心の中で新しい物語を描く旅の始まりです。パークキューブ西新宿 703では、ただ住むのでなく、まるで人生の舞台に立つような感覚を味わえます。
どうぞ、この素晴らしい生活の一部になって、パークキューブ西新宿 703の住人として新たな物語を紡いでください。ここには、心を満たす空間と感動が待っています。あなたの未来を、この場所で輝かせてほしいと、マンションが静かに語りかけているかのようです。
バイブルスコア
バイブルスコア: 26.5
平均的なスコアです。
※バイブルスコア詳細はこちら
バイブルスコアとは独自のAI機械学習技術を利用した物件評価システムで、物件のおすすめ度を示します。最高得点は100点で、スコアが高いほど、よりおすすめの物件と評価されています。
写真
契約条件
| 賃料 | 予想金額:114,000〜134,000円程度 | 管理費 | 予想金額:8,000〜12,000円程度 |
| 礼金 | 非公開(アーカイブ) | 敷金 | 非公開(アーカイブ) |
| フリーレント | なし | 平米数 | 25.07㎡ |
| 間取り | 1K | 大型収納 | WIC |
| 契約期間 |
| 方角 | 南 |
| 更新料 | 契約形態 | 普通賃貸借契約 | |
| 取引態様 | 媒介 | 内見状況 | 入居中 |
| 入居時期 | 入居中 | SOHO・事務所 | |
| ペット | 間取り内訳 | 洋:7 | |
| キャンペーン情報・備考 | 本情報は賃料改定交渉の資料作成、収益物件の利回り試算、周辺エリアや最寄り駅の坪単価分析、次回募集開始時期の予測などにご活用いただけます。 | ||
※「どの不動産に頼めばいいのか分からない」「信頼できる営業マンの話を聞きたい」「一番親切な会社と契約したい」とお悩みの方におすすめなのが「高級賃貸バイブル」です。
高級賃貸バイブルは業界10年以上の熟練スタッフ群がお客様ファーストで対応します。
下記ボタンから、まずは無料でご相談下さい。
※内覧をご希望の際には、どうぞ物件のエントランス前にてお待ち合わせくださいませ。ご内覧後は、同じ場所でお別れとさせていただきます。お客様のご都合に合わせたスムーズなご案内を心がけておりますので、ご質問等がございましたら何なりとお申し付けください。 物件概要
| 物件名 |
| 築年月 |
|
|---|---|---|---|
| 所在地 | |||
| 交通 | |||
| 総戸数 |
| 総階数 |
|
| 構造 |
| ||
地図
物件までの道のりは、「拡大地図を表示」をクリックしてナビ機能をご利用ください。
部屋設備















建物設備

TVモニターホン

エレベーター

オートロック

バイク置場

宅配ボックス

敷地内ゴミ置場

管理人

駐輪場
パークキューブ西新宿の現在募集中のお部屋
- パークキューブ西新宿 1201 - 間取り: 1K - 賃料: 15.2万円
- パークキューブ西新宿 1303 - 間取り: 2LDK - 賃料: 24万円


















