
| 賃料 | 予想金額:290,000〜310,000円程度 | 管理費 | 予想金額:18,000〜22,000円程度 |
| 礼金/敷金 | 非公開(アーカイブ) | 平米数 | 104.54㎡ |
| 初期費用概算(参考) | 目安:1,421,500〜1,521,500 円 | みなし賃料(月額・参考) | 334,406〜354,406 円 |
| 備考 | 本ページは過去募集のアーカイブです。表示の金額は周辺相場・過去募集を踏まえた参考レンジであり、実際の契約金額・条件ではありません。 | ||
※上記みなし賃料(月額)は仲介手数料割引・無料&キャッシュバックを加味した高級賃貸バイブル限定の金額です。一般的なみなし賃料とは異なります。
【建物ページ】プライムアーバン東中野コートの詳細・最新空室はこちら▶▶選ばれる理由
仲介手数料無料・キャンペーン情報(毎月15名様限定)
〇仲介手数料割引キャンペーン
プライムアーバン東中野コート 709の口コミ・レビュー
プライムアーバン東中野コート 709は、まるで洗練されたアートピースのように、東京都新宿区北新宿4-9-12に静かに佇んでいます。あなたがこの扉を開ける瞬間、日常的な生活が詩的な物語へと姿を変えるのです。南西向きに位置したこの物件は、光のグラデーションが織り成す心地よいハーモニーで、朝の訪れを祝福するように、柔らかな陽光が室内を優しく包み込みます。
104.54㎡の広大な空間は、あなたの生活を心…プライムアーバン東中野コート 709は、まるで洗練されたアートピースのように、東京都新宿区北新宿4-9-12に静かに佇んでいます。あなたがこの扉を開ける瞬間、日常的な生活が詩的な物語へと姿を変えるのです。南西向きに位置したこの物件は、光のグラデーションが織り成す心地よいハーモニーで、朝の訪れを祝福するように、柔らかな陽光が室内を優しく包み込みます。
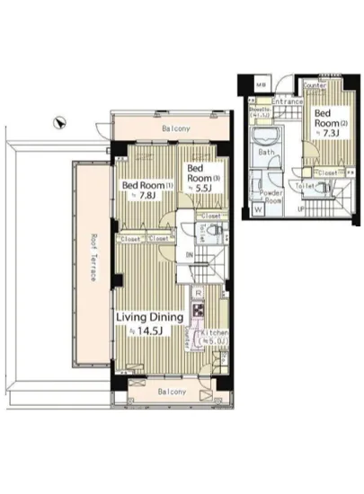
104.54㎡の広大な空間は、あなたの生活を心の底から豊かにするためのキャンバスです。LDK14.5帖は、まるで夢の舞台のように広がり、友人や家族が集まる時には笑い声と共に心温まる瞬間を創造します。キッチンK5帖は、シェフのようなあなたが自らの料理の腕を振るい、香ばしい匂いが食卓を囲む人々に披露される場となるでしょう。洋室7.8帖、7.3帖、5.5帖はそれぞれ、個性豊かな空間に仕立て上げることができ、心の安らぎを探し求めるあなたのためのリトリートとなります。
プライムアーバン東中野コート 709では、24時間管理の安心感があり、TVモニターホンやオートロックが、まるで優雅な門番のようにあなたのプライバシーを守ります。また、エレベーターで静かに上がるその瞬間、近隣の美しい緑と風の音が心地よく耳に響き渡ります。宅配ボックスや駐輪場、さらにバイク置場まで完備されており、利便性と心地よさが見事に共存しているのです。
この物件から徒歩8分足らずの距離には、東中野駅があり、都内の喧騒からほんの少し離れた安心感を提供します。周囲には歴史的な背景や文化が息づいており、さまざまなアートスペースやカフェが点在し、日常の中にちょっとした非日常を縫い込むことでしょう。
プライムアーバン東中野コート 709での生活は、まるで映画のワンシーンのように演出され、朝の新鮮な空気を感じながら、窓から差し込む光に包まれて一日を始めることができます。そして、夜が訪れると、温かい光に包まれたこの空間は、まるで家族が集う温もりのある家として、あなたを迎え入れます。ここでは、あなたの心が豊かに、そして自由に踊りだすことでしょう。
プライムアーバン東中野コート 709は、単なる住まいではなく、あなたの人生の新たな章を紡ぐための場所です。その快適さと美しさが、長い時間をかけて育まれた価値を感じさせるでしょう。心に響く五感の体験を通じて、ここでの生活があなたにとって特別なものになることを約束します。さあ、この新しい物語を始めてみませんか。
104.54㎡の広大な空間は、あなたの生活を心…プライムアーバン東中野コート 709は、まるで洗練されたアートピースのように、東京都新宿区北新宿4-9-12に静かに佇んでいます。あなたがこの扉を開ける瞬間、日常的な生活が詩的な物語へと姿を変えるのです。南西向きに位置したこの物件は、光のグラデーションが織り成す心地よいハーモニーで、朝の訪れを祝福するように、柔らかな陽光が室内を優しく包み込みます。
104.54㎡の広大な空間は、あなたの生活を心の底から豊かにするためのキャンバスです。LDK14.5帖は、まるで夢の舞台のように広がり、友人や家族が集まる時には笑い声と共に心温まる瞬間を創造します。キッチンK5帖は、シェフのようなあなたが自らの料理の腕を振るい、香ばしい匂いが食卓を囲む人々に披露される場となるでしょう。洋室7.8帖、7.3帖、5.5帖はそれぞれ、個性豊かな空間に仕立て上げることができ、心の安らぎを探し求めるあなたのためのリトリートとなります。
プライムアーバン東中野コート 709では、24時間管理の安心感があり、TVモニターホンやオートロックが、まるで優雅な門番のようにあなたのプライバシーを守ります。また、エレベーターで静かに上がるその瞬間、近隣の美しい緑と風の音が心地よく耳に響き渡ります。宅配ボックスや駐輪場、さらにバイク置場まで完備されており、利便性と心地よさが見事に共存しているのです。
この物件から徒歩8分足らずの距離には、東中野駅があり、都内の喧騒からほんの少し離れた安心感を提供します。周囲には歴史的な背景や文化が息づいており、さまざまなアートスペースやカフェが点在し、日常の中にちょっとした非日常を縫い込むことでしょう。
プライムアーバン東中野コート 709での生活は、まるで映画のワンシーンのように演出され、朝の新鮮な空気を感じながら、窓から差し込む光に包まれて一日を始めることができます。そして、夜が訪れると、温かい光に包まれたこの空間は、まるで家族が集う温もりのある家として、あなたを迎え入れます。ここでは、あなたの心が豊かに、そして自由に踊りだすことでしょう。
プライムアーバン東中野コート 709は、単なる住まいではなく、あなたの人生の新たな章を紡ぐための場所です。その快適さと美しさが、長い時間をかけて育まれた価値を感じさせるでしょう。心に響く五感の体験を通じて、ここでの生活があなたにとって特別なものになることを約束します。さあ、この新しい物語を始めてみませんか。
バイブルスコア
バイブルスコア: 58.4
条件のいい物件です、引っ越しが2か月以内の場合は仮申し込みを検討すべき物件です。
このお部屋は、現在ご入居中のため空室情報はございません。ただし、将来的に募集が開始される際、バイブルスコアにおいて非常に高い評価が期待されます。特にご興味をお持ちの方は、今のうちにブックマークやお気に入りに登録していただくと、募集開始のお知らせをすぐに受け取ることができます。是非ともご検討くださいませ。
※バイブルスコア詳細はこちら
バイブルスコアとは独自のAI機械学習技術を利用した物件評価システムで、物件のおすすめ度を示します。最高得点は100点で、スコアが高いほど、よりおすすめの物件と評価されています。
写真
契約条件
| 賃料 | 予想金額:290,000〜310,000円程度 | 管理費 | 予想金額:18,000〜22,000円程度 |
| 礼金 | 非公開(アーカイブ) | 敷金 | 非公開(アーカイブ) |
| フリーレント | なし | 平米数 | 104.54㎡ |
| 間取り | 3LDK | 大型収納 | SIC |
| 契約期間 |
| 方角 | 南西 |
| 更新料 | 契約形態 | 普通賃貸借契約 | |
| 取引態様 | 媒介 | 内見状況 | 入居中 |
| 入居時期 | 入居中 | SOHO・事務所 | |
| ペット | 間取り内訳 | 洋:7.8 洋:7.3 洋:5.5 LD:14.5 K:5 | |
| キャンペーン情報・備考 | 本情報は賃料改定交渉の資料作成、収益物件の利回り試算、周辺エリアや最寄り駅の坪単価分析、次回募集開始時期の予測などにご活用いただけます。 | ||
※「どの不動産に頼めばいいのか分からない」「信頼できる営業マンの話を聞きたい」「一番親切な会社と契約したい」とお悩みの方におすすめなのが「高級賃貸バイブル」です。
高級賃貸バイブルは業界10年以上の熟練スタッフ群がお客様ファーストで対応します。
下記ボタンから、まずは無料でご相談下さい。
※内覧をご希望の際には、どうぞ物件のエントランス前にてお待ち合わせくださいませ。ご内覧後は、同じ場所でお別れとさせていただきます。お客様のご都合に合わせたスムーズなご案内を心がけておりますので、ご質問等がございましたら何なりとお申し付けください。 物件概要
| 物件名 |
| 築年月 |
|
|---|---|---|---|
| 所在地 | |||
| 交通 | |||
| 総戸数 |
| 総階数 |
|
| 構造 |
| ||
地図
物件までの道のりは、「拡大地図を表示」をクリックしてナビ機能をご利用ください。
部屋設備




















建物設備

24時間管理

TVモニターホン

エレベーター

オートロック

バイク置場

宅配ボックス

敷地内ゴミ置場

管理人

駐車場平置き

駐車場機械式

駐輪場
プライムアーバン東中野コートの現在募集中のお部屋
- PRIME URBAN 東中野 COURT 109 - 間取り: 2LDK+WIC - 賃料: 30.7万円
- PRIME URBAN 東中野 COURT 207 - 間取り: 1LDK - 賃料: 20.5万円
- PRIME URBAN 東中野 COURT 102 - 間取り: 1LDK+SIC - 賃料: 19.8万円
- PRIME URBAN 東中野 COURT 210 - 間取り: 1LDK+SIC - 賃料: 19.8万円
- PRIME URBAN 東中野 COURT 311 - 間取り: 1LDK+SIC - 賃料: 20.5万円























