
| 賃料 | 予想金額:229,000〜249,000円程度 | 管理費 | 予想金額:13,000〜17,000円程度 |
| 礼金/敷金 | 非公開(アーカイブ) | 平米数 | 60.03㎡ |
| 初期費用概算(参考) | 目安:548,662〜648,662 円 | みなし賃料(月額・参考) | 251,493〜271,493 円 |
| 備考 | 本ページは過去募集のアーカイブです。表示の金額は周辺相場・過去募集を踏まえた参考レンジであり、実際の契約金額・条件ではありません。 | ||
※上記みなし賃料(月額)は仲介手数料割引・無料&キャッシュバックを加味した高級賃貸バイブル限定の金額です。一般的なみなし賃料とは異なります。
【建物ページ】JP noie 小石川富坂の詳細・最新空室はこちら▶▶選ばれる理由
仲介手数料無料・キャンペーン情報(毎月15名様限定)
〇引っ越しお祝い金57838円プレゼント(キャッシュバック)
〇仲介手数料無料キャンペーン
JP noie 小石川富坂 1502の口コミ・レビュー
JP noie 小石川富坂 1502。あなたの人生に新たな章を刻むための舞台は、ここに存在します。東京都文京区小石川2-11-15に佇むこの高級賃貸物件は、まるで洗練されたクラシック音楽の一曲のように、心を魅了してやまない空間を提供しています。静謐な南西の方角から差し込む光は、優雅な日々を約束し、訪れるたびに新しい発見をもたらしてくれることでしょう。
JP noie 小石川富坂 1502では、6…JP noie 小石川富坂 1502。あなたの人生に新たな章を刻むための舞台は、ここに存在します。東京都文京区小石川2-11-15に佇むこの高級賃貸物件は、まるで洗練されたクラシック音楽の一曲のように、心を魅了してやまない空間を提供しています。静謐な南西の方角から差し込む光は、優雅な日々を約束し、訪れるたびに新しい発見をもたらしてくれることでしょう。
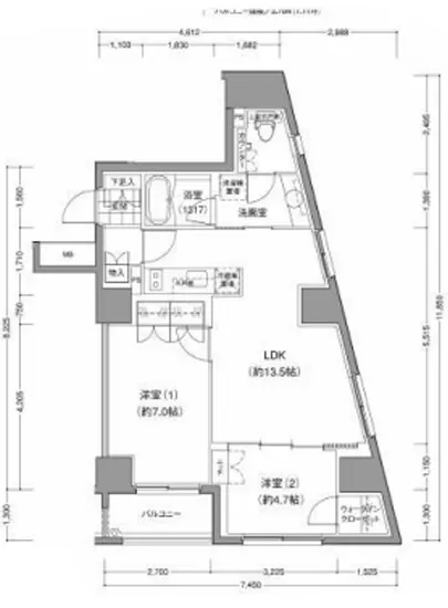
JP noie 小石川富坂 1502では、60.03㎡の広さが、まるで優雅な舞踏会の会場のように、あなたを迎え入れます。13.5帖のLDKには、家族や友人との会話が弾む、心地よい空気が漂い、そこからは柔らかな光が舞い降り、温もりを感じる瞬間へと導いてくれます。7帖と4.7帖の洋室は、それぞれが個性豊かな空間を作り出し、あなただけのアトリエやリトリートとしての役割を果たすことでしょう。
想像してみてください。朝の光が優しくその窓をつたって、あなたの大切な一日の始まりを知らせる瞬間。アロマが漂うキッチンで、香ばしいコーヒーを淹れ、味わいゆっくりとした朝を楽しむ姿は、まるで映画のワンシーンのようです。そこには、デザイナーズの美しさが映え、TVモニターホンがあなたの訪問者を優しく迎え入れ、安心感を与えてくれるでしょう。
また、24時間管理の心強さは、まるで忠実な執事のように、あなたの生活をサポートします。そして、エレベーターやオートロックといった設備が、快適さと安全を両立させ、あなたの日常に潤いを与えるのです。更に、駐車場やバイク置場、宅配ボックスなどの便利な施設が整っているため、忙しい毎日でもストレスを感じることはありません。
周辺には、悠久の時を経て受け継がれてきた歴史が息づき、アートと文化が息を合わせています。文京区の魅力的な街並みを散策しながら、歴史的建造物や美術館を巡る贅沢な散歩を楽しんでください。あなたの生活が、まるで一つの美しいストーリーのように、日々新たな色を添えていく様子が目に浮かびます。
JP noie 小石川富坂 1502は、ただの住まいではなく、あなたの人生を豊かにするための特別な舞台です。この場所での生活は、あなたを新たな高みへと導いてくれることでしょう。ここに住むことは、まるで人生の喜びを再発見する旅の始まりのようです。さあ、この新しい旅に一歩踏み出してみませんか?あなたの心が躍る場所、JP noie 小石川富坂 1502で、素晴らしい日々が待っています。
JP noie 小石川富坂 1502では、6…JP noie 小石川富坂 1502。あなたの人生に新たな章を刻むための舞台は、ここに存在します。東京都文京区小石川2-11-15に佇むこの高級賃貸物件は、まるで洗練されたクラシック音楽の一曲のように、心を魅了してやまない空間を提供しています。静謐な南西の方角から差し込む光は、優雅な日々を約束し、訪れるたびに新しい発見をもたらしてくれることでしょう。
JP noie 小石川富坂 1502では、60.03㎡の広さが、まるで優雅な舞踏会の会場のように、あなたを迎え入れます。13.5帖のLDKには、家族や友人との会話が弾む、心地よい空気が漂い、そこからは柔らかな光が舞い降り、温もりを感じる瞬間へと導いてくれます。7帖と4.7帖の洋室は、それぞれが個性豊かな空間を作り出し、あなただけのアトリエやリトリートとしての役割を果たすことでしょう。
想像してみてください。朝の光が優しくその窓をつたって、あなたの大切な一日の始まりを知らせる瞬間。アロマが漂うキッチンで、香ばしいコーヒーを淹れ、味わいゆっくりとした朝を楽しむ姿は、まるで映画のワンシーンのようです。そこには、デザイナーズの美しさが映え、TVモニターホンがあなたの訪問者を優しく迎え入れ、安心感を与えてくれるでしょう。
また、24時間管理の心強さは、まるで忠実な執事のように、あなたの生活をサポートします。そして、エレベーターやオートロックといった設備が、快適さと安全を両立させ、あなたの日常に潤いを与えるのです。更に、駐車場やバイク置場、宅配ボックスなどの便利な施設が整っているため、忙しい毎日でもストレスを感じることはありません。
周辺には、悠久の時を経て受け継がれてきた歴史が息づき、アートと文化が息を合わせています。文京区の魅力的な街並みを散策しながら、歴史的建造物や美術館を巡る贅沢な散歩を楽しんでください。あなたの生活が、まるで一つの美しいストーリーのように、日々新たな色を添えていく様子が目に浮かびます。
JP noie 小石川富坂 1502は、ただの住まいではなく、あなたの人生を豊かにするための特別な舞台です。この場所での生活は、あなたを新たな高みへと導いてくれることでしょう。ここに住むことは、まるで人生の喜びを再発見する旅の始まりのようです。さあ、この新しい旅に一歩踏み出してみませんか?あなたの心が躍る場所、JP noie 小石川富坂 1502で、素晴らしい日々が待っています。
バイブルスコア
バイブルスコア: 19.8
高級な物件でない場合は割高な物件です。。
※バイブルスコア詳細はこちら
バイブルスコアとは独自のAI機械学習技術を利用した物件評価システムで、物件のおすすめ度を示します。最高得点は100点で、スコアが高いほど、よりおすすめの物件と評価されています。
写真
契約条件
| 賃料 | 予想金額:229,000〜249,000円程度 | 管理費 | 予想金額:13,000〜17,000円程度 |
| 礼金 | 非公開(アーカイブ) | 敷金 | 非公開(アーカイブ) |
| フリーレント | なし | 平米数 | 60.03㎡ |
| 間取り | 2LDK | 大型収納 | WIC |
| 契約期間 |
| 方角 | 南西 |
| 更新料 | 契約形態 | 普通賃貸借契約 | |
| 取引態様 | 媒介 | 内見状況 | 入居中 |
| 入居時期 | 入居中 | SOHO・事務所 | |
| ペット | ペット可 | 間取り内訳 | 洋:7 洋:4.7 LDK:13.5 |
| キャンペーン情報・備考 | 本情報は賃料改定交渉の資料作成、収益物件の利回り試算、周辺エリアや最寄り駅の坪単価分析、次回募集開始時期の予測などにご活用いただけます。 | ||
※「どの不動産に頼めばいいのか分からない」「信頼できる営業マンの話を聞きたい」「一番親切な会社と契約したい」とお悩みの方におすすめなのが「高級賃貸バイブル」です。
高級賃貸バイブルは業界10年以上の熟練スタッフ群がお客様ファーストで対応します。
下記ボタンから、まずは無料でご相談下さい。
※内覧をご希望の際には、どうぞ物件のエントランス前にてお待ち合わせくださいませ。ご内覧後は、同じ場所でお別れとさせていただきます。お客様のご都合に合わせたスムーズなご案内を心がけておりますので、ご質問等がございましたら何なりとお申し付けください。 物件概要
| 物件名 |
| 築年月 |
|
|---|---|---|---|
| 所在地 | |||
| 交通 | |||
| 総戸数 |
| 総階数 |
|
| 構造 |
| ||
地図
物件までの道のりは、「拡大地図を表示」をクリックしてナビ機能をご利用ください。
部屋設備
















建物設備

24時間管理

TVモニターホン

エレベーター

オートロック

バイク置場

宅配ボックス

敷地内ゴミ置場

管理人

駐車場平置き

駐車場機械式

駐輪場
JP noie 小石川富坂の現在募集中のお部屋
- JP noie 小石川富坂 1401 - 間取り: 1LDK+WIC - 賃料: 22.3万円








