
| 賃料 | 予想金額:198,000〜218,000円程度 | 管理費 | 予想金額:13,000〜17,000円程度 |
| 礼金/敷金 | 非公開(アーカイブ) | 平米数 | 50.45㎡ |
| 初期費用概算(参考) | 目安:483,240〜583,240 円 | みなし賃料(月額・参考) | 219,776〜239,776 円 |
| 備考 | 本ページは過去募集のアーカイブです。表示の金額は周辺相場・過去募集を踏まえた参考レンジであり、実際の契約金額・条件ではありません。 | ||
※上記みなし賃料(月額)は仲介手数料割引・無料&キャッシュバックを加味した高級賃貸バイブル限定の金額です。一般的なみなし賃料とは異なります。
【建物ページ】JP noie 小石川富坂の詳細・最新空室はこちら▶▶選ばれる理由
仲介手数料無料・キャンペーン情報(毎月15名様限定)
〇引っ越しお祝い金45760円プレゼント(キャッシュバック)
〇仲介手数料無料キャンペーン
JP noie 小石川富坂 1101の口コミ・レビュー
JP noie 小石川富坂 1101。この名を耳にした瞬間、あなたの心の奥深くに新たな物語が芽生えることでしょう。東京都文京区小石川2-11-15という恵まれた場所に佇むこの高級賃貸物件は、まるで一篇の詩のように、あなたの生活を彩るための最高の舞台を提供します。南西と北西の二方角から降り注ぐ柔らかな陽射しは、あなたの日々を暖かく照らし、心地よい風のさざめきが耳に届くことでしょう。
この美しい住ま…JP noie 小石川富坂 1101。この名を耳にした瞬間、あなたの心の奥深くに新たな物語が芽生えることでしょう。東京都文京区小石川2-11-15という恵まれた場所に佇むこの高級賃貸物件は、まるで一篇の詩のように、あなたの生活を彩るための最高の舞台を提供します。南西と北西の二方角から降り注ぐ柔らかな陽射しは、あなたの日々を暖かく照らし、心地よい風のさざめきが耳に届くことでしょう。
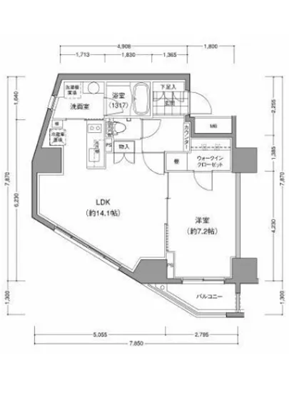
この美しい住まいは、あなたの足を引き寄せ、心を解きほぐす、まるで優雅な舞踏会の招待状のようです。専有面積50.45㎡の空間は、あなたを包み込む優れたデザインと機能性を兼ね備えています。図面の上で踊るかのように配置された、7.2帖の洋室と14.1帖のLDKが、あなたの生活に豊かな広がりを与えます。LDKでは、幸せを形作る料理の香りが漂い、家族や友人との笑い声が、いつまでも響き渡ることを想像してください。その瞬間、あなたの心は、まるでこの世のすべての美しい瞬間を切り取った映画の一コマのように感じられることでしょう。
JP noie 小石川富坂 1101のエレベーターによって、あなたの日常の動きは軽やかに、そしてスムーズに。24時間管理されるこの空間は、あなたのプライバシーと安心感を何よりも大切に扱います。TVモニターホンは、まるであなたの守護天使のように不審者をシャットアウトし、オートロックは生命の営みを守る堅固な鉄壁となります。
この物件は、ただの住まいではなく、まるでそのものが語りかけてくるかのようです。デザイナーズの美しさと、宅配ボックス、駐車場の便利さ、バイク置場まで完備されたこのお住まいは、あなたの日々を豊かにするために誕生しました。周囲には歴史ある文化と、洗練された芸術の香りが漂い、あなたを引き込む魅力が溢れています。東京メトロ丸ノ内線の後楽園駅へは徒歩6分という立地は、まさに生活の舞台裏に相応しい環境です。
JP noie 小石川富坂 1101は、ただ住まうだけでなく、人生そのものを楽しむための拠点となるでしょう。美しい南西の風景を眺めながら、優雅なティータイムを過ごし、夕暮れの北西の空に映える赤やオレンジの色合いを楽しむ—そのすべてが、あなたの心に鮮やかな彩りを与えます。
さあ、この特別な空間に飛び込んで、自身の物語を綴ってみてはいかがでしょうか。JP noie 小石川富坂 1101で、あなたの新しい生活が始まるのです。どこまでも自由で、無限の可能性を秘めたこの場所で、素敵な瞬間を紡いでいきましょう。あなたの心が躍るその時を、ここで迎え入れてください。
この美しい住ま…JP noie 小石川富坂 1101。この名を耳にした瞬間、あなたの心の奥深くに新たな物語が芽生えることでしょう。東京都文京区小石川2-11-15という恵まれた場所に佇むこの高級賃貸物件は、まるで一篇の詩のように、あなたの生活を彩るための最高の舞台を提供します。南西と北西の二方角から降り注ぐ柔らかな陽射しは、あなたの日々を暖かく照らし、心地よい風のさざめきが耳に届くことでしょう。
この美しい住まいは、あなたの足を引き寄せ、心を解きほぐす、まるで優雅な舞踏会の招待状のようです。専有面積50.45㎡の空間は、あなたを包み込む優れたデザインと機能性を兼ね備えています。図面の上で踊るかのように配置された、7.2帖の洋室と14.1帖のLDKが、あなたの生活に豊かな広がりを与えます。LDKでは、幸せを形作る料理の香りが漂い、家族や友人との笑い声が、いつまでも響き渡ることを想像してください。その瞬間、あなたの心は、まるでこの世のすべての美しい瞬間を切り取った映画の一コマのように感じられることでしょう。
JP noie 小石川富坂 1101のエレベーターによって、あなたの日常の動きは軽やかに、そしてスムーズに。24時間管理されるこの空間は、あなたのプライバシーと安心感を何よりも大切に扱います。TVモニターホンは、まるであなたの守護天使のように不審者をシャットアウトし、オートロックは生命の営みを守る堅固な鉄壁となります。
この物件は、ただの住まいではなく、まるでそのものが語りかけてくるかのようです。デザイナーズの美しさと、宅配ボックス、駐車場の便利さ、バイク置場まで完備されたこのお住まいは、あなたの日々を豊かにするために誕生しました。周囲には歴史ある文化と、洗練された芸術の香りが漂い、あなたを引き込む魅力が溢れています。東京メトロ丸ノ内線の後楽園駅へは徒歩6分という立地は、まさに生活の舞台裏に相応しい環境です。
JP noie 小石川富坂 1101は、ただ住まうだけでなく、人生そのものを楽しむための拠点となるでしょう。美しい南西の風景を眺めながら、優雅なティータイムを過ごし、夕暮れの北西の空に映える赤やオレンジの色合いを楽しむ—そのすべてが、あなたの心に鮮やかな彩りを与えます。
さあ、この特別な空間に飛び込んで、自身の物語を綴ってみてはいかがでしょうか。JP noie 小石川富坂 1101で、あなたの新しい生活が始まるのです。どこまでも自由で、無限の可能性を秘めたこの場所で、素敵な瞬間を紡いでいきましょう。あなたの心が躍るその時を、ここで迎え入れてください。
バイブルスコア
バイブルスコア: 28.7
平均的なスコアです。
※バイブルスコア詳細はこちら
バイブルスコアとは独自のAI機械学習技術を利用した物件評価システムで、物件のおすすめ度を示します。最高得点は100点で、スコアが高いほど、よりおすすめの物件と評価されています。
写真
契約条件
| 賃料 | 予想金額:198,000〜218,000円程度 | 管理費 | 予想金額:13,000〜17,000円程度 |
| 礼金 | 非公開(アーカイブ) | 敷金 | 非公開(アーカイブ) |
| フリーレント | なし | 平米数 | 50.45㎡ |
| 間取り | 1LDK | 大型収納 | WIC |
| 契約期間 | 2年 | 方角 | 南西 / 北西 |
| 更新料 | 1ヶ月 | 契約形態 | 普通賃貸借契約 |
| 取引態様 | 媒介 | 内見状況 | 入居中 |
| 入居時期 | 入居中 | SOHO・事務所 | 不可 |
| ペット | ペット可 | 間取り内訳 | 洋:7.2 LDK:14.1 |
| キャンペーン情報・備考 | 本情報は賃料改定交渉の資料作成、収益物件の利回り試算、周辺エリアや最寄り駅の坪単価分析、次回募集開始時期の予測などにご活用いただけます。 | ||
※「どの不動産に頼めばいいのか分からない」「信頼できる営業マンの話を聞きたい」「一番親切な会社と契約したい」とお悩みの方におすすめなのが「高級賃貸バイブル」です。
高級賃貸バイブルは業界10年以上の熟練スタッフ群がお客様ファーストで対応します。
下記ボタンから、まずは無料でご相談下さい。
※内覧をご希望の際には、どうぞ物件のエントランス前にてお待ち合わせくださいませ。ご内覧後は、同じ場所でお別れとさせていただきます。お客様のご都合に合わせたスムーズなご案内を心がけておりますので、ご質問等がございましたら何なりとお申し付けください。 物件概要
| 物件名 |
| 築年月 |
|
|---|---|---|---|
| 所在地 | |||
| 交通 | |||
| 総戸数 |
| 総階数 |
|
| 構造 |
| ||
地図
物件までの道のりは、「拡大地図を表示」をクリックしてナビ機能をご利用ください。
部屋設備
















建物設備

24時間管理

TVモニターホン

エレベーター

オートロック

バイク置場

宅配ボックス

敷地内ゴミ置場

管理人

駐車場平置き

駐車場機械式

駐輪場
JP noie 小石川富坂の現在募集中のお部屋
- JP noie 小石川富坂 1401 - 間取り: 1LDK+WIC - 賃料: 22.3万円








