
| 賃料 | 予想金額:370,000〜390,000円程度 | 管理費 | 予想金額:18,000〜22,000円程度 |
| 礼金/敷金 | 非公開(アーカイブ) | 平米数 | 72.12㎡ |
| 初期費用概算(参考) | 目安:1,262,900〜1,362,900 円 | みなし賃料(月額・参考) | 409,435〜429,435 円 |
| 備考 | 本ページは過去募集のアーカイブです。表示の金額は周辺相場・過去募集を踏まえた参考レンジであり、実際の契約金額・条件ではありません。 | ||
※上記みなし賃料(月額)は仲介手数料割引・無料&キャッシュバックを加味した高級賃貸バイブル限定の金額です。一般的なみなし賃料とは異なります。
【建物ページ】パークスフィア牛込神楽坂の詳細・最新空室はこちら▶▶選ばれる理由
仲介手数料無料・キャンペーン情報(毎月15名様限定)
〇引っ越しお祝い金83600円プレゼント(キャッシュバック)
〇仲介手数料無料キャンペーン
パークスフィア牛込神楽坂 404の口コミ・レビュー
パークスフィア牛込神楽坂 404、これは単なる住所ではなく、人生の新たな舞台が広がる物語の入口です。東京都新宿区南山伏町3-3にそびえ立つこの素晴らしい住まいは、あなたを西の優雅な夕景と共に迎え入れます。404号室のドアを開けた瞬間、日常と非日常の境界が溶ける感覚を覚えることでしょう。
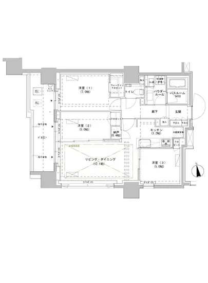
この物件は、72.12㎡の広々とした空間を誇ります。3LDKの間取りは、まるで心の平穏を求める冒険者に提供され…パークスフィア牛込神楽坂 404、これは単なる住所ではなく、人生の新たな舞台が広がる物語の入口です。東京都新宿区南山伏町3-3にそびえ立つこの素晴らしい住まいは、あなたを西の優雅な夕景と共に迎え入れます。404号室のドアを開けた瞬間、日常と非日常の境界が溶ける感覚を覚えることでしょう。
この物件は、72.12㎡の広々とした空間を誇ります。3LDKの間取りは、まるで心の平穏を求める冒険者に提供された聖なる空間のようです。リビングダイニングは12.1帖の広さで、午後の柔らかい日差しが差し込み、心地よい温もりを感じさせるでしょう。ここで、家族や友人と共に過ごすひと時が、晩餐のテーブルを囲む映画のワンシーンのように思い出深いものとなるはずです。香ばしい料理の香りが漂い、温かい笑い声が響く、そんな情景が目に浮かびます。
さらに、5帖と5帖の洋室は、それぞれ異なる夢を育むための空間です。朝目覚めると、カーテンの隙間から差し込む光が、あなたを優しく起こし、新たな一日の始まりを感じさせてくれるでしょう。どちらの洋室も、静けさが保たれた心地よい隠れ家となり、読書や趣味に没頭するための完璧なキャンバスです。そして、洋室に設けられた大きな窓からは、外の緑豊かな風景が目に飛び込んでくることでしょう。
キッチンは3.2帖の広さで、心を込めた料理を作るための聖域です。ここで生まれる料理は、あなたの愛情を乗せるための美味しさに満ちていることでしょう。新鮮な野菜の香りや、スパイスのほんのりとした刺激が、あなたを料理というアートの世界へといざないます。
パークスフィア牛込神楽坂 404には、贅沢な設備が揃っています。オートロックやTVモニターホンで安全を守り、宅配ボックスや駐輪場が日常の便利さを支えます。エレベーターでスムーズにアクセスできるこの素晴らしい住まいは、まるであなたの人生をエレガントに運ぶ黒いリムジンのようです。
周辺環境もまた、この物件の魅力を引き立てます。都営地下鉄大江戸線牛込柳町駅からのアクセスは、まるで新宿の喧騒から一歩離れた秘密の場所にいるような心地良さをもたらします。この地区は、歴史ある神楽坂の風情と現代的な利便性が絶妙に融合したエリアです。文化的なイベントやアート作品が息づく街並みを散策すれば、心が和んでいくことでしょう。
パークスフィア牛込神楽坂 404は、ただの住まいではありません。ここに住むことで、あなたの日常は映画のような素敵なストーリーへと昇華されるのです。あなたの新たな物語が、この場所で紡がれることを待ち望んでいます。心が耳をすますと、ここにはきっと新しい出会い、感動、そして未来が待っていると感じることでしょう。
この物件は、72.12㎡の広々とした空間を誇ります。3LDKの間取りは、まるで心の平穏を求める冒険者に提供され…パークスフィア牛込神楽坂 404、これは単なる住所ではなく、人生の新たな舞台が広がる物語の入口です。東京都新宿区南山伏町3-3にそびえ立つこの素晴らしい住まいは、あなたを西の優雅な夕景と共に迎え入れます。404号室のドアを開けた瞬間、日常と非日常の境界が溶ける感覚を覚えることでしょう。
この物件は、72.12㎡の広々とした空間を誇ります。3LDKの間取りは、まるで心の平穏を求める冒険者に提供された聖なる空間のようです。リビングダイニングは12.1帖の広さで、午後の柔らかい日差しが差し込み、心地よい温もりを感じさせるでしょう。ここで、家族や友人と共に過ごすひと時が、晩餐のテーブルを囲む映画のワンシーンのように思い出深いものとなるはずです。香ばしい料理の香りが漂い、温かい笑い声が響く、そんな情景が目に浮かびます。
さらに、5帖と5帖の洋室は、それぞれ異なる夢を育むための空間です。朝目覚めると、カーテンの隙間から差し込む光が、あなたを優しく起こし、新たな一日の始まりを感じさせてくれるでしょう。どちらの洋室も、静けさが保たれた心地よい隠れ家となり、読書や趣味に没頭するための完璧なキャンバスです。そして、洋室に設けられた大きな窓からは、外の緑豊かな風景が目に飛び込んでくることでしょう。
キッチンは3.2帖の広さで、心を込めた料理を作るための聖域です。ここで生まれる料理は、あなたの愛情を乗せるための美味しさに満ちていることでしょう。新鮮な野菜の香りや、スパイスのほんのりとした刺激が、あなたを料理というアートの世界へといざないます。
パークスフィア牛込神楽坂 404には、贅沢な設備が揃っています。オートロックやTVモニターホンで安全を守り、宅配ボックスや駐輪場が日常の便利さを支えます。エレベーターでスムーズにアクセスできるこの素晴らしい住まいは、まるであなたの人生をエレガントに運ぶ黒いリムジンのようです。
周辺環境もまた、この物件の魅力を引き立てます。都営地下鉄大江戸線牛込柳町駅からのアクセスは、まるで新宿の喧騒から一歩離れた秘密の場所にいるような心地良さをもたらします。この地区は、歴史ある神楽坂の風情と現代的な利便性が絶妙に融合したエリアです。文化的なイベントやアート作品が息づく街並みを散策すれば、心が和んでいくことでしょう。
パークスフィア牛込神楽坂 404は、ただの住まいではありません。ここに住むことで、あなたの日常は映画のような素敵なストーリーへと昇華されるのです。あなたの新たな物語が、この場所で紡がれることを待ち望んでいます。心が耳をすますと、ここにはきっと新しい出会い、感動、そして未来が待っていると感じることでしょう。
バイブルスコア
バイブルスコア: 18.5
高級な物件でない場合は割高な物件です。。
※バイブルスコア詳細はこちら
バイブルスコアとは独自のAI機械学習技術を利用した物件評価システムで、物件のおすすめ度を示します。最高得点は100点で、スコアが高いほど、よりおすすめの物件と評価されています。
写真
契約条件
| 賃料 | 予想金額:370,000〜390,000円程度 | 管理費 | 予想金額:18,000〜22,000円程度 |
| 礼金 | 非公開(アーカイブ) | 敷金 | 非公開(アーカイブ) |
| フリーレント | なし | 平米数 | 72.12㎡ |
| 間取り | 3LDK | 大型収納 | WIC |
| 契約期間 |
| 方角 | 西 |
| 更新料 | 契約形態 | 普通賃貸借契約 | |
| 取引態様 | 媒介 | 内見状況 | 入居中 |
| 入居時期 | 入居中 | SOHO・事務所 | |
| ペット | ペット可 | 間取り内訳 | 洋:7 洋:5 洋:5 LD:12.1 K:3.2 |
| キャンペーン情報・備考 | 本情報は賃料改定交渉の資料作成、収益物件の利回り試算、周辺エリアや最寄り駅の坪単価分析、次回募集開始時期の予測などにご活用いただけます。 | ||
※「どの不動産に頼めばいいのか分からない」「信頼できる営業マンの話を聞きたい」「一番親切な会社と契約したい」とお悩みの方におすすめなのが「高級賃貸バイブル」です。
高級賃貸バイブルは業界10年以上の熟練スタッフ群がお客様ファーストで対応します。
下記ボタンから、まずは無料でご相談下さい。
※内覧をご希望の際には、どうぞ物件のエントランス前にてお待ち合わせくださいませ。ご内覧後は、同じ場所でお別れとさせていただきます。お客様のご都合に合わせたスムーズなご案内を心がけておりますので、ご質問等がございましたら何なりとお申し付けください。 物件概要
| 物件名 |
| 築年月 |
|
|---|---|---|---|
| 所在地 | |||
| 交通 | |||
| 総戸数 |
| 総階数 |
|
| 構造 |
| ||
地図
物件までの道のりは、「拡大地図を表示」をクリックしてナビ機能をご利用ください。
部屋設備















建物設備

TVモニターホン

エレベーター

オートロック

バイク置場

宅配ボックス

敷地内ゴミ置場

管理人

駐車場平置き

駐車場機械式

駐輪場
パークスフィア牛込神楽坂の現在募集中のお部屋
- パークスフィア牛込神楽坂 903 - 間取り: 2LDK+WIC - 賃料: 34.5万円
- パークスフィア牛込神楽坂 1106 - 間取り: 1LDK+WIC - 賃料: 22.7万円




























