
| 賃料 | 予想金額:273,000〜293,000円程度 | 管理費 | 予想金額:13,000〜17,000円程度 |
| 礼金/敷金 | 非公開(アーカイブ) | 平米数 | 55.02㎡ |
| 初期費用概算(参考) | 目安:643,400〜743,400 円 | みなし賃料(月額・参考) | 296,550〜316,550 円 |
| 備考 | 本ページは過去募集のアーカイブです。表示の金額は周辺相場・過去募集を踏まえた参考レンジであり、実際の契約金額・条件ではありません。 | ||
※上記みなし賃料(月額)は仲介手数料割引・無料&キャッシュバックを加味した高級賃貸バイブル限定の金額です。一般的なみなし賃料とは異なります。
【建物ページ】パークスフィア牛込神楽坂の詳細・最新空室はこちら▶▶選ばれる理由
仲介手数料無料・キャンペーン情報(毎月15名様限定)
〇引っ越しお祝い金56600円プレゼント(キャッシュバック)
〇仲介手数料無料キャンペーン
パークスフィア牛込神楽坂 502の口コミ・レビュー
パークスフィア牛込神楽坂 502、あなたが新たな生活を始めるこの特別な空間は、まるであなた自身の物語の舞台であり、確かな存在感を放っています。この502という番号は、ただの階数であるだけではなく、あなたの新しい生活のスタート地点であり、55.02㎡の広がりは、心が安らぐ風景とともに、あなたの五感を満たす場所となることでしょう。
このマンションは、洗練されたデザインと便利な設備が調和し、まるで優雅…パークスフィア牛込神楽坂 502、あなたが新たな生活を始めるこの特別な空間は、まるであなた自身の物語の舞台であり、確かな存在感を放っています。この502という番号は、ただの階数であるだけではなく、あなたの新しい生活のスタート地点であり、55.02㎡の広がりは、心が安らぐ風景とともに、あなたの五感を満たす場所となることでしょう。
このマンションは、洗練されたデザインと便利な設備が調和し、まるで優雅なシンフォニーのようです。TVモニターホン、エレベーター、オートロックなど、生活を支えるテクノロジーが整い、安心感に満ち溢れた日常が待っています。宅配ボックスや駐車場平置き、機械式駐車場、さらにはバイク置場も完備しているため、ライフスタイルに合わせた快適な動線が確保されています。
「私の名はパークスフィア牛込神楽坂 502。あなたが扉を開けるその瞬間、心躍る新しい冒険が始まります。」と、優雅な物件が語りかけてくるのが感じられます。LDK12.7帖の広がりは、温かい光が差し込み、柔らかな風が漂う場となり、家族との笑顔溢れる食卓や、友人との心温まるひとときを演出します。その背後に控える洋室6帖と洋室4.5帖は、プライベートな空間を提供し、あなたが自分だけの時間を楽しむための隠れ家です。畳の香りや新鮮なコーヒーの香りが漂い、忙しい日常の中にもリラックスをもたらします。
周辺には、歴史ある神楽坂の街並みが広がり、まるで映画のワンシーンのように感じられます。江戸の面影を残す風情ある路地を歩けば、運命の出会いが待っているかもしれません。地元の商店やカフェで、旬の味覚に出会い、ふとした瞬間に香ばしいパンの匂いに包まれたり、温かい声で迎えられることもあるでしょう。まるで、街全体があなたを歓迎しているかのようです。
パークスフィア牛込神楽坂 502は、単なる住まいではなく、あなたの新しい人生の舞台です。この場所で、あなたの物語が紡がれ、日々の暮らしが映画のように輝くことを約束いたします。西向きの窓からは、夕暮れの美しい景色が広がり、まるで夜空に浮かぶ星たちがあなたに微笑んでいるかのようです。どうぞ、この特別な瞬間を逃さず、あなたの新しい生活をここで始めてみませんか。
このマンションは、洗練されたデザインと便利な設備が調和し、まるで優雅…パークスフィア牛込神楽坂 502、あなたが新たな生活を始めるこの特別な空間は、まるであなた自身の物語の舞台であり、確かな存在感を放っています。この502という番号は、ただの階数であるだけではなく、あなたの新しい生活のスタート地点であり、55.02㎡の広がりは、心が安らぐ風景とともに、あなたの五感を満たす場所となることでしょう。
このマンションは、洗練されたデザインと便利な設備が調和し、まるで優雅なシンフォニーのようです。TVモニターホン、エレベーター、オートロックなど、生活を支えるテクノロジーが整い、安心感に満ち溢れた日常が待っています。宅配ボックスや駐車場平置き、機械式駐車場、さらにはバイク置場も完備しているため、ライフスタイルに合わせた快適な動線が確保されています。
「私の名はパークスフィア牛込神楽坂 502。あなたが扉を開けるその瞬間、心躍る新しい冒険が始まります。」と、優雅な物件が語りかけてくるのが感じられます。LDK12.7帖の広がりは、温かい光が差し込み、柔らかな風が漂う場となり、家族との笑顔溢れる食卓や、友人との心温まるひとときを演出します。その背後に控える洋室6帖と洋室4.5帖は、プライベートな空間を提供し、あなたが自分だけの時間を楽しむための隠れ家です。畳の香りや新鮮なコーヒーの香りが漂い、忙しい日常の中にもリラックスをもたらします。
周辺には、歴史ある神楽坂の街並みが広がり、まるで映画のワンシーンのように感じられます。江戸の面影を残す風情ある路地を歩けば、運命の出会いが待っているかもしれません。地元の商店やカフェで、旬の味覚に出会い、ふとした瞬間に香ばしいパンの匂いに包まれたり、温かい声で迎えられることもあるでしょう。まるで、街全体があなたを歓迎しているかのようです。
パークスフィア牛込神楽坂 502は、単なる住まいではなく、あなたの新しい人生の舞台です。この場所で、あなたの物語が紡がれ、日々の暮らしが映画のように輝くことを約束いたします。西向きの窓からは、夕暮れの美しい景色が広がり、まるで夜空に浮かぶ星たちがあなたに微笑んでいるかのようです。どうぞ、この特別な瞬間を逃さず、あなたの新しい生活をここで始めてみませんか。
バイブルスコア
バイブルスコア: 42.8
条件のいい物件です、引っ越しが2か月以内の場合は仮申し込みを検討すべき物件です。
※バイブルスコア詳細はこちら
バイブルスコアとは独自のAI機械学習技術を利用した物件評価システムで、物件のおすすめ度を示します。最高得点は100点で、スコアが高いほど、よりおすすめの物件と評価されています。
写真
契約条件
| 賃料 | 予想金額:273,000〜293,000円程度 | 管理費 | 予想金額:13,000〜17,000円程度 |
| 礼金 | 非公開(アーカイブ) | 敷金 | 非公開(アーカイブ) |
| フリーレント | なし | 平米数 | 55.02㎡ |
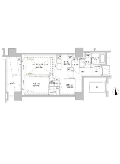
| 間取り | 2LDK+WIC | 大型収納 | WIC |
| 契約期間 | 2年 | 方角 | 西 |
| 更新料 | 1ヶ月 | 契約形態 | 普通賃貸借契約 |
| 取引態様 | 媒介 | 内見状況 | 入居中 |
| 入居時期 | 入居中 | SOHO・事務所 | 不可 |
| ペット | 可 犬または猫1匹(敷金1ヶ月積み増し) | 間取り内訳 | LDK12.7帖 洋室6帖 洋室4.5帖 |
| キャンペーン情報・備考 | 本情報は賃料改定交渉の資料作成、収益物件の利回り試算、周辺エリアや最寄り駅の坪単価分析、次回募集開始時期の予測などにご活用いただけます。 | ||
※「どの不動産に頼めばいいのか分からない」「信頼できる営業マンの話を聞きたい」「一番親切な会社と契約したい」とお悩みの方におすすめなのが「高級賃貸バイブル」です。
高級賃貸バイブルは業界10年以上の熟練スタッフ群がお客様ファーストで対応します。
下記ボタンから、まずは無料でご相談下さい。
※内覧をご希望の際には、どうぞ物件のエントランス前にてお待ち合わせくださいませ。ご内覧後は、同じ場所でお別れとさせていただきます。お客様のご都合に合わせたスムーズなご案内を心がけておりますので、ご質問等がございましたら何なりとお申し付けください。 物件概要
| 物件名 |
| 築年月 |
|
|---|---|---|---|
| 所在地 | |||
| 交通 | |||
| 総戸数 |
| 総階数 |
|
| 構造 |
| ||
地図
物件までの道のりは、「拡大地図を表示」をクリックしてナビ機能をご利用ください。
部屋設備












建物設備

TVモニターホン

エレベーター

オートロック

バイク置場

宅配ボックス

敷地内ゴミ置場

管理人

駐車場平置き

駐車場機械式

駐輪場
パークスフィア牛込神楽坂の現在募集中のお部屋
- パークスフィア牛込神楽坂 903 - 間取り: 2LDK+WIC - 賃料: 34.5万円
- パークスフィア牛込神楽坂 1106 - 間取り: 1LDK+WIC - 賃料: 22.7万円




























