
| 賃料 | 予想金額:116,000〜136,000円程度 | 管理費 | 予想金額:8,000〜12,000円程度 |
| 礼金/敷金 | 非公開(アーカイブ) | 平米数 | 30.6㎡ |
| 初期費用概算(参考) | 目安:417,300〜517,300 円 | みなし賃料(月額・参考) | 133,110〜153,110 円 |
| 備考 | 本ページは過去募集のアーカイブです。表示の金額は周辺相場・過去募集を踏まえた参考レンジであり、実際の契約金額・条件ではありません。 | ||
※上記みなし賃料(月額)は仲介手数料割引・無料&キャッシュバックを加味した高級賃貸バイブル限定の金額です。一般的なみなし賃料とは異なります。
【建物ページ】コスモグラシア芝大門の詳細・最新空室はこちら▶▶選ばれる理由
仲介手数料無料・キャンペーン情報(毎月15名様限定)
〇引っ越しお祝い金25200円プレゼント(キャッシュバック)
〇仲介手数料無料キャンペーン
コスモグラシア芝大門 404の口コミ・レビュー
コスモグラシア芝大門 404。これはただの物件名ではなく、貴方に待ち受ける新たな生活の扉を開く鍵です。東京都港区芝大門に位置するこの特別な空間は、南東の風を感じながら、日々の喧騒から離れた静寂の中で、心を豊かにする瞬間を提供します。ここでは、洗練されたデザインと機能が絶妙に融合し、貴方のライフスタイルを支える相棒のようです。
エレベーターに乗って404号室へ向かうと、少しの緊張感と共に期待が胸を…コスモグラシア芝大門 404。これはただの物件名ではなく、貴方に待ち受ける新たな生活の扉を開く鍵です。東京都港区芝大門に位置するこの特別な空間は、南東の風を感じながら、日々の喧騒から離れた静寂の中で、心を豊かにする瞬間を提供します。ここでは、洗練されたデザインと機能が絶妙に融合し、貴方のライフスタイルを支える相棒のようです。
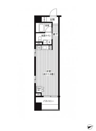
エレベーターに乗って404号室へ向かうと、少しの緊張感と共に期待が胸を膨らませます。扉を開けると、まず感じるのは心地よい光。大きな窓から差し込む朝日が、洋室11.9帖を優しく包み込み、まるで朝食の香ばしい香りと共に、1日の始まりを祝っているかのようです。その瞬間、貴方はこの空間が持つ力を実感するでしょう。
コスモグラシア芝大門 404は、ただの1Rではありません。そこには、貴方の思い描く生活が広がっています。ここにいると、人気のある都営地下鉄大江戸線の大門駅までの徒歩2分が、まるで毎日の小さな冒険の始まりに思えてきます。朝、駅への道を歩く時、軽やかな靴音が街のリズムに溶け込み、貴方はまるで主人公になったかのように感じます。
この物件には、TVモニターホンやオートロックなどの心強い設備が整っており、安心感を与えてくれます。宅配ボックスがあることで、忙しい日常の中でも安心して荷物を受け取ることができます。このように、貴方の生活を想定した設計が随所に施されています。まるで、貴方の思いに寄り添うパートナーのように。
コスモグラシア芝大門 404の魅力は、ただの住まいにとどまりません。周囲には、歴史と文化の香りが漂っています。芝大門は、名だたる寺院や美術館が点在し、散歩するだけで心が豊かになることでしょう。古みと新しさが交錯するこの地域で、貴方の生活はまるで一編の詩のように、優雅に流れていくことでしょう。
そして、静かな夜が訪れると、窓から差し込む月の光が、まるで貴方の心を優しく照らしてくれるようです。新しい料理を作る楽しみや、恋人や友人と過ごすひとときが、コスモグラシア芝大門 404での生活を、まるで映画のワンシーンのように豊かに演出します。
ここでの生活は、唯一無二の宝物になります。コスモグラシア芝大門 404で、貴方の人生の新しい章が始まるのです。すべての感覚を研ぎ澄まし、この美しい空間での瞬間を、一緒に堪能しましょう。
エレベーターに乗って404号室へ向かうと、少しの緊張感と共に期待が胸を…コスモグラシア芝大門 404。これはただの物件名ではなく、貴方に待ち受ける新たな生活の扉を開く鍵です。東京都港区芝大門に位置するこの特別な空間は、南東の風を感じながら、日々の喧騒から離れた静寂の中で、心を豊かにする瞬間を提供します。ここでは、洗練されたデザインと機能が絶妙に融合し、貴方のライフスタイルを支える相棒のようです。
エレベーターに乗って404号室へ向かうと、少しの緊張感と共に期待が胸を膨らませます。扉を開けると、まず感じるのは心地よい光。大きな窓から差し込む朝日が、洋室11.9帖を優しく包み込み、まるで朝食の香ばしい香りと共に、1日の始まりを祝っているかのようです。その瞬間、貴方はこの空間が持つ力を実感するでしょう。
コスモグラシア芝大門 404は、ただの1Rではありません。そこには、貴方の思い描く生活が広がっています。ここにいると、人気のある都営地下鉄大江戸線の大門駅までの徒歩2分が、まるで毎日の小さな冒険の始まりに思えてきます。朝、駅への道を歩く時、軽やかな靴音が街のリズムに溶け込み、貴方はまるで主人公になったかのように感じます。
この物件には、TVモニターホンやオートロックなどの心強い設備が整っており、安心感を与えてくれます。宅配ボックスがあることで、忙しい日常の中でも安心して荷物を受け取ることができます。このように、貴方の生活を想定した設計が随所に施されています。まるで、貴方の思いに寄り添うパートナーのように。
コスモグラシア芝大門 404の魅力は、ただの住まいにとどまりません。周囲には、歴史と文化の香りが漂っています。芝大門は、名だたる寺院や美術館が点在し、散歩するだけで心が豊かになることでしょう。古みと新しさが交錯するこの地域で、貴方の生活はまるで一編の詩のように、優雅に流れていくことでしょう。
そして、静かな夜が訪れると、窓から差し込む月の光が、まるで貴方の心を優しく照らしてくれるようです。新しい料理を作る楽しみや、恋人や友人と過ごすひとときが、コスモグラシア芝大門 404での生活を、まるで映画のワンシーンのように豊かに演出します。
ここでの生活は、唯一無二の宝物になります。コスモグラシア芝大門 404で、貴方の人生の新しい章が始まるのです。すべての感覚を研ぎ澄まし、この美しい空間での瞬間を、一緒に堪能しましょう。
バイブルスコア
バイブルスコア: 40
平均的なスコアです。
※バイブルスコア詳細はこちら
バイブルスコアとは独自のAI機械学習技術を利用した物件評価システムで、物件のおすすめ度を示します。最高得点は100点で、スコアが高いほど、よりおすすめの物件と評価されています。
写真
契約条件
| 賃料 | 予想金額:116,000〜136,000円程度 | 管理費 | 予想金額:8,000〜12,000円程度 |
| 礼金 | 非公開(アーカイブ) | 敷金 | 非公開(アーカイブ) |
| フリーレント | なし | 平米数 | 30.6㎡ |
| 間取り | 1R | 大型収納 | なし |
| 契約期間 | 2年 | 方角 | 南東 |
| 更新料 | 1ヶ月 | 契約形態 | 普通賃貸借契約 |
| 取引態様 | 媒介 | 内見状況 | 入居中 |
| 入居時期 | 入居中 | SOHO・事務所 | 不可 |
| ペット | 不可 | 間取り内訳 | 洋室11.9畳 |
| キャンペーン情報・備考 | 本情報は賃料改定交渉の資料作成、収益物件の利回り試算、周辺エリアや最寄り駅の坪単価分析、次回募集開始時期の予測などにご活用いただけます。 | ||
※「どの不動産に頼めばいいのか分からない」「信頼できる営業マンの話を聞きたい」「一番親切な会社と契約したい」とお悩みの方におすすめなのが「高級賃貸バイブル」です。
高級賃貸バイブルは業界10年以上の熟練スタッフ群がお客様ファーストで対応します。
下記ボタンから、まずは無料でご相談下さい。
※内覧をご希望の際には、どうぞ物件のエントランス前にてお待ち合わせくださいませ。ご内覧後は、同じ場所でお別れとさせていただきます。お客様のご都合に合わせたスムーズなご案内を心がけておりますので、ご質問等がございましたら何なりとお申し付けください。 物件概要
| 物件名 |
| 築年月 |
|
|---|---|---|---|
| 所在地 | |||
| 交通 | |||
| 総戸数 |
| 総階数 |
|
| 構造 |
| ||
地図
物件までの道のりは、「拡大地図を表示」をクリックしてナビ機能をご利用ください。
部屋設備















建物設備

TVモニターホン

エレベーター

オートロック

宅配ボックス

敷地内ゴミ置場

駐車場平置き

駐輪場
コスモグラシア芝大門の現在募集中のお部屋
- No rooms found for this property.









