
| 賃料 | 予想金額:90,000〜110,000円程度 | 管理費 | 予想金額:8,000〜12,000円程度 |
| 礼金/敷金 | 非公開(アーカイブ) | 平米数 | 25.3㎡ |
| 初期費用概算(参考) | 目安:406,500〜506,500 円 | みなし賃料(月額・参考) | 107,427〜127,427 円 |
| 備考 | 本ページは過去募集のアーカイブです。表示の金額は周辺相場・過去募集を踏まえた参考レンジであり、実際の契約金額・条件ではありません。 | ||
※上記みなし賃料(月額)は仲介手数料割引・無料&キャッシュバックを加味した高級賃貸バイブル限定の金額です。一般的なみなし賃料とは異なります。
【建物ページ】パークハビオ秋葉原エストの詳細・最新空室はこちら▶▶選ばれる理由
仲介手数料無料・キャンペーン情報(毎月15名様限定)
〇仲介手数料割引キャンペーン
パークハビオ秋葉原エスト 304の口コミ・レビュー
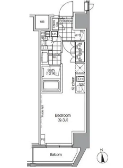
パークハビオ秋葉原エスト 304は、まるで静寂な森林の中に佇む美しい樹木のように、東京の喧騒とは一線を画し、心の奥底に安らぎを与える存在です。この住まいは、専有面積25.3㎡に広がる9.3帖の洋室からなる1Rタイプで、南向きの窓からは日差しが優しく差し込み、心地よい光に包まれながら、新たな生活の扉を開く準備が整っています。
私があなたの声を聞き、あなたに語りかける日を心待ちにしています。ここ、パ…パークハビオ秋葉原エスト 304は、まるで静寂な森林の中に佇む美しい樹木のように、東京の喧騒とは一線を画し、心の奥底に安らぎを与える存在です。この住まいは、専有面積25.3㎡に広がる9.3帖の洋室からなる1Rタイプで、南向きの窓からは日差しが優しく差し込み、心地よい光に包まれながら、新たな生活の扉を開く準備が整っています。
私があなたの声を聞き、あなたに語りかける日を心待ちにしています。ここ、パークハビオ秋葉原エスト 304では、朝の光に照らされた瞬間から、素敵な日常が始まります。カーテンを開けると、柔らかな日の光が部屋を満たし、心を躍らせるような香気が漂います。そんな日々の中、あなたはコーヒーの香ばしい香りが広がるキッチンで、朝のひとときを贅沢に楽しむことができるのです。
また、隣接するバルコニーに足を運べば、外の空気が湿り気を含み、優しい風が頬を撫でます。ここでの生活は、まるで古き良き時代の映画のワンシーンのように、あなたの感覚を刺激するでしょう。周囲の歴史的な街並みを散策し、アートギャラリーや小さなショップを発見することは、まるで宝探しをしているかのような嬉しさを感じさせてくれます。
パークハビオ秋葉原エスト 304は、ただの住まいではありません。ここに住むことで、あなたはまるで物語の主人公になったかのように、日々の出来事に彩りを加えることができます。夕暮れ時には、窓から漂う夕焼けの絵画を眺めながら、あなたの心に静けさが宿り、体がほっと解放されるのです。まるで、風に舞う葉のような自由な感覚。
また、エレベーターでアクセスする便利さや、オートロックを採用した安全性、さらに宅配ボックスや敷地内ゴミ置場といった生活の利便性も、あなたの日常をより豊かに彩る要素です。ここでの生活は、洗練されたデザイナーズ空間でありながらも、温かみを感じることができる、まさに理想の住まいです。
書類を整え、契約を交わすその瞬間、パークハビオ秋葉原エスト 304はあなたを新たな物語に引き込む準備を整えます。周りの文化や芸術と共鳴し、東京の魅力を存分に享受しながら、静かな日常を楽しむことができる、この場所は、まさにあなたにとっての理想的なホームとなり得るでしょう。あなたの新たな生活の一歩を、パークハビオ秋葉原エスト 304で踏み出してください。
私があなたの声を聞き、あなたに語りかける日を心待ちにしています。ここ、パ…パークハビオ秋葉原エスト 304は、まるで静寂な森林の中に佇む美しい樹木のように、東京の喧騒とは一線を画し、心の奥底に安らぎを与える存在です。この住まいは、専有面積25.3㎡に広がる9.3帖の洋室からなる1Rタイプで、南向きの窓からは日差しが優しく差し込み、心地よい光に包まれながら、新たな生活の扉を開く準備が整っています。
私があなたの声を聞き、あなたに語りかける日を心待ちにしています。ここ、パークハビオ秋葉原エスト 304では、朝の光に照らされた瞬間から、素敵な日常が始まります。カーテンを開けると、柔らかな日の光が部屋を満たし、心を躍らせるような香気が漂います。そんな日々の中、あなたはコーヒーの香ばしい香りが広がるキッチンで、朝のひとときを贅沢に楽しむことができるのです。
また、隣接するバルコニーに足を運べば、外の空気が湿り気を含み、優しい風が頬を撫でます。ここでの生活は、まるで古き良き時代の映画のワンシーンのように、あなたの感覚を刺激するでしょう。周囲の歴史的な街並みを散策し、アートギャラリーや小さなショップを発見することは、まるで宝探しをしているかのような嬉しさを感じさせてくれます。
パークハビオ秋葉原エスト 304は、ただの住まいではありません。ここに住むことで、あなたはまるで物語の主人公になったかのように、日々の出来事に彩りを加えることができます。夕暮れ時には、窓から漂う夕焼けの絵画を眺めながら、あなたの心に静けさが宿り、体がほっと解放されるのです。まるで、風に舞う葉のような自由な感覚。
また、エレベーターでアクセスする便利さや、オートロックを採用した安全性、さらに宅配ボックスや敷地内ゴミ置場といった生活の利便性も、あなたの日常をより豊かに彩る要素です。ここでの生活は、洗練されたデザイナーズ空間でありながらも、温かみを感じることができる、まさに理想の住まいです。
書類を整え、契約を交わすその瞬間、パークハビオ秋葉原エスト 304はあなたを新たな物語に引き込む準備を整えます。周りの文化や芸術と共鳴し、東京の魅力を存分に享受しながら、静かな日常を楽しむことができる、この場所は、まさにあなたにとっての理想的なホームとなり得るでしょう。あなたの新たな生活の一歩を、パークハビオ秋葉原エスト 304で踏み出してください。
バイブルスコア
バイブルスコア: 39.2
平均的なスコアです。
※バイブルスコア詳細はこちら
バイブルスコアとは独自のAI機械学習技術を利用した物件評価システムで、物件のおすすめ度を示します。最高得点は100点で、スコアが高いほど、よりおすすめの物件と評価されています。
写真
契約条件
| 賃料 | 予想金額:90,000〜110,000円程度 | 管理費 | 予想金額:8,000〜12,000円程度 |
| 礼金 | 非公開(アーカイブ) | 敷金 | 非公開(アーカイブ) |
| フリーレント | なし | 平米数 | 25.3㎡ |
| 間取り | 1R | 大型収納 | |
| 契約期間 |
| 方角 | 南 |
| 更新料 | 契約形態 | 普通賃貸借契約 | |
| 取引態様 | 媒介 | 内見状況 | 入居中 |
| 入居時期 | 入居中 | SOHO・事務所 | |
| ペット | ペット可 | 間取り内訳 | 洋:9.3 |
| キャンペーン情報・備考 | 本情報は賃料改定交渉の資料作成、収益物件の利回り試算、周辺エリアや最寄り駅の坪単価分析、次回募集開始時期の予測などにご活用いただけます。 | ||
※「どの不動産に頼めばいいのか分からない」「信頼できる営業マンの話を聞きたい」「一番親切な会社と契約したい」とお悩みの方におすすめなのが「高級賃貸バイブル」です。
高級賃貸バイブルは業界10年以上の熟練スタッフ群がお客様ファーストで対応します。
下記ボタンから、まずは無料でご相談下さい。
※内覧をご希望の際には、どうぞ物件のエントランス前にてお待ち合わせくださいませ。ご内覧後は、同じ場所でお別れとさせていただきます。お客様のご都合に合わせたスムーズなご案内を心がけておりますので、ご質問等がございましたら何なりとお申し付けください。 物件概要
| 物件名 |
| 築年月 |
|
|---|---|---|---|
| 所在地 | |||
| 交通 | |||
| 総戸数 |
| 総階数 |
|
| 構造 |
| ||
地図
物件までの道のりは、「拡大地図を表示」をクリックしてナビ機能をご利用ください。
部屋設備















建物設備

TVモニターホン

エレベーター

オートロック

バイク置場

宅配ボックス

敷地内ゴミ置場

管理人

駐車場平置き

駐車場機械式

駐輪場
パークハビオ秋葉原エストの現在募集中のお部屋
- No rooms found for this property.






























