
| 賃料 | 予想金額:148,000〜168,000円程度 | 管理費 | 予想金額:13,000〜17,000円程度 |
| 礼金/敷金 | 非公開(アーカイブ) | 平米数 | 40.75㎡ |
| 初期費用概算(参考) | 目安:617,000〜717,000 円 | みなし賃料(月額・参考) | 173,604〜193,604 円 |
| 備考 | 本ページは過去募集のアーカイブです。表示の金額は周辺相場・過去募集を踏まえた参考レンジであり、実際の契約金額・条件ではありません。 | ||
※上記みなし賃料(月額)は仲介手数料割引・無料&キャッシュバックを加味した高級賃貸バイブル限定の金額です。一般的なみなし賃料とは異なります。
【建物ページ】パークハビオ秋葉原エストの詳細・最新空室はこちら▶▶選ばれる理由
仲介手数料無料・キャンペーン情報(毎月15名様限定)
〇仲介手数料割引キャンペーン
パークハビオ秋葉原エスト 605の口コミ・レビュー
パークハビオ秋葉原エスト 605。この名を耳にした瞬間、あなたの想像力は無限の可能性を秘めた空間へと誘われます。東京都台東区浅草橋の一角に佇むこの高級賃貸物件は、ただの住まいではなく、生活の舞台であり、心の拠り所です。605という部屋番号は、まるで特別な物語の主人公であるかのように、あなたを待っています。
パークハビオ秋葉原エスト 605に足を踏み入れると、まずは目の前に広がる10.4帖のLDK…パークハビオ秋葉原エスト 605。この名を耳にした瞬間、あなたの想像力は無限の可能性を秘めた空間へと誘われます。東京都台東区浅草橋の一角に佇むこの高級賃貸物件は、ただの住まいではなく、生活の舞台であり、心の拠り所です。605という部屋番号は、まるで特別な物語の主人公であるかのように、あなたを待っています。
パークハビオ秋葉原エスト 605に足を踏み入れると、まずは目の前に広がる10.4帖のLDKが、まるで柔らかな布に包まれた温もりを感じさせる空間となっています。その壁は、静かにあなたの物語を見守り、開放感とともに、どこか落ち着きを与えてくれることでしょう。窓から差し込む朝日が、優しい金色の光を注ぎ、思わず「おはよう」と微笑みかけてくれます。
外の世界との絶妙なコンタクトを保ちながら、東と北の両方に面するこの部屋は、視覚の贅沢を享受します。街の喧騒から少し離れたこの地では、時おり響く風の音が、心の穏やかさを引き立て、あなたの五感を刺激します。歴史深い浅草橋の街並みは、まるで過去の物語が今も息づいているかのようで、ふとした瞬間に感じる香ばしい和菓子屋の匂いが、心の奥底に温かい記憶を呼び覚まします。
この部屋には、6.5帖の洋室があり、夜には静かな湖のように穏やかな夢を見せてくれるでしょう。柔らかいベッドに身を沈め、カーテンの隙間から漏れる月明かりを眺めながら、日々の疲れが溶けていくのを感じます。そんな一瞬一瞬が、まるで映画のワンシーンのように、あなたの心に深く刻まれます。
また、生活の利便性も申し分ありません。パークハビオ秋葉原エスト 605には、オートロックや宅配ボックス、駐輪場といった心配りが随所に施されています。管理人の温かな笑顔が、あなたの帰りを待っているかのように、安心感を提供します。その時、心に浮かぶのは、日常の中で感じる小さな幸せ。バイク置場に愛車を置き、通り過ぎる街並みをゆっくりと楽しむひとときが待っています。
この特別な場所での生活は、ただの居住空間ではなく、あなた自身の人生の舞台なのです。パークハビオ秋葉原エスト 605という名のもと、心に残る物語を紡いでいくことができるでしょう。さあ、あなた自身の新たな物語を始めてみませんか?
パークハビオ秋葉原エスト 605に足を踏み入れると、まずは目の前に広がる10.4帖のLDK…パークハビオ秋葉原エスト 605。この名を耳にした瞬間、あなたの想像力は無限の可能性を秘めた空間へと誘われます。東京都台東区浅草橋の一角に佇むこの高級賃貸物件は、ただの住まいではなく、生活の舞台であり、心の拠り所です。605という部屋番号は、まるで特別な物語の主人公であるかのように、あなたを待っています。
パークハビオ秋葉原エスト 605に足を踏み入れると、まずは目の前に広がる10.4帖のLDKが、まるで柔らかな布に包まれた温もりを感じさせる空間となっています。その壁は、静かにあなたの物語を見守り、開放感とともに、どこか落ち着きを与えてくれることでしょう。窓から差し込む朝日が、優しい金色の光を注ぎ、思わず「おはよう」と微笑みかけてくれます。
外の世界との絶妙なコンタクトを保ちながら、東と北の両方に面するこの部屋は、視覚の贅沢を享受します。街の喧騒から少し離れたこの地では、時おり響く風の音が、心の穏やかさを引き立て、あなたの五感を刺激します。歴史深い浅草橋の街並みは、まるで過去の物語が今も息づいているかのようで、ふとした瞬間に感じる香ばしい和菓子屋の匂いが、心の奥底に温かい記憶を呼び覚まします。
この部屋には、6.5帖の洋室があり、夜には静かな湖のように穏やかな夢を見せてくれるでしょう。柔らかいベッドに身を沈め、カーテンの隙間から漏れる月明かりを眺めながら、日々の疲れが溶けていくのを感じます。そんな一瞬一瞬が、まるで映画のワンシーンのように、あなたの心に深く刻まれます。
また、生活の利便性も申し分ありません。パークハビオ秋葉原エスト 605には、オートロックや宅配ボックス、駐輪場といった心配りが随所に施されています。管理人の温かな笑顔が、あなたの帰りを待っているかのように、安心感を提供します。その時、心に浮かぶのは、日常の中で感じる小さな幸せ。バイク置場に愛車を置き、通り過ぎる街並みをゆっくりと楽しむひとときが待っています。
この特別な場所での生活は、ただの居住空間ではなく、あなた自身の人生の舞台なのです。パークハビオ秋葉原エスト 605という名のもと、心に残る物語を紡いでいくことができるでしょう。さあ、あなた自身の新たな物語を始めてみませんか?
バイブルスコア
バイブルスコア: 37.8
平均的なスコアです。
※バイブルスコア詳細はこちら
バイブルスコアとは独自のAI機械学習技術を利用した物件評価システムで、物件のおすすめ度を示します。最高得点は100点で、スコアが高いほど、よりおすすめの物件と評価されています。
写真
契約条件
| 賃料 | 予想金額:148,000〜168,000円程度 | 管理費 | 予想金額:13,000〜17,000円程度 |
| 礼金 | 非公開(アーカイブ) | 敷金 | 非公開(アーカイブ) |
| フリーレント | なし | 平米数 | 40.75㎡ |
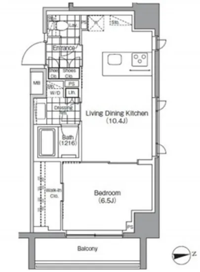
| 間取り | 1LDK | 大型収納 | WIC |
| 契約期間 |
| 方角 | 東 / 北 |
| 更新料 | 契約形態 | 普通賃貸借契約 | |
| 取引態様 | 媒介 | 内見状況 | 入居中 |
| 入居時期 | 入居中 | SOHO・事務所 | |
| ペット | ペット可 | 間取り内訳 | 洋:6.5 LDK:10.4 |
| キャンペーン情報・備考 | 本情報は賃料改定交渉の資料作成、収益物件の利回り試算、周辺エリアや最寄り駅の坪単価分析、次回募集開始時期の予測などにご活用いただけます。 | ||
※「どの不動産に頼めばいいのか分からない」「信頼できる営業マンの話を聞きたい」「一番親切な会社と契約したい」とお悩みの方におすすめなのが「高級賃貸バイブル」です。
高級賃貸バイブルは業界10年以上の熟練スタッフ群がお客様ファーストで対応します。
下記ボタンから、まずは無料でご相談下さい。
※内覧をご希望の際には、どうぞ物件のエントランス前にてお待ち合わせくださいませ。ご内覧後は、同じ場所でお別れとさせていただきます。お客様のご都合に合わせたスムーズなご案内を心がけておりますので、ご質問等がございましたら何なりとお申し付けください。 物件概要
| 物件名 |
| 築年月 |
|
|---|---|---|---|
| 所在地 | |||
| 交通 | |||
| 総戸数 |
| 総階数 |
|
| 構造 |
| ||
地図
物件までの道のりは、「拡大地図を表示」をクリックしてナビ機能をご利用ください。
部屋設備

















建物設備

TVモニターホン

エレベーター

オートロック

バイク置場

宅配ボックス

敷地内ゴミ置場

管理人

駐車場平置き

駐車場機械式

駐輪場
パークハビオ秋葉原エストの現在募集中のお部屋
- No rooms found for this property.






























