
| 賃料 | 予想金額:196,000〜216,000円程度 | 管理費 | 予想金額:18,000〜22,000円程度 |
| 礼金/敷金 | 非公開(アーカイブ) | 平米数 | 40.21㎡ |
| 初期費用概算(参考) | 目安:586,500〜686,500 円 | みなし賃料(月額・参考) | 224,969〜244,969 円 |
| 備考 | 本ページは過去募集のアーカイブです。表示の金額は周辺相場・過去募集を踏まえた参考レンジであり、実際の契約金額・条件ではありません。 | ||
※上記みなし賃料(月額)は仲介手数料割引・無料&キャッシュバックを加味した高級賃貸バイブル限定の金額です。一般的なみなし賃料とは異なります。
【建物ページ】ルフォンプログレ秋葉原イーストの詳細・最新空室はこちら▶▶選ばれる理由
仲介手数料無料・キャンペーン情報(毎月15名様限定)
〇仲介手数料割引キャンペーン
ルフォンプログレ秋葉原イースト 1002の口コミ・レビュー
ルフォンプログレ秋葉原イースト 1002。それは、都市の喧騒を離れ、静寂の中に身を委ねることのできる隠れ家のような存在です。この物件は、1002という数字が象徴するように、あなたの新しい生活の幕開けを鮮やかに彩ります。専有面積は40.21㎡。その広さは、決して広すぎず、また手狭でもなく、まさに快適な生活空間を提供します。周囲の喧騒から守られたこの特別な場所で、心に安らぎを与えてくれる居住空間が待っ…ルフォンプログレ秋葉原イースト 1002。それは、都市の喧騒を離れ、静寂の中に身を委ねることのできる隠れ家のような存在です。この物件は、1002という数字が象徴するように、あなたの新しい生活の幕開けを鮮やかに彩ります。専有面積は40.21㎡。その広さは、決して広すぎず、また手狭でもなく、まさに快適な生活空間を提供します。周囲の喧騒から守られたこの特別な場所で、心に安らぎを与えてくれる居住空間が待っています。
あなたがルフォンプログレ秋葉原イースト 1002に足を踏み入れると、まず感じるのは、その洗練されたデザインです。色合いはまるで深い森林に包まれるような落ち着きがあり、内装にはデザイナーズの魅力が随所に光ります。南向きの窓からは、朝日が優しく射し込み、光が部屋を満たし、毎朝新たな活力を感じさせてくれることでしょう。カーテンを開く瞬間、光と影が踊るその様子は、まるで美しい絵画が生き生きとした息を吹き返したかのようです。
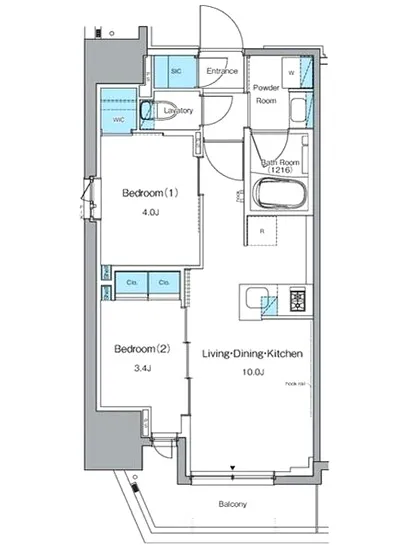
この空間には、LDK10帖の広さが確保されており、家族や友人との交流を深めるための理想的な場所となっています。料理の香ばしい匂いが立ち込め、キッチンでの作業がまるで料理番組のワンシーンのように感じられることでしょう。洋室4帖と3.4帖は、それぞれがあなたの個性を映し出すキャンバスとなり、好きなインテリアで飾りつけることで、あなた自身の物語を紡いでいくことができます。
また、ルフォンプログレ秋葉原イースト 1002では、安心が日常に溶け込んでいます。オートロック付きのエントランスや、バイク置場、駐輪場など、セキュリティに配慮した設備が整い、外界からの安全を確保します。宅配ボックスや管理人の存在は、生活の煩わしさを軽減し、常に充実した時間を持つことを可能にします。
この地、東京都台東区は、歴史と文化が交わる特別な場所です。近隣には、江戸の面影を残す下町情緒が漂い、伝統と現代が融合した街並みが広がっています。日々の散歩がまるでタイムスリップしたかのような感覚を与えてくれることでしょう。浅草橋駅から徒歩8分というアクセスの良さも、日常の一部としてあなたを迎え入れます。
ルフォンプログレ秋葉原イースト 1002。この場所が、あなたの心の安らぎを育み、素敵な日々を紡ぐ舞台となることを願っています。ここでの生活は、まるで映画のワンシーンのように、毎日が特別な瞬間に満ち溢れていることでしょう。さあ、この新たな旅路を共に歩んでみませんか?あなたを待っているのは、ただの物件ではなく、心を満たす暮らしの物語なのです。
あなたがルフォンプログレ秋葉原イースト 1002に足を踏み入れると、まず感じるのは、その洗練されたデザインです。色合いはまるで深い森林に包まれるような落ち着きがあり、内装にはデザイナーズの魅力が随所に光ります。南向きの窓からは、朝日が優しく射し込み、光が部屋を満たし、毎朝新たな活力を感じさせてくれることでしょう。カーテンを開く瞬間、光と影が踊るその様子は、まるで美しい絵画が生き生きとした息を吹き返したかのようです。
この空間には、LDK10帖の広さが確保されており、家族や友人との交流を深めるための理想的な場所となっています。料理の香ばしい匂いが立ち込め、キッチンでの作業がまるで料理番組のワンシーンのように感じられることでしょう。洋室4帖と3.4帖は、それぞれがあなたの個性を映し出すキャンバスとなり、好きなインテリアで飾りつけることで、あなた自身の物語を紡いでいくことができます。
また、ルフォンプログレ秋葉原イースト 1002では、安心が日常に溶け込んでいます。オートロック付きのエントランスや、バイク置場、駐輪場など、セキュリティに配慮した設備が整い、外界からの安全を確保します。宅配ボックスや管理人の存在は、生活の煩わしさを軽減し、常に充実した時間を持つことを可能にします。
この地、東京都台東区は、歴史と文化が交わる特別な場所です。近隣には、江戸の面影を残す下町情緒が漂い、伝統と現代が融合した街並みが広がっています。日々の散歩がまるでタイムスリップしたかのような感覚を与えてくれることでしょう。浅草橋駅から徒歩8分というアクセスの良さも、日常の一部としてあなたを迎え入れます。
ルフォンプログレ秋葉原イースト 1002。この場所が、あなたの心の安らぎを育み、素敵な日々を紡ぐ舞台となることを願っています。ここでの生活は、まるで映画のワンシーンのように、毎日が特別な瞬間に満ち溢れていることでしょう。さあ、この新たな旅路を共に歩んでみませんか?あなたを待っているのは、ただの物件ではなく、心を満たす暮らしの物語なのです。
バイブルスコア
バイブルスコア: 16.5
高級な物件でない場合は割高な物件です。。
※バイブルスコア詳細はこちら
バイブルスコアとは独自のAI機械学習技術を利用した物件評価システムで、物件のおすすめ度を示します。最高得点は100点で、スコアが高いほど、よりおすすめの物件と評価されています。
写真
契約条件
| 賃料 | 予想金額:196,000〜216,000円程度 | 管理費 | 予想金額:18,000〜22,000円程度 |
| 礼金 | 非公開(アーカイブ) | 敷金 | 非公開(アーカイブ) |
| フリーレント | なし | 平米数 | 40.21㎡ |
| 間取り | 2LDK | 大型収納 | WIC+SIC |
| 契約期間 |
| 方角 | 南 |
| 更新料 | 契約形態 | 普通賃貸借契約 | |
| 取引態様 | 媒介 | 内見状況 | 入居中 |
| 入居時期 | 入居中 | SOHO・事務所 | |
| ペット | ペット可 | 間取り内訳 | 洋:4 洋:3.4 LDK:10 |
| キャンペーン情報・備考 | 本情報は賃料改定交渉の資料作成、収益物件の利回り試算、周辺エリアや最寄り駅の坪単価分析、次回募集開始時期の予測などにご活用いただけます。 | ||
※「どの不動産に頼めばいいのか分からない」「信頼できる営業マンの話を聞きたい」「一番親切な会社と契約したい」とお悩みの方におすすめなのが「高級賃貸バイブル」です。
高級賃貸バイブルは業界10年以上の熟練スタッフ群がお客様ファーストで対応します。
下記ボタンから、まずは無料でご相談下さい。
※内覧をご希望の際には、どうぞ物件のエントランス前にてお待ち合わせくださいませ。ご内覧後は、同じ場所でお別れとさせていただきます。お客様のご都合に合わせたスムーズなご案内を心がけておりますので、ご質問等がございましたら何なりとお申し付けください。 物件概要
| 物件名 |
| 築年月 |
|
|---|---|---|---|
| 所在地 | |||
| 交通 | |||
| 総戸数 |
| 総階数 |
|
| 構造 |
| ||
地図
物件までの道のりは、「拡大地図を表示」をクリックしてナビ機能をご利用ください。
部屋設備




















建物設備

TVモニターホン

エレベーター

オートロック

バイク置場

ラウンジ

宅配ボックス

敷地内ゴミ置場

管理人

駐輪場
ルフォンプログレ秋葉原イーストの現在募集中のお部屋
- No rooms found for this property.



























