
| 賃料 | 予想金額:139,000〜159,000円程度 | 管理費 | 予想金額:7,000〜11,000円程度 |
| 礼金/敷金 | 非公開(アーカイブ) | 平米数 | 39.68㎡ |
| 初期費用概算(参考) | 目安:576,500〜676,500 円 | みなし賃料(月額・参考) | 157,948〜177,948 円 |
| 備考 | 本ページは過去募集のアーカイブです。表示の金額は周辺相場・過去募集を踏まえた参考レンジであり、実際の契約金額・条件ではありません。 | ||
※上記みなし賃料(月額)は仲介手数料割引・無料&キャッシュバックを加味した高級賃貸バイブル限定の金額です。一般的なみなし賃料とは異なります。
【建物ページ】MFPRコート木場公園の詳細・最新空室はこちら▶▶選ばれる理由
仲介手数料無料・キャンペーン情報(毎月15名様限定)
〇仲介手数料割引キャンペーン
MFPRコート木場公園 1312の口コミ・レビュー
MFPRコート木場公園 1312は、まるで都会の真ん中に佇む一篇の詩のように、あなたを魅了する場所です。東京都江東区東陽6-2-13に位置するこの高級賃貸物件は、優雅な生活を求めるあなたに寄り添い、日常を特別な瞬間へと昇華させてくれます。どこまでも広がる青空を背に、東と北の二方向からの明るい日差しが、あなたを優しく包み込みます。
この美しい住まいは、専有面積39.68㎡に巧妙に配置された1LDK…MFPRコート木場公園 1312は、まるで都会の真ん中に佇む一篇の詩のように、あなたを魅了する場所です。東京都江東区東陽6-2-13に位置するこの高級賃貸物件は、優雅な生活を求めるあなたに寄り添い、日常を特別な瞬間へと昇華させてくれます。どこまでも広がる青空を背に、東と北の二方向からの明るい日差しが、あなたを優しく包み込みます。
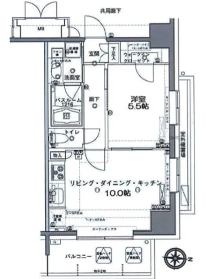
この美しい住まいは、専有面積39.68㎡に巧妙に配置された1LDK、間取り詳細には洋室5.5帖、リビングダイニングキッチン10帖が含まれています。これに足を踏み入れた瞬間、まるで高級ホテルのスイートルームにいるかのような心地よい緊張感が漂います。広々としたリビングでは、友人たちと笑い声が響き渡り、特製のディナーを楽しむシーンが目に浮かびます。ダイニングテーブルには、あたたかなキャンドルの光が揺れ、芳醇なワインの香りが鼻腔をくすぐります。
MFPRコート木場公園 1312は、ただの住まいではなく、生活を彩る舞台のようです。朝は窓から差し込む心地よい風が、まるで自然のセラピストのように、一日の始まりを教えてくれます。心地よい光の中で、あなたは新たな希望に満ちた一日を迎え、都市の喧騒を忘れさせてくれる静謐さを感じることができるでしょう。
また、この物件には、豊富な設備が整っています。TVモニターホンは、外の安全を見守り、エレベーターはあなたを空へと誘います。オートロックの扉をくぐれば、そこには落ち着いた空間が広がり、バイク置場や駐車場も完備されています。宅配ボックスがあることで、仕事に追われる忙しいあなたの生活も、スムーズに進行します。敷地内のゴミ置場や管理人も、安心感を提供してくれ、まるで長年の友人のように寄り添ってくれます。
周辺には、木場公園という名のオアシスがあり、四季折々の自然が息づく場所です。その自然の中を散歩するひとときは、心の栄養となり、忙しい日常からの小さな逃避をもたらしてくれます。木場の歴史は深く、かつては江戸時代にさかのぼる船の荷揚げ場として栄え、文化と人々の交流が生まれた地でもあります。このエリアには、運河沿いの風景やアートなカフェが点在しており、あなたの感性を刺激することでしょう。
MFPRコート木場公園 1312の暮らしは、まるで映画のワンシーンのようです。洗練されたセンスと心地よい居住空間が共鳴し、あなたの心に深く刻まれることでしょう。自分だけの物語を紡ぎ出すために、さあ、この特別な場所へと足を運んでみてはいかがでしょうか。あなたの新しい生活が、ここで始まるのです。
この美しい住まいは、専有面積39.68㎡に巧妙に配置された1LDK…MFPRコート木場公園 1312は、まるで都会の真ん中に佇む一篇の詩のように、あなたを魅了する場所です。東京都江東区東陽6-2-13に位置するこの高級賃貸物件は、優雅な生活を求めるあなたに寄り添い、日常を特別な瞬間へと昇華させてくれます。どこまでも広がる青空を背に、東と北の二方向からの明るい日差しが、あなたを優しく包み込みます。
この美しい住まいは、専有面積39.68㎡に巧妙に配置された1LDK、間取り詳細には洋室5.5帖、リビングダイニングキッチン10帖が含まれています。これに足を踏み入れた瞬間、まるで高級ホテルのスイートルームにいるかのような心地よい緊張感が漂います。広々としたリビングでは、友人たちと笑い声が響き渡り、特製のディナーを楽しむシーンが目に浮かびます。ダイニングテーブルには、あたたかなキャンドルの光が揺れ、芳醇なワインの香りが鼻腔をくすぐります。
MFPRコート木場公園 1312は、ただの住まいではなく、生活を彩る舞台のようです。朝は窓から差し込む心地よい風が、まるで自然のセラピストのように、一日の始まりを教えてくれます。心地よい光の中で、あなたは新たな希望に満ちた一日を迎え、都市の喧騒を忘れさせてくれる静謐さを感じることができるでしょう。
また、この物件には、豊富な設備が整っています。TVモニターホンは、外の安全を見守り、エレベーターはあなたを空へと誘います。オートロックの扉をくぐれば、そこには落ち着いた空間が広がり、バイク置場や駐車場も完備されています。宅配ボックスがあることで、仕事に追われる忙しいあなたの生活も、スムーズに進行します。敷地内のゴミ置場や管理人も、安心感を提供してくれ、まるで長年の友人のように寄り添ってくれます。
周辺には、木場公園という名のオアシスがあり、四季折々の自然が息づく場所です。その自然の中を散歩するひとときは、心の栄養となり、忙しい日常からの小さな逃避をもたらしてくれます。木場の歴史は深く、かつては江戸時代にさかのぼる船の荷揚げ場として栄え、文化と人々の交流が生まれた地でもあります。このエリアには、運河沿いの風景やアートなカフェが点在しており、あなたの感性を刺激することでしょう。
MFPRコート木場公園 1312の暮らしは、まるで映画のワンシーンのようです。洗練されたセンスと心地よい居住空間が共鳴し、あなたの心に深く刻まれることでしょう。自分だけの物語を紡ぎ出すために、さあ、この特別な場所へと足を運んでみてはいかがでしょうか。あなたの新しい生活が、ここで始まるのです。
バイブルスコア
バイブルスコア: 23.9
平均的なスコアです。
※バイブルスコア詳細はこちら
バイブルスコアとは独自のAI機械学習技術を利用した物件評価システムで、物件のおすすめ度を示します。最高得点は100点で、スコアが高いほど、よりおすすめの物件と評価されています。
写真
契約条件
| 賃料 | 予想金額:139,000〜159,000円程度 | 管理費 | 予想金額:7,000〜11,000円程度 |
| 礼金 | 非公開(アーカイブ) | 敷金 | 非公開(アーカイブ) |
| フリーレント | なし | 平米数 | 39.68㎡ |
| 間取り | 1LDK | 大型収納 | WIC |
| 契約期間 |
| 方角 | 東 / 北 |
| 更新料 | 契約形態 | 普通賃貸借契約 | |
| 取引態様 | 媒介 | 内見状況 | 入居中 |
| 入居時期 | 入居中 | SOHO・事務所 | |
| ペット | 間取り内訳 | 洋:5.5 LDK:10 | |
| キャンペーン情報・備考 | 本情報は賃料改定交渉の資料作成、収益物件の利回り試算、周辺エリアや最寄り駅の坪単価分析、次回募集開始時期の予測などにご活用いただけます。 | ||
※「どの不動産に頼めばいいのか分からない」「信頼できる営業マンの話を聞きたい」「一番親切な会社と契約したい」とお悩みの方におすすめなのが「高級賃貸バイブル」です。
高級賃貸バイブルは業界10年以上の熟練スタッフ群がお客様ファーストで対応します。
下記ボタンから、まずは無料でご相談下さい。
※内覧をご希望の際には、どうぞ物件のエントランス前にてお待ち合わせくださいませ。ご内覧後は、同じ場所でお別れとさせていただきます。お客様のご都合に合わせたスムーズなご案内を心がけておりますので、ご質問等がございましたら何なりとお申し付けください。 物件概要
| 物件名 |
| 築年月 |
|
|---|---|---|---|
| 所在地 | |||
| 交通 | |||
| 総戸数 |
| 総階数 |
|
| 構造 |
| ||
地図
物件までの道のりは、「拡大地図を表示」をクリックしてナビ機能をご利用ください。
部屋設備















建物設備

TVモニターホン

エレベーター

オートロック

バイク置場

宅配ボックス

敷地内ゴミ置場

管理人

駐車場平置き

駐車場機械式

駐輪場
MFPRコート木場公園の現在募集中のお部屋
- MFPRコート木場公園 212 - 間取り: 1LDK+WIC - 賃料: 17.3万円
- MFPRコート木場公園 211 - 間取り: 1LDK - 賃料: 17.7万円
- MFPRコート木場公園 1122 - 間取り: 1LDK - 賃料: 17.7万円
- MFPRコート木場公園 522 - 間取り: 1LDK - 賃料: 17.4万円
- MFPRコート木場公園 1012 - 間取り: 1LDK+WIC - 賃料: 18.1万円



























