
| 賃料 | 予想金額:105,000〜125,000円程度 | 管理費 | 予想金額:8,000〜12,000円程度 |
| 礼金/敷金 | 非公開(アーカイブ) | 平米数 | 28.84㎡ |
| 初期費用概算(参考) | 目安:229,000〜329,000 円 | みなし賃料(月額・参考) | 120,813〜140,813 円 |
| 備考 | 本ページは過去募集のアーカイブです。表示の金額は周辺相場・過去募集を踏まえた参考レンジであり、実際の契約金額・条件ではありません。 | ||
※上記みなし賃料(月額)は仲介手数料割引・無料&キャッシュバックを加味した高級賃貸バイブル限定の金額です。一般的なみなし賃料とは異なります。
【建物ページ】パークハビオ門前仲町の詳細・最新空室はこちら▶▶選ばれる理由
仲介手数料無料・キャンペーン情報(毎月15名様限定)
〇フリーレント3か月キャンペーン
パークハビオ門前仲町 312の口コミ・レビュー
パークハビオ門前仲町 312は、まるで時空を超えたかのような優雅さを纏った住まいです。この、美しい空間は、東京都江東区深川2-5-11という歴史と文化が交差する地に位置し、北向きの窓からは柔らかな陽射しが注ぎ込みます。あなたがこの特別な場所を選ぶことで、日常がどれほど豊かで美しいものになるか、想像してみてください。
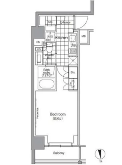
この物件は、専有面積28.84㎡のコンパクトながらも居心地の良い1Kの間取りで、…パークハビオ門前仲町 312は、まるで時空を超えたかのような優雅さを纏った住まいです。この、美しい空間は、東京都江東区深川2-5-11という歴史と文化が交差する地に位置し、北向きの窓からは柔らかな陽射しが注ぎ込みます。あなたがこの特別な場所を選ぶことで、日常がどれほど豊かで美しいものになるか、想像してみてください。
この物件は、専有面積28.84㎡のコンパクトながらも居心地の良い1Kの間取りで、洋室は8.6帖の広さを誇ります。あなたがこの空間に足を踏み入れると、まるで自分自身が映画の主人公になったような錯覚に陥ります。鏡のように磨かれたフロアが一歩ごとに心地よく響き渡り、日々の喧騒を忘れさせてくれます。
パークハビオ門前仲町 312には、エレガントなTVモニターホンがあり、来訪者を優雅に迎え入れることができます。オートロックの扉を通り抜けることで、まるで貴族の邸宅に足を踏み入れるかのような特別な感覚を味わえます。さらに、デザイナーズという名のもとに、アートと機能が調和した洗練された空間が広がっており、どこを見ても美しさが感じられます。
週末には、バイク置場に愛車を止めて、軽快なエンジンの音を響かせながら、街に繰り出します。そこには様々な飲食店やカフェが立ち並び、豊かな香りがあなたを誘います。特に、隣接する公園で感じる風の匂いは、心をリフレッシュさせてくれることでしょう。宅配ボックスの利便性もあり、忙しい日々の中でも、あなたの大切な時間を奪うことはありません。管理人の存在は、まるで家族のようにあなたの生活を支えてくれます。
そして、パークハビオ門前仲町 312の窓からは、都会の景色を一望しながら、夕焼けの色彩に浸ることができます。空が赤やオレンジに染まる瞬間、あなたの心もその美しさに魅了され、日々のストレスが解き放たれていくのを感じるでしょう。周りに広がる歴史ある街並みと融合し、その時代の息吹を肌で感じることができる贅沢な環境が、あなたを待っています。
これらの素晴らしい要素が組み合わさったパークハビオ門前仲町 312は、ただの住まいではなく、特別な物語の始まりです。あなた自身の生活を、この高級感あふれる空間の中で紡いでいくことができるのです。さあ、あなたもこの特別な場所に足を運び、日常の中に秘められた非日常を体験してみてはいかがでしょうか。パークハビオ門前仲町 312が、あなたの新しい人生の舞台となることを心より願っています。
この物件は、専有面積28.84㎡のコンパクトながらも居心地の良い1Kの間取りで、…パークハビオ門前仲町 312は、まるで時空を超えたかのような優雅さを纏った住まいです。この、美しい空間は、東京都江東区深川2-5-11という歴史と文化が交差する地に位置し、北向きの窓からは柔らかな陽射しが注ぎ込みます。あなたがこの特別な場所を選ぶことで、日常がどれほど豊かで美しいものになるか、想像してみてください。
この物件は、専有面積28.84㎡のコンパクトながらも居心地の良い1Kの間取りで、洋室は8.6帖の広さを誇ります。あなたがこの空間に足を踏み入れると、まるで自分自身が映画の主人公になったような錯覚に陥ります。鏡のように磨かれたフロアが一歩ごとに心地よく響き渡り、日々の喧騒を忘れさせてくれます。
パークハビオ門前仲町 312には、エレガントなTVモニターホンがあり、来訪者を優雅に迎え入れることができます。オートロックの扉を通り抜けることで、まるで貴族の邸宅に足を踏み入れるかのような特別な感覚を味わえます。さらに、デザイナーズという名のもとに、アートと機能が調和した洗練された空間が広がっており、どこを見ても美しさが感じられます。
週末には、バイク置場に愛車を止めて、軽快なエンジンの音を響かせながら、街に繰り出します。そこには様々な飲食店やカフェが立ち並び、豊かな香りがあなたを誘います。特に、隣接する公園で感じる風の匂いは、心をリフレッシュさせてくれることでしょう。宅配ボックスの利便性もあり、忙しい日々の中でも、あなたの大切な時間を奪うことはありません。管理人の存在は、まるで家族のようにあなたの生活を支えてくれます。
そして、パークハビオ門前仲町 312の窓からは、都会の景色を一望しながら、夕焼けの色彩に浸ることができます。空が赤やオレンジに染まる瞬間、あなたの心もその美しさに魅了され、日々のストレスが解き放たれていくのを感じるでしょう。周りに広がる歴史ある街並みと融合し、その時代の息吹を肌で感じることができる贅沢な環境が、あなたを待っています。
これらの素晴らしい要素が組み合わさったパークハビオ門前仲町 312は、ただの住まいではなく、特別な物語の始まりです。あなた自身の生活を、この高級感あふれる空間の中で紡いでいくことができるのです。さあ、あなたもこの特別な場所に足を運び、日常の中に秘められた非日常を体験してみてはいかがでしょうか。パークハビオ門前仲町 312が、あなたの新しい人生の舞台となることを心より願っています。
バイブルスコア
バイブルスコア: 49.0
条件のいい物件です、引っ越しが2か月以内の場合は仮申し込みを検討すべき物件です。
※バイブルスコア詳細はこちら
バイブルスコアとは独自のAI機械学習技術を利用した物件評価システムで、物件のおすすめ度を示します。最高得点は100点で、スコアが高いほど、よりおすすめの物件と評価されています。
写真
契約条件
| 賃料 | 予想金額:105,000〜125,000円程度 | 管理費 | 予想金額:8,000〜12,000円程度 |
| 礼金 | 非公開(アーカイブ) | 敷金 | 非公開(アーカイブ) |
| フリーレント | 3.0ヶ月 | 平米数 | 28.84㎡ |
| 間取り | 1K | 大型収納 | SIC |
| 契約期間 |
| 方角 | 北 |
| 更新料 | 契約形態 | 普通賃貸借契約 | |
| 取引態様 | 媒介 | 内見状況 | 入居中 |
| 入居時期 | 入居中 | SOHO・事務所 | 事務所(SOHO)可 |
| ペット | ペット可 | 間取り内訳 | 洋:8.6 |
| キャンペーン情報・備考 | 本情報は賃料改定交渉の資料作成、収益物件の利回り試算、周辺エリアや最寄り駅の坪単価分析、次回募集開始時期の予測などにご活用いただけます。 | ||
※「どの不動産に頼めばいいのか分からない」「信頼できる営業マンの話を聞きたい」「一番親切な会社と契約したい」とお悩みの方におすすめなのが「高級賃貸バイブル」です。
高級賃貸バイブルは業界10年以上の熟練スタッフ群がお客様ファーストで対応します。
下記ボタンから、まずは無料でご相談下さい。
※内覧をご希望の際には、どうぞ物件のエントランス前にてお待ち合わせくださいませ。ご内覧後は、同じ場所でお別れとさせていただきます。お客様のご都合に合わせたスムーズなご案内を心がけておりますので、ご質問等がございましたら何なりとお申し付けください。 物件概要
| 物件名 |
| 築年月 |
|
|---|---|---|---|
| 所在地 | |||
| 交通 | |||
| 総戸数 |
| 総階数 |
|
| 構造 |
| ||
地図
物件までの道のりは、「拡大地図を表示」をクリックしてナビ機能をご利用ください。
部屋設備















建物設備

TVモニターホン

エレベーター

オートロック

バイク置場

宅配ボックス

敷地内ゴミ置場

管理人

駐車場平置き

駐車場機械式

駐輪場
パークハビオ門前仲町の現在募集中のお部屋
- パークハビオ門前仲町 1304 - 間取り: 1R - 賃料: 15.7万円
- パークハビオ門前仲町 1307 - 間取り: 1DK - 賃料: 16万円






























