
| 賃料 | 予想金額:270,000〜290,000円程度 | 管理費 | 予想金額:13,000〜17,000円程度 |
| 礼金/敷金 | 非公開(アーカイブ) | 平米数 | 51.3㎡ |
| 初期費用概算(参考) | 目安:631,500〜731,500 円 | みなし賃料(月額・参考) | 293,365〜313,365 円 |
| 備考 | 本ページは過去募集のアーカイブです。表示の金額は周辺相場・過去募集を踏まえた参考レンジであり、実際の契約金額・条件ではありません。 | ||
※上記みなし賃料(月額)は仲介手数料割引・無料&キャッシュバックを加味した高級賃貸バイブル限定の金額です。一般的なみなし賃料とは異なります。
【建物ページ】ザ・パークハビオ神泉の詳細・最新空室はこちら▶▶選ばれる理由
仲介手数料無料・キャンペーン情報(毎月15名様限定)
〇引っ越しお祝い金61000円プレゼント(キャッシュバック)
〇仲介手数料無料キャンペーン
ザ・パークハビオ神泉 509の口コミ・レビュー
ザ・パークハビオ神泉 509。ここに足を踏み入れた瞬間、あなたは新たな物語の幕開けに立ち会うことになります。この特別な空間は、東京都目黒区駒場1-1-6に位置し、東向きの窓からは一日の始まりを告げる優しい朝日が差し込みます。509の扉を開ければ、あなたの新生活が待っているのです。
この住まいは、ただの物件ではありません。まるで優雅な指揮者が音楽を操るかのように、LDK12.8帖の広々とした空間が…ザ・パークハビオ神泉 509。ここに足を踏み入れた瞬間、あなたは新たな物語の幕開けに立ち会うことになります。この特別な空間は、東京都目黒区駒場1-1-6に位置し、東向きの窓からは一日の始まりを告げる優しい朝日が差し込みます。509の扉を開ければ、あなたの新生活が待っているのです。
この住まいは、ただの物件ではありません。まるで優雅な指揮者が音楽を操るかのように、LDK12.8帖の広々とした空間が心を包み込み、日々の忙しさを忘れさせる瞬間が広がります。フローリングが足元で柔らかく響く様子は、まるで穏やかな森林の中を歩いているかのよう。光が弾ける窓辺に座って、熱いコーヒーの香りを楽しむ贅沢な時間。その後ろには、6.1帖の洋室が控えており、プライベートな空間で安らぎのひとときをもたらしてくれます。大切な人との語らいや、静かな読書の時間をこの空間でお楽しみいただけることでしょう。
ザ・パークハビオ神泉 509には、安心を提供する多くの設備が整っています。エレベーターでの上昇感は、まるで空に浮かぶ船のように心を高揚させ、オートロックが施された扉を通れば、あなたは現実世界から一時的に解放され、特別な空間へと誘われます。宅配ボックスは、まるで大切な贈り物がいつでもあなたのもとに届く魔法の箱のように、日常に小さな喜びをもたらしてくれることでしょう。
この物件の魅力はその立地にもあります。京王井の頭線の神泉駅から徒歩7分という便利なアクセス。近隣には豊かな自然が息づく公園や、アートと歴史が交差する街並みがあります。まるで時代を超えた旅人がこの地を訪れ、感動を覚えるかのような風景が広がっています。あなたの生活は、まるで映画のワンシーンのように、感動的な瞬間に彩られることでしょう。
そして、ザ・パークハビオ神泉 509には、あなた自身の物語が待っています。感情を揺さぶるような朝焼けに包まれ、優雅な夕暮れの中で心を癒やす時、そして星空の下で夢を語り合う夜。ここでの生活は、一つ一つの瞬間が特別であり、日常の中にある非日常を感じさせてくれます。
今こそ、ザ・パークハビオ神泉 509で新たな生活を始める時です。あなたの人生を彩る素晴らしい体験が、すぐそこに待っているのです。心を躍らせてこの場所に身を委ね、新しい物語を紡いでいきましょう。あなたの帰る場所が、ここにあるのです。
この住まいは、ただの物件ではありません。まるで優雅な指揮者が音楽を操るかのように、LDK12.8帖の広々とした空間が…ザ・パークハビオ神泉 509。ここに足を踏み入れた瞬間、あなたは新たな物語の幕開けに立ち会うことになります。この特別な空間は、東京都目黒区駒場1-1-6に位置し、東向きの窓からは一日の始まりを告げる優しい朝日が差し込みます。509の扉を開ければ、あなたの新生活が待っているのです。
この住まいは、ただの物件ではありません。まるで優雅な指揮者が音楽を操るかのように、LDK12.8帖の広々とした空間が心を包み込み、日々の忙しさを忘れさせる瞬間が広がります。フローリングが足元で柔らかく響く様子は、まるで穏やかな森林の中を歩いているかのよう。光が弾ける窓辺に座って、熱いコーヒーの香りを楽しむ贅沢な時間。その後ろには、6.1帖の洋室が控えており、プライベートな空間で安らぎのひとときをもたらしてくれます。大切な人との語らいや、静かな読書の時間をこの空間でお楽しみいただけることでしょう。
ザ・パークハビオ神泉 509には、安心を提供する多くの設備が整っています。エレベーターでの上昇感は、まるで空に浮かぶ船のように心を高揚させ、オートロックが施された扉を通れば、あなたは現実世界から一時的に解放され、特別な空間へと誘われます。宅配ボックスは、まるで大切な贈り物がいつでもあなたのもとに届く魔法の箱のように、日常に小さな喜びをもたらしてくれることでしょう。
この物件の魅力はその立地にもあります。京王井の頭線の神泉駅から徒歩7分という便利なアクセス。近隣には豊かな自然が息づく公園や、アートと歴史が交差する街並みがあります。まるで時代を超えた旅人がこの地を訪れ、感動を覚えるかのような風景が広がっています。あなたの生活は、まるで映画のワンシーンのように、感動的な瞬間に彩られることでしょう。
そして、ザ・パークハビオ神泉 509には、あなた自身の物語が待っています。感情を揺さぶるような朝焼けに包まれ、優雅な夕暮れの中で心を癒やす時、そして星空の下で夢を語り合う夜。ここでの生活は、一つ一つの瞬間が特別であり、日常の中にある非日常を感じさせてくれます。
今こそ、ザ・パークハビオ神泉 509で新たな生活を始める時です。あなたの人生を彩る素晴らしい体験が、すぐそこに待っているのです。心を躍らせてこの場所に身を委ね、新しい物語を紡いでいきましょう。あなたの帰る場所が、ここにあるのです。
バイブルスコア
バイブルスコア: 98.6
レア物件です、すぐ仮押さえしましょう!
このお部屋は、現在ご入居中のため空室情報はございません。ただし、将来的に募集が開始される際、バイブルスコアにおいて非常に高い評価が期待されます。特にご興味をお持ちの方は、今のうちにブックマークやお気に入りに登録していただくと、募集開始のお知らせをすぐに受け取ることができます。是非ともご検討くださいませ。
※バイブルスコア詳細はこちら
バイブルスコアとは独自のAI機械学習技術を利用した物件評価システムで、物件のおすすめ度を示します。最高得点は100点で、スコアが高いほど、よりおすすめの物件と評価されています。
写真
現在写真が登録されていません契約条件
| 賃料 | 予想金額:270,000〜290,000円程度 | 管理費 | 予想金額:13,000〜17,000円程度 |
| 礼金 | 非公開(アーカイブ) | 敷金 | 非公開(アーカイブ) |
| フリーレント | なし | 平米数 | 51.3㎡ |
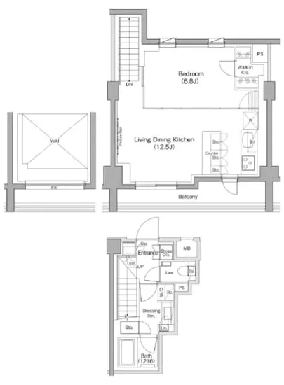
| 間取り | 1LDK+WIC+SIC | 大型収納 | SIC・WIC |
| 契約期間 | 2年 | 方角 | 東 |
| 更新料 | 1ヶ月 | 契約形態 | 普通賃貸借契約 |
| 取引態様 | 媒介 | 内見状況 | 入居中 |
| 入居時期 | 入居中 | SOHO・事務所 | 相談 |
| ペット | 相談 | 間取り内訳 | LDK12.8帖 洋室6.1帖 |
| キャンペーン情報・備考 | 本情報は賃料改定交渉の資料作成、収益物件の利回り試算、周辺エリアや最寄り駅の坪単価分析、次回募集開始時期の予測などにご活用いただけます。 | ||
※「どの不動産に頼めばいいのか分からない」「信頼できる営業マンの話を聞きたい」「一番親切な会社と契約したい」とお悩みの方におすすめなのが「高級賃貸バイブル」です。
高級賃貸バイブルは業界10年以上の熟練スタッフ群がお客様ファーストで対応します。
下記ボタンから、まずは無料でご相談下さい。
※内覧をご希望の際には、どうぞ物件のエントランス前にてお待ち合わせくださいませ。ご内覧後は、同じ場所でお別れとさせていただきます。お客様のご都合に合わせたスムーズなご案内を心がけておりますので、ご質問等がございましたら何なりとお申し付けください。 物件概要
| 物件名 |
| 築年月 |
|
|---|---|---|---|
| 所在地 | |||
| 交通 | |||
| 総戸数 |
| 総階数 |
|
| 構造 |
| ||
地図
物件までの道のりは、「拡大地図を表示」をクリックしてナビ機能をご利用ください。
部屋設備














建物設備

TVモニターホン

エレベーター

オートロック

バイク置場

宅配ボックス

敷地内ゴミ置場

管理人

駐車場平置き

駐車場機械式

駐輪場
ザ・パークハビオ神泉の現在募集中のお部屋
- No rooms found for this property.
