
| 賃料 | 予想金額:102,000〜122,000円程度 | 管理費 | 予想金額:0〜2,000円程度 |
| 礼金/敷金 | 非公開(アーカイブ) | 平米数 | 25.98㎡ |
| 初期費用概算(参考) | 目安:433,500〜533,500 円 | みなし賃料(月額・参考) | 109,740〜129,740 円 |
| 備考 | 本ページは過去募集のアーカイブです。表示の金額は周辺相場・過去募集を踏まえた参考レンジであり、実際の契約金額・条件ではありません。 | ||
※上記みなし賃料(月額)は仲介手数料割引・無料&キャッシュバックを加味した高級賃貸バイブル限定の金額です。一般的なみなし賃料とは異なります。
【建物ページ】カスタリア日本橋の詳細・最新空室はこちら▶▶選ばれる理由
仲介手数料無料・キャンペーン情報(毎月15名様限定)
〇仲介手数料割引キャンペーン
カスタリア日本橋 301の口コミ・レビュー
カスタリア日本橋 301。あなたの新たな物語の舞台が、ここにあります。この魅力的な物件は、東京都中央区日本橋兜町11-2という歴史と現代が交差する立地に佇み、南東に向かってその顔を輝かせています。301号室は、まるで都会のオアシスのように、静かな高級感を纏い、あなただけの特別な空間を提供します。
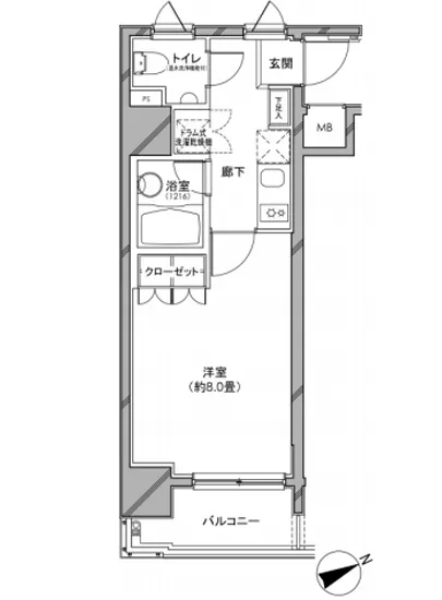
25.98㎡の広さを存分に生かした1Kの設計は、生活に必要なすべてを華やかに装飾します。洋室は8.0…カスタリア日本橋 301。あなたの新たな物語の舞台が、ここにあります。この魅力的な物件は、東京都中央区日本橋兜町11-2という歴史と現代が交差する立地に佇み、南東に向かってその顔を輝かせています。301号室は、まるで都会のオアシスのように、静かな高級感を纏い、あなただけの特別な空間を提供します。
25.98㎡の広さを存分に生かした1Kの設計は、生活に必要なすべてを華やかに装飾します。洋室は8.0帖、柔らかな光が降り注ぐ、心地よい空間です。窓の外には都市の風景が広がり、朝の光で目覚めた瞬間、まるで自分が主演する映画のワンシーンのように、一日の始まりを感じさせてくれます。あなたはここで、コーヒーの香ばしい香りを味わいながら、静かな朝のひとときを楽しむことができるのです。
カスタリア日本橋 301は、まるであなたの隣に寄り添う親しい友のように、生活をサポートします。オートロックやTVモニターホンなどの最新設備が、安心と快適さを提供し、デザイナーズの洗練されたデザインが暮らしに美しさを添えます。宅配ボックスは、あなたの大切な荷物を守る忠実な番人。まるで信頼のおける執事のように、忙しい日常から少しだけ解放してくれます。
生活する喜びは、周囲の環境にも深く根付いています。東京メトロ東西線茅場町駅まで徒歩2分という絶好の立地は、あなたの毎日の移動をスムーズにし、都心の魅力を存分に楽しむ土台を築いてくれます。歴史的な日本橋は、文化と商業が交錯する場所。古い町並みやエネルギッシュなビジネス街が、あなたの生活に多彩な色を与えてくれることでしょう。
夜になると、カスタリア日本橋 301は再び別の顔を見せます。外の喧騒が静まり、周囲の灯りが優しく輝く中、あなたは贅沢な気分に浸ることができます。窓から見える夜景は、まるで宝石が散りばめられたような美しさ。日々の疲れを忘れさせてくれるこの空間で、あなたは自分自身と向き合う時間を持つことができます。
カスタリア日本橋 301は、ただの住まいではなく、あなたの暮らしに新たな物語を与える場所です。ここでの生活は、洗練されたアートのように、感性を刺激し、心を豊かにしてくれることでしょう。あなたの新しい生活が、ここから始まるのです。どうか、この特別な空間にあなた自身を委ねてみてください。あなたの人生のストーリーに、カスタリア日本橋 301という名の章を加え、心躍る毎日を共に紡いでいきましょう。
25.98㎡の広さを存分に生かした1Kの設計は、生活に必要なすべてを華やかに装飾します。洋室は8.0…カスタリア日本橋 301。あなたの新たな物語の舞台が、ここにあります。この魅力的な物件は、東京都中央区日本橋兜町11-2という歴史と現代が交差する立地に佇み、南東に向かってその顔を輝かせています。301号室は、まるで都会のオアシスのように、静かな高級感を纏い、あなただけの特別な空間を提供します。
25.98㎡の広さを存分に生かした1Kの設計は、生活に必要なすべてを華やかに装飾します。洋室は8.0帖、柔らかな光が降り注ぐ、心地よい空間です。窓の外には都市の風景が広がり、朝の光で目覚めた瞬間、まるで自分が主演する映画のワンシーンのように、一日の始まりを感じさせてくれます。あなたはここで、コーヒーの香ばしい香りを味わいながら、静かな朝のひとときを楽しむことができるのです。
カスタリア日本橋 301は、まるであなたの隣に寄り添う親しい友のように、生活をサポートします。オートロックやTVモニターホンなどの最新設備が、安心と快適さを提供し、デザイナーズの洗練されたデザインが暮らしに美しさを添えます。宅配ボックスは、あなたの大切な荷物を守る忠実な番人。まるで信頼のおける執事のように、忙しい日常から少しだけ解放してくれます。
生活する喜びは、周囲の環境にも深く根付いています。東京メトロ東西線茅場町駅まで徒歩2分という絶好の立地は、あなたの毎日の移動をスムーズにし、都心の魅力を存分に楽しむ土台を築いてくれます。歴史的な日本橋は、文化と商業が交錯する場所。古い町並みやエネルギッシュなビジネス街が、あなたの生活に多彩な色を与えてくれることでしょう。
夜になると、カスタリア日本橋 301は再び別の顔を見せます。外の喧騒が静まり、周囲の灯りが優しく輝く中、あなたは贅沢な気分に浸ることができます。窓から見える夜景は、まるで宝石が散りばめられたような美しさ。日々の疲れを忘れさせてくれるこの空間で、あなたは自分自身と向き合う時間を持つことができます。
カスタリア日本橋 301は、ただの住まいではなく、あなたの暮らしに新たな物語を与える場所です。ここでの生活は、洗練されたアートのように、感性を刺激し、心を豊かにしてくれることでしょう。あなたの新しい生活が、ここから始まるのです。どうか、この特別な空間にあなた自身を委ねてみてください。あなたの人生のストーリーに、カスタリア日本橋 301という名の章を加え、心躍る毎日を共に紡いでいきましょう。
バイブルスコア
バイブルスコア: 28.1
平均的なスコアです。
※バイブルスコア詳細はこちら
バイブルスコアとは独自のAI機械学習技術を利用した物件評価システムで、物件のおすすめ度を示します。最高得点は100点で、スコアが高いほど、よりおすすめの物件と評価されています。
写真
契約条件
| 賃料 | 予想金額:102,000〜122,000円程度 | 管理費 | 予想金額:0〜2,000円程度 |
| 礼金 | 非公開(アーカイブ) | 敷金 | 非公開(アーカイブ) |
| フリーレント | なし | 平米数 | 25.98㎡ |
| 間取り | 1K | 大型収納 | |
| 契約期間 |
| 方角 | 南東 |
| 更新料 | 契約形態 | 普通賃貸借契約 | |
| 取引態様 | 媒介 | 内見状況 | 入居中 |
| 入居時期 | 入居中 | SOHO・事務所 | |
| ペット | 間取り内訳 | 洋室:8.0 | |
| キャンペーン情報・備考 | 本情報は賃料改定交渉の資料作成、収益物件の利回り試算、周辺エリアや最寄り駅の坪単価分析、次回募集開始時期の予測などにご活用いただけます。 | ||
※「どの不動産に頼めばいいのか分からない」「信頼できる営業マンの話を聞きたい」「一番親切な会社と契約したい」とお悩みの方におすすめなのが「高級賃貸バイブル」です。
高級賃貸バイブルは業界10年以上の熟練スタッフ群がお客様ファーストで対応します。
下記ボタンから、まずは無料でご相談下さい。
※内覧をご希望の際には、どうぞ物件のエントランス前にてお待ち合わせくださいませ。ご内覧後は、同じ場所でお別れとさせていただきます。お客様のご都合に合わせたスムーズなご案内を心がけておりますので、ご質問等がございましたら何なりとお申し付けください。 物件概要
| 物件名 |
| 築年月 |
|
|---|---|---|---|
| 所在地 | |||
| 交通 | |||
| 総戸数 |
| 総階数 |
|
| 構造 |
| ||
地図
物件までの道のりは、「拡大地図を表示」をクリックしてナビ機能をご利用ください。
部屋設備













建物設備

TVモニターホン

エレベーター

オートロック

宅配ボックス

敷地内ゴミ置場

管理人

駐輪場
カスタリア日本橋の現在募集中のお部屋
- No rooms found for this property.



























