
| 賃料 | 予想金額:114,000〜134,000円程度 | 管理費 | 予想金額:13,000〜17,000円程度 |
| 礼金/敷金 | 非公開(アーカイブ) | 平米数 | 28.36㎡ |
| 初期費用概算(参考) | 目安:277,700〜377,700 円 | みなし賃料(月額・参考) | 133,244〜153,244 円 |
| 備考 | 本ページは過去募集のアーカイブです。表示の金額は周辺相場・過去募集を踏まえた参考レンジであり、実際の契約金額・条件ではありません。 | ||
※上記みなし賃料(月額)は仲介手数料割引・無料&キャッシュバックを加味した高級賃貸バイブル限定の金額です。一般的なみなし賃料とは異なります。
【建物ページ】レグノ・セレーノの詳細・最新空室はこちら▶▶選ばれる理由
仲介手数料無料・キャンペーン情報(毎月15名様限定)
〇引っ越しお祝い金24800円プレゼント(キャッシュバック)
〇仲介手数料無料キャンペーン
レグノ・セレーノ 515の口コミ・レビュー
私の名はレグノ・セレーノ 515、洗練された美しさを内に秘めたこの空間は、あなたの心の拠りどころとなることを約束します。東京都新宿区北新宿3-2-1に佇み、西の方角に広がる景色は、日々変わる光の表情とともに、あなたを迎え入れます。お部屋の広さは専有面積28.36㎡、1Rの間取りで、心地よい開放感を提供します。
私が住むこの場所は、まるで都会のオアシスのようです。日常の喧騒を忘れさせる静寂が漂い、…私の名はレグノ・セレーノ 515、洗練された美しさを内に秘めたこの空間は、あなたの心の拠りどころとなることを約束します。東京都新宿区北新宿3-2-1に佇み、西の方角に広がる景色は、日々変わる光の表情とともに、あなたを迎え入れます。お部屋の広さは専有面積28.36㎡、1Rの間取りで、心地よい開放感を提供します。
私が住むこの場所は、まるで都会のオアシスのようです。日常の喧騒を忘れさせる静寂が漂い、新宿の中心地からすぐ近くにありながら、心に余裕を持たせてくれるのです。エレガントなエントランスを抜けると、フロントサービスのスタッフが笑顔でお迎えし、まるで家族の一員のようにあなたを支えてくれます。24時間管理の安心感に包まれ、午後の陽射しが窓から差し込むと、自然と心が安らぎます。
この洋室9.6帖は、まるで一枚のキャンバスのように、あなたの生活を彩るための舞台装置です。高級感あふれる仕上げと、洗練されたデザインが心を打ち、飾り気のないシンプルさがあなたの個性を引き立てます。柔らかな光が差し込み、温かみのある空間で、あなたの大切な人と過ごす特別な時間が待っています。
フィットネスルームで体を動かし、活力に満ちた日々を送ることもできます。自分自身を磨くひととき、そこには心地よい筋肉の緊張と爽快な汗の香りが漂い、あなたの心を刺激してくれるでしょう。そして、エレベーターで上がるたびに、心躍る期待感に包まれ、秘密の隠れ家へと足を運ぶ感覚は、まるで映画のワンシーンのようです。
周辺には、歴史と文化が息づく新宿の街が広がり、古き良き時代の趣を感じることができます。静かな喫茶店で香り高いコーヒーを一杯、通り過ぎる人々の笑い声を耳にしながら、心地よい余韻に浸るひとときも、ここが特別な場所である理由の一つです。これは単なる居住空間ではなく、あなたの日常を彩る舞台です。
私、レグノ・セレーノ 515は、あなたの新しい生活のスタートを待っています。あなたがこの場所に足を踏み入れるその瞬間、すべてが新しく、輝きに満ちた物語が始まります。ここに住むことは、心の豊かさを感じることにつながります。どうぞ、私の懐へ飛び込んでください。一緒に、素晴らしい未来を描きましょう。
私が住むこの場所は、まるで都会のオアシスのようです。日常の喧騒を忘れさせる静寂が漂い、…私の名はレグノ・セレーノ 515、洗練された美しさを内に秘めたこの空間は、あなたの心の拠りどころとなることを約束します。東京都新宿区北新宿3-2-1に佇み、西の方角に広がる景色は、日々変わる光の表情とともに、あなたを迎え入れます。お部屋の広さは専有面積28.36㎡、1Rの間取りで、心地よい開放感を提供します。
私が住むこの場所は、まるで都会のオアシスのようです。日常の喧騒を忘れさせる静寂が漂い、新宿の中心地からすぐ近くにありながら、心に余裕を持たせてくれるのです。エレガントなエントランスを抜けると、フロントサービスのスタッフが笑顔でお迎えし、まるで家族の一員のようにあなたを支えてくれます。24時間管理の安心感に包まれ、午後の陽射しが窓から差し込むと、自然と心が安らぎます。
この洋室9.6帖は、まるで一枚のキャンバスのように、あなたの生活を彩るための舞台装置です。高級感あふれる仕上げと、洗練されたデザインが心を打ち、飾り気のないシンプルさがあなたの個性を引き立てます。柔らかな光が差し込み、温かみのある空間で、あなたの大切な人と過ごす特別な時間が待っています。
フィットネスルームで体を動かし、活力に満ちた日々を送ることもできます。自分自身を磨くひととき、そこには心地よい筋肉の緊張と爽快な汗の香りが漂い、あなたの心を刺激してくれるでしょう。そして、エレベーターで上がるたびに、心躍る期待感に包まれ、秘密の隠れ家へと足を運ぶ感覚は、まるで映画のワンシーンのようです。
周辺には、歴史と文化が息づく新宿の街が広がり、古き良き時代の趣を感じることができます。静かな喫茶店で香り高いコーヒーを一杯、通り過ぎる人々の笑い声を耳にしながら、心地よい余韻に浸るひとときも、ここが特別な場所である理由の一つです。これは単なる居住空間ではなく、あなたの日常を彩る舞台です。
私、レグノ・セレーノ 515は、あなたの新しい生活のスタートを待っています。あなたがこの場所に足を踏み入れるその瞬間、すべてが新しく、輝きに満ちた物語が始まります。ここに住むことは、心の豊かさを感じることにつながります。どうぞ、私の懐へ飛び込んでください。一緒に、素晴らしい未来を描きましょう。
バイブルスコア
バイブルスコア: 48.8
条件のいい物件です、引っ越しが2か月以内の場合は仮申し込みを検討すべき物件です。
※バイブルスコア詳細はこちら
バイブルスコアとは独自のAI機械学習技術を利用した物件評価システムで、物件のおすすめ度を示します。最高得点は100点で、スコアが高いほど、よりおすすめの物件と評価されています。
写真
契約条件
| 賃料 | 予想金額:114,000〜134,000円程度 | 管理費 | 予想金額:13,000〜17,000円程度 |
| 礼金 | 非公開(アーカイブ) | 敷金 | 非公開(アーカイブ) |
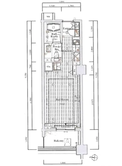
| フリーレント | なし | 平米数 | 28.36㎡ |
| 間取り | 1R | 大型収納 | なし |
| 契約期間 | 2年 | 方角 | 西 |
| 更新料 | 1ヶ月 | 契約形態 | 普通賃貸借契約 |
| 取引態様 | 媒介 | 内見状況 | 入居中 |
| 入居時期 | 入居中 | SOHO・事務所 | 不可 |
| ペット | ペット可 | 間取り内訳 | 洋:9.6 |
| キャンペーン情報・備考 | 本情報は賃料改定交渉の資料作成、収益物件の利回り試算、周辺エリアや最寄り駅の坪単価分析、次回募集開始時期の予測などにご活用いただけます。 | ||
※「どの不動産に頼めばいいのか分からない」「信頼できる営業マンの話を聞きたい」「一番親切な会社と契約したい」とお悩みの方におすすめなのが「高級賃貸バイブル」です。
高級賃貸バイブルは業界10年以上の熟練スタッフ群がお客様ファーストで対応します。
下記ボタンから、まずは無料でご相談下さい。
※内覧をご希望の際には、どうぞ物件のエントランス前にてお待ち合わせくださいませ。ご内覧後は、同じ場所でお別れとさせていただきます。お客様のご都合に合わせたスムーズなご案内を心がけておりますので、ご質問等がございましたら何なりとお申し付けください。 物件概要
| 物件名 |
| 築年月 |
|
|---|---|---|---|
| 所在地 | |||
| 交通 | |||
| 総戸数 |
| 総階数 |
|
| 構造 |
| ||
地図
物件までの道のりは、「拡大地図を表示」をクリックしてナビ機能をご利用ください。
部屋設備














建物設備

24時間管理

TVモニターホン

エレベーター

オートロック

バイク置場

フィットネス

フロントサービス

宅配ボックス

敷地内ゴミ置場

管理人

駐車場平置き

駐車場機械式

駐輪場
レグノ・セレーノの現在募集中のお部屋
- レグノ・セレーノ 4階 59.72㎡ - 間取り: 1LDK+WIC - 賃料: 28万円
- レグノ・セレーノ 19階 120.97㎡ - 間取り: 4K - 賃料: 58万円










