
| 賃料 | 予想金額:117,000〜137,000円程度 | 管理費 | 予想金額:6,000〜10,000円程度 |
| 礼金/敷金 | 非公開(アーカイブ) | 平米数 | 36.96㎡ |
| 初期費用概算(参考) | 目安:366,800〜466,800 円 | みなし賃料(月額・参考) | 131,038〜151,038 円 |
| 備考 | 本ページは過去募集のアーカイブです。表示の金額は周辺相場・過去募集を踏まえた参考レンジであり、実際の契約金額・条件ではありません。 | ||
※上記みなし賃料(月額)は仲介手数料割引・無料&キャッシュバックを加味した高級賃貸バイブル限定の金額です。一般的なみなし賃料とは異なります。
【建物ページ】カスタリア大塚2の詳細・最新空室はこちら▶▶選ばれる理由
仲介手数料無料・キャンペーン情報(毎月15名様限定)
〇引っ越しお祝い金12700円プレゼント(キャッシュバック)
〇仲介手数料無料キャンペーン
カスタリア大塚2 803の口コミ・レビュー
カスタリア大塚2 803という名の物件は、まるで現代の隠れ家として、都会の喧騒からひっそりと身を潜める一軒の美しい家です。この803号室は、南西と南東の二方向から光を受け止め、優雅に流れる光の筋が、お部屋の壁を柔らかく撫でることでしょう。36.96㎡という広さの中に、まるで夢のような生活が待ち受けています。
その扉を開けると、まず心を掴むのは、広がる10.6帖の洋室です。まるで一枚のキャンバスの…カスタリア大塚2 803という名の物件は、まるで現代の隠れ家として、都会の喧騒からひっそりと身を潜める一軒の美しい家です。この803号室は、南西と南東の二方向から光を受け止め、優雅に流れる光の筋が、お部屋の壁を柔らかく撫でることでしょう。36.96㎡という広さの中に、まるで夢のような生活が待ち受けています。
その扉を開けると、まず心を掴むのは、広がる10.6帖の洋室です。まるで一枚のキャンバスのように、あなたの想像力と共に、色とりどりの生活が描かれていきます。朝の光が差し込み、カーテンが柔らかく揺れる様子は、まるで風が微かなメロディーを奏でているかのようです。あなたが目覚めた瞬間、ウィンドウから流れ込む新鮮な空気は、心地よい香りをもたらし、一日の始まりを祝福してくれます。
カスタリア大塚2 803は、ただの住居ではありません。これは、あなたの人生の新たな章が開かれる舞台なのです。食材の香ばしい香りと共に料理を楽しむひととき、友人たちが集まり笑い声が響くリビング、日の出とともにコーヒーの香りが漂う朝のひととき、全てがここで織り成されていくことでしょう。オートロックのセキュリティは、まるであなたを見守る強靭な守護者のように、安心感を与えてくれます。
また、デザイナーズという名の通り、おしゃれな内装は、まるでアートギャラリーのような気品を漂わせています。宅配ボックスや駐輪場の便利な設備は、日常生活の煩わしさを軽減し、あなたの時間を創造へと向ける余裕を生み出してくれるでしょう。これらの便利さは、まるで芸術家の筆が滑らかにキャンバスをなぞるように、ストレスのない生活を実現します。
そして、カスタリア大塚2 803は、周辺の豊かで多様な文化とも深く結びついています。大塚駅から徒歩わずか4分という絶好の立地は、歴史と現代が交錯するエリアの中心に位置しており、絵画や音楽、舞台芸術が息づく街並みを散策することもできます。心豊かな時間を過ごすためのインスピレーションが、ここには満ち溢れています。
このカスタリア大塚2 803という名の物件は、ただの住む場所ではなく、あなたの人生をより豊かに、彩りを加えるためのキャンパスなのです。さあ、この新しい物語の第一ページを、あなた自身の手でめくってみませんか。あなたの感受性をかき立てるこの場所で、心の底から「ただいま」と言える瞬間を、楽しみにしています。
その扉を開けると、まず心を掴むのは、広がる10.6帖の洋室です。まるで一枚のキャンバスの…カスタリア大塚2 803という名の物件は、まるで現代の隠れ家として、都会の喧騒からひっそりと身を潜める一軒の美しい家です。この803号室は、南西と南東の二方向から光を受け止め、優雅に流れる光の筋が、お部屋の壁を柔らかく撫でることでしょう。36.96㎡という広さの中に、まるで夢のような生活が待ち受けています。
その扉を開けると、まず心を掴むのは、広がる10.6帖の洋室です。まるで一枚のキャンバスのように、あなたの想像力と共に、色とりどりの生活が描かれていきます。朝の光が差し込み、カーテンが柔らかく揺れる様子は、まるで風が微かなメロディーを奏でているかのようです。あなたが目覚めた瞬間、ウィンドウから流れ込む新鮮な空気は、心地よい香りをもたらし、一日の始まりを祝福してくれます。
カスタリア大塚2 803は、ただの住居ではありません。これは、あなたの人生の新たな章が開かれる舞台なのです。食材の香ばしい香りと共に料理を楽しむひととき、友人たちが集まり笑い声が響くリビング、日の出とともにコーヒーの香りが漂う朝のひととき、全てがここで織り成されていくことでしょう。オートロックのセキュリティは、まるであなたを見守る強靭な守護者のように、安心感を与えてくれます。
また、デザイナーズという名の通り、おしゃれな内装は、まるでアートギャラリーのような気品を漂わせています。宅配ボックスや駐輪場の便利な設備は、日常生活の煩わしさを軽減し、あなたの時間を創造へと向ける余裕を生み出してくれるでしょう。これらの便利さは、まるで芸術家の筆が滑らかにキャンバスをなぞるように、ストレスのない生活を実現します。
そして、カスタリア大塚2 803は、周辺の豊かで多様な文化とも深く結びついています。大塚駅から徒歩わずか4分という絶好の立地は、歴史と現代が交錯するエリアの中心に位置しており、絵画や音楽、舞台芸術が息づく街並みを散策することもできます。心豊かな時間を過ごすためのインスピレーションが、ここには満ち溢れています。
このカスタリア大塚2 803という名の物件は、ただの住む場所ではなく、あなたの人生をより豊かに、彩りを加えるためのキャンパスなのです。さあ、この新しい物語の第一ページを、あなた自身の手でめくってみませんか。あなたの感受性をかき立てるこの場所で、心の底から「ただいま」と言える瞬間を、楽しみにしています。
バイブルスコア
バイブルスコア: 37.8
平均的なスコアです。
※バイブルスコア詳細はこちら
バイブルスコアとは独自のAI機械学習技術を利用した物件評価システムで、物件のおすすめ度を示します。最高得点は100点で、スコアが高いほど、よりおすすめの物件と評価されています。
写真
現在写真が登録されていません契約条件
| 賃料 | 予想金額:117,000〜137,000円程度 | 管理費 | 予想金額:6,000〜10,000円程度 |
| 礼金 | 非公開(アーカイブ) | 敷金 | 非公開(アーカイブ) |
| フリーレント | なし | 平米数 | 36.96㎡ |
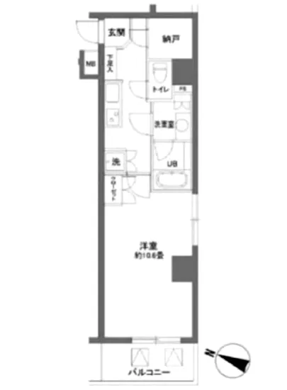
| 間取り | 1K | 大型収納 | なし |
| 契約期間 | 2年 | 方角 | 南西 / 南東 |
| 更新料 | 1ヶ月 | 契約形態 | 普通賃貸借契約 |
| 取引態様 | 媒介 | 内見状況 | 入居中 |
| 入居時期 | 入居中 | SOHO・事務所 | 不可 |
| ペット | ペット可 | 間取り内訳 | 洋:10.6 |
| キャンペーン情報・備考 | 本情報は賃料改定交渉の資料作成、収益物件の利回り試算、周辺エリアや最寄り駅の坪単価分析、次回募集開始時期の予測などにご活用いただけます。 | ||
※「どの不動産に頼めばいいのか分からない」「信頼できる営業マンの話を聞きたい」「一番親切な会社と契約したい」とお悩みの方におすすめなのが「高級賃貸バイブル」です。
高級賃貸バイブルは業界10年以上の熟練スタッフ群がお客様ファーストで対応します。
下記ボタンから、まずは無料でご相談下さい。
※内覧をご希望の際には、どうぞ物件のエントランス前にてお待ち合わせくださいませ。ご内覧後は、同じ場所でお別れとさせていただきます。お客様のご都合に合わせたスムーズなご案内を心がけておりますので、ご質問等がございましたら何なりとお申し付けください。 物件概要
| 物件名 |
| 築年月 |
|
|---|---|---|---|
| 所在地 | |||
| 交通 | |||
| 総戸数 |
| 総階数 |
|
| 構造 |
| ||
地図
物件までの道のりは、「拡大地図を表示」をクリックしてナビ機能をご利用ください。
部屋設備
















建物設備

TVモニターホン

エレベーター

オートロック

宅配ボックス

敷地内ゴミ置場

管理人

駐輪場
カスタリア大塚2の現在募集中のお部屋
- No rooms found for this property.
