
| 賃料 | 予想金額:203,000〜223,000円程度 | 管理費 | 予想金額:8,000〜12,000円程度 |
| 礼金/敷金 | 非公開(アーカイブ) | 平米数 | 44.61㎡ |
| 初期費用概算(参考) | 目安:802,000〜902,000 円 | みなし賃料(月額・参考) | 226,313〜246,313 円 |
| 備考 | 本ページは過去募集のアーカイブです。表示の金額は周辺相場・過去募集を踏まえた参考レンジであり、実際の契約金額・条件ではありません。 | ||
※上記みなし賃料(月額)は仲介手数料割引・無料&キャッシュバックを加味した高級賃貸バイブル限定の金額です。一般的なみなし賃料とは異なります。
【建物ページ】カスタリア目黒長者丸の詳細・最新空室はこちら▶▶選ばれる理由
仲介手数料無料・キャンペーン情報(毎月15名様限定)
〇仲介手数料割引キャンペーン
カスタリア目黒長者丸 406の口コミ・レビュー
カスタリア目黒長者丸 406へようこそ。ここは、ただの住まいではありません。人生の新たな章を織りなす場所、あなたの感性が目覚める舞台です。東京の喧騒を少し離れ、品川区上大崎の静けさに包まれるこの地は、南向きの窓から朝日が優しく差し込み、新たな一日の始まりを祝福しています。
カスタリア目黒長者丸 406の扉を開けると、まず目に飛び込んでくるのは、ゆったりとしたLDK 13.2帖の広がりです。心身を…カスタリア目黒長者丸 406へようこそ。ここは、ただの住まいではありません。人生の新たな章を織りなす場所、あなたの感性が目覚める舞台です。東京の喧騒を少し離れ、品川区上大崎の静けさに包まれるこの地は、南向きの窓から朝日が優しく差し込み、新たな一日の始まりを祝福しています。
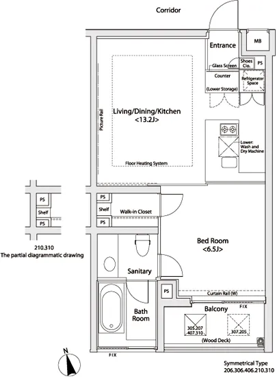
カスタリア目黒長者丸 406の扉を開けると、まず目に飛び込んでくるのは、ゆったりとしたLDK 13.2帖の広がりです。心身を解きほぐす音楽のように、デザイナーズの美しい内装があなたを迎えます。高級感あふれる空間が、まるでアートギャラリーにいるかのような気持ちを呼び起こします。豊かな自然の光が差し込むこの空間で、家族や友人とともに心温まるひとときを過ごすことができるでしょう。そして、6.5帖の居室は、あなたの夢や思い出を静かに受け止め、リラックスした時間を提供します。外の喧騒を忘れ、穏やかな夜の帳に包まれながら、やすらぎの瞬間を楽しめます。
この物件は、東京メトロ南北線の目黒駅から徒歩7分の距離に位置し、都市の便利さを享受しつつも、自然との調和を大切にしています。周囲には、歴史ある神社や文化的なスポットが点在し、まるで時空を超えるような体験が待っています。目黒川沿いを散策することで、桜の花が咲き誇る季節には、まるで映画のワンシーンのように、自然の美と静寂に心が洗われるでしょう。
また、カスタリア目黒長者丸 406は、オートロックや宅配ボックスなど、日々の生活を豊かにする設備が充実しています。あなたの大切な時間を守り、安心して暮らし続けるためのサポートが揃っています。バイク置場や駐輪場も完備されており、自由に旅立つことを可能にします。
夜の帳が降りると、カスタリア目黒長者丸 406の窓から見える星空は、都会の喧騒を忘れさせる美しい景色です。窓を開ければ、そよ風が優しく舞い込み、夜の香りを運んできてくれます。あなたはその瞬間、ここでの生活がどれほど特別で、かけがえのないものであるかを実感することでしょう。
この地で、あなたのストーリーが始まります。カスタリア目黒長者丸 406は、ただの住まいではなく、あなたの夢や希望を実現するためのキャンバスです。ここで描く日常は、まるで一編の詩のように、美しく、心に残る思い出へと変わります。さあ、新たな物語をこの場所で紡ぎ始めてみませんか。あなたを待っているのは、欠けることのない安らぎと、心躍る未来です。
カスタリア目黒長者丸 406の扉を開けると、まず目に飛び込んでくるのは、ゆったりとしたLDK 13.2帖の広がりです。心身を…カスタリア目黒長者丸 406へようこそ。ここは、ただの住まいではありません。人生の新たな章を織りなす場所、あなたの感性が目覚める舞台です。東京の喧騒を少し離れ、品川区上大崎の静けさに包まれるこの地は、南向きの窓から朝日が優しく差し込み、新たな一日の始まりを祝福しています。
カスタリア目黒長者丸 406の扉を開けると、まず目に飛び込んでくるのは、ゆったりとしたLDK 13.2帖の広がりです。心身を解きほぐす音楽のように、デザイナーズの美しい内装があなたを迎えます。高級感あふれる空間が、まるでアートギャラリーにいるかのような気持ちを呼び起こします。豊かな自然の光が差し込むこの空間で、家族や友人とともに心温まるひとときを過ごすことができるでしょう。そして、6.5帖の居室は、あなたの夢や思い出を静かに受け止め、リラックスした時間を提供します。外の喧騒を忘れ、穏やかな夜の帳に包まれながら、やすらぎの瞬間を楽しめます。
この物件は、東京メトロ南北線の目黒駅から徒歩7分の距離に位置し、都市の便利さを享受しつつも、自然との調和を大切にしています。周囲には、歴史ある神社や文化的なスポットが点在し、まるで時空を超えるような体験が待っています。目黒川沿いを散策することで、桜の花が咲き誇る季節には、まるで映画のワンシーンのように、自然の美と静寂に心が洗われるでしょう。
また、カスタリア目黒長者丸 406は、オートロックや宅配ボックスなど、日々の生活を豊かにする設備が充実しています。あなたの大切な時間を守り、安心して暮らし続けるためのサポートが揃っています。バイク置場や駐輪場も完備されており、自由に旅立つことを可能にします。
夜の帳が降りると、カスタリア目黒長者丸 406の窓から見える星空は、都会の喧騒を忘れさせる美しい景色です。窓を開ければ、そよ風が優しく舞い込み、夜の香りを運んできてくれます。あなたはその瞬間、ここでの生活がどれほど特別で、かけがえのないものであるかを実感することでしょう。
この地で、あなたのストーリーが始まります。カスタリア目黒長者丸 406は、ただの住まいではなく、あなたの夢や希望を実現するためのキャンバスです。ここで描く日常は、まるで一編の詩のように、美しく、心に残る思い出へと変わります。さあ、新たな物語をこの場所で紡ぎ始めてみませんか。あなたを待っているのは、欠けることのない安らぎと、心躍る未来です。
バイブルスコア
バイブルスコア: 25
平均的なスコアです。
※バイブルスコア詳細はこちら
バイブルスコアとは独自のAI機械学習技術を利用した物件評価システムで、物件のおすすめ度を示します。最高得点は100点で、スコアが高いほど、よりおすすめの物件と評価されています。
写真
契約条件
| 賃料 | 予想金額:203,000〜223,000円程度 | 管理費 | 予想金額:8,000〜12,000円程度 |
| 礼金 | 非公開(アーカイブ) | 敷金 | 非公開(アーカイブ) |
| フリーレント | なし | 平米数 | 44.61㎡ |
| 間取り | 1LDK | 大型収納 | WIC |
| 契約期間 |
| 方角 | 南 |
| 更新料 | 契約形態 | 普通賃貸借契約 | |
| 取引態様 | 媒介 | 内見状況 | 入居中 |
| 入居時期 | 入居中 | SOHO・事務所 | |
| ペット | 間取り内訳 | LDK=13.2J / BR=6.5J | |
| キャンペーン情報・備考 | 本情報は賃料改定交渉の資料作成、収益物件の利回り試算、周辺エリアや最寄り駅の坪単価分析、次回募集開始時期の予測などにご活用いただけます。 | ||
※「どの不動産に頼めばいいのか分からない」「信頼できる営業マンの話を聞きたい」「一番親切な会社と契約したい」とお悩みの方におすすめなのが「高級賃貸バイブル」です。
高級賃貸バイブルは業界10年以上の熟練スタッフ群がお客様ファーストで対応します。
下記ボタンから、まずは無料でご相談下さい。
※内覧をご希望の際には、どうぞ物件のエントランス前にてお待ち合わせくださいませ。ご内覧後は、同じ場所でお別れとさせていただきます。お客様のご都合に合わせたスムーズなご案内を心がけておりますので、ご質問等がございましたら何なりとお申し付けください。 物件概要
| 物件名 |
| 築年月 |
|
|---|---|---|---|
| 所在地 | |||
| 交通 | |||
| 総戸数 |
| 総階数 |
|
| 構造 |
| ||
地図
物件までの道のりは、「拡大地図を表示」をクリックしてナビ機能をご利用ください。
部屋設備


















建物設備

TVモニターホン

エレベーター

オートロック

バイク置場

宅配ボックス

敷地内ゴミ置場

駐車場平置き

駐車場機械式

駐輪場
カスタリア目黒長者丸の現在募集中のお部屋
- カスタリア目黒長者丸 202 - 間取り: 1R - 賃料: 16.7万円
- カスタリア目黒長者丸 218 - 間取り: 1R+WIC - 賃料: 18.3万円





























