
| 賃料 | 予想金額:143,000〜163,000円程度 | 管理費 | 予想金額:13,000〜17,000円程度 |
| 礼金/敷金 | 非公開(アーカイブ) | 平米数 | 35.84㎡ |
| 初期費用概算(参考) | 目安:448,900〜548,900 円 | みなし賃料(月額・参考) | 165,206〜185,206 円 |
| 備考 | 本ページは過去募集のアーカイブです。表示の金額は周辺相場・過去募集を踏まえた参考レンジであり、実際の契約金額・条件ではありません。 | ||
※上記みなし賃料(月額)は仲介手数料割引・無料&キャッシュバックを加味した高級賃貸バイブル限定の金額です。一般的なみなし賃料とは異なります。
【建物ページ】ロイジェントパークス四ツ谷の詳細・最新空室はこちら▶▶選ばれる理由
仲介手数料無料・キャンペーン情報(毎月15名様限定)
〇引っ越しお祝い金30600円プレゼント(キャッシュバック)
ロイジェントパークス四ツ谷 204の口コミ・レビュー
ロイジェントパークス四ツ谷 204、それはまるで大都会の真ん中に位置する隠れ家のような存在です。この魅力的な1Rの住まいは、専有面積35.84㎡の中に、洗練された生活空間を見事に凝縮しています。四谷の街並みが生み出す洗練された雰囲気と、ここでの生活が調和し、不思議な感覚を与えてくれます。
ロイジェントパークス四ツ谷 204のドアを開けた瞬間、あなたの五感は驚きとともに彩りを受け取ります。すっきり…ロイジェントパークス四ツ谷 204、それはまるで大都会の真ん中に位置する隠れ家のような存在です。この魅力的な1Rの住まいは、専有面積35.84㎡の中に、洗練された生活空間を見事に凝縮しています。四谷の街並みが生み出す洗練された雰囲気と、ここでの生活が調和し、不思議な感覚を与えてくれます。
ロイジェントパークス四ツ谷 204のドアを開けた瞬間、あなたの五感は驚きとともに彩りを受け取ります。すっきりとした空間の中に、繊細なデザインが息づく居住空間が広がり、まるで自然光がそっとあなたを包み込むかのようです。壁に反射する太陽の光は、まるで朝の喜びを共有しているかのように、部屋全体を黄金色に染め上げます。清々しい空気が部屋に流れ込み、居心地の良さを一層引き立てます。
このお住まいはただの部屋ではなく、日々の生活を映画のワンシーンのように演出してくれる場所なのです。日々の朝、窓を開けた瞬間に感じる新鮮な空気、その香りは、まるで四谷の街を包み込む季節の風のようです。足元に広がるフローリングは、柔らかい肌触りを感じさせ、あなたを優しく迎え入れてくれます。また、家の隅々に息づく静寂は、心を穏やかに保ってくれる特別な空間を提供してくれます。
ロイジェントパークス四ツ谷 204には、24時間管理の安心感や、TVモニターホン、オートロックなどの先進的な設備が備わっており、技術が生活に溶け込んでいます。まるであなたの生活を巧みに見守る守護者のような存在です。宅配ボックスも完備されており、忙しい毎日でも、あなたの大切な荷物が安全に保管される安心感があります。
周囲には歴史が息づく四谷の街が広がり、文化的なエッセンスを大切にした空間が魅力的です。徒歩4分のところには東京メトロ丸ノ内線四谷三丁目駅があり、都会の喧騒から解放された静かな住環境に包まれながらも、アクセスの良さを享受することができます。歴史的な建物やアートギャラリーが点在するエリアで、インスピレーションを与えられること請け合いです。
ロイジェントパークス四ツ谷 204は、あなたの生活を新たな高みへと導く、特別な場所です。ここでの毎日は、まるで映画の一幕のように美しく、心に残る瞬間を彩ります。ぜひ、その扉を開け、あなた自身のストーリーを紡ぎ始めてみてはいかがでしょうか。あなたの、新たな物語がここから始まります。
ロイジェントパークス四ツ谷 204のドアを開けた瞬間、あなたの五感は驚きとともに彩りを受け取ります。すっきり…ロイジェントパークス四ツ谷 204、それはまるで大都会の真ん中に位置する隠れ家のような存在です。この魅力的な1Rの住まいは、専有面積35.84㎡の中に、洗練された生活空間を見事に凝縮しています。四谷の街並みが生み出す洗練された雰囲気と、ここでの生活が調和し、不思議な感覚を与えてくれます。
ロイジェントパークス四ツ谷 204のドアを開けた瞬間、あなたの五感は驚きとともに彩りを受け取ります。すっきりとした空間の中に、繊細なデザインが息づく居住空間が広がり、まるで自然光がそっとあなたを包み込むかのようです。壁に反射する太陽の光は、まるで朝の喜びを共有しているかのように、部屋全体を黄金色に染め上げます。清々しい空気が部屋に流れ込み、居心地の良さを一層引き立てます。
このお住まいはただの部屋ではなく、日々の生活を映画のワンシーンのように演出してくれる場所なのです。日々の朝、窓を開けた瞬間に感じる新鮮な空気、その香りは、まるで四谷の街を包み込む季節の風のようです。足元に広がるフローリングは、柔らかい肌触りを感じさせ、あなたを優しく迎え入れてくれます。また、家の隅々に息づく静寂は、心を穏やかに保ってくれる特別な空間を提供してくれます。
ロイジェントパークス四ツ谷 204には、24時間管理の安心感や、TVモニターホン、オートロックなどの先進的な設備が備わっており、技術が生活に溶け込んでいます。まるであなたの生活を巧みに見守る守護者のような存在です。宅配ボックスも完備されており、忙しい毎日でも、あなたの大切な荷物が安全に保管される安心感があります。
周囲には歴史が息づく四谷の街が広がり、文化的なエッセンスを大切にした空間が魅力的です。徒歩4分のところには東京メトロ丸ノ内線四谷三丁目駅があり、都会の喧騒から解放された静かな住環境に包まれながらも、アクセスの良さを享受することができます。歴史的な建物やアートギャラリーが点在するエリアで、インスピレーションを与えられること請け合いです。
ロイジェントパークス四ツ谷 204は、あなたの生活を新たな高みへと導く、特別な場所です。ここでの毎日は、まるで映画の一幕のように美しく、心に残る瞬間を彩ります。ぜひ、その扉を開け、あなた自身のストーリーを紡ぎ始めてみてはいかがでしょうか。あなたの、新たな物語がここから始まります。
バイブルスコア
バイブルスコア: 98.5
レア物件です、すぐ仮押さえしましょう!
このお部屋は、現在ご入居中のため空室情報はございません。ただし、将来的に募集が開始される際、バイブルスコアにおいて非常に高い評価が期待されます。特にご興味をお持ちの方は、今のうちにブックマークやお気に入りに登録していただくと、募集開始のお知らせをすぐに受け取ることができます。是非ともご検討くださいませ。
※バイブルスコア詳細はこちら
バイブルスコアとは独自のAI機械学習技術を利用した物件評価システムで、物件のおすすめ度を示します。最高得点は100点で、スコアが高いほど、よりおすすめの物件と評価されています。
写真
契約条件
| 賃料 | 予想金額:143,000〜163,000円程度 | 管理費 | 予想金額:13,000〜17,000円程度 |
| 礼金 | 非公開(アーカイブ) | 敷金 | 非公開(アーカイブ) |
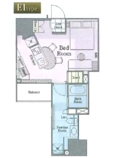
| フリーレント | なし | 平米数 | 35.84㎡ |
| 間取り | 1R | 大型収納 | |
| 契約期間 | 2年 | 方角 | |
| 更新料 | 1ヶ月 | 契約形態 | 普通賃貸借契約 |
| 取引態様 | 媒介 | 内見状況 | 入居中 |
| 入居時期 | 入居中 | SOHO・事務所 | |
| ペット | ペット可 | 間取り内訳 | 洋: |
| キャンペーン情報・備考 | 本情報は賃料改定交渉の資料作成、収益物件の利回り試算、周辺エリアや最寄り駅の坪単価分析、次回募集開始時期の予測などにご活用いただけます。 | ||
※「どの不動産に頼めばいいのか分からない」「信頼できる営業マンの話を聞きたい」「一番親切な会社と契約したい」とお悩みの方におすすめなのが「高級賃貸バイブル」です。
高級賃貸バイブルは業界10年以上の熟練スタッフ群がお客様ファーストで対応します。
下記ボタンから、まずは無料でご相談下さい。
※内覧をご希望の際には、どうぞ物件のエントランス前にてお待ち合わせくださいませ。ご内覧後は、同じ場所でお別れとさせていただきます。お客様のご都合に合わせたスムーズなご案内を心がけておりますので、ご質問等がございましたら何なりとお申し付けください。 物件概要
| 物件名 |
| 築年月 |
|
|---|---|---|---|
| 所在地 | |||
| 交通 | |||
| 総戸数 |
| 総階数 |
|
| 構造 |
| ||
地図
物件までの道のりは、「拡大地図を表示」をクリックしてナビ機能をご利用ください。
部屋設備
















建物設備

24時間管理

TVモニターホン

エレベーター

オートロック

バイク置場

宅配ボックス

敷地内ゴミ置場

管理人

駐車場平置き

駐車場機械式

駐輪場
ロイジェントパークス四ツ谷の現在募集中のお部屋
- ロイジェントパークス四ツ谷 1103 - 間取り: 1R - 賃料: 19.2万円
- ロイジェントパークス四ツ谷 1207 - 間取り: 1K - 賃料: 16.4万円
- ロイジェントパークス四ツ谷 403 - 間取り: 1R - 賃料: 18.4万円
- ロイジェントパークス四ツ谷 401 - 間取り: 1R - 賃料: 15.9万円
- ロイジェントパークス四ツ谷 203 - 間取り: 1R - 賃料: 18.2万円
- ロイジェントパークス四ツ谷 702 - 間取り: 1R - 賃料: 21.9万円



