
| 賃料 | 予想金額:134,000〜154,000円程度 | 管理費 | 予想金額:8,000〜12,000円程度 |
| 礼金/敷金 | 非公開(アーカイブ) | 平米数 | 41.2㎡ |
| 初期費用概算(参考) | 目安:416,500〜516,500 円 | みなし賃料(月額・参考) | 150,719〜170,719 円 |
| 備考 | 本ページは過去募集のアーカイブです。表示の金額は周辺相場・過去募集を踏まえた参考レンジであり、実際の契約金額・条件ではありません。 | ||
※上記みなし賃料(月額)は仲介手数料割引・無料&キャッシュバックを加味した高級賃貸バイブル限定の金額です。一般的なみなし賃料とは異なります。
【建物ページ】カスタリア押上の詳細・最新空室はこちら▶▶選ばれる理由
仲介手数料無料・キャンペーン情報(毎月15名様限定)
〇仲介手数料割引キャンペーン
カスタリア押上 601の口コミ・レビュー
カスタリア押上 601。ここに住むあなたは、まるで映画の主人公になったかのような感覚を覚えることでしょう。東京都墨田区向島3-5-2に位置するこの素敵な空間は、日常を特別な瞬間に変える力を秘めています。南東と南西の方角から差し込む穏やかな光が、心地よい温もりを運び、時折そよぐ風が優雅なささやきを響かせる。毎日が新たな物語のはじまりです。
カスタリア押上 601の間取りは、洋室6帖、ダイニング7帖…カスタリア押上 601。ここに住むあなたは、まるで映画の主人公になったかのような感覚を覚えることでしょう。東京都墨田区向島3-5-2に位置するこの素敵な空間は、日常を特別な瞬間に変える力を秘めています。南東と南西の方角から差し込む穏やかな光が、心地よい温もりを運び、時折そよぐ風が優雅なささやきを響かせる。毎日が新たな物語のはじまりです。
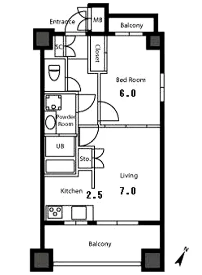
カスタリア押上 601の間取りは、洋室6帖、ダイニング7帖、キッチン2.5帖という構成で、41.2㎡の広さを誇ります。この空間はまさに、あなたの感性を重んじるために設計されています。朝、窓を開けると、下町の伝統の香りとともに、街の喧騒とは対照的な静けさが心をほぐしてくれるでしょう。食卓には新鮮な季節の果物が並び、その色彩の美しさが目を楽しませ、豊かな香りが味覚を刺激します。
もちろん、カスタリア押上 601には生活を快適にするための設備が整っています。TVモニターホンは、まるであなたの親友のように、訪れる人々を見守り、エレベーターが運ぶ静かな音が、あなたを日常から特別な場所へと導いてくれる。オートロックシステムで安全が守られ、宅配ボックスは不在時にもあなたの大切な荷物をしっかりと預かってくれます。駐車場や駐輪場も完備されており、街を自由に駆け巡ることができるのです。
カスタリア押上 601は、周囲の歴史や文化、芸術に触れる絶好の立地です。押上〈スカイツリー前〉駅から徒歩8分。スカイツリーの頂点が見えるかのような、視界を贅沢に楽しむ瞬間が待っています。その美しいシルエットは、まさに日本の現代建築の象徴。周囲の下町文化が織りなす、人々の温もりや家族の笑顔が溢れる風景とともに、あなたの生活に新たな色彩を与えてくれることでしょう。
この家での生活は、まるで穏やかな午後のひと時のように心安らぐものです。バイク置場や敷地内ゴミ置場があることで、あなたの生活もスムーズに進むことでしょう。忙しい日の合間に、目の前の公園でのんびりとした時間を過ごしたり、近隣のカフェで香ばしいコーヒーを味わったりすることで、心に豊かなエッセンスを加えてください。
カスタリア押上 601は、あなたの新たな物語の舞台となる場所です。日々の生活の中に、心温まるエピソードや思い出を紡ぎ出し、豊かな色彩で彩られた日常を楽しんでほしい。ここで過ごす時間は、単なる生活ではなく、まるでアートのように、美しい余韻を残すことでしょう。あなたの人生の新たな章を、カスタリア押上 601で始めてみませんか。
カスタリア押上 601の間取りは、洋室6帖、ダイニング7帖…カスタリア押上 601。ここに住むあなたは、まるで映画の主人公になったかのような感覚を覚えることでしょう。東京都墨田区向島3-5-2に位置するこの素敵な空間は、日常を特別な瞬間に変える力を秘めています。南東と南西の方角から差し込む穏やかな光が、心地よい温もりを運び、時折そよぐ風が優雅なささやきを響かせる。毎日が新たな物語のはじまりです。
カスタリア押上 601の間取りは、洋室6帖、ダイニング7帖、キッチン2.5帖という構成で、41.2㎡の広さを誇ります。この空間はまさに、あなたの感性を重んじるために設計されています。朝、窓を開けると、下町の伝統の香りとともに、街の喧騒とは対照的な静けさが心をほぐしてくれるでしょう。食卓には新鮮な季節の果物が並び、その色彩の美しさが目を楽しませ、豊かな香りが味覚を刺激します。
もちろん、カスタリア押上 601には生活を快適にするための設備が整っています。TVモニターホンは、まるであなたの親友のように、訪れる人々を見守り、エレベーターが運ぶ静かな音が、あなたを日常から特別な場所へと導いてくれる。オートロックシステムで安全が守られ、宅配ボックスは不在時にもあなたの大切な荷物をしっかりと預かってくれます。駐車場や駐輪場も完備されており、街を自由に駆け巡ることができるのです。
カスタリア押上 601は、周囲の歴史や文化、芸術に触れる絶好の立地です。押上〈スカイツリー前〉駅から徒歩8分。スカイツリーの頂点が見えるかのような、視界を贅沢に楽しむ瞬間が待っています。その美しいシルエットは、まさに日本の現代建築の象徴。周囲の下町文化が織りなす、人々の温もりや家族の笑顔が溢れる風景とともに、あなたの生活に新たな色彩を与えてくれることでしょう。
この家での生活は、まるで穏やかな午後のひと時のように心安らぐものです。バイク置場や敷地内ゴミ置場があることで、あなたの生活もスムーズに進むことでしょう。忙しい日の合間に、目の前の公園でのんびりとした時間を過ごしたり、近隣のカフェで香ばしいコーヒーを味わったりすることで、心に豊かなエッセンスを加えてください。
カスタリア押上 601は、あなたの新たな物語の舞台となる場所です。日々の生活の中に、心温まるエピソードや思い出を紡ぎ出し、豊かな色彩で彩られた日常を楽しんでほしい。ここで過ごす時間は、単なる生活ではなく、まるでアートのように、美しい余韻を残すことでしょう。あなたの人生の新たな章を、カスタリア押上 601で始めてみませんか。
バイブルスコア
バイブルスコア: 24.2
平均的なスコアです。
※バイブルスコア詳細はこちら
バイブルスコアとは独自のAI機械学習技術を利用した物件評価システムで、物件のおすすめ度を示します。最高得点は100点で、スコアが高いほど、よりおすすめの物件と評価されています。
写真
現在写真が登録されていません契約条件
| 賃料 | 予想金額:134,000〜154,000円程度 | 管理費 | 予想金額:8,000〜12,000円程度 |
| 礼金 | 非公開(アーカイブ) | 敷金 | 非公開(アーカイブ) |
| フリーレント | なし | 平米数 | 41.2㎡ |
| 間取り | 1DK | 大型収納 | |
| 契約期間 |
| 方角 | 南東 / 南西 |
| 更新料 | 契約形態 | 普通賃貸借契約 | |
| 取引態様 | 媒介 | 内見状況 | 入居中 |
| 入居時期 | 入居中 | SOHO・事務所 | |
| ペット | ペット可 | 間取り内訳 | 洋:6 D:7 K:2.5 |
| キャンペーン情報・備考 | 本情報は賃料改定交渉の資料作成、収益物件の利回り試算、周辺エリアや最寄り駅の坪単価分析、次回募集開始時期の予測などにご活用いただけます。 | ||
※「どの不動産に頼めばいいのか分からない」「信頼できる営業マンの話を聞きたい」「一番親切な会社と契約したい」とお悩みの方におすすめなのが「高級賃貸バイブル」です。
高級賃貸バイブルは業界10年以上の熟練スタッフ群がお客様ファーストで対応します。
下記ボタンから、まずは無料でご相談下さい。
※内覧をご希望の際には、どうぞ物件のエントランス前にてお待ち合わせくださいませ。ご内覧後は、同じ場所でお別れとさせていただきます。お客様のご都合に合わせたスムーズなご案内を心がけておりますので、ご質問等がございましたら何なりとお申し付けください。 物件概要
| 物件名 |
| 築年月 |
|
|---|---|---|---|
| 所在地 | |||
| 交通 |
| ||
| 総戸数 |
| 総階数 |
|
| 構造 |
| ||
地図
物件までの道のりは、「拡大地図を表示」をクリックしてナビ機能をご利用ください。
部屋設備














建物設備

TVモニターホン

エレベーター

オートロック

バイク置場

宅配ボックス

敷地内ゴミ置場

管理人

駐車場平置き

駐車場機械式

駐輪場
カスタリア押上の現在募集中のお部屋
- No rooms found for this property.
