
| 賃料 | 予想金額:90,000〜110,000円程度 | 管理費 | 予想金額:6,000〜10,000円程度 |
| 礼金/敷金 | 非公開(アーカイブ) | 平米数 | 25.1㎡ |
| 初期費用概算(参考) | 目安:326,500〜426,500 円 | みなし賃料(月額・参考) | 103,760〜123,760 円 |
| 備考 | 本ページは過去募集のアーカイブです。表示の金額は周辺相場・過去募集を踏まえた参考レンジであり、実際の契約金額・条件ではありません。 | ||
※上記みなし賃料(月額)は仲介手数料割引・無料&キャッシュバックを加味した高級賃貸バイブル限定の金額です。一般的なみなし賃料とは異なります。
【建物ページ】プラウドフラット東中野の詳細・最新空室はこちら▶▶選ばれる理由
仲介手数料無料・キャンペーン情報(毎月15名様限定)
〇引っ越しお祝い金22000円プレゼント(キャッシュバック)
〇仲介手数料無料キャンペーン
プラウドフラット東中野 602の口コミ・レビュー
プラウドフラット東中野 602。この美しい名前を持つお部屋は、まるで静謐なオアシスのように、東京都中野区東中野に佇んでいます。602という数字は、まさに天空からの贈り物。あなたがそのドアを開ける瞬間、別次元の生活が始まるのです。
このお部屋は、25.1㎡というコンパクトなスペースながら、どこを見ても上質さが漂っています。北西を向く窓からは、柔らかい朝日が投げかける光が、まるでやさしい手のひらであ…プラウドフラット東中野 602。この美しい名前を持つお部屋は、まるで静謐なオアシスのように、東京都中野区東中野に佇んでいます。602という数字は、まさに天空からの贈り物。あなたがそのドアを開ける瞬間、別次元の生活が始まるのです。
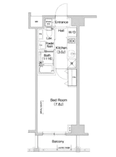
このお部屋は、25.1㎡というコンパクトなスペースながら、どこを見ても上質さが漂っています。北西を向く窓からは、柔らかい朝日が投げかける光が、まるでやさしい手のひらであなたを目覚めさせてくれます。静寂に包まれた空間は、日々の疲れを癒やすための特別な場所。洋室7.8帖の広さは、ゆったりとした気持ちをもたらし、心に余裕を生む贅沢な空間を演出しています。
キッチンは3帖のサイズで、料理の楽しさを引き立てるために設計されています。鮮やかな彩りの食材が並び、甘く香ばしい匂いが立ち上る様子を想像してみてください。スパイスの香りが空間に溶け込み、心地よいハーモニーを奏でる。あなたの手料理で家族や友人をもてなす、その瞬間がまるで映画のワンシーンのように鮮やかに心に残ることでしょう。
プラウドフラット東中野 602は、ただの居住空間ではありません。エレガントなオートロックや、便利な宅配ボックスを備えたセキュリティも、生活を豊かに彩ります。バイク置場や駐輪場を利用することで、アクティブなライフスタイルを実現することも可能です。他にも、ハートフルな管理人が常にあなたの生活をサポートしてくれることでしょう。
周辺には東京メトロ東西線の落合駅があり、わずか徒歩4分でアクセスが可能。都会の喧騒とは対照的な、穏やかで落ち着いた街並みが広がっています。歴史ある文化施設やアートスポットが点在しており、心豊かな日々をもたらす環境が整っています。その街を歩くと、まるで時が止まったかのような美しい瞬間が待っていることでしょう。
このプラウドフラット東中野 602での生活は、まるであなたが主役の物語の舞台。優雅なライフスタイルがあなたを待っており、毎日が新たな発見に満ちています。心に響く音楽を聴きながら、特別な時間を過ごすことができるこのお部屋で、是非、あなたの夢を叶えてください。どこを見ても愛着が生まれ、生活がより豊かになるように感じることでしょう。あなたの新しい物語、ここから始まるのです。
このお部屋は、25.1㎡というコンパクトなスペースながら、どこを見ても上質さが漂っています。北西を向く窓からは、柔らかい朝日が投げかける光が、まるでやさしい手のひらであ…プラウドフラット東中野 602。この美しい名前を持つお部屋は、まるで静謐なオアシスのように、東京都中野区東中野に佇んでいます。602という数字は、まさに天空からの贈り物。あなたがそのドアを開ける瞬間、別次元の生活が始まるのです。
このお部屋は、25.1㎡というコンパクトなスペースながら、どこを見ても上質さが漂っています。北西を向く窓からは、柔らかい朝日が投げかける光が、まるでやさしい手のひらであなたを目覚めさせてくれます。静寂に包まれた空間は、日々の疲れを癒やすための特別な場所。洋室7.8帖の広さは、ゆったりとした気持ちをもたらし、心に余裕を生む贅沢な空間を演出しています。
キッチンは3帖のサイズで、料理の楽しさを引き立てるために設計されています。鮮やかな彩りの食材が並び、甘く香ばしい匂いが立ち上る様子を想像してみてください。スパイスの香りが空間に溶け込み、心地よいハーモニーを奏でる。あなたの手料理で家族や友人をもてなす、その瞬間がまるで映画のワンシーンのように鮮やかに心に残ることでしょう。
プラウドフラット東中野 602は、ただの居住空間ではありません。エレガントなオートロックや、便利な宅配ボックスを備えたセキュリティも、生活を豊かに彩ります。バイク置場や駐輪場を利用することで、アクティブなライフスタイルを実現することも可能です。他にも、ハートフルな管理人が常にあなたの生活をサポートしてくれることでしょう。
周辺には東京メトロ東西線の落合駅があり、わずか徒歩4分でアクセスが可能。都会の喧騒とは対照的な、穏やかで落ち着いた街並みが広がっています。歴史ある文化施設やアートスポットが点在しており、心豊かな日々をもたらす環境が整っています。その街を歩くと、まるで時が止まったかのような美しい瞬間が待っていることでしょう。
このプラウドフラット東中野 602での生活は、まるであなたが主役の物語の舞台。優雅なライフスタイルがあなたを待っており、毎日が新たな発見に満ちています。心に響く音楽を聴きながら、特別な時間を過ごすことができるこのお部屋で、是非、あなたの夢を叶えてください。どこを見ても愛着が生まれ、生活がより豊かになるように感じることでしょう。あなたの新しい物語、ここから始まるのです。
バイブルスコア
バイブルスコア: 30.2
平均的なスコアです。
※バイブルスコア詳細はこちら
バイブルスコアとは独自のAI機械学習技術を利用した物件評価システムで、物件のおすすめ度を示します。最高得点は100点で、スコアが高いほど、よりおすすめの物件と評価されています。
写真
現在写真が登録されていません契約条件
| 賃料 | 予想金額:90,000〜110,000円程度 | 管理費 | 予想金額:6,000〜10,000円程度 |
| 礼金 | 非公開(アーカイブ) | 敷金 | 非公開(アーカイブ) |
| フリーレント | なし | 平米数 | 25.1㎡ |
| 間取り | 1K | 大型収納 | |
| 契約期間 |
| 方角 | 北西 |
| 更新料 | 契約形態 | 普通賃貸借契約 | |
| 取引態様 | 媒介 | 内見状況 | 入居中 |
| 入居時期 | 入居中 | SOHO・事務所 | |
| ペット | ペット可 | 間取り内訳 | 洋:7.8 K:3 |
| キャンペーン情報・備考 | 本情報は賃料改定交渉の資料作成、収益物件の利回り試算、周辺エリアや最寄り駅の坪単価分析、次回募集開始時期の予測などにご活用いただけます。 | ||
※「どの不動産に頼めばいいのか分からない」「信頼できる営業マンの話を聞きたい」「一番親切な会社と契約したい」とお悩みの方におすすめなのが「高級賃貸バイブル」です。
高級賃貸バイブルは業界10年以上の熟練スタッフ群がお客様ファーストで対応します。
下記ボタンから、まずは無料でご相談下さい。
※内覧をご希望の際には、どうぞ物件のエントランス前にてお待ち合わせくださいませ。ご内覧後は、同じ場所でお別れとさせていただきます。お客様のご都合に合わせたスムーズなご案内を心がけておりますので、ご質問等がございましたら何なりとお申し付けください。 物件概要
| 物件名 |
| 築年月 |
|
|---|---|---|---|
| 所在地 | |||
| 交通 | |||
| 総戸数 |
| 総階数 |
|
| 構造 |
| ||
地図
物件までの道のりは、「拡大地図を表示」をクリックしてナビ機能をご利用ください。
部屋設備













建物設備

TVモニターホン

エレベーター

オートロック

バイク置場

宅配ボックス

敷地内ゴミ置場

管理人

駐輪場
プラウドフラット東中野の現在募集中のお部屋
- No rooms found for this property.
