
| 賃料 | 予想金額:160,000〜180,000円程度 | 管理費 | 予想金額:18,000〜22,000円程度 |
| 礼金/敷金 | 非公開(アーカイブ) | 平米数 | 27.87㎡ |
| 初期費用概算(参考) | 目安:323,000〜423,000 円 | みなし賃料(月額・参考) | 184,229〜204,229 円 |
| 備考 | 本ページは過去募集のアーカイブです。表示の金額は周辺相場・過去募集を踏まえた参考レンジであり、実際の契約金額・条件ではありません。 | ||
※上記みなし賃料(月額)は仲介手数料割引・無料&キャッシュバックを加味した高級賃貸バイブル限定の金額です。一般的なみなし賃料とは異なります。
【建物ページ】ザ・パークハビオSOHO祐天寺の詳細・最新空室はこちら▶▶選ばれる理由
仲介手数料無料・キャンペーン情報(毎月15名様限定)
〇引っ越しお祝い金102000円プレゼント(キャッシュバック)
〇仲介手数料無料キャンペーン
ザ・パークハビオSOHO祐天寺 605の口コミ・レビュー
ザ・パークハビオSOHO祐天寺 605。この名前を耳にするだけで、洗練された空間が目の前に広がるような気がします。あなたがこの美しい住まいの扉を開けた瞬間、そこはまるでパリの閑静な一角に佇むアトリエのような雰囲気に包まれます。西向きの窓から差し込むやわらかな光は、日々の疲れを一瞬で癒してくれ、心の底から「ただいま」と呟きたくなるような温もりを感じさせてくれます。
この物件は、27.87㎡の広さを…ザ・パークハビオSOHO祐天寺 605。この名前を耳にするだけで、洗練された空間が目の前に広がるような気がします。あなたがこの美しい住まいの扉を開けた瞬間、そこはまるでパリの閑静な一角に佇むアトリエのような雰囲気に包まれます。西向きの窓から差し込むやわらかな光は、日々の疲れを一瞬で癒してくれ、心の底から「ただいま」と呟きたくなるような温もりを感じさせてくれます。
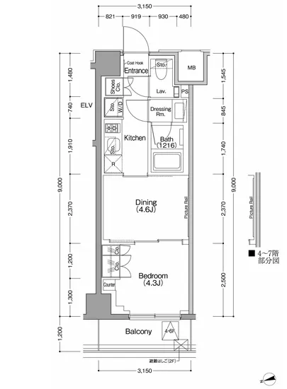
この物件は、27.87㎡の広さを誇る1DKの独特な魅力を持っています。洋室4.3帖とダイニング4.6帖、二つの空間が絶妙に配され、まるで一つの物語が織り成される舞台のようです。あなたの毎日が映画のワンシーンのように彩られ、カフェオレの香りが漂う朝や、静かな夕暮れにワインを楽しむ夜を演出します。
それはまるで、あなたが人生の主人公になったかのようです。美術館のように優雅なラウンジで、友人たちと語らいながら、美しいアートを眺める。宅配ボックスから届く贈り物には、まるで特別なサプライズのような感動が詰まっています。整然とした敷地内のゴミ置場や駐車場は、あなたの生活をスムーズにサポートし、煩わしいストレスを取り除いてくれるでしょう。
ザ・パークハビオSOHO祐天寺 605では、管理人の存在がまるで親しい友人のように、あなたの生活を見守り、安心感を提供します。さらに、エレベーターやオートロックの設備は、もはや日常と欠かせないシンボルとなり、心地よい安心感を持たらしてくれます。ここに住むことは、まるで自分自身を大切にすることそのもの。そう、あなたはこの空間に自分の物語を刻んでいくのです。
また、この立地の魅力も見逃せません。東京急行電鉄東急東横線祐天寺駅までわずか徒歩2分。周辺には歴史ある街並みと、現代的な文化が息づいています。散策するたびに、街の香りや音があなたの五感を心地よく刺激し、駅からの帰り道では、古き良き日本の面影を感じることができるのです。静かな公園の緑に囲まれ、日常の喧騒を忘れて、心が解き放たれる瞬間をぜひ堪能してください。
ザ・パークハビオSOHO祐天寺 605での生活は、まさに特別なひとときの連続です。あなたの人生の舞台装置として、この空間は自らの物語を紡ぎ出す場所として、あなたを迎え入れてくれることでしょう。ここでの生活は、ただの暮らしではなく、豊かな感情と独特の経験が交錯する、美しい空間の中での新たな章が始まるのです。さあ、あなたの新しい物語を、ザ・パークハビオSOHO祐天寺 605から始めましょう。
この物件は、27.87㎡の広さを…ザ・パークハビオSOHO祐天寺 605。この名前を耳にするだけで、洗練された空間が目の前に広がるような気がします。あなたがこの美しい住まいの扉を開けた瞬間、そこはまるでパリの閑静な一角に佇むアトリエのような雰囲気に包まれます。西向きの窓から差し込むやわらかな光は、日々の疲れを一瞬で癒してくれ、心の底から「ただいま」と呟きたくなるような温もりを感じさせてくれます。
この物件は、27.87㎡の広さを誇る1DKの独特な魅力を持っています。洋室4.3帖とダイニング4.6帖、二つの空間が絶妙に配され、まるで一つの物語が織り成される舞台のようです。あなたの毎日が映画のワンシーンのように彩られ、カフェオレの香りが漂う朝や、静かな夕暮れにワインを楽しむ夜を演出します。
それはまるで、あなたが人生の主人公になったかのようです。美術館のように優雅なラウンジで、友人たちと語らいながら、美しいアートを眺める。宅配ボックスから届く贈り物には、まるで特別なサプライズのような感動が詰まっています。整然とした敷地内のゴミ置場や駐車場は、あなたの生活をスムーズにサポートし、煩わしいストレスを取り除いてくれるでしょう。
ザ・パークハビオSOHO祐天寺 605では、管理人の存在がまるで親しい友人のように、あなたの生活を見守り、安心感を提供します。さらに、エレベーターやオートロックの設備は、もはや日常と欠かせないシンボルとなり、心地よい安心感を持たらしてくれます。ここに住むことは、まるで自分自身を大切にすることそのもの。そう、あなたはこの空間に自分の物語を刻んでいくのです。
また、この立地の魅力も見逃せません。東京急行電鉄東急東横線祐天寺駅までわずか徒歩2分。周辺には歴史ある街並みと、現代的な文化が息づいています。散策するたびに、街の香りや音があなたの五感を心地よく刺激し、駅からの帰り道では、古き良き日本の面影を感じることができるのです。静かな公園の緑に囲まれ、日常の喧騒を忘れて、心が解き放たれる瞬間をぜひ堪能してください。
ザ・パークハビオSOHO祐天寺 605での生活は、まさに特別なひとときの連続です。あなたの人生の舞台装置として、この空間は自らの物語を紡ぎ出す場所として、あなたを迎え入れてくれることでしょう。ここでの生活は、ただの暮らしではなく、豊かな感情と独特の経験が交錯する、美しい空間の中での新たな章が始まるのです。さあ、あなたの新しい物語を、ザ・パークハビオSOHO祐天寺 605から始めましょう。
バイブルスコア
バイブルスコア: 44.5
条件のいい物件です、引っ越しが2か月以内の場合は仮申し込みを検討すべき物件です。
※バイブルスコア詳細はこちら
バイブルスコアとは独自のAI機械学習技術を利用した物件評価システムで、物件のおすすめ度を示します。最高得点は100点で、スコアが高いほど、よりおすすめの物件と評価されています。
写真
現在写真が登録されていません契約条件
| 賃料 | 予想金額:160,000〜180,000円程度 | 管理費 | 予想金額:18,000〜22,000円程度 |
| 礼金 | 非公開(アーカイブ) | 敷金 | 非公開(アーカイブ) |
| フリーレント | なし | 平米数 | 27.87㎡ |
| 間取り | 1DK | 大型収納 | |
| 契約期間 | 2年 | 方角 | 西 |
| 更新料 | 1ヶ月 | 契約形態 | 普通賃貸借契約 |
| 取引態様 | 媒介 | 内見状況 | 入居中 |
| 入居時期 | 入居中 | SOHO・事務所 | 事務所(SOHO)可 |
| ペット | ペット可 | 間取り内訳 | 洋:4.3 D:4.6 |
| キャンペーン情報・備考 | 本情報は賃料改定交渉の資料作成、収益物件の利回り試算、周辺エリアや最寄り駅の坪単価分析、次回募集開始時期の予測などにご活用いただけます。 | ||
※「どの不動産に頼めばいいのか分からない」「信頼できる営業マンの話を聞きたい」「一番親切な会社と契約したい」とお悩みの方におすすめなのが「高級賃貸バイブル」です。
高級賃貸バイブルは業界10年以上の熟練スタッフ群がお客様ファーストで対応します。
下記ボタンから、まずは無料でご相談下さい。
※内覧をご希望の際には、どうぞ物件のエントランス前にてお待ち合わせくださいませ。ご内覧後は、同じ場所でお別れとさせていただきます。お客様のご都合に合わせたスムーズなご案内を心がけておりますので、ご質問等がございましたら何なりとお申し付けください。 物件概要
| 物件名 |
| 築年月 |
|
|---|---|---|---|
| 所在地 | |||
| 交通 | |||
| 総戸数 |
| 総階数 |
|
| 構造 |
| ||
地図
物件までの道のりは、「拡大地図を表示」をクリックしてナビ機能をご利用ください。
部屋設備













建物設備

TVモニターホン

エレベーター

オートロック

ラウンジ

宅配ボックス

敷地内ゴミ置場

管理人

駐車場平置き

駐車場機械式

駐輪場
ザ・パークハビオSOHO祐天寺の現在募集中のお部屋
- ザ・パークハビオSOHO祐天寺 201 - 間取り: 1K - 賃料: 16.3万円
- ザ・パークハビオSOHO祐天寺 607 - 間取り: 3LDK+WIC+SIC - 賃料: 46.8万円
- ザ・パークハビオSOHO祐天寺 706 - 間取り: 3LDK+WIC+SIC - 賃料: 51万円
- ザ・パークハビオSOHO祐天寺 301 - 間取り: 1K - 賃料: 16.5万円
- ザ・パークハビオSOHO祐天寺 410 - 間取り: 1LDK+WIC - 賃料: 26.5万円
