
| 賃料 | 予想金額:127,000〜147,000円程度 | 管理費 | 予想金額:8,000〜12,000円程度 |
| 礼金/敷金 | 非公開(アーカイブ) | 平米数 | 33.79㎡ |
| 初期費用概算(参考) | 目安:262,000〜362,000 円 | みなし賃料(月額・参考) | 140,646〜160,646 円 |
| 備考 | 本ページは過去募集のアーカイブです。表示の金額は周辺相場・過去募集を踏まえた参考レンジであり、実際の契約金額・条件ではありません。 | ||
※上記みなし賃料(月額)は仲介手数料割引・無料&キャッシュバックを加味した高級賃貸バイブル限定の金額です。一般的なみなし賃料とは異なります。
【建物ページ】ログ初台の詳細・最新空室はこちら▶▶選ばれる理由
仲介手数料無料・キャンペーン情報(毎月15名様限定)
〇仲介手数料割引キャンペーン
ログ初台 302の口コミ・レビュー
ログ初台 302。あなたの新たな章がここから始まります。この魅惑的な空間は、ただの住まいではなく、まるで絵画のキャンバスのような場所です。美しいデザインと心地よい生活が共鳴するこの307のスペースは、南東の陽射しをたっぷりと浴びながら、静かで穏やかな時間を過ごすための舞台です。
玄関を開くと、まず目に飛び込んでくるのは、心を和ませる柔らかな色合いと、上質な素材感が織りなすハーモニーです。全体で3…ログ初台 302。あなたの新たな章がここから始まります。この魅惑的な空間は、ただの住まいではなく、まるで絵画のキャンバスのような場所です。美しいデザインと心地よい生活が共鳴するこの307のスペースは、南東の陽射しをたっぷりと浴びながら、静かで穏やかな時間を過ごすための舞台です。
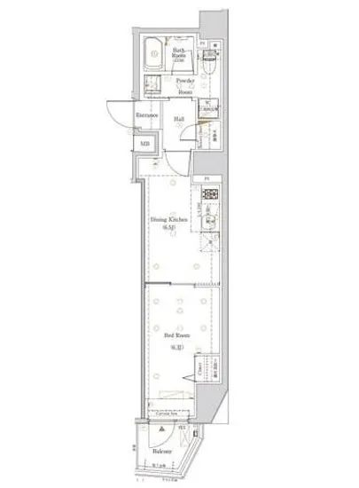
玄関を開くと、まず目に飛び込んでくるのは、心を和ませる柔らかな色合いと、上質な素材感が織りなすハーモニーです。全体で33.79㎡の広さを誇るこのお部屋は、洗練された1DKの間取りなだけに、生活のスタイルを自由に描くことができます。6.5帖のダイニングキッチンは、香ばしいコーヒーの香りと共に、あたたかい朝の食卓を演出します。そして、6.3帖の洋室は、日の出と共に優しい光に包まれ、ゆったりとした眠りからの目覚めをサポートします。
この住まいの魅力は、ただの空間に留まりません。エレガントなエレベーターで上がるときの心躍る瞬間、オートロックの安全性を感じながら、温かい家の中に入ることができる安心感。更には、バイク置場や宅配ボックス、駐輪場といった利便性の高い設備が整っており、都心での生活を更加速してくれます。まるで、どの瞬間もあなたの求めるスタイルをサポートしてくれる、親しい友人のようです。
ログ初台 302は、周囲の文化的な香りも抱えています。駅から歩いてたった5分の場所には、渋谷の賑やかさと静けさが絶妙に交錯し、歴史的な街並みやアートギャラリーが散りばめられています。ひとたび街に足を踏み入れれば、古き良きものと新しい感性の融合を楽しむことができ、日常の中にさりげない贅沢を感じることができます。
想像してみてください。朝の光が差し込むキッチンで、好みのパンとフレッシュなフルーツを用意し、窓を開ければ、爽やかな風が部屋を満たします。音楽が流れる中で、ひとしきりの料理が終わった後、パートナーとともに心地よい午後のひとときを楽しむ。そんな何気ない瞬間が、ログ初台 302ではすべて映画の一シーンのように感じられることでしょう。
この住まいに住むことは、まるで新しい物語が始まることを意味します。心の中に広がる夢を、現実として具現化するための舞台がここにあります。ログ初台 302での生活は、日々の疲れを癒し、あなたの想像力をかき立て、心を豊かにするものです。それは、あなた自身がこの魅力的な空間の主役となり、毎日が特別なものに変わることを意味します。
玄関を開くと、まず目に飛び込んでくるのは、心を和ませる柔らかな色合いと、上質な素材感が織りなすハーモニーです。全体で3…ログ初台 302。あなたの新たな章がここから始まります。この魅惑的な空間は、ただの住まいではなく、まるで絵画のキャンバスのような場所です。美しいデザインと心地よい生活が共鳴するこの307のスペースは、南東の陽射しをたっぷりと浴びながら、静かで穏やかな時間を過ごすための舞台です。
玄関を開くと、まず目に飛び込んでくるのは、心を和ませる柔らかな色合いと、上質な素材感が織りなすハーモニーです。全体で33.79㎡の広さを誇るこのお部屋は、洗練された1DKの間取りなだけに、生活のスタイルを自由に描くことができます。6.5帖のダイニングキッチンは、香ばしいコーヒーの香りと共に、あたたかい朝の食卓を演出します。そして、6.3帖の洋室は、日の出と共に優しい光に包まれ、ゆったりとした眠りからの目覚めをサポートします。
この住まいの魅力は、ただの空間に留まりません。エレガントなエレベーターで上がるときの心躍る瞬間、オートロックの安全性を感じながら、温かい家の中に入ることができる安心感。更には、バイク置場や宅配ボックス、駐輪場といった利便性の高い設備が整っており、都心での生活を更加速してくれます。まるで、どの瞬間もあなたの求めるスタイルをサポートしてくれる、親しい友人のようです。
ログ初台 302は、周囲の文化的な香りも抱えています。駅から歩いてたった5分の場所には、渋谷の賑やかさと静けさが絶妙に交錯し、歴史的な街並みやアートギャラリーが散りばめられています。ひとたび街に足を踏み入れれば、古き良きものと新しい感性の融合を楽しむことができ、日常の中にさりげない贅沢を感じることができます。
想像してみてください。朝の光が差し込むキッチンで、好みのパンとフレッシュなフルーツを用意し、窓を開ければ、爽やかな風が部屋を満たします。音楽が流れる中で、ひとしきりの料理が終わった後、パートナーとともに心地よい午後のひとときを楽しむ。そんな何気ない瞬間が、ログ初台 302ではすべて映画の一シーンのように感じられることでしょう。
この住まいに住むことは、まるで新しい物語が始まることを意味します。心の中に広がる夢を、現実として具現化するための舞台がここにあります。ログ初台 302での生活は、日々の疲れを癒し、あなたの想像力をかき立て、心を豊かにするものです。それは、あなた自身がこの魅力的な空間の主役となり、毎日が特別なものに変わることを意味します。
バイブルスコア
バイブルスコア: 35.9
平均的なスコアです。
※バイブルスコア詳細はこちら
バイブルスコアとは独自のAI機械学習技術を利用した物件評価システムで、物件のおすすめ度を示します。最高得点は100点で、スコアが高いほど、よりおすすめの物件と評価されています。
写真
現在写真が登録されていません契約条件
| 賃料 | 予想金額:127,000〜147,000円程度 | 管理費 | 予想金額:8,000〜12,000円程度 |
| 礼金 | 非公開(アーカイブ) | 敷金 | 非公開(アーカイブ) |
| フリーレント | なし | 平米数 | 33.79㎡ |
| 間取り | 1DK | 大型収納 | |
| 契約期間 |
| 方角 | 南東 |
| 更新料 | 契約形態 | 普通賃貸借契約 | |
| 取引態様 | 媒介 | 内見状況 | 入居中 |
| 入居時期 | 入居中 | SOHO・事務所 | |
| ペット | ペット可 | 間取り内訳 | 洋:6.3 DK:6.5 |
| キャンペーン情報・備考 | 本情報は賃料改定交渉の資料作成、収益物件の利回り試算、周辺エリアや最寄り駅の坪単価分析、次回募集開始時期の予測などにご活用いただけます。 | ||
※「どの不動産に頼めばいいのか分からない」「信頼できる営業マンの話を聞きたい」「一番親切な会社と契約したい」とお悩みの方におすすめなのが「高級賃貸バイブル」です。
高級賃貸バイブルは業界10年以上の熟練スタッフ群がお客様ファーストで対応します。
下記ボタンから、まずは無料でご相談下さい。
※内覧をご希望の際には、どうぞ物件のエントランス前にてお待ち合わせくださいませ。ご内覧後は、同じ場所でお別れとさせていただきます。お客様のご都合に合わせたスムーズなご案内を心がけておりますので、ご質問等がございましたら何なりとお申し付けください。 物件概要
| 物件名 |
| 築年月 |
|
|---|---|---|---|
| 所在地 | |||
| 交通 | |||
| 総戸数 |
| 総階数 |
|
| 構造 |
| ||
地図
物件までの道のりは、「拡大地図を表示」をクリックしてナビ機能をご利用ください。
部屋設備












建物設備

TVモニターホン

エレベーター

オートロック

バイク置場

宅配ボックス

敷地内ゴミ置場

管理人

駐輪場
ログ初台の現在募集中のお部屋
- No rooms found for this property.
