
| 賃料 | 予想金額:79,000〜99,000円程度 | 管理費 | 予想金額:8,000〜12,000円程度 |
| 礼金/敷金 | 非公開(アーカイブ) | 平米数 | 23.59㎡ |
| 初期費用概算(参考) | 目安:293,420〜393,420 円 | みなし賃料(月額・参考) | 94,300〜114,300 円 |
| 備考 | 本ページは過去募集のアーカイブです。表示の金額は周辺相場・過去募集を踏まえた参考レンジであり、実際の契約金額・条件ではありません。 | ||
※上記みなし賃料(月額)は仲介手数料割引・無料&キャッシュバックを加味した高級賃貸バイブル限定の金額です。一般的なみなし賃料とは異なります。
【建物ページ】エスティメゾン錦糸町2の詳細・最新空室はこちら▶▶選ばれる理由
仲介手数料無料・キャンペーン情報(毎月15名様限定)
〇引っ越しお祝い金19580円プレゼント(キャッシュバック)
〇仲介手数料無料キャンペーン
エスティメゾン錦糸町2 609の口コミ・レビュー
エスティメゾン錦糸町2 609、これがあなたと新たに結びつく魔法の住所です。ここ、東京都墨田区江東橋3-5-19の心地よい空間が、まるで温かい家族のようにあなたを包み込みます。西に向いた窓から射し込む柔らかな陽光は、まるで朝のコーヒーの香りが漂う食卓を照らすかのように、あなたの日常に明るい彩りを添えてくれるでしょう。
このエスティメゾン錦糸町2 609の魅力は、その洗練されたデザインと快適さにあ…エスティメゾン錦糸町2 609、これがあなたと新たに結びつく魔法の住所です。ここ、東京都墨田区江東橋3-5-19の心地よい空間が、まるで温かい家族のようにあなたを包み込みます。西に向いた窓から射し込む柔らかな陽光は、まるで朝のコーヒーの香りが漂う食卓を照らすかのように、あなたの日常に明るい彩りを添えてくれるでしょう。
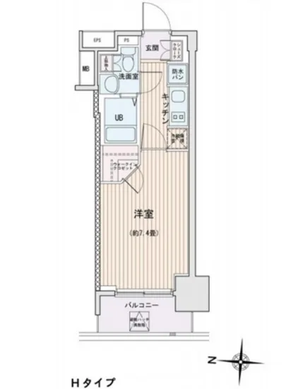
このエスティメゾン錦糸町2 609の魅力は、その洗練されたデザインと快適さにあります。特に、1Kの間取りは、洋室が7.4帖という寛ぎの空間を提供し、ちょっとしたひと時に心を休める場として理想的です。あなたがここで何をするのか、どんな物語を紡ぐのかは、あなた次第。時折、キャンドルの温かい光に照らされながら、本を手にする瞬間や、友人と共に笑い声を交わす賑やかな晩餐、あるいは特別な人と過ごすロマンティックな夜が浮かんできませんか。
エスティメゾン錦糸町2 609は、あなたの生活を支える現代的な設備も整っています。24時間管理という安心感、TVモニターホンでのセキュリティ、そしてエレベーターでのスムーズなアクセスは、まるで物語の中の主人公に寄り添う相棒のようです。さらに、オートロックのシステムは、あなたの秘密の庭を守る番人のように見守ってくれます。
周囲には、歴史と文化が交錯する魅力的なスポットが点在しています。東京メトロ半蔵門線の錦糸町駅まで徒歩わずか5分、そこから広がる街には、伝統的な日本の美や現代アートが織りなす景色が広がります。まるで、映画のワンシーンに登場するかのような穏やかな風景の中、アートギャラリーの静けさに心が満たされたり、美味しい食事やカフェの香りに誘われる姿が目に浮かびます。地元の人々との温かいつながりを感じながら、ゆったりとした時間が流れていく様子が想像できるのです。
エスティメゾン錦糸町2 609は、ただの居住空間ではありません。そこには、あなた自身の物語が始まる特別な舞台が待っています。朝、窓を開けると広がる街の音や香り、夜には星空を見上げるロマンチックな瞬間が、あなたの心に深く刻まれていくでしょう。この場所での新しい生活が、あなたにとってかけがえのない宝物となることを、私は確信しています。さあ、エスティメゾン錦糸町2 609で、あなたの新たな物語を一緒に描き始めましょう。
このエスティメゾン錦糸町2 609の魅力は、その洗練されたデザインと快適さにあ…エスティメゾン錦糸町2 609、これがあなたと新たに結びつく魔法の住所です。ここ、東京都墨田区江東橋3-5-19の心地よい空間が、まるで温かい家族のようにあなたを包み込みます。西に向いた窓から射し込む柔らかな陽光は、まるで朝のコーヒーの香りが漂う食卓を照らすかのように、あなたの日常に明るい彩りを添えてくれるでしょう。
このエスティメゾン錦糸町2 609の魅力は、その洗練されたデザインと快適さにあります。特に、1Kの間取りは、洋室が7.4帖という寛ぎの空間を提供し、ちょっとしたひと時に心を休める場として理想的です。あなたがここで何をするのか、どんな物語を紡ぐのかは、あなた次第。時折、キャンドルの温かい光に照らされながら、本を手にする瞬間や、友人と共に笑い声を交わす賑やかな晩餐、あるいは特別な人と過ごすロマンティックな夜が浮かんできませんか。
エスティメゾン錦糸町2 609は、あなたの生活を支える現代的な設備も整っています。24時間管理という安心感、TVモニターホンでのセキュリティ、そしてエレベーターでのスムーズなアクセスは、まるで物語の中の主人公に寄り添う相棒のようです。さらに、オートロックのシステムは、あなたの秘密の庭を守る番人のように見守ってくれます。
周囲には、歴史と文化が交錯する魅力的なスポットが点在しています。東京メトロ半蔵門線の錦糸町駅まで徒歩わずか5分、そこから広がる街には、伝統的な日本の美や現代アートが織りなす景色が広がります。まるで、映画のワンシーンに登場するかのような穏やかな風景の中、アートギャラリーの静けさに心が満たされたり、美味しい食事やカフェの香りに誘われる姿が目に浮かびます。地元の人々との温かいつながりを感じながら、ゆったりとした時間が流れていく様子が想像できるのです。
エスティメゾン錦糸町2 609は、ただの居住空間ではありません。そこには、あなた自身の物語が始まる特別な舞台が待っています。朝、窓を開けると広がる街の音や香り、夜には星空を見上げるロマンチックな瞬間が、あなたの心に深く刻まれていくでしょう。この場所での新しい生活が、あなたにとってかけがえのない宝物となることを、私は確信しています。さあ、エスティメゾン錦糸町2 609で、あなたの新たな物語を一緒に描き始めましょう。
バイブルスコア
バイブルスコア: 26.1
平均的なスコアです。
※バイブルスコア詳細はこちら
バイブルスコアとは独自のAI機械学習技術を利用した物件評価システムで、物件のおすすめ度を示します。最高得点は100点で、スコアが高いほど、よりおすすめの物件と評価されています。
写真
契約条件
| 賃料 | 予想金額:79,000〜99,000円程度 | 管理費 | 予想金額:8,000〜12,000円程度 |
| 礼金 | 非公開(アーカイブ) | 敷金 | 非公開(アーカイブ) |
| フリーレント | なし | 平米数 | 23.59㎡ |
| 間取り | 1K | 大型収納 | WIC |
| 契約期間 |
| 方角 | 西 |
| 更新料 | 契約形態 | 普通賃貸借契約 | |
| 取引態様 | 媒介 | 内見状況 | 入居中 |
| 入居時期 | 入居中 | SOHO・事務所 | |
| ペット | ペット可 | 間取り内訳 | 洋:7.4 |
| キャンペーン情報・備考 | 本情報は賃料改定交渉の資料作成、収益物件の利回り試算、周辺エリアや最寄り駅の坪単価分析、次回募集開始時期の予測などにご活用いただけます。 | ||
※「どの不動産に頼めばいいのか分からない」「信頼できる営業マンの話を聞きたい」「一番親切な会社と契約したい」とお悩みの方におすすめなのが「高級賃貸バイブル」です。
高級賃貸バイブルは業界10年以上の熟練スタッフ群がお客様ファーストで対応します。
下記ボタンから、まずは無料でご相談下さい。
※内覧をご希望の際には、どうぞ物件のエントランス前にてお待ち合わせくださいませ。ご内覧後は、同じ場所でお別れとさせていただきます。お客様のご都合に合わせたスムーズなご案内を心がけておりますので、ご質問等がございましたら何なりとお申し付けください。 物件概要
| 物件名 |
| 築年月 |
|
|---|---|---|---|
| 所在地 | |||
| 交通 | |||
| 総戸数 |
| 総階数 |
|
| 構造 |
| ||
地図
物件までの道のりは、「拡大地図を表示」をクリックしてナビ機能をご利用ください。
部屋設備















建物設備

24時間管理

TVモニターホン

エレベーター

オートロック

バイク置場

宅配ボックス

敷地内ゴミ置場

管理人

駐車場平置き

駐車場機械式

駐輪場
エスティメゾン錦糸町2の現在募集中のお部屋
- エスティメゾン錦糸町Ⅱ 406 - 間取り: 1LDK - 賃料: 17.3万円
- エスティメゾン錦糸町Ⅱ 1203 - 間取り: 1LDK - 賃料: 17.7万円
- エスティメゾン錦糸町Ⅱ 601 - 間取り: 1LDK+WIC - 賃料: 20.5万円
- エスティメゾン錦糸町Ⅱ 1505 - 間取り: 1DK - 賃料: 18万円
- エスティメゾン錦糸町Ⅱ 508 - 間取り: 1LDK - 賃料: 16.7万円























