
| 賃料 | 予想金額:137,000〜157,000円程度 | 管理費 | 予想金額:10,000〜14,000円程度 |
| 礼金/敷金 | 非公開(アーカイブ) | 平米数 | 40㎡ |
| 初期費用概算(参考) | 目安:430,800〜530,800 円 | みなし賃料(月額・参考) | 155,954〜175,954 円 |
| 備考 | 本ページは過去募集のアーカイブです。表示の金額は周辺相場・過去募集を踏まえた参考レンジであり、実際の契約金額・条件ではありません。 | ||
※上記みなし賃料(月額)は仲介手数料割引・無料&キャッシュバックを加味した高級賃貸バイブル限定の金額です。一般的なみなし賃料とは異なります。
【建物ページ】エスティメゾン錦糸町2の詳細・最新空室はこちら▶▶選ばれる理由
仲介手数料無料・キャンペーン情報(毎月15名様限定)
〇引っ越しお祝い金88200円プレゼント(キャッシュバック)
〇仲介手数料無料キャンペーン
エスティメゾン錦糸町2 706の口コミ・レビュー
エスティメゾン錦糸町2 706、ここはまるで、貴族の邸宅が現代に蘇ったかのような場所です。あなたがこの特別な住まいの扉を開けると、優雅な生活が待ち受けています。南向きの大きな窓から差し込む日の光が、まるで自然が描く絵画のように、穏やかで温かい雰囲気を醸し出します。専有面積40㎡、このスペースには、あなたの夢が色づき、日々の喜びが満ちていくことでしょう。
エスティメゾン錦糸町2 706は、洗練され…エスティメゾン錦糸町2 706、ここはまるで、貴族の邸宅が現代に蘇ったかのような場所です。あなたがこの特別な住まいの扉を開けると、優雅な生活が待ち受けています。南向きの大きな窓から差し込む日の光が、まるで自然が描く絵画のように、穏やかで温かい雰囲気を醸し出します。専有面積40㎡、このスペースには、あなたの夢が色づき、日々の喜びが満ちていくことでしょう。
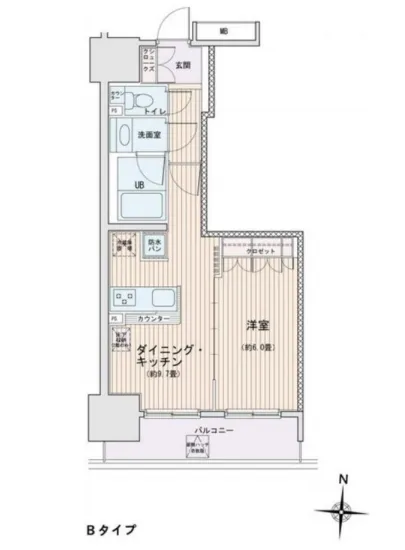
エスティメゾン錦糸町2 706は、洗練されたデザインが施された1LDKの空間で、柔らかなタッチの素材や色合いが心を癒してくれます。LDKは9.7帖、そこであなたは、友人と共に心に残る食事を楽しんだり、夕暮れ時にワインを片手にリラックスしたりと、人生の美しい瞬間を味わうことでしょう。隣接する洋室は6帖、安らぎの空間として、まるで夢の中にいるかのような深い眠りに誘います。
ここでの生活は、まるで映画のワンシーンのように演出されていると言えるでしょう。静かな午後、窓を開ければ、優しい風があなたの髪を撫で、遠くから聞こえる街のざわめきが心地よいBGMとなります。そして、朝の目覚めには、香ばしいコーヒーの香りがキッチンに広がり、それが一日の始まりを告げます。
エスティメゾン錦糸町2 706は、24時間管理された安心の空間で、あなたが選び取った美しい生活を守ります。また、TVモニターホンやオートロックなどの最新設備は、あなたの安全を第一に考えています。バイク置場や駐車場も完備され、忙しい日常においても、スムーズな移動をサポートします。宅配ボックスがあれば、通販の荷物も安心して受け取れます。敷地内のゴミ置場や管理人の常駐は、あなたの暮らしをより快適にしてくれることでしょう。
この立地は、東京メトロ半蔵門線 錦糸町駅からわずか徒歩5分。歴史と文化が交差するこのエリアでは、古き良き日本の影響を受けたアートや、最新のトレンドが共存しています。周辺には、情緒あふれる名所が点在し、あなたの探求心をくすぐります。日々の生活の中で、古き良き江戸情緒を感じる町並みや、近隣のカフェやアートギャラリーを訪れ、新たなインスピレーションを得ることでしょう。
エスティメゾン錦糸町2 706は、ただの住まいではなく、人生の舞台です。ここで、あなたは自分のストーリーを紡ぎ、夢を叶える日々を過ごすことができるのです。この特別な場所で、あなたは心の底から満たされる瞬間を手に入れることでしょう。あなたの新たな章が、エスティメゾン錦糸町2 706から始まるのです。どんな日も、あなたの人生は特別で、そして美しいのです。
エスティメゾン錦糸町2 706は、洗練され…エスティメゾン錦糸町2 706、ここはまるで、貴族の邸宅が現代に蘇ったかのような場所です。あなたがこの特別な住まいの扉を開けると、優雅な生活が待ち受けています。南向きの大きな窓から差し込む日の光が、まるで自然が描く絵画のように、穏やかで温かい雰囲気を醸し出します。専有面積40㎡、このスペースには、あなたの夢が色づき、日々の喜びが満ちていくことでしょう。
エスティメゾン錦糸町2 706は、洗練されたデザインが施された1LDKの空間で、柔らかなタッチの素材や色合いが心を癒してくれます。LDKは9.7帖、そこであなたは、友人と共に心に残る食事を楽しんだり、夕暮れ時にワインを片手にリラックスしたりと、人生の美しい瞬間を味わうことでしょう。隣接する洋室は6帖、安らぎの空間として、まるで夢の中にいるかのような深い眠りに誘います。
ここでの生活は、まるで映画のワンシーンのように演出されていると言えるでしょう。静かな午後、窓を開ければ、優しい風があなたの髪を撫で、遠くから聞こえる街のざわめきが心地よいBGMとなります。そして、朝の目覚めには、香ばしいコーヒーの香りがキッチンに広がり、それが一日の始まりを告げます。
エスティメゾン錦糸町2 706は、24時間管理された安心の空間で、あなたが選び取った美しい生活を守ります。また、TVモニターホンやオートロックなどの最新設備は、あなたの安全を第一に考えています。バイク置場や駐車場も完備され、忙しい日常においても、スムーズな移動をサポートします。宅配ボックスがあれば、通販の荷物も安心して受け取れます。敷地内のゴミ置場や管理人の常駐は、あなたの暮らしをより快適にしてくれることでしょう。
この立地は、東京メトロ半蔵門線 錦糸町駅からわずか徒歩5分。歴史と文化が交差するこのエリアでは、古き良き日本の影響を受けたアートや、最新のトレンドが共存しています。周辺には、情緒あふれる名所が点在し、あなたの探求心をくすぐります。日々の生活の中で、古き良き江戸情緒を感じる町並みや、近隣のカフェやアートギャラリーを訪れ、新たなインスピレーションを得ることでしょう。
エスティメゾン錦糸町2 706は、ただの住まいではなく、人生の舞台です。ここで、あなたは自分のストーリーを紡ぎ、夢を叶える日々を過ごすことができるのです。この特別な場所で、あなたは心の底から満たされる瞬間を手に入れることでしょう。あなたの新たな章が、エスティメゾン錦糸町2 706から始まるのです。どんな日も、あなたの人生は特別で、そして美しいのです。
バイブルスコア
バイブルスコア: 48
条件のいい物件です、引っ越しが2か月以内の場合は仮申し込みを検討すべき物件です。
※バイブルスコア詳細はこちら
バイブルスコアとは独自のAI機械学習技術を利用した物件評価システムで、物件のおすすめ度を示します。最高得点は100点で、スコアが高いほど、よりおすすめの物件と評価されています。
写真
契約条件
| 賃料 | 予想金額:137,000〜157,000円程度 | 管理費 | 予想金額:10,000〜14,000円程度 |
| 礼金 | 非公開(アーカイブ) | 敷金 | 非公開(アーカイブ) |
| フリーレント | なし | 平米数 | 40㎡ |
| 間取り | 1LDK | 大型収納 | |
| 契約期間 |
| 方角 | 南 |
| 更新料 | 契約形態 | 普通賃貸借契約 | |
| 取引態様 | 媒介 | 内見状況 | 入居中 |
| 入居時期 | 入居中 | SOHO・事務所 | |
| ペット | ペット可 | 間取り内訳 | 洋:6 LDK:9.7 |
| キャンペーン情報・備考 | 本情報は賃料改定交渉の資料作成、収益物件の利回り試算、周辺エリアや最寄り駅の坪単価分析、次回募集開始時期の予測などにご活用いただけます。 | ||
※「どの不動産に頼めばいいのか分からない」「信頼できる営業マンの話を聞きたい」「一番親切な会社と契約したい」とお悩みの方におすすめなのが「高級賃貸バイブル」です。
高級賃貸バイブルは業界10年以上の熟練スタッフ群がお客様ファーストで対応します。
下記ボタンから、まずは無料でご相談下さい。
※内覧をご希望の際には、どうぞ物件のエントランス前にてお待ち合わせくださいませ。ご内覧後は、同じ場所でお別れとさせていただきます。お客様のご都合に合わせたスムーズなご案内を心がけておりますので、ご質問等がございましたら何なりとお申し付けください。 物件概要
| 物件名 |
| 築年月 |
|
|---|---|---|---|
| 所在地 | |||
| 交通 | |||
| 総戸数 |
| 総階数 |
|
| 構造 |
| ||
地図
物件までの道のりは、「拡大地図を表示」をクリックしてナビ機能をご利用ください。
部屋設備
















建物設備

24時間管理

TVモニターホン

エレベーター

オートロック

バイク置場

宅配ボックス

敷地内ゴミ置場

管理人

駐車場平置き

駐車場機械式

駐輪場
エスティメゾン錦糸町2の現在募集中のお部屋
- エスティメゾン錦糸町Ⅱ 406 - 間取り: 1LDK - 賃料: 17.3万円
- エスティメゾン錦糸町Ⅱ 1203 - 間取り: 1LDK - 賃料: 17.7万円
- エスティメゾン錦糸町Ⅱ 601 - 間取り: 1LDK+WIC - 賃料: 20.5万円
- エスティメゾン錦糸町Ⅱ 1505 - 間取り: 1DK - 賃料: 18万円
- エスティメゾン錦糸町Ⅱ 508 - 間取り: 1LDK - 賃料: 16.7万円























