
| 賃料 | 予想金額:106,000〜126,000円程度 | 管理費 | 予想金額:4,000〜8,000円程度 |
| 礼金/敷金 | 非公開(アーカイブ) | 平米数 | 25.17㎡ |
| 初期費用概算(参考) | 目安:143,980〜243,980 円 | みなし賃料(月額・参考) | 113,625〜133,625 円 |
| 備考 | 本ページは過去募集のアーカイブです。表示の金額は周辺相場・過去募集を踏まえた参考レンジであり、実際の契約金額・条件ではありません。 | ||
※上記みなし賃料(月額)は仲介手数料割引・無料&キャッシュバックを加味した高級賃貸バイブル限定の金額です。一般的なみなし賃料とは異なります。
【建物ページ】プライマル五反田の詳細・最新空室はこちら▶▶選ばれる理由
仲介手数料無料・キャンペーン情報(毎月15名様限定)
〇引っ越しお祝い金141520円プレゼント(キャッシュバック)
〇仲介手数料無料キャンペーン
プライマル五反田 402の口コミ・レビュー
プライマル五反田 402。この賢者のような名前を持つ物件が、あなたの新たな生活の舞台となります。高級感が漂うこの空間は、東京都品川区東五反田1-8-8に静かに佇み、まるで運命の出会いを待ちわびるかのようです。南西を向いた窓からは、柔らかな陽射しが優しく差し込み、そこにいるだけで心が満たされていくのを感じます。
このプライマル五反田 402は、全体で25.17㎡の広さを誇り、1Kの贅沢な間取りを持…プライマル五反田 402。この賢者のような名前を持つ物件が、あなたの新たな生活の舞台となります。高級感が漂うこの空間は、東京都品川区東五反田1-8-8に静かに佇み、まるで運命の出会いを待ちわびるかのようです。南西を向いた窓からは、柔らかな陽射しが優しく差し込み、そこにいるだけで心が満たされていくのを感じます。
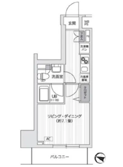
このプライマル五反田 402は、全体で25.17㎡の広さを誇り、1Kの贅沢な間取りを持っています。あなたがこの部屋に足を踏み入れた瞬間、まるで新たな映画の主演になったかのような気持ちが広がります。洋室は7.1帖の広さがあり、あなたの感性を刺激するインテリアを自由に施すことができます。柔らかな光がふんわりと包み込み、ここがあなたにとって特別な場所であることを教えてくれるでしょう。
プライマル五反田 402は、ただの住まいではありません。まるで人間のように温もりを持ち、あなたに寄り添う存在なのです。デザイナーズの魅力を持つこの部屋は、エレガントな内装と洗練された設備が、日常生活をより豊かに彩ります。TVモニターホンやオートロックなどの最新設備が、安心してあなたの生活を支えます。
五反田駅まで徒歩5分という立地は、まるで都会の中心で輝くメロディのように、あなたを新たな冒険に誘います。それはまるで、歴史と文化が交差する品川の街を散策しながら、時折耳にする古き良きジャズの旋律に包まれるような体験です。周辺には、落ち着いたカフェやギャラリーが点在し、アートとともに過ごす生活が、あなたの感性をさらに高めてくれることでしょう。
そして、プライマル五反田 402の窓を開ければ、心地よい風の中に溶け込む香りの世界が広がります。新鮮なコーヒーの香ばしさや、街角の花屋から漂うフローラルな香りが、あなたの日常に彩りを添えます。あなたがこの部屋で過ごす日々は、毎朝新たな美味しさで始まり、夜は静かな余韻を楽しむことでしょう。
さあ、プライマル五反田 402は、あなたを待っています。この特別な物件が、あなたの人生の新たな一章を開く鍵となることでしょう。ここで育まれる日々は、まるで映画のように、色彩豊かでありながら、しっかりとしたリアリティを持っています。あなたの感性と共鳴するこの空間で、ぜひ新たなストーリーを紡いでみてください。
このプライマル五反田 402は、全体で25.17㎡の広さを誇り、1Kの贅沢な間取りを持…プライマル五反田 402。この賢者のような名前を持つ物件が、あなたの新たな生活の舞台となります。高級感が漂うこの空間は、東京都品川区東五反田1-8-8に静かに佇み、まるで運命の出会いを待ちわびるかのようです。南西を向いた窓からは、柔らかな陽射しが優しく差し込み、そこにいるだけで心が満たされていくのを感じます。
このプライマル五反田 402は、全体で25.17㎡の広さを誇り、1Kの贅沢な間取りを持っています。あなたがこの部屋に足を踏み入れた瞬間、まるで新たな映画の主演になったかのような気持ちが広がります。洋室は7.1帖の広さがあり、あなたの感性を刺激するインテリアを自由に施すことができます。柔らかな光がふんわりと包み込み、ここがあなたにとって特別な場所であることを教えてくれるでしょう。
プライマル五反田 402は、ただの住まいではありません。まるで人間のように温もりを持ち、あなたに寄り添う存在なのです。デザイナーズの魅力を持つこの部屋は、エレガントな内装と洗練された設備が、日常生活をより豊かに彩ります。TVモニターホンやオートロックなどの最新設備が、安心してあなたの生活を支えます。
五反田駅まで徒歩5分という立地は、まるで都会の中心で輝くメロディのように、あなたを新たな冒険に誘います。それはまるで、歴史と文化が交差する品川の街を散策しながら、時折耳にする古き良きジャズの旋律に包まれるような体験です。周辺には、落ち着いたカフェやギャラリーが点在し、アートとともに過ごす生活が、あなたの感性をさらに高めてくれることでしょう。
そして、プライマル五反田 402の窓を開ければ、心地よい風の中に溶け込む香りの世界が広がります。新鮮なコーヒーの香ばしさや、街角の花屋から漂うフローラルな香りが、あなたの日常に彩りを添えます。あなたがこの部屋で過ごす日々は、毎朝新たな美味しさで始まり、夜は静かな余韻を楽しむことでしょう。
さあ、プライマル五反田 402は、あなたを待っています。この特別な物件が、あなたの人生の新たな一章を開く鍵となることでしょう。ここで育まれる日々は、まるで映画のように、色彩豊かでありながら、しっかりとしたリアリティを持っています。あなたの感性と共鳴するこの空間で、ぜひ新たなストーリーを紡いでみてください。
バイブルスコア
バイブルスコア: 25.7
平均的なスコアです。
※バイブルスコア詳細はこちら
バイブルスコアとは独自のAI機械学習技術を利用した物件評価システムで、物件のおすすめ度を示します。最高得点は100点で、スコアが高いほど、よりおすすめの物件と評価されています。
写真
契約条件
| 賃料 | 予想金額:106,000〜126,000円程度 | 管理費 | 予想金額:4,000〜8,000円程度 |
| 礼金 | 非公開(アーカイブ) | 敷金 | 非公開(アーカイブ) |
| フリーレント | なし | 平米数 | 25.17㎡ |
| 間取り | 1K | 大型収納 | |
| 契約期間 |
| 方角 | 南西 |
| 更新料 | 契約形態 | 普通賃貸借契約 | |
| 取引態様 | 媒介 | 内見状況 | 入居中 |
| 入居時期 | 入居中 | SOHO・事務所 | |
| ペット | ペット可 | 間取り内訳 | 洋:7.1 |
| キャンペーン情報・備考 | 本情報は賃料改定交渉の資料作成、収益物件の利回り試算、周辺エリアや最寄り駅の坪単価分析、次回募集開始時期の予測などにご活用いただけます。 | ||
※「どの不動産に頼めばいいのか分からない」「信頼できる営業マンの話を聞きたい」「一番親切な会社と契約したい」とお悩みの方におすすめなのが「高級賃貸バイブル」です。
高級賃貸バイブルは業界10年以上の熟練スタッフ群がお客様ファーストで対応します。
下記ボタンから、まずは無料でご相談下さい。
※内覧をご希望の際には、どうぞ物件のエントランス前にてお待ち合わせくださいませ。ご内覧後は、同じ場所でお別れとさせていただきます。お客様のご都合に合わせたスムーズなご案内を心がけておりますので、ご質問等がございましたら何なりとお申し付けください。 物件概要
| 物件名 |
| 築年月 |
|
|---|---|---|---|
| 所在地 | |||
| 交通 | |||
| 総戸数 |
| 総階数 |
|
| 構造 |
| ||
地図
物件までの道のりは、「拡大地図を表示」をクリックしてナビ機能をご利用ください。
部屋設備















建物設備

TVモニターホン

エレベーター

オートロック

バイク置場

宅配ボックス

敷地内ゴミ置場

管理人

駐車場平置き

駐車場機械式

駐輪場
プライマル五反田の現在募集中のお部屋
- No rooms found for this property.
























