
| 賃料 | 予想金額:132,000〜152,000円程度 | 管理費 | 予想金額:8,000〜12,000円程度 |
| 礼金/敷金 | 非公開(アーカイブ) | 平米数 | 28.24㎡ |
| 初期費用概算(参考) | 目安:553,500〜653,500 円 | みなし賃料(月額・参考) | 151,615〜171,615 円 |
| 備考 | 本ページは過去募集のアーカイブです。表示の金額は周辺相場・過去募集を踏まえた参考レンジであり、実際の契約金額・条件ではありません。 | ||
※上記みなし賃料(月額)は仲介手数料割引・無料&キャッシュバックを加味した高級賃貸バイブル限定の金額です。一般的なみなし賃料とは異なります。
【建物ページ】アーデン芝公園の詳細・最新空室はこちら▶▶選ばれる理由
仲介手数料無料・キャンペーン情報(毎月15名様限定)
〇仲介手数料割引キャンペーン
アーデン芝公園 502の口コミ・レビュー
「アーデン芝公園 502」。この名を耳にした瞬間、心が躍ることでしょう。それはまるで、優雅なオーケストラが始まる前の静けさの中に流れる、期待感に満ちた音色のようです。東京都港区芝公園1-1-8に佇むこの物件は、南向きの窓から光が降り注ぎ、温かな日差しに包まれたオアシスのような存在です。
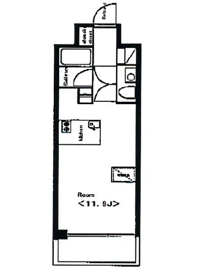
この場所であなたが目にするのは、広々とした洋室11.9帖の空間。広がる視界は、創造性をかきたてるキャンバスのよ…「アーデン芝公園 502」。この名を耳にした瞬間、心が躍ることでしょう。それはまるで、優雅なオーケストラが始まる前の静けさの中に流れる、期待感に満ちた音色のようです。東京都港区芝公園1-1-8に佇むこの物件は、南向きの窓から光が降り注ぎ、温かな日差しに包まれたオアシスのような存在です。
この場所であなたが目にするのは、広々とした洋室11.9帖の空間。広がる視界は、創造性をかきたてるキャンバスのようです。ここでは、朝の光が優しく室内を照らし、夜には星々が煌めくようなロマンチックなひとときを演出します。広さ28.24㎡の中に、あなたの生活のすべてが詰まる、まさにライフスタイルを形作る個性溢れる場所です。
「アーデン芝公園 502」は、ただの住まいではありません。まるで語りかけてくるかのように、すべての生活シーンを演出してくれる存在です。あなたが目を閉じ、深呼吸をする。その瞬間に、心地良い光の粒が肌を優しく撫でていきます。新鮮な花の香りが風に乗って運ばれ、癒しを与えてくれるのです。
エレガントなデザインが施されたこの物件には、24時間管理の安心感が宿っています。自分の生活を大切にするためのセキュリティは、まるで専属の衛兵のようにあなたを守ります。TVモニターホンを通じて訪問者を確認し、安心して迎え入れることができるこの道具は、まるで友人を迎え入れる際の高貴な扉のようです。そして、宅配ボックスは、あなたの毎日をサポートする頼もしいパートナーとして、いつでも素早く荷物を受け取ることができます。
「アーデン芝公園 502」は、穏やかな生活を求めるあなたにとっての避難所です。周辺には東京タワーや芝公園といった歴史的なスポットが点在し、文化と芸術が息づいています。週末には公園でのんびりと散策を楽しみ、毎日がまるで映画のワンシーンのような素晴らしい体験になることでしょう。
最寄りの都営地下鉄三田線御成門駅までは徒歩1分という素晴らしいアクセスも、この物件の大きな魅力の一つです。都市の中心へとスムーズにアクセスができるため、忙しいビジネスパーソンも、余裕を持ったプライベートライフを楽しむことができるでしょう。
「アーデン芝公園 502」。ここでの暮らしは、ただの居住空間を超え、日常の中に特別な瞬間をもたらすことでしょう。あなたの新しい冒険が、ここから始まります。美しい空間で、心穏やかな毎日を送ってみませんか。
この場所であなたが目にするのは、広々とした洋室11.9帖の空間。広がる視界は、創造性をかきたてるキャンバスのよ…「アーデン芝公園 502」。この名を耳にした瞬間、心が躍ることでしょう。それはまるで、優雅なオーケストラが始まる前の静けさの中に流れる、期待感に満ちた音色のようです。東京都港区芝公園1-1-8に佇むこの物件は、南向きの窓から光が降り注ぎ、温かな日差しに包まれたオアシスのような存在です。
この場所であなたが目にするのは、広々とした洋室11.9帖の空間。広がる視界は、創造性をかきたてるキャンバスのようです。ここでは、朝の光が優しく室内を照らし、夜には星々が煌めくようなロマンチックなひとときを演出します。広さ28.24㎡の中に、あなたの生活のすべてが詰まる、まさにライフスタイルを形作る個性溢れる場所です。
「アーデン芝公園 502」は、ただの住まいではありません。まるで語りかけてくるかのように、すべての生活シーンを演出してくれる存在です。あなたが目を閉じ、深呼吸をする。その瞬間に、心地良い光の粒が肌を優しく撫でていきます。新鮮な花の香りが風に乗って運ばれ、癒しを与えてくれるのです。
エレガントなデザインが施されたこの物件には、24時間管理の安心感が宿っています。自分の生活を大切にするためのセキュリティは、まるで専属の衛兵のようにあなたを守ります。TVモニターホンを通じて訪問者を確認し、安心して迎え入れることができるこの道具は、まるで友人を迎え入れる際の高貴な扉のようです。そして、宅配ボックスは、あなたの毎日をサポートする頼もしいパートナーとして、いつでも素早く荷物を受け取ることができます。
「アーデン芝公園 502」は、穏やかな生活を求めるあなたにとっての避難所です。周辺には東京タワーや芝公園といった歴史的なスポットが点在し、文化と芸術が息づいています。週末には公園でのんびりと散策を楽しみ、毎日がまるで映画のワンシーンのような素晴らしい体験になることでしょう。
最寄りの都営地下鉄三田線御成門駅までは徒歩1分という素晴らしいアクセスも、この物件の大きな魅力の一つです。都市の中心へとスムーズにアクセスができるため、忙しいビジネスパーソンも、余裕を持ったプライベートライフを楽しむことができるでしょう。
「アーデン芝公園 502」。ここでの暮らしは、ただの居住空間を超え、日常の中に特別な瞬間をもたらすことでしょう。あなたの新しい冒険が、ここから始まります。美しい空間で、心穏やかな毎日を送ってみませんか。
バイブルスコア
バイブルスコア: 20.8
平均的なスコアです。
※バイブルスコア詳細はこちら
バイブルスコアとは独自のAI機械学習技術を利用した物件評価システムで、物件のおすすめ度を示します。最高得点は100点で、スコアが高いほど、よりおすすめの物件と評価されています。
写真
契約条件
| 賃料 | 予想金額:132,000〜152,000円程度 | 管理費 | 予想金額:8,000〜12,000円程度 |
| 礼金 | 非公開(アーカイブ) | 敷金 | 非公開(アーカイブ) |
| フリーレント | なし | 平米数 | 28.24㎡ |
| 間取り | 1R | 大型収納 | |
| 契約期間 |
| 方角 | 南 |
| 更新料 | 契約形態 | 普通賃貸借契約 | |
| 取引態様 | 媒介 | 内見状況 | 入居中 |
| 入居時期 | 入居中 | SOHO・事務所 | |
| ペット | 間取り内訳 | 洋室11.9畳 | |
| キャンペーン情報・備考 | 本情報は賃料改定交渉の資料作成、収益物件の利回り試算、周辺エリアや最寄り駅の坪単価分析、次回募集開始時期の予測などにご活用いただけます。 | ||
※「どの不動産に頼めばいいのか分からない」「信頼できる営業マンの話を聞きたい」「一番親切な会社と契約したい」とお悩みの方におすすめなのが「高級賃貸バイブル」です。
高級賃貸バイブルは業界10年以上の熟練スタッフ群がお客様ファーストで対応します。
下記ボタンから、まずは無料でご相談下さい。
※内覧をご希望の際には、どうぞ物件のエントランス前にてお待ち合わせくださいませ。ご内覧後は、同じ場所でお別れとさせていただきます。お客様のご都合に合わせたスムーズなご案内を心がけておりますので、ご質問等がございましたら何なりとお申し付けください。 物件概要
| 物件名 |
| 築年月 |
|
|---|---|---|---|
| 所在地 | |||
| 交通 | |||
| 総戸数 |
| 総階数 |
|
| 構造 |
| ||
地図
物件までの道のりは、「拡大地図を表示」をクリックしてナビ機能をご利用ください。
部屋設備
















建物設備

24時間管理

TVモニターホン

エレベーター

オートロック

宅配ボックス

敷地内ゴミ置場

駐車場機械式

駐輪場
アーデン芝公園の現在募集中のお部屋
- アーデン芝公園 504 - 間取り: 1R - 賃料: 15.5万円
- アーデン芝公園 202 - 間取り: 1R - 賃料: 15万円
- アーデン芝公園 406 - 間取り: 1R - 賃料: 16万円
- アーデン芝公園 1403 - 間取り: 2LDK+WIC - 賃料: 34.3万円
- アーデン芝公園 906 - 間取り: 1R - 賃料: 16.5万円
- アーデン芝公園 1504 - 間取り: 1R - 賃料: 16.7万円


























