
| 賃料 | 予想金額:116,000〜136,000円程度 | 管理費 | 予想金額:8,000〜12,000円程度 |
| 礼金/敷金 | 非公開(アーカイブ) | 平米数 | 26.64㎡ |
| 初期費用概算(参考) | 目安:36,780〜136,780 円 | みなし賃料(月額・参考) | 125,183〜145,183 円 |
| 備考 | 本ページは過去募集のアーカイブです。表示の金額は周辺相場・過去募集を踏まえた参考レンジであり、実際の契約金額・条件ではありません。 | ||
※上記みなし賃料(月額)は仲介手数料割引・無料&キャッシュバックを加味した高級賃貸バイブル限定の金額です。一般的なみなし賃料とは異なります。
【建物ページ】アーデン芝公園の詳細・最新空室はこちら▶▶選ばれる理由
仲介手数料無料・キャンペーン情報(毎月15名様限定)
〇引っ越しお祝い金153720円プレゼント(キャッシュバック)
〇仲介手数料無料キャンペーン
アーデン芝公園 205の口コミ・レビュー
アーデン芝公園 205。この名は、あなたの新しい生活を迎える美しい舞台の幕開けを告げます。東京都港区芝公園1-1-8に位置し、南向きの窓からは朝日が優しく差し込み、心を豊かにしてくれるでしょう。エレガントなデザイナーズマンションであるアーデン芝公園 205は、ただの住まいではなく、あなた自身を映し出す特別な空間でございます。
さあ、扉を開けてみてください。ふっと漂う香りは、洗練された生活を象徴す…アーデン芝公園 205。この名は、あなたの新しい生活を迎える美しい舞台の幕開けを告げます。東京都港区芝公園1-1-8に位置し、南向きの窓からは朝日が優しく差し込み、心を豊かにしてくれるでしょう。エレガントなデザイナーズマンションであるアーデン芝公園 205は、ただの住まいではなく、あなた自身を映し出す特別な空間でございます。
さあ、扉を開けてみてください。ふっと漂う香りは、洗練された生活を象徴するアロマのようです。リビングから流れ込む光は、まるで一枚の絵画が完成していくように、あなたの心を満たしていきます。洋室9.6帖の広々とした空間は、心地よい風が吹き抜ける柔らかな布地のように、包み込んでくれることでしょう。そこでは、あなたの創造力が羽を広げ、自由に踊り出す様子が想像できます。
アーデン芝公園 205の中に身を置けば、都会の喧噪を一瞬忘れ、静かなリズムの中で自分だけの時間を楽しむことができるはずです。24時間管理の安心感とオートロックの守りは、心を落ち着け、温かく迎えてくれる家族のようです。TVモニターホンが、あなたの訪問者を優雅にお迎えし、まるで特別なゲストを招くような気持ちにさせてくれます。
また、宅配ボックスの存在は、忙しいあなたの生活における小さなヒーロー。大切なギフトや日々の必需品が、あなたのもとに寄り添ってくれます。その瞬間、まるで何か特別なサプライズが待っているかのように、心が躍ります。
最寄駅の都営地下鉄三田線・御成門駅から徒歩1分というアクセスの良さは、まるで夢のようにスムーズ。街を散策する中で、歴史ある芝公園の緑に包まれた静けさや、文化豊かなアートシーンがあちらこちらに息づく様子を感じることができます。ここでの生活は、まるで映画のワンシーンのように、日常が特別な物語に変わっていくのです。
アーデン芝公園 205は、あなたの日常を装飾する最高の舞台装置です。洗練されたデザイン、極上のライフスタイル、そして都市の活気を一つにしたこの場所で、あなたは自分だけのストーリーを紡ぎ出すことができるでしょう。どうぞ、この特別な空間で新たな物語の主人公となってください。あなたを待っているのは、ただの住まいではなく、真の「家」と呼ぶにふさわしい、心温まる居場所なのです。
さあ、扉を開けてみてください。ふっと漂う香りは、洗練された生活を象徴す…アーデン芝公園 205。この名は、あなたの新しい生活を迎える美しい舞台の幕開けを告げます。東京都港区芝公園1-1-8に位置し、南向きの窓からは朝日が優しく差し込み、心を豊かにしてくれるでしょう。エレガントなデザイナーズマンションであるアーデン芝公園 205は、ただの住まいではなく、あなた自身を映し出す特別な空間でございます。
さあ、扉を開けてみてください。ふっと漂う香りは、洗練された生活を象徴するアロマのようです。リビングから流れ込む光は、まるで一枚の絵画が完成していくように、あなたの心を満たしていきます。洋室9.6帖の広々とした空間は、心地よい風が吹き抜ける柔らかな布地のように、包み込んでくれることでしょう。そこでは、あなたの創造力が羽を広げ、自由に踊り出す様子が想像できます。
アーデン芝公園 205の中に身を置けば、都会の喧噪を一瞬忘れ、静かなリズムの中で自分だけの時間を楽しむことができるはずです。24時間管理の安心感とオートロックの守りは、心を落ち着け、温かく迎えてくれる家族のようです。TVモニターホンが、あなたの訪問者を優雅にお迎えし、まるで特別なゲストを招くような気持ちにさせてくれます。
また、宅配ボックスの存在は、忙しいあなたの生活における小さなヒーロー。大切なギフトや日々の必需品が、あなたのもとに寄り添ってくれます。その瞬間、まるで何か特別なサプライズが待っているかのように、心が躍ります。
最寄駅の都営地下鉄三田線・御成門駅から徒歩1分というアクセスの良さは、まるで夢のようにスムーズ。街を散策する中で、歴史ある芝公園の緑に包まれた静けさや、文化豊かなアートシーンがあちらこちらに息づく様子を感じることができます。ここでの生活は、まるで映画のワンシーンのように、日常が特別な物語に変わっていくのです。
アーデン芝公園 205は、あなたの日常を装飾する最高の舞台装置です。洗練されたデザイン、極上のライフスタイル、そして都市の活気を一つにしたこの場所で、あなたは自分だけのストーリーを紡ぎ出すことができるでしょう。どうぞ、この特別な空間で新たな物語の主人公となってください。あなたを待っているのは、ただの住まいではなく、真の「家」と呼ぶにふさわしい、心温まる居場所なのです。
バイブルスコア
バイブルスコア: 29.7
平均的なスコアです。
※バイブルスコア詳細はこちら
バイブルスコアとは独自のAI機械学習技術を利用した物件評価システムで、物件のおすすめ度を示します。最高得点は100点で、スコアが高いほど、よりおすすめの物件と評価されています。
写真
契約条件
| 賃料 | 予想金額:116,000〜136,000円程度 | 管理費 | 予想金額:8,000〜12,000円程度 |
| 礼金 | 非公開(アーカイブ) | 敷金 | 非公開(アーカイブ) |
| フリーレント | なし | 平米数 | 26.64㎡ |
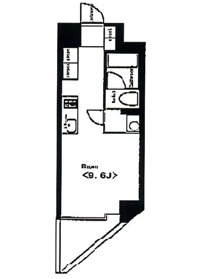
| 間取り | 1R | 大型収納 | |
| 契約期間 |
| 方角 | 南 |
| 更新料 | 契約形態 | 普通賃貸借契約 | |
| 取引態様 | 媒介 | 内見状況 | 入居中 |
| 入居時期 | 入居中 | SOHO・事務所 | |
| ペット | 間取り内訳 | 洋室9.6畳 | |
| キャンペーン情報・備考 | 本情報は賃料改定交渉の資料作成、収益物件の利回り試算、周辺エリアや最寄り駅の坪単価分析、次回募集開始時期の予測などにご活用いただけます。 | ||
※「どの不動産に頼めばいいのか分からない」「信頼できる営業マンの話を聞きたい」「一番親切な会社と契約したい」とお悩みの方におすすめなのが「高級賃貸バイブル」です。
高級賃貸バイブルは業界10年以上の熟練スタッフ群がお客様ファーストで対応します。
下記ボタンから、まずは無料でご相談下さい。
※内覧をご希望の際には、どうぞ物件のエントランス前にてお待ち合わせくださいませ。ご内覧後は、同じ場所でお別れとさせていただきます。お客様のご都合に合わせたスムーズなご案内を心がけておりますので、ご質問等がございましたら何なりとお申し付けください。 物件概要
| 物件名 |
| 築年月 |
|
|---|---|---|---|
| 所在地 | |||
| 交通 | |||
| 総戸数 |
| 総階数 |
|
| 構造 |
| ||
地図
物件までの道のりは、「拡大地図を表示」をクリックしてナビ機能をご利用ください。
部屋設備
















建物設備

24時間管理

TVモニターホン

エレベーター

オートロック

宅配ボックス

敷地内ゴミ置場

駐車場機械式

駐輪場
アーデン芝公園の現在募集中のお部屋
- アーデン芝公園 504 - 間取り: 1R - 賃料: 15.5万円
- アーデン芝公園 202 - 間取り: 1R - 賃料: 15万円
- アーデン芝公園 406 - 間取り: 1R - 賃料: 16万円
- アーデン芝公園 1403 - 間取り: 2LDK+WIC - 賃料: 34.3万円
- アーデン芝公園 906 - 間取り: 1R - 賃料: 16.5万円
- アーデン芝公園 1504 - 間取り: 1R - 賃料: 16.7万円


























