
| 賃料 | 予想金額:118,000〜138,000円程度 | 管理費 | 予想金額:9,000〜13,000円程度 |
| 礼金/敷金 | 非公開(アーカイブ) | 平米数 | 26.93㎡ |
| 初期費用概算(参考) | 目安:152,900〜252,900 円 | みなし賃料(月額・参考) | 130,560〜150,560 円 |
| 備考 | 本ページは過去募集のアーカイブです。表示の金額は周辺相場・過去募集を踏まえた参考レンジであり、実際の契約金額・条件ではありません。 | ||
※上記みなし賃料(月額)は仲介手数料割引・無料&キャッシュバックを加味した高級賃貸バイブル限定の金額です。一般的なみなし賃料とは異なります。
【建物ページ】ローレルタワールネ浜松町の詳細・最新空室はこちら▶▶選ばれる理由
仲介手数料無料・キャンペーン情報(毎月15名様限定)
〇引っ越しお祝い金153600円プレゼント(キャッシュバック)
〇仲介手数料無料キャンペーン
ローレルタワールネ浜松町 209の口コミ・レビュー
ローレルタワールネ浜松町 209へようこそ。この素晴らしい物件は、あなたの新しい住まいとして、ただの居住空間を超えた心の拠り所となることでしょう。美しい東京の海岸に佇むこのマンションは、まるで都会の真ん中にあるオアシスのように、日々の喧騒から解放される特別な場所です。209号室は、充実した26.93㎡の空間に、7.0帖の心地良いベッドルームが広がります。この部屋は、ただの住まいではなく、あなた自身…ローレルタワールネ浜松町 209へようこそ。この素晴らしい物件は、あなたの新しい住まいとして、ただの居住空間を超えた心の拠り所となることでしょう。美しい東京の海岸に佇むこのマンションは、まるで都会の真ん中にあるオアシスのように、日々の喧騒から解放される特別な場所です。209号室は、充実した26.93㎡の空間に、7.0帖の心地良いベッドルームが広がります。この部屋は、ただの住まいではなく、あなた自身を表現するキャンバスなのです。
朝日が昇るころ、東向きの窓から差し込む柔らかな光が、部屋を黄金色に染め上げます。光と影のコントラストが、あなたの日常を特別な瞬間に変えてくれることでしょう。目を閉じれば、心地よい海のさざなみの音が耳に届き、潮の香りがふわりと漂い、心が和らぐのを感じます。この瞬間、あなたはまるで映画のワンシーンの中にいるかのように、現実を超えた世界に浸るのです。
ローレルタワールネ浜松町 209は、そのデザイナーズの美しさに加え、フロントサービスやラウンジといった贅沢な設備があなたのライフスタイルを格上げします。まるでパリの高級ホテルに宿泊しているかのような心地良さを、日常的に享受できるのです。他の住人たちとの交流や、ふとした会話が生まれるラウンジでのひとときは、何ものにも代え難い貴重な時間となるでしょう。
このタワーは、ただ土地に建つ建物ではなく、歴史と文化の息吹を感じる場所でもあります。周辺には、浜松町の歴史的なスポットや文化施設が点在しています。美術館やギャラリーで過ごす休日は、心の栄養となり、あなたの感性をさらに豊かにしてくれることでしょう。美味しい料理を楽しむために訪れるレストランも多く、地元の食材を活かした料理が、味覚を満たしてくれます。
心地良さと品格が同居するローレルタワールネ浜松町 209は、単なる居住空間ではなく、あなたの人生を彩る舞台です。ここでの生活は、まるで新しい章の始まりのように、心弾む瞬間で満ち溢れています。あなたの物語が、この素晴らしい空間の中でさらに深まっていくことを、心よりお祈り申し上げます。新たな出会いや体験が、あなたを待っています。ローレルタワールネ浜松町 209で、あなたの人生の新しいページをめくってみませんか。
朝日が昇るころ、東向きの窓から差し込む柔らかな光が、部屋を黄金色に染め上げます。光と影のコントラストが、あなたの日常を特別な瞬間に変えてくれることでしょう。目を閉じれば、心地よい海のさざなみの音が耳に届き、潮の香りがふわりと漂い、心が和らぐのを感じます。この瞬間、あなたはまるで映画のワンシーンの中にいるかのように、現実を超えた世界に浸るのです。
ローレルタワールネ浜松町 209は、そのデザイナーズの美しさに加え、フロントサービスやラウンジといった贅沢な設備があなたのライフスタイルを格上げします。まるでパリの高級ホテルに宿泊しているかのような心地良さを、日常的に享受できるのです。他の住人たちとの交流や、ふとした会話が生まれるラウンジでのひとときは、何ものにも代え難い貴重な時間となるでしょう。
このタワーは、ただ土地に建つ建物ではなく、歴史と文化の息吹を感じる場所でもあります。周辺には、浜松町の歴史的なスポットや文化施設が点在しています。美術館やギャラリーで過ごす休日は、心の栄養となり、あなたの感性をさらに豊かにしてくれることでしょう。美味しい料理を楽しむために訪れるレストランも多く、地元の食材を活かした料理が、味覚を満たしてくれます。
心地良さと品格が同居するローレルタワールネ浜松町 209は、単なる居住空間ではなく、あなたの人生を彩る舞台です。ここでの生活は、まるで新しい章の始まりのように、心弾む瞬間で満ち溢れています。あなたの物語が、この素晴らしい空間の中でさらに深まっていくことを、心よりお祈り申し上げます。新たな出会いや体験が、あなたを待っています。ローレルタワールネ浜松町 209で、あなたの人生の新しいページをめくってみませんか。
バイブルスコア
バイブルスコア: 99.8
レア物件です、すぐ仮押さえしましょう!
このお部屋は、現在ご入居中のため空室情報はございません。ただし、将来的に募集が開始される際、バイブルスコアにおいて非常に高い評価が期待されます。特にご興味をお持ちの方は、今のうちにブックマークやお気に入りに登録していただくと、募集開始のお知らせをすぐに受け取ることができます。是非ともご検討くださいませ。
※バイブルスコア詳細はこちら
バイブルスコアとは独自のAI機械学習技術を利用した物件評価システムで、物件のおすすめ度を示します。最高得点は100点で、スコアが高いほど、よりおすすめの物件と評価されています。
写真
契約条件
| 賃料 | 予想金額:118,000〜138,000円程度 | 管理費 | 予想金額:9,000〜13,000円程度 |
| 礼金 | 非公開(アーカイブ) | 敷金 | 非公開(アーカイブ) |
| フリーレント | なし | 平米数 | 26.93㎡ |
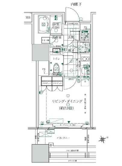
| 間取り | 1K | 大型収納 | |
| 契約期間 | 2年 | 方角 | 東 |
| 更新料 | 1ヶ月 | 契約形態 | 普通賃貸借契約 |
| 取引態様 | 媒介 | 内見状況 | 入居中 |
| 入居時期 | 入居中 | SOHO・事務所 | |
| ペット | ペット可 | 間取り内訳 | BR=7.0J |
| キャンペーン情報・備考 | 本情報は賃料改定交渉の資料作成、収益物件の利回り試算、周辺エリアや最寄り駅の坪単価分析、次回募集開始時期の予測などにご活用いただけます。 | ||
※「どの不動産に頼めばいいのか分からない」「信頼できる営業マンの話を聞きたい」「一番親切な会社と契約したい」とお悩みの方におすすめなのが「高級賃貸バイブル」です。
高級賃貸バイブルは業界10年以上の熟練スタッフ群がお客様ファーストで対応します。
下記ボタンから、まずは無料でご相談下さい。
※内覧をご希望の際には、どうぞ物件のエントランス前にてお待ち合わせくださいませ。ご内覧後は、同じ場所でお別れとさせていただきます。お客様のご都合に合わせたスムーズなご案内を心がけておりますので、ご質問等がございましたら何なりとお申し付けください。 物件概要
| 物件名 |
| 築年月 |
|
|---|---|---|---|
| 所在地 | |||
| 交通 | |||
| 総戸数 |
| 総階数 |
|
| 構造 |
| ||
地図
物件までの道のりは、「拡大地図を表示」をクリックしてナビ機能をご利用ください。
部屋設備
















建物設備

24時間管理

TVモニターホン

エレベーター

オートロック

フロントサービス

ラウンジ

宅配ボックス

敷地内ゴミ置場

管理人

駐車場機械式

駐輪場
ローレルタワールネ浜松町の現在募集中のお部屋
- ローレルタワールネ浜松町 23階 87.94㎡ - 間取り: 1SLDK+WIC - 賃料: 85万円


























