
| 賃料 | 予想金額:111,000〜131,000円程度 | 管理費 | 予想金額:22,000〜26,000円程度 |
| 礼金/敷金 | 非公開(アーカイブ) | 平米数 | 29.2㎡ |
| 初期費用概算(参考) | 目安:177,380〜277,380 円 | みなし賃料(月額・参考) | 137,216〜157,216 円 |
| 備考 | 本ページは過去募集のアーカイブです。表示の金額は周辺相場・過去募集を踏まえた参考レンジであり、実際の契約金額・条件ではありません。 | ||
※上記みなし賃料(月額)は仲介手数料割引・無料&キャッシュバックを加味した高級賃貸バイブル限定の金額です。一般的なみなし賃料とは異なります。
【建物ページ】コムレジ赤羽の詳細・最新空室はこちら▶▶選ばれる理由
仲介手数料無料・キャンペーン情報(毎月15名様限定)
〇引っ越しお祝い金147620円プレゼント(キャッシュバック)
〇仲介手数料無料キャンペーン
コムレジ赤羽 507の口コミ・レビュー
コムレジ赤羽 507。あなたの新しい居場所は、ただの住まいではなく、豪華な映画のワンシーンのような生活をもたらす舞台なのです。エレガンスとシンプルさが見事に調和したこの1Kの空間は、29.2㎡という広さの中に無限の可能性を秘めています。507号室は、あなたの想像力を掻き立てるために、南東の陽光をたっぷりと浴びる位置にあり、朝日がカーテンの隙間から室内に優しく差し込み、心を目覚めさせるでしょう。
…コムレジ赤羽 507。あなたの新しい居場所は、ただの住まいではなく、豪華な映画のワンシーンのような生活をもたらす舞台なのです。エレガンスとシンプルさが見事に調和したこの1Kの空間は、29.2㎡という広さの中に無限の可能性を秘めています。507号室は、あなたの想像力を掻き立てるために、南東の陽光をたっぷりと浴びる位置にあり、朝日がカーテンの隙間から室内に優しく差し込み、心を目覚めさせるでしょう。
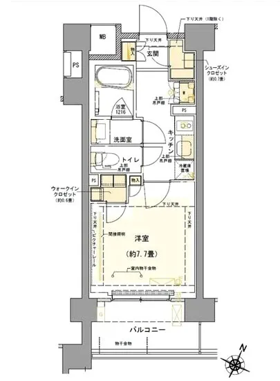
部屋に足を踏み入れた瞬間、優雅な曲線を描くデザイナーズ空間が、まるで個性的なアート作品のように、あなたを迎えてくれます。広々とした洋室は7.7帖の広さを誇り、自由にレイアウトできる広がりを秘めています。あなたが選び取るインテリアによって、この空間は千変万化します。大切な友人たちとの会話を楽しんだり、心を静めるための読書の時間を満喫したり、ここはまさにあなたの生活の舞台なのです。
コムレジ赤羽 507には、ただの生活空間だけでなく、安心と快適を提供する設備も整っています。TVモニターホン越しに自分の大切な人とつながることで、心の距離が一層近く感じられることでしょう。エレベーターやオートロックは、あなたの生活をより便利にし、管理人の存在は、まるで専属のコンシェルジュのように、安心感をもたらしてくれます。宅配ボックスもあるため、忙しい日々の中でのプレゼントや取り寄せた本の受け取りもスムーズです。
そして、周辺の環境も格別です。赤羽エリアは歴史と文化が息づく場所で、古き良き日本の情緒と現代的な利便性が共存しています。地元の市場や食堂、カフェにふらりと立ち寄ることで、地域の人々との温かい交流が生まれるでしょう。また、散歩がてらに訪れることができる公園では、四季折々の自然の美しさを感じることができ、心が豊かになります。赤羽の街は、あなたの人生を彩るさまざまな経験を提供してくれるのです。
コムレジ赤羽 507に住むことで、あなたの日常は間違いなく特別なものとなるでしょう。この場所は、ただの居住空間ではなく、あなたの目の前に広がる生活の舞台であり、人生に対する新たな視点を与えてくれる存在です。ここでの毎日は、素晴らしい映画のワンシーンのように、情熱的で鮮やかに展開されることでしょう。そして、その舞台の主役は、まぎれもなくあなた自身なのです。この機会をお見逃しなく、コムレジ赤羽 507での新しいページを開く準備をしましょう。
…コムレジ赤羽 507。あなたの新しい居場所は、ただの住まいではなく、豪華な映画のワンシーンのような生活をもたらす舞台なのです。エレガンスとシンプルさが見事に調和したこの1Kの空間は、29.2㎡という広さの中に無限の可能性を秘めています。507号室は、あなたの想像力を掻き立てるために、南東の陽光をたっぷりと浴びる位置にあり、朝日がカーテンの隙間から室内に優しく差し込み、心を目覚めさせるでしょう。
部屋に足を踏み入れた瞬間、優雅な曲線を描くデザイナーズ空間が、まるで個性的なアート作品のように、あなたを迎えてくれます。広々とした洋室は7.7帖の広さを誇り、自由にレイアウトできる広がりを秘めています。あなたが選び取るインテリアによって、この空間は千変万化します。大切な友人たちとの会話を楽しんだり、心を静めるための読書の時間を満喫したり、ここはまさにあなたの生活の舞台なのです。
コムレジ赤羽 507には、ただの生活空間だけでなく、安心と快適を提供する設備も整っています。TVモニターホン越しに自分の大切な人とつながることで、心の距離が一層近く感じられることでしょう。エレベーターやオートロックは、あなたの生活をより便利にし、管理人の存在は、まるで専属のコンシェルジュのように、安心感をもたらしてくれます。宅配ボックスもあるため、忙しい日々の中でのプレゼントや取り寄せた本の受け取りもスムーズです。
そして、周辺の環境も格別です。赤羽エリアは歴史と文化が息づく場所で、古き良き日本の情緒と現代的な利便性が共存しています。地元の市場や食堂、カフェにふらりと立ち寄ることで、地域の人々との温かい交流が生まれるでしょう。また、散歩がてらに訪れることができる公園では、四季折々の自然の美しさを感じることができ、心が豊かになります。赤羽の街は、あなたの人生を彩るさまざまな経験を提供してくれるのです。
コムレジ赤羽 507に住むことで、あなたの日常は間違いなく特別なものとなるでしょう。この場所は、ただの居住空間ではなく、あなたの目の前に広がる生活の舞台であり、人生に対する新たな視点を与えてくれる存在です。ここでの毎日は、素晴らしい映画のワンシーンのように、情熱的で鮮やかに展開されることでしょう。そして、その舞台の主役は、まぎれもなくあなた自身なのです。この機会をお見逃しなく、コムレジ赤羽 507での新しいページを開く準備をしましょう。
バイブルスコア
バイブルスコア: 49.9
条件のいい物件です、引っ越しが2か月以内の場合は仮申し込みを検討すべき物件です。
※バイブルスコア詳細はこちら
バイブルスコアとは独自のAI機械学習技術を利用した物件評価システムで、物件のおすすめ度を示します。最高得点は100点で、スコアが高いほど、よりおすすめの物件と評価されています。
写真
契約条件
| 賃料 | 予想金額:111,000〜131,000円程度 | 管理費 | 予想金額:22,000〜26,000円程度 |
| 礼金 | 非公開(アーカイブ) | 敷金 | 非公開(アーカイブ) |
| フリーレント | なし | 平米数 | 29.2㎡ |
| 間取り | 1K | 大型収納 | WIC+SIC |
| 契約期間 | 2年 | 方角 | 南東 |
| 更新料 | 1ヶ月 | 契約形態 | 普通賃貸借契約 |
| 取引態様 | 媒介 | 内見状況 | 入居中 |
| 入居時期 | 入居中 | SOHO・事務所 | 不可 |
| ペット | ペット可 | 間取り内訳 | 洋:7.7 |
| キャンペーン情報・備考 | 本情報は賃料改定交渉の資料作成、収益物件の利回り試算、周辺エリアや最寄り駅の坪単価分析、次回募集開始時期の予測などにご活用いただけます。 | ||
※「どの不動産に頼めばいいのか分からない」「信頼できる営業マンの話を聞きたい」「一番親切な会社と契約したい」とお悩みの方におすすめなのが「高級賃貸バイブル」です。
高級賃貸バイブルは業界10年以上の熟練スタッフ群がお客様ファーストで対応します。
下記ボタンから、まずは無料でご相談下さい。
※内覧をご希望の際には、どうぞ物件のエントランス前にてお待ち合わせくださいませ。ご内覧後は、同じ場所でお別れとさせていただきます。お客様のご都合に合わせたスムーズなご案内を心がけておりますので、ご質問等がございましたら何なりとお申し付けください。 物件概要
地図
物件までの道のりは、「拡大地図を表示」をクリックしてナビ機能をご利用ください。
部屋設備

















建物設備

TVモニターホン

エレベーター

オートロック

バイク置場

宅配ボックス

敷地内ゴミ置場

管理人

駐車場平置き

駐車場機械式

駐輪場
コムレジ赤羽の現在募集中のお部屋
- コムレジ赤羽 302 - 間取り: 1LDK+WIC+SIC - 賃料: 19.5万円























