
| 賃料 | 予想金額:80,000〜100,000円程度 | 管理費 | 予想金額:8,000〜12,000円程度 |
| 礼金/敷金 | 非公開(アーカイブ) | 平米数 | 22.32㎡ |
| 初期費用概算(参考) | 目安:206,700〜306,700 円 | みなし賃料(月額・参考) | 93,473〜113,473 円 |
| 備考 | 本ページは過去募集のアーカイブです。表示の金額は周辺相場・過去募集を踏まえた参考レンジであり、実際の契約金額・条件ではありません。 | ||
※上記みなし賃料(月額)は仲介手数料割引・無料&キャッシュバックを加味した高級賃貸バイブル限定の金額です。一般的なみなし賃料とは異なります。
【建物ページ】プラウドフラット戸越銀座の詳細・最新空室はこちら▶▶選ばれる理由
仲介手数料無料・キャンペーン情報(毎月15名様限定)
〇引っ越しお祝い金19800円プレゼント(キャッシュバック)
〇仲介手数料無料キャンペーン
プラウドフラット戸越銀座 408の口コミ・レビュー
プラウドフラット戸…プラウドフラット戸越銀座 408。ここは、心と体が調和する理想の隠れ家です。東京都品川区平塚2-11-1に位置するこの美しい物件は、まるで映画のワンシーンから抜け出したかのような、洗練された空間を提供します。想像してみてください。柔らかな朝陽が、北と東に広がる窓から心地よく差し込み、部屋全体をやさしく包み込む。22.32㎡という専有面積の中に、あなたの新しい物語が始まります。
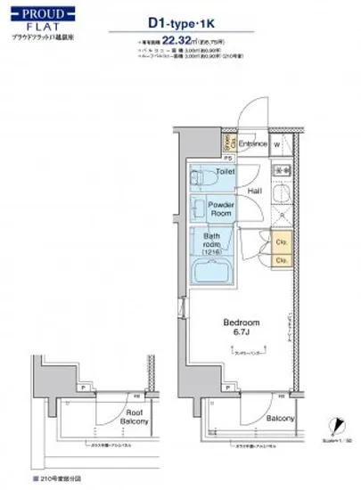
プラウドフラット戸越銀座 408は、まるで数々の名作映画の主人公が住む家のような、温かくも美しい佇まいを醸し出しています。エレベーターで上がる度に、心が高揚し、ドアが開く瞬間に、日常を忘れる特別な空間があなたを迎え入れます。洋室は6.7帖の広々とした空間で、心地よい風が流れ込み、リラックスしたひとときを演出します。
あなたがこの部屋に足を踏み入れたとき、テレビモニターホンがあなたの安全を見守り、オートロックがプライバシーをしっかりと守ります。そこに居るだけで、まるで自分自身が特別な存在になったかのような気持ちに包まれることでしょう。豊かな感性を持った方々が集うこのエリアは、周囲に芸術や文化が色濃く残る場所でもあるため、生活の中で刺激を受けながら、自分を磨くことができるのです。
プラウドフラット戸越銀座 408の近くには、歴史と共に生まれた駒沢公園や、文化豊かな地域が広がっています。街の音が微かに聞こえ、香ばしいコーヒーの香りが漂うカフェに立ち寄る。ふと立ち止まった瞬間、季節の花が咲き誇る公園や、アートの香りが漂うギャラリーが眼前に広がります。それはまるで絵画の中に自分がいるかのような、心が満たされる体験です。
また、宅配ボックスや駐輪場、バイク置場などの便利な設備が揃っているため、都会の快適な生活をサポートします。忙しい日常でも、ここに帰れば心が解きほぐされ、まるで大切な友人に再会したかのような安心感に包まれることでしょう。
夜空に星が浮かぶ頃、プラウドフラット戸越銀座 408のバルコニーから見る景色は、まるで秘密の宝物を見つけたかのような幸福感をもたらしてくれます。そんな日常は、映画のクライマックスのように、心に深く刻まれる特別な瞬間になるでしょう。この場所での生活が、あなたにとっての新たな物語の始まりとなりますように。
バイブルスコア
バイブルスコア: 52.5
条件のいい物件です、引っ越しが2か月以内の場合は仮申し込みを検討すべき物件です。
このお部屋は、現在ご入居中のため空室情報はございません。ただし、将来的に募集が開始される際、バイブルスコアにおいて非常に高い評価が期待されます。特にご興味をお持ちの方は、今のうちにブックマークやお気に入りに登録していただくと、募集開始のお知らせをすぐに受け取ることができます。是非ともご検討くださいませ。
※バイブルスコア詳細はこちら
バイブルスコアとは独自のAI機械学習技術を利用した物件評価システムで、物件のおすすめ度を示します。最高得点は100点で、スコアが高いほど、よりおすすめの物件と評価されています。
写真
契約条件
| 賃料 | 予想金額:80,000〜100,000円程度 | 管理費 | 予想金額:8,000〜12,000円程度 |
| 礼金 | 非公開(アーカイブ) | 敷金 | 非公開(アーカイブ) |
| フリーレント | なし | 平米数 | 22.32㎡ |
| 間取り | 1K | 大型収納 | |
| 契約期間 |
| 方角 | 北 / 東 |
| 更新料 | 契約形態 | 普通賃貸借契約 | |
| 取引態様 | 媒介 | 内見状況 | 入居中 |
| 入居時期 | 入居中 | SOHO・事務所 | 事務所(SOHO)可 |
| ペット | ペット可 | 間取り内訳 | 洋:6.7 |
| キャンペーン情報・備考 | 本情報は賃料改定交渉の資料作成、収益物件の利回り試算、周辺エリアや最寄り駅の坪単価分析、次回募集開始時期の予測などにご活用いただけます。 | ||
※「どの不動産に頼めばいいのか分からない」「信頼できる営業マンの話を聞きたい」「一番親切な会社と契約したい」とお悩みの方におすすめなのが「高級賃貸バイブル」です。
高級賃貸バイブルは業界10年以上の熟練スタッフ群がお客様ファーストで対応します。
下記ボタンから、まずは無料でご相談下さい。
※内覧をご希望の際には、どうぞ物件のエントランス前にてお待ち合わせくださいませ。ご内覧後は、同じ場所でお別れとさせていただきます。お客様のご都合に合わせたスムーズなご案内を心がけておりますので、ご質問等がございましたら何なりとお申し付けください。 物件概要
| 物件名 |
| 築年月 |
|
|---|---|---|---|
| 所在地 | |||
| 交通 | |||
| 総戸数 |
| 総階数 |
|
| 構造 |
| ||
地図
物件までの道のりは、「拡大地図を表示」をクリックしてナビ機能をご利用ください。
部屋設備















建物設備

TVモニターホン

エレベーター

オートロック

バイク置場

宅配ボックス

敷地内ゴミ置場

管理人

駐車場平置き

駐車場機械式

駐輪場
プラウドフラット戸越銀座の現在募集中のお部屋
- プラウドフラット戸越銀座 1102 - 間取り: 1K - 賃料: 12.8万円
- プラウドフラット戸越銀座 906 - 間取り: 1K - 賃料: 12.6万円















