
| 賃料 | 予想金額:86,000〜106,000円程度 | 管理費 | 予想金額:6,000〜10,000円程度 |
| 礼金/敷金 | 非公開(アーカイブ) | 平米数 | 22.16㎡ |
| 初期費用概算(参考) | 目安:293,500〜393,500 円 | みなし賃料(月額・参考) | 99,156〜119,156 円 |
| 備考 | 本ページは過去募集のアーカイブです。表示の金額は周辺相場・過去募集を踏まえた参考レンジであり、実際の契約金額・条件ではありません。 | ||
※上記みなし賃料(月額)は仲介手数料割引・無料&キャッシュバックを加味した高級賃貸バイブル限定の金額です。一般的なみなし賃料とは異なります。
【建物ページ】プライムアーバン初台の詳細・最新空室はこちら▶▶選ばれる理由
仲介手数料無料・キャンペーン情報(毎月15名様限定)
〇仲介手数料割引キャンペーン
プライムアーバン初台 610の口コミ・レビュー
「プライムアーバン初台 610」とは、まるで都会の宝石のように、渋谷区初台という文化の息吹が感じられるエリアに佇む洗練された空間です。この物件の扉を開けると、どこか異次元に迷い込んだかのような感覚に包まれます。まるで新たな生活が始まる期待に満ちているかのようです。
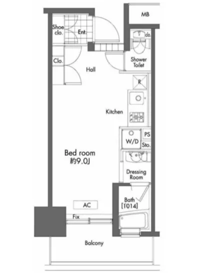
この「プライムアーバン初台 610」は、63階建ての北向きの魅力を持ち、22.16㎡の贅沢なスペースが広がります。お部屋には、9帖の…「プライムアーバン初台 610」とは、まるで都会の宝石のように、渋谷区初台という文化の息吹が感じられるエリアに佇む洗練された空間です。この物件の扉を開けると、どこか異次元に迷い込んだかのような感覚に包まれます。まるで新たな生活が始まる期待に満ちているかのようです。
この「プライムアーバン初台 610」は、63階建ての北向きの魅力を持ち、22.16㎡の贅沢なスペースが広がります。お部屋には、9帖の洋室があなたを待ち受けており、自然光がやさしく差し込み、日の出とともにゆっくりと目覚める楽しみを与えてくれます。壁にかかったアートが、あなたのセンスを引き立て、毎日の生活に彩りを添えることでしょう。まるで自分だけのギャラリーの中にいるかのような特別な感覚を堪能してください。
当物件は、デザイナーズの名に恥じぬ洗練されたデザインが施され、まるでアート作品の一部として存在しています。お洒落なTVモニターホンや、スムーズに生活をサポートするエレベーターは、利便性と安全性を兼ね備えています。オートロックや宅配ボックスがあることで、忙しい日常の中でも安心して暮らすことができるでしょう。
「プライムアーバン初台 610」の周辺には、歴史的な文化が息づいています。小田急電鉄小田原線の参宮橋駅から徒歩11分という立地は、交通の便が良く、渋谷や新宿へのアクセスも非常にスムーズです。周囲には静謐な公園や洗練されたカフェが点在し、日々の生活にスパイスを与えてくれます。新しいブレンドのコーヒーの香りや、緑あふれる公園の風に吹かれると、まるで絵本の中の一ページのような心地よさを感じることでしょう。
この部屋に住むことで、あたなの生活はまるで映画のワンシーンのように展開します。朝の目覚め、コーヒーの香りとともに過ごす至福のひととき、友人を招いての優雅なランチパーティ、夜になると星空を眺めながらのディナー… それらの瞬間が、この「プライムアーバン初台 610」では可能なのです。
さらに、駐車場も完備されており、機械式と平置きの駐車スペースがあるため、車をお持ちの方には便利です。駐輪場もあり、自転車ライフを満喫することができます。敷地内のゴミ置場や管理人の存在も、快適な生活をサポートしてくれるでしょう。
新しい生活の舞台は「プライムアーバン初台 610」です。この場所で、心地よさや美しさに包まれた毎日を手に入れ、新たな物語を紡いでいくことができます。あなたの生活が、一瞬一瞬が、素晴らしい体験に変わることを、心から願っております。
この「プライムアーバン初台 610」は、63階建ての北向きの魅力を持ち、22.16㎡の贅沢なスペースが広がります。お部屋には、9帖の…「プライムアーバン初台 610」とは、まるで都会の宝石のように、渋谷区初台という文化の息吹が感じられるエリアに佇む洗練された空間です。この物件の扉を開けると、どこか異次元に迷い込んだかのような感覚に包まれます。まるで新たな生活が始まる期待に満ちているかのようです。
この「プライムアーバン初台 610」は、63階建ての北向きの魅力を持ち、22.16㎡の贅沢なスペースが広がります。お部屋には、9帖の洋室があなたを待ち受けており、自然光がやさしく差し込み、日の出とともにゆっくりと目覚める楽しみを与えてくれます。壁にかかったアートが、あなたのセンスを引き立て、毎日の生活に彩りを添えることでしょう。まるで自分だけのギャラリーの中にいるかのような特別な感覚を堪能してください。
当物件は、デザイナーズの名に恥じぬ洗練されたデザインが施され、まるでアート作品の一部として存在しています。お洒落なTVモニターホンや、スムーズに生活をサポートするエレベーターは、利便性と安全性を兼ね備えています。オートロックや宅配ボックスがあることで、忙しい日常の中でも安心して暮らすことができるでしょう。
「プライムアーバン初台 610」の周辺には、歴史的な文化が息づいています。小田急電鉄小田原線の参宮橋駅から徒歩11分という立地は、交通の便が良く、渋谷や新宿へのアクセスも非常にスムーズです。周囲には静謐な公園や洗練されたカフェが点在し、日々の生活にスパイスを与えてくれます。新しいブレンドのコーヒーの香りや、緑あふれる公園の風に吹かれると、まるで絵本の中の一ページのような心地よさを感じることでしょう。
この部屋に住むことで、あたなの生活はまるで映画のワンシーンのように展開します。朝の目覚め、コーヒーの香りとともに過ごす至福のひととき、友人を招いての優雅なランチパーティ、夜になると星空を眺めながらのディナー… それらの瞬間が、この「プライムアーバン初台 610」では可能なのです。
さらに、駐車場も完備されており、機械式と平置きの駐車スペースがあるため、車をお持ちの方には便利です。駐輪場もあり、自転車ライフを満喫することができます。敷地内のゴミ置場や管理人の存在も、快適な生活をサポートしてくれるでしょう。
新しい生活の舞台は「プライムアーバン初台 610」です。この場所で、心地よさや美しさに包まれた毎日を手に入れ、新たな物語を紡いでいくことができます。あなたの生活が、一瞬一瞬が、素晴らしい体験に変わることを、心から願っております。
バイブルスコア
バイブルスコア: 24.2
平均的なスコアです。
※バイブルスコア詳細はこちら
バイブルスコアとは独自のAI機械学習技術を利用した物件評価システムで、物件のおすすめ度を示します。最高得点は100点で、スコアが高いほど、よりおすすめの物件と評価されています。
写真
契約条件
| 賃料 | 予想金額:86,000〜106,000円程度 | 管理費 | 予想金額:6,000〜10,000円程度 |
| 礼金 | 非公開(アーカイブ) | 敷金 | 非公開(アーカイブ) |
| フリーレント | なし | 平米数 | 22.16㎡ |
| 間取り | 1R | 大型収納 | |
| 契約期間 |
| 方角 | 北 |
| 更新料 | 契約形態 | 普通賃貸借契約 | |
| 取引態様 | 媒介 | 内見状況 | 入居中 |
| 入居時期 | 入居中 | SOHO・事務所 | |
| ペット | 間取り内訳 | 洋:9 | |
| キャンペーン情報・備考 | 本情報は賃料改定交渉の資料作成、収益物件の利回り試算、周辺エリアや最寄り駅の坪単価分析、次回募集開始時期の予測などにご活用いただけます。 | ||
※「どの不動産に頼めばいいのか分からない」「信頼できる営業マンの話を聞きたい」「一番親切な会社と契約したい」とお悩みの方におすすめなのが「高級賃貸バイブル」です。
高級賃貸バイブルは業界10年以上の熟練スタッフ群がお客様ファーストで対応します。
下記ボタンから、まずは無料でご相談下さい。
※内覧をご希望の際には、どうぞ物件のエントランス前にてお待ち合わせくださいませ。ご内覧後は、同じ場所でお別れとさせていただきます。お客様のご都合に合わせたスムーズなご案内を心がけておりますので、ご質問等がございましたら何なりとお申し付けください。 物件概要
地図
物件までの道のりは、「拡大地図を表示」をクリックしてナビ機能をご利用ください。
部屋設備












建物設備

TVモニターホン

エレベーター

オートロック

宅配ボックス

敷地内ゴミ置場

管理人

駐車場平置き

駐車場機械式

駐輪場
プライムアーバン初台の現在募集中のお部屋
- No rooms found for this property.






















