
| 賃料 | 予想金額:115,000〜135,000円程度 | 管理費 | 予想金額:8,000〜12,000円程度 |
| 礼金/敷金 | 非公開(アーカイブ) | 平米数 | 25.2㎡ |
| 初期費用概算(参考) | 目安:414,000〜514,000 円 | みなし賃料(月額・参考) | 132,063〜152,063 円 |
| 備考 | 本ページは過去募集のアーカイブです。表示の金額は周辺相場・過去募集を踏まえた参考レンジであり、実際の契約金額・条件ではありません。 | ||
※上記みなし賃料(月額)は仲介手数料割引・無料&キャッシュバックを加味した高級賃貸バイブル限定の金額です。一般的なみなし賃料とは異なります。
【建物ページ】コンフォリア・リヴ碑文谷二丁目の詳細・最新空室はこちら▶▶選ばれる理由
仲介手数料無料・キャンペーン情報(毎月15名様限定)
〇引っ越しお祝い金25000円プレゼント(キャッシュバック)
〇仲介手数料無料キャンペーン
コンフォリア・リヴ碑文谷二丁目 401の口コミ・レビュー
レジディア碑文谷 401は、まるで心の奥深くで静かに語りかけるような存在感を持った、魅惑的な住まいです。東京都目黒区碑文谷2-10-16に位置し、北西の風が心地よいこの場所では、毎日が特別な映画のワンシーンとなるでしょう。401という数字は、地上の喧騒を離れ、あなたを天空の静寂へと誘います。
専有面積25.2㎡のこの空間は、まさに宝石のように美しく、あなたの vida(生き方)に深みを与えること…レジディア碑文谷 401は、まるで心の奥深くで静かに語りかけるような存在感を持った、魅惑的な住まいです。東京都目黒区碑文谷2-10-16に位置し、北西の風が心地よいこの場所では、毎日が特別な映画のワンシーンとなるでしょう。401という数字は、地上の喧騒を離れ、あなたを天空の静寂へと誘います。
専有面積25.2㎡のこの空間は、まさに宝石のように美しく、あなたの vida(生き方)に深みを与えることでしょう。洋室7.8帖の広さは、あなたの日常にゆとりをもたらし、心を豊かにするための大切なスペースです。陽光がカーテン越しに差し込み、朝の静けさの中で、ゆったりとした時間が流れる様子は、まるで絵画のようです。
レジディア碑文谷 401は、ただの住まいではありません。まるで親友のようにあなたを迎え入れ、心地よい空間で温かく包み込んでくれるでしょう。TVモニターホンを通じて、あなたの意志を尊重しつつも、安全を見守る、その姿はまるで静かに住人を守る騎士のようです。
心地よいエレベーターの揺れの中、あなたは日に日に新しい自分へと生まれ変わる感覚を味わいます。オートロックの堅牢さは、まるで万全の防護策でありあなたを包む鎧のようで、安心して深呼吸をすることができるのです。
宅配ボックスが用意され、忙しい毎日でも大切な品々を受け取ることができるのは、まるで親しい友人があなたのために守ってくれているような心遣いです。敷地内のゴミ置場もまた、生活の豊かさをサポートする大切なパートナー。そして、管理人の存在は、あなたの生活を見守る愛情深い家族のような存在となるでしょう。
さあ、レジディア碑文谷 401のドアを開けて、新たな物語を紡ぎ始めましょう。静かな夜には、窓から見える星たちがあなたの夢を見守ります。やがて朝が訪れ、鳥のさえずりが新しい一日の始まりを告げると、そんな日々がどれほど魅力的であるかを実感させられます。
最寄りの学芸大学駅から徒歩8分という距離は、まるであなたと東京の文化、歴史そして芸術との距離を一瞬で縮める魔法のようです。哲学的な言葉や美しい絵画があふれる街並みの中で、あなたの生活は一層色彩豊かになるでしょう。
レジディア碑文谷 401での生活は、日常を非日常に変える扉です。美しき毎日を、心の豊かさとともに体験してみませんか。それは、あなた自身を再発見する旅であり、人生の新たな章の始まりです。この特別な物件は、ただの物でなく、あなたを待つ場であり、あなたが選ばれし者としての物語が始まる場所でもあります。さあ、扉を開けましょう。
専有面積25.2㎡のこの空間は、まさに宝石のように美しく、あなたの vida(生き方)に深みを与えること…レジディア碑文谷 401は、まるで心の奥深くで静かに語りかけるような存在感を持った、魅惑的な住まいです。東京都目黒区碑文谷2-10-16に位置し、北西の風が心地よいこの場所では、毎日が特別な映画のワンシーンとなるでしょう。401という数字は、地上の喧騒を離れ、あなたを天空の静寂へと誘います。
専有面積25.2㎡のこの空間は、まさに宝石のように美しく、あなたの vida(生き方)に深みを与えることでしょう。洋室7.8帖の広さは、あなたの日常にゆとりをもたらし、心を豊かにするための大切なスペースです。陽光がカーテン越しに差し込み、朝の静けさの中で、ゆったりとした時間が流れる様子は、まるで絵画のようです。
レジディア碑文谷 401は、ただの住まいではありません。まるで親友のようにあなたを迎え入れ、心地よい空間で温かく包み込んでくれるでしょう。TVモニターホンを通じて、あなたの意志を尊重しつつも、安全を見守る、その姿はまるで静かに住人を守る騎士のようです。
心地よいエレベーターの揺れの中、あなたは日に日に新しい自分へと生まれ変わる感覚を味わいます。オートロックの堅牢さは、まるで万全の防護策でありあなたを包む鎧のようで、安心して深呼吸をすることができるのです。
宅配ボックスが用意され、忙しい毎日でも大切な品々を受け取ることができるのは、まるで親しい友人があなたのために守ってくれているような心遣いです。敷地内のゴミ置場もまた、生活の豊かさをサポートする大切なパートナー。そして、管理人の存在は、あなたの生活を見守る愛情深い家族のような存在となるでしょう。
さあ、レジディア碑文谷 401のドアを開けて、新たな物語を紡ぎ始めましょう。静かな夜には、窓から見える星たちがあなたの夢を見守ります。やがて朝が訪れ、鳥のさえずりが新しい一日の始まりを告げると、そんな日々がどれほど魅力的であるかを実感させられます。
最寄りの学芸大学駅から徒歩8分という距離は、まるであなたと東京の文化、歴史そして芸術との距離を一瞬で縮める魔法のようです。哲学的な言葉や美しい絵画があふれる街並みの中で、あなたの生活は一層色彩豊かになるでしょう。
レジディア碑文谷 401での生活は、日常を非日常に変える扉です。美しき毎日を、心の豊かさとともに体験してみませんか。それは、あなた自身を再発見する旅であり、人生の新たな章の始まりです。この特別な物件は、ただの物でなく、あなたを待つ場であり、あなたが選ばれし者としての物語が始まる場所でもあります。さあ、扉を開けましょう。
バイブルスコア
バイブルスコア: 65.4
かなり条件の良い物件です、即仮押さえをおすすめする物件です!
このお部屋は、現在ご入居中のため空室情報はございません。ただし、将来的に募集が開始される際、バイブルスコアにおいて非常に高い評価が期待されます。特にご興味をお持ちの方は、今のうちにブックマークやお気に入りに登録していただくと、募集開始のお知らせをすぐに受け取ることができます。是非ともご検討くださいませ。
※バイブルスコア詳細はこちら
バイブルスコアとは独自のAI機械学習技術を利用した物件評価システムで、物件のおすすめ度を示します。最高得点は100点で、スコアが高いほど、よりおすすめの物件と評価されています。
写真
現在写真が登録されていません契約条件
| 賃料 | 予想金額:115,000〜135,000円程度 | 管理費 | 予想金額:8,000〜12,000円程度 |
| 礼金 | 非公開(アーカイブ) | 敷金 | 非公開(アーカイブ) |
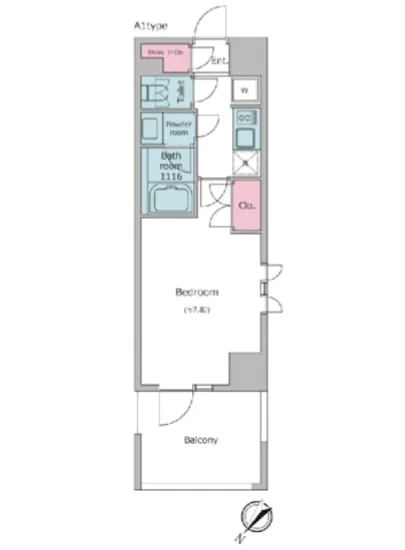
| フリーレント | なし | 平米数 | 25.2㎡ |
| 間取り | 1K+SIC | 大型収納 | SIC |
| 契約期間 | 2年 | 方角 | 北西 |
| 更新料 | 1ヶ月 | 契約形態 | 普通賃貸借契約 |
| 取引態様 | 媒介 | 内見状況 | 入居中 |
| 入居時期 | 入居中 | SOHO・事務所 | 不可 |
| ペット | 不可 | 間取り内訳 | 洋室7.8帖 |
| キャンペーン情報・備考 | 本情報は賃料改定交渉の資料作成、収益物件の利回り試算、周辺エリアや最寄り駅の坪単価分析、次回募集開始時期の予測などにご活用いただけます。 | ||
※「どの不動産に頼めばいいのか分からない」「信頼できる営業マンの話を聞きたい」「一番親切な会社と契約したい」とお悩みの方におすすめなのが「高級賃貸バイブル」です。
高級賃貸バイブルは業界10年以上の熟練スタッフ群がお客様ファーストで対応します。
下記ボタンから、まずは無料でご相談下さい。
※内覧をご希望の際には、どうぞ物件のエントランス前にてお待ち合わせくださいませ。ご内覧後は、同じ場所でお別れとさせていただきます。お客様のご都合に合わせたスムーズなご案内を心がけておりますので、ご質問等がございましたら何なりとお申し付けください。 物件概要
| 物件名 |
| 築年月 |
|
|---|---|---|---|
| 所在地 | |||
| 交通 |
| ||
| 総戸数 |
| 総階数 |
|
| 構造 |
| ||
地図
物件までの道のりは、「拡大地図を表示」をクリックしてナビ機能をご利用ください。
部屋設備









建物設備

TVモニターホン

エレベーター

オートロック

宅配ボックス

敷地内ゴミ置場

管理人

駐輪場
コンフォリア・リヴ碑文谷二丁目の現在募集中のお部屋
- No rooms found for this property.
