
| 賃料 | 予想金額:85,000〜105,000円程度 | 管理費 | 予想金額:8,000〜12,000円程度 |
| 礼金/敷金 | 非公開(アーカイブ) | 平米数 | 23.94㎡ |
| 初期費用概算(参考) | 目安:324,000〜424,000 円 | みなし賃料(月額・参考) | 100,813〜120,813 円 |
| 備考 | 本ページは過去募集のアーカイブです。表示の金額は周辺相場・過去募集を踏まえた参考レンジであり、実際の契約金額・条件ではありません。 | ||
※上記みなし賃料(月額)は仲介手数料割引・無料&キャッシュバックを加味した高級賃貸バイブル限定の金額です。一般的なみなし賃料とは異なります。
【建物ページ】レジディア目白2の詳細・最新空室はこちら▶▶選ばれる理由
仲介手数料無料・キャンペーン情報(毎月15名様限定)
〇引っ越しお祝い金10000円プレゼント(キャッシュバック)
〇仲介手数料無料キャンペーン
レジディア目白2 302の口コミ・レビュー
レジディア目白2 302。この美しい名前が響く瞬間から、あなたの新しい生活が始まります。東京都豊島区高田、静寂と活気が交差するこの場所に、あなたをお迎えするのは、洗練されたデザインと機能性を兼ね備えた、まるで一つの芸術品のような空間。専有面積23.94㎡の中に、あなたの日常を彩る夢のような瞬間が凝縮されています。
想像してみてください。朝の光が優しく差し込む東向きの窓からは、柔らかな日の光がかす…レジディア目白2 302。この美しい名前が響く瞬間から、あなたの新しい生活が始まります。東京都豊島区高田、静寂と活気が交差するこの場所に、あなたをお迎えするのは、洗練されたデザインと機能性を兼ね備えた、まるで一つの芸術品のような空間。専有面積23.94㎡の中に、あなたの日常を彩る夢のような瞬間が凝縮されています。
想像してみてください。朝の光が優しく差し込む東向きの窓からは、柔らかな日の光がかすかに揺れ動くカーテンを通り抜け、心地よい香りを運んできます。コーヒーの香りとともに、あなたの一日が始まるのです。キッチンから待ち遠しい朝食の準備をしながら、心の中には素敵な映画のシーンが映し出され、まるで主役になったかのような気分に浸ることができます。
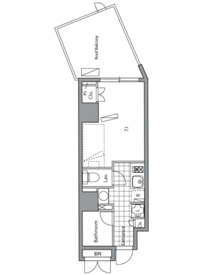
レジディア目白2 302は、ただの住まいではありません。まるで親友のように、あなたの生活を見守り、共に過ごす空間なのです。デザイナーズマンションならではの独特の美意識が息づく室内は、心を和ませる色彩と、洗練されたラインによって満たされています。7帖の洋室は、どこか懐かしさを感じる温もりがあり、あなたの想いを育む大切な場所となることでしょう。
あなたがこの空間に身を置くと、まるで芸術作品の一部になったかのような感覚が広がります。TVモニターホンを通じて、訪れる人々との交流がいつも新鮮で、暖かい笑顔のご挨拶があなたの心を豊かにしてくれることでしょう。エレベーターでの上昇は、まるで日々の喧騒からの解放をもたらし、オートロックの安心感は、あなたのプライベートな空間を守る盾のような役割を果たしてくれます。
また、宅配ボックスや駐輪場、さらには平置きの駐車場まで完備されているため、都市生活の忙しさを華麗に軽やかに楽しむことができるのです。周辺には歴史ある街並みが広がり、文化と芸術が共存するこの地域は、あなたの感性を磨く刺激に満ちています。高田馬場駅からわずか徒歩6分の距離にあることは、日常の足取りを軽やかにし、繁華街へのアクセスをスムーズにします。
レジディア目白2 302。ここでの生活は、心を豊かにし、五感を刺激する毎日へとあなたを誘います。美しいデザインと機能的な設備が融合し、何気ない日常を特別なものに変えてくれるでしょう。新たな生活の幕開けを、この場所で迎えてみませんか?あなたの人生の新しいワンシーンが、ここから始まるのです。
想像してみてください。朝の光が優しく差し込む東向きの窓からは、柔らかな日の光がかす…レジディア目白2 302。この美しい名前が響く瞬間から、あなたの新しい生活が始まります。東京都豊島区高田、静寂と活気が交差するこの場所に、あなたをお迎えするのは、洗練されたデザインと機能性を兼ね備えた、まるで一つの芸術品のような空間。専有面積23.94㎡の中に、あなたの日常を彩る夢のような瞬間が凝縮されています。
想像してみてください。朝の光が優しく差し込む東向きの窓からは、柔らかな日の光がかすかに揺れ動くカーテンを通り抜け、心地よい香りを運んできます。コーヒーの香りとともに、あなたの一日が始まるのです。キッチンから待ち遠しい朝食の準備をしながら、心の中には素敵な映画のシーンが映し出され、まるで主役になったかのような気分に浸ることができます。
レジディア目白2 302は、ただの住まいではありません。まるで親友のように、あなたの生活を見守り、共に過ごす空間なのです。デザイナーズマンションならではの独特の美意識が息づく室内は、心を和ませる色彩と、洗練されたラインによって満たされています。7帖の洋室は、どこか懐かしさを感じる温もりがあり、あなたの想いを育む大切な場所となることでしょう。
あなたがこの空間に身を置くと、まるで芸術作品の一部になったかのような感覚が広がります。TVモニターホンを通じて、訪れる人々との交流がいつも新鮮で、暖かい笑顔のご挨拶があなたの心を豊かにしてくれることでしょう。エレベーターでの上昇は、まるで日々の喧騒からの解放をもたらし、オートロックの安心感は、あなたのプライベートな空間を守る盾のような役割を果たしてくれます。
また、宅配ボックスや駐輪場、さらには平置きの駐車場まで完備されているため、都市生活の忙しさを華麗に軽やかに楽しむことができるのです。周辺には歴史ある街並みが広がり、文化と芸術が共存するこの地域は、あなたの感性を磨く刺激に満ちています。高田馬場駅からわずか徒歩6分の距離にあることは、日常の足取りを軽やかにし、繁華街へのアクセスをスムーズにします。
レジディア目白2 302。ここでの生活は、心を豊かにし、五感を刺激する毎日へとあなたを誘います。美しいデザインと機能的な設備が融合し、何気ない日常を特別なものに変えてくれるでしょう。新たな生活の幕開けを、この場所で迎えてみませんか?あなたの人生の新しいワンシーンが、ここから始まるのです。
バイブルスコア
バイブルスコア: 42.6
条件のいい物件です、引っ越しが2か月以内の場合は仮申し込みを検討すべき物件です。
※バイブルスコア詳細はこちら
バイブルスコアとは独自のAI機械学習技術を利用した物件評価システムで、物件のおすすめ度を示します。最高得点は100点で、スコアが高いほど、よりおすすめの物件と評価されています。
写真
契約条件
| 賃料 | 予想金額:85,000〜105,000円程度 | 管理費 | 予想金額:8,000〜12,000円程度 |
| 礼金 | 非公開(アーカイブ) | 敷金 | 非公開(アーカイブ) |
| フリーレント | なし | 平米数 | 23.94㎡ |
| 間取り | 1K | 大型収納 | |
| 契約期間 |
| 方角 | 東 |
| 更新料 | 契約形態 | 普通賃貸借契約 | |
| 取引態様 | 媒介 | 内見状況 | 入居中 |
| 入居時期 | 入居中 | SOHO・事務所 | |
| ペット | 間取り内訳 | 洋:7 | |
| キャンペーン情報・備考 | 本情報は賃料改定交渉の資料作成、収益物件の利回り試算、周辺エリアや最寄り駅の坪単価分析、次回募集開始時期の予測などにご活用いただけます。 | ||
※「どの不動産に頼めばいいのか分からない」「信頼できる営業マンの話を聞きたい」「一番親切な会社と契約したい」とお悩みの方におすすめなのが「高級賃貸バイブル」です。
高級賃貸バイブルは業界10年以上の熟練スタッフ群がお客様ファーストで対応します。
下記ボタンから、まずは無料でご相談下さい。
※内覧をご希望の際には、どうぞ物件のエントランス前にてお待ち合わせくださいませ。ご内覧後は、同じ場所でお別れとさせていただきます。お客様のご都合に合わせたスムーズなご案内を心がけておりますので、ご質問等がございましたら何なりとお申し付けください。 物件概要
| 物件名 |
| 築年月 |
|
|---|---|---|---|
| 所在地 | |||
| 交通 | |||
| 総戸数 |
| 総階数 |
|
| 構造 |
| ||
地図
物件までの道のりは、「拡大地図を表示」をクリックしてナビ機能をご利用ください。
部屋設備













建物設備

TVモニターホン

エレベーター

オートロック

宅配ボックス

敷地内ゴミ置場

管理人

駐車場平置き

駐車場機械式

駐輪場
レジディア目白2の現在募集中のお部屋
- No rooms found for this property.


























