
| 賃料 | 予想金額:121,000〜141,000円程度 | 管理費 | 予想金額:8,000〜12,000円程度 |
| 礼金/敷金 | 非公開(アーカイブ) | 平米数 | 30.89㎡ |
| 初期費用概算(参考) | 目安:431,180〜531,180 円 | みなし賃料(月額・参考) | 138,295〜158,295 円 |
| 備考 | 本ページは過去募集のアーカイブです。表示の金額は周辺相場・過去募集を踏まえた参考レンジであり、実際の契約金額・条件ではありません。 | ||
※上記みなし賃料(月額)は仲介手数料割引・無料&キャッシュバックを加味した高級賃貸バイブル限定の金額です。一般的なみなし賃料とは異なります。
【建物ページ】ピアネッタ汐留の詳細・最新空室はこちら▶▶選ばれる理由
仲介手数料無料・キャンペーン情報(毎月15名様限定)
〇引っ越しお祝い金28820円プレゼント(キャッシュバック)
〇仲介手数料無料キャンペーン
ピアネッタ汐留 906の口コミ・レビュー
ピアネッタ汐留 906は、まるで夢の世界への扉を開くかのような特別な空間です。東京都港区東新橋2-4-8という、都市の喧騒の中で静けさを保つこの場所に身を構えたあなたの新たな生活は、まるで映画の主人公になったかのような瞬間をもたらします。この906号室の窓からは、南西の光が柔らかなカーテンのように差し込み、日々の疲れを溶かすひとときを演出してくれることでしょう。
専有面積30.89㎡のこの空間は…ピアネッタ汐留 906は、まるで夢の世界への扉を開くかのような特別な空間です。東京都港区東新橋2-4-8という、都市の喧騒の中で静けさを保つこの場所に身を構えたあなたの新たな生活は、まるで映画の主人公になったかのような瞬間をもたらします。この906号室の窓からは、南西の光が柔らかなカーテンのように差し込み、日々の疲れを溶かすひとときを演出してくれることでしょう。
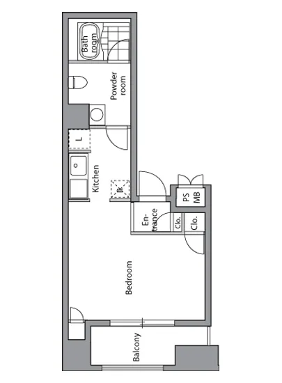
専有面積30.89㎡のこの空間は、洗練されたデザイナーズの手によって、心地よい風が流れるような設計でまとまっています。洋室約9.5帖の広々とした空間では、あなただけの個性的なインテリアやお気に入りのアートを飾り、日常生活をより豊かに彩ることができます。朝の光が降り注ぐ中、あなたは新たな一日を迎え、コーヒーの香りに包まれながら静かに目覚めることでしょう。そして、夕方には窓からの眺めが美しい夕焼けを映し出し、心を奪われる瞬間をもたらします。
ピアネッタ汐留 906は、ただの居住空間ではなく、あなたの物語の舞台です。エレベーターでの移動もスムーズで、24時間管理の安心感に包まれながら、都会の喧騒から逃れられます。オートロックシステムがあなたを守り、家に帰ることの喜びを増幅させます。バイク置き場や駐輪場、宅配ボックスなど、生活の便利さを追求した設備も魅力的です。
新橋駅から徒歩7分の立地は、文化や歴史が息づくエリアへのアクセスも抜群。周囲には魅力的なカフェやショップが点在し、あなたの日常をより豊かに彩ります。また、近くのアートギャラリーや劇場で、心揺さぶる芸術に触れれば、日々のインスピレーションを与えてくれるでしょう。歴史的な建物が立ち並ぶ中で、あなたは自身のスタイルを築き上げ、生活の一部として地域の雰囲気に溶け込むことができるのです。
ピアネッタ汐留 906での生活は、五感を刺激する特別な体験へとあなたを導いてくれます。心地よい風が窓から吹き込み、静かな夜には街の音が遠くに聞こえる中、あなた自身の時間を楽しむことができます。自宅でのひとときに、特別な食事の香りを漂わせるも良し、部屋でリラックスしながら読書に没頭するも良し。あなたが築いたこの空間は、まさにあなた自身を表現するキャンバスとなるのです。
この特別な場所、ピアネッタ汐留 906での日々は、あなたの人生をより豊かにし、かけがえのない思い出を作り上げることでしょう。ここに住むことで、あなたの物語は新たな章を迎え、特別な瞬間が紡がれていくのです。今、この場所で、自身らしい生活を始めてみませんか。あなたを待っているのは、すべての可能性が詰まった世界なのです。
専有面積30.89㎡のこの空間は…ピアネッタ汐留 906は、まるで夢の世界への扉を開くかのような特別な空間です。東京都港区東新橋2-4-8という、都市の喧騒の中で静けさを保つこの場所に身を構えたあなたの新たな生活は、まるで映画の主人公になったかのような瞬間をもたらします。この906号室の窓からは、南西の光が柔らかなカーテンのように差し込み、日々の疲れを溶かすひとときを演出してくれることでしょう。
専有面積30.89㎡のこの空間は、洗練されたデザイナーズの手によって、心地よい風が流れるような設計でまとまっています。洋室約9.5帖の広々とした空間では、あなただけの個性的なインテリアやお気に入りのアートを飾り、日常生活をより豊かに彩ることができます。朝の光が降り注ぐ中、あなたは新たな一日を迎え、コーヒーの香りに包まれながら静かに目覚めることでしょう。そして、夕方には窓からの眺めが美しい夕焼けを映し出し、心を奪われる瞬間をもたらします。
ピアネッタ汐留 906は、ただの居住空間ではなく、あなたの物語の舞台です。エレベーターでの移動もスムーズで、24時間管理の安心感に包まれながら、都会の喧騒から逃れられます。オートロックシステムがあなたを守り、家に帰ることの喜びを増幅させます。バイク置き場や駐輪場、宅配ボックスなど、生活の便利さを追求した設備も魅力的です。
新橋駅から徒歩7分の立地は、文化や歴史が息づくエリアへのアクセスも抜群。周囲には魅力的なカフェやショップが点在し、あなたの日常をより豊かに彩ります。また、近くのアートギャラリーや劇場で、心揺さぶる芸術に触れれば、日々のインスピレーションを与えてくれるでしょう。歴史的な建物が立ち並ぶ中で、あなたは自身のスタイルを築き上げ、生活の一部として地域の雰囲気に溶け込むことができるのです。
ピアネッタ汐留 906での生活は、五感を刺激する特別な体験へとあなたを導いてくれます。心地よい風が窓から吹き込み、静かな夜には街の音が遠くに聞こえる中、あなた自身の時間を楽しむことができます。自宅でのひとときに、特別な食事の香りを漂わせるも良し、部屋でリラックスしながら読書に没頭するも良し。あなたが築いたこの空間は、まさにあなた自身を表現するキャンバスとなるのです。
この特別な場所、ピアネッタ汐留 906での日々は、あなたの人生をより豊かにし、かけがえのない思い出を作り上げることでしょう。ここに住むことで、あなたの物語は新たな章を迎え、特別な瞬間が紡がれていくのです。今、この場所で、自身らしい生活を始めてみませんか。あなたを待っているのは、すべての可能性が詰まった世界なのです。
バイブルスコア
バイブルスコア: 33.2
平均的なスコアです。
※バイブルスコア詳細はこちら
バイブルスコアとは独自のAI機械学習技術を利用した物件評価システムで、物件のおすすめ度を示します。最高得点は100点で、スコアが高いほど、よりおすすめの物件と評価されています。
写真
契約条件
| 賃料 | 予想金額:121,000〜141,000円程度 | 管理費 | 予想金額:8,000〜12,000円程度 |
| 礼金 | 非公開(アーカイブ) | 敷金 | 非公開(アーカイブ) |
| フリーレント | なし | 平米数 | 30.89㎡ |
| 間取り | 1K | 大型収納 | |
| 契約期間 | 方角 | 南西 | |
| 更新料 | 契約形態 | 定期借家契約 | |
| 取引態様 | 媒介 | 内見状況 | 入居中 |
| 入居時期 | 入居中 | SOHO・事務所 | |
| ペット | 間取り内訳 | 洋室約9.5帖 | |
| キャンペーン情報・備考 | 本情報は賃料改定交渉の資料作成、収益物件の利回り試算、周辺エリアや最寄り駅の坪単価分析、次回募集開始時期の予測などにご活用いただけます。 | ||
※「どの不動産に頼めばいいのか分からない」「信頼できる営業マンの話を聞きたい」「一番親切な会社と契約したい」とお悩みの方におすすめなのが「高級賃貸バイブル」です。
高級賃貸バイブルは業界10年以上の熟練スタッフ群がお客様ファーストで対応します。
下記ボタンから、まずは無料でご相談下さい。
※内覧をご希望の際には、どうぞ物件のエントランス前にてお待ち合わせくださいませ。ご内覧後は、同じ場所でお別れとさせていただきます。お客様のご都合に合わせたスムーズなご案内を心がけておりますので、ご質問等がございましたら何なりとお申し付けください。 物件概要
| 物件名 |
| 築年月 |
|
|---|---|---|---|
| 所在地 | |||
| 交通 | |||
| 総戸数 |
| 総階数 |
|
| 構造 |
| ||
地図
物件までの道のりは、「拡大地図を表示」をクリックしてナビ機能をご利用ください。
部屋設備












建物設備

24時間管理

TVモニターホン

エレベーター

オートロック

バイク置場

宅配ボックス

敷地内ゴミ置場

駐車場機械式

駐輪場
ピアネッタ汐留の現在募集中のお部屋
- ピアネッタ汐留 1203 - 間取り: 1K - 賃料: 17万円
- ピアネッタ汐留 903 - 間取り: 1K - 賃料: 16.7万円
- ピアネッタ汐留 1004 - 間取り: 1R - 賃料: 16.9万円









