
| 賃料 | 予想金額:205,000〜225,000円程度 | 管理費 | 予想金額:13,000〜17,000円程度 |
| 礼金/敷金 | 非公開(アーカイブ) | 平米数 | 44.2㎡ |
| 初期費用概算(参考) | 目安:731,500〜831,500 円 | みなし賃料(月額・参考) | 231,802〜251,802 円 |
| 備考 | 本ページは過去募集のアーカイブです。表示の金額は周辺相場・過去募集を踏まえた参考レンジであり、実際の契約金額・条件ではありません。 | ||
※上記みなし賃料(月額)は仲介手数料割引・無料&キャッシュバックを加味した高級賃貸バイブル限定の金額です。一般的なみなし賃料とは異なります。
【建物ページ】麻布台レジデンスの詳細・最新空室はこちら▶▶選ばれる理由
仲介手数料無料・キャンペーン情報(毎月15名様限定)
〇引っ越しお祝い金30000円プレゼント(キャッシュバック)
〇仲介手数料無料キャンペーン
レジディア麻布台 304の口コミ・レビュー
レジディア麻布台 304。これがあなたの新しい生活の舞台です。この魅惑的な住まいは、東京都港区麻布台3-4-9に位置し、南に面した明るい窓から溢れんばかりの陽光が差し込みます。その光を浴びるたびに、まるで太陽があなたの一日の始まりを祝福しているかのように感じることでしょう。
エレベーターで304号室に上がる途中、温もりある木の質感に触れ、デザイナーズが創り出す洗練された空間を楽しむことができます…レジディア麻布台 304。これがあなたの新しい生活の舞台です。この魅惑的な住まいは、東京都港区麻布台3-4-9に位置し、南に面した明るい窓から溢れんばかりの陽光が差し込みます。その光を浴びるたびに、まるで太陽があなたの一日の始まりを祝福しているかのように感じることでしょう。
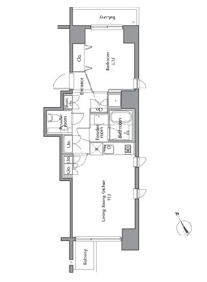
エレベーターで304号室に上がる途中、温もりある木の質感に触れ、デザイナーズが創り出す洗練された空間を楽しむことができます。扉を開けると、ゆったりとしたLDK11.0帖があなたを優しく迎え入れます。この空間は、友人と特別なディナーを楽しんだり、静かな午後を本を手に過ごしたりするのに最適です。ここには、思い出が生まれる暖かい時間が満ちています。
さらに足を踏み入れると、洋室5.7帖があなたのプライベートな空間となります。この部屋は、柔らかな絨毯の上に寝転び、静かに読書を楽しむための特別な隠れ家です。外の喧騒を忘れさせてくれる、贅沢なひとときをお約束します。風に揺れるカーテンが、涼やかな音を奏でることで、心が静まっていくのを感じることでしょう。
専有面積44.2㎡の空間には、日常のすべてが織り込まれています。TVモニターホンやオートロックなどの現代的な設備も揃い、安心感ながら贅沢さを感じることができる仕掛けが年齢を問わず、心の安らぎを与えてくれます。宅配ボックスも完備され、外出先での受け取りがスムーズ。また、駐車場や駐輪場もあり、日常の便利さが確保されています。
周辺は歴史ある文化と芸術が息づく麻布台、その魅力に浸ることができます。六本木一丁目駅から徒歩6分というロケーションでは、東京の華やかな街並みを存分に楽しむことが可能です。ギャラリーやカフェ、洗練されたショップが立ち並ぶ街中は、まるで映画のワンシーンを思わせる情景。モダンと伝統が交差し、刺激的かつ心温まる時間が流れています。
レジディア麻布台 304での新しい生活は、ただの住まいを越えた特別な空間です。貴方の人生の一部となり、心が豊かになる時間を提供してくれることでしょう。この場所で、あなた自身のストーリーを紡いでいくことを待ち焦がれています。ここでの生活は、まるで美しい映画の一コマのように、あなたにとって特別な思い出となることでしょう。どうぞ、この洗練された空間で、心ゆくまでご自身の生活を彩ってください。
エレベーターで304号室に上がる途中、温もりある木の質感に触れ、デザイナーズが創り出す洗練された空間を楽しむことができます…レジディア麻布台 304。これがあなたの新しい生活の舞台です。この魅惑的な住まいは、東京都港区麻布台3-4-9に位置し、南に面した明るい窓から溢れんばかりの陽光が差し込みます。その光を浴びるたびに、まるで太陽があなたの一日の始まりを祝福しているかのように感じることでしょう。
エレベーターで304号室に上がる途中、温もりある木の質感に触れ、デザイナーズが創り出す洗練された空間を楽しむことができます。扉を開けると、ゆったりとしたLDK11.0帖があなたを優しく迎え入れます。この空間は、友人と特別なディナーを楽しんだり、静かな午後を本を手に過ごしたりするのに最適です。ここには、思い出が生まれる暖かい時間が満ちています。
さらに足を踏み入れると、洋室5.7帖があなたのプライベートな空間となります。この部屋は、柔らかな絨毯の上に寝転び、静かに読書を楽しむための特別な隠れ家です。外の喧騒を忘れさせてくれる、贅沢なひとときをお約束します。風に揺れるカーテンが、涼やかな音を奏でることで、心が静まっていくのを感じることでしょう。
専有面積44.2㎡の空間には、日常のすべてが織り込まれています。TVモニターホンやオートロックなどの現代的な設備も揃い、安心感ながら贅沢さを感じることができる仕掛けが年齢を問わず、心の安らぎを与えてくれます。宅配ボックスも完備され、外出先での受け取りがスムーズ。また、駐車場や駐輪場もあり、日常の便利さが確保されています。
周辺は歴史ある文化と芸術が息づく麻布台、その魅力に浸ることができます。六本木一丁目駅から徒歩6分というロケーションでは、東京の華やかな街並みを存分に楽しむことが可能です。ギャラリーやカフェ、洗練されたショップが立ち並ぶ街中は、まるで映画のワンシーンを思わせる情景。モダンと伝統が交差し、刺激的かつ心温まる時間が流れています。
レジディア麻布台 304での新しい生活は、ただの住まいを越えた特別な空間です。貴方の人生の一部となり、心が豊かになる時間を提供してくれることでしょう。この場所で、あなた自身のストーリーを紡いでいくことを待ち焦がれています。ここでの生活は、まるで美しい映画の一コマのように、あなたにとって特別な思い出となることでしょう。どうぞ、この洗練された空間で、心ゆくまでご自身の生活を彩ってください。
バイブルスコア
バイブルスコア: 22.8
平均的なスコアです。
※バイブルスコア詳細はこちら
バイブルスコアとは独自のAI機械学習技術を利用した物件評価システムで、物件のおすすめ度を示します。最高得点は100点で、スコアが高いほど、よりおすすめの物件と評価されています。
写真
契約条件
| 賃料 | 予想金額:205,000〜225,000円程度 | 管理費 | 予想金額:13,000〜17,000円程度 |
| 礼金 | 非公開(アーカイブ) | 敷金 | 非公開(アーカイブ) |
| フリーレント | なし | 平米数 | 44.2㎡ |
| 間取り | 1LDK | 大型収納 | |
| 契約期間 | 方角 | 南 | |
| 更新料 | 契約形態 | 定期借家契約 | |
| 取引態様 | 媒介 | 内見状況 | 入居中 |
| 入居時期 | 入居中 | SOHO・事務所 | |
| ペット | ペット可 | 間取り内訳 | 洋室5.7畳 LDK11.0畳 |
| キャンペーン情報・備考 | 本情報は賃料改定交渉の資料作成、収益物件の利回り試算、周辺エリアや最寄り駅の坪単価分析、次回募集開始時期の予測などにご活用いただけます。 | ||
※「どの不動産に頼めばいいのか分からない」「信頼できる営業マンの話を聞きたい」「一番親切な会社と契約したい」とお悩みの方におすすめなのが「高級賃貸バイブル」です。
高級賃貸バイブルは業界10年以上の熟練スタッフ群がお客様ファーストで対応します。
下記ボタンから、まずは無料でご相談下さい。
※内覧をご希望の際には、どうぞ物件のエントランス前にてお待ち合わせくださいませ。ご内覧後は、同じ場所でお別れとさせていただきます。お客様のご都合に合わせたスムーズなご案内を心がけておりますので、ご質問等がございましたら何なりとお申し付けください。 物件概要
| 物件名 |
| 築年月 |
|
|---|---|---|---|
| 所在地 | |||
| 交通 | |||
| 総戸数 |
| 総階数 |
|
| 構造 |
| ||
地図
物件までの道のりは、「拡大地図を表示」をクリックしてナビ機能をご利用ください。
部屋設備
















建物設備

TVモニターホン

エレベーター

オートロック

宅配ボックス

敷地内ゴミ置場

駐車場平置き

駐輪場
レジディア麻布台の現在募集中のお部屋
- No rooms found for this property.






























