
| 賃料 | 予想金額:191,000〜211,000円程度 | 管理費 | 予想金額:6,000〜10,000円程度 |
| 礼金/敷金 | 非公開(アーカイブ) | 平米数 | 42.67㎡ |
| 初期費用概算(参考) | 目安:757,000〜857,000 円 | みなし賃料(月額・参考) | 211,625〜231,625 円 |
| 備考 | 本ページは過去募集のアーカイブです。表示の金額は周辺相場・過去募集を踏まえた参考レンジであり、実際の契約金額・条件ではありません。 | ||
※上記みなし賃料(月額)は仲介手数料割引・無料&キャッシュバックを加味した高級賃貸バイブル限定の金額です。一般的なみなし賃料とは異なります。
【建物ページ】麻布台レジデンスの詳細・最新空室はこちら▶▶選ばれる理由
仲介手数料無料・キャンペーン情報(毎月15名様限定)
〇仲介手数料割引キャンペーン
レジディア麻布台 501の口コミ・レビュー
レジディア麻布台 501。この名前は、あなたが迎える新しい生活の舞台となる場所、まるで映画の1シーンの中に溶け込んでいくかのようです。所在する東京都港区麻布台3-4-9というロケーションは、南西を向いて広がる美しい街並み。そして、その中に佇むレジディア麻布台 501は、まるで優雅な人間のように、洗練された佇まいを見せております。
この物件に足を踏み入れると、あなたはその瞬間から異なる次元へと誘わ…レジディア麻布台 501。この名前は、あなたが迎える新しい生活の舞台となる場所、まるで映画の1シーンの中に溶け込んでいくかのようです。所在する東京都港区麻布台3-4-9というロケーションは、南西を向いて広がる美しい街並み。そして、その中に佇むレジディア麻布台 501は、まるで優雅な人間のように、洗練された佇まいを見せております。
この物件に足を踏み入れると、あなたはその瞬間から異なる次元へと誘われます。広がる42.67㎡のスペースは、まるであなたの想像力を羽ばたかせるキャンバスのようです。洋室5.7帖の空間は、心に安らぎをもたらす優しい色合いで包まれ、時には穏やかな朝日が差し込み、時には柔らかな月光がその雰囲気を変えて、あなたの心を満たしてくれるでしょう。LDK11.0帖は、贅沢な開放感が溢れ、リビングで過ごす時間は、まるで大切な人々と交わす会話の中で映画のワンシーンとなり得ます。優雅なソファに身を沈め、香ばしいコーヒーの香りを漂わせながら、視線を窓の外へ移せば、まるで絵画のような景色が広がります。
この非日常的な空間は、単なる居住空間ではありません。レジディア麻布台 501は、貴方を迎え入れる親しい友人のように、生活を奏でる舞台役者のように、シーンごとに異なる感情を引き出します。南西の方角から注がれる光は、まるで新たなインスピレーションを与えるために降り注いでいるかのよう。毎朝、この場所で目覚めることで、あなたの1日が特別なものに変わるのです。
さらに、この物件には現代の便利さを詰め込んだ設備も整っています。TVモニターホン、エレベーター、オートロックといった安全性を考慮した設備が、あなたの生活に安心感を与えます。宅配ボックスや駐車場平置きの便利さも、日常のストレスを軽減することでしょう。まるであなたのライフスタイルをサポートしてくれる、寸分の隙もない忠実なパートナーのようです。
レジディア麻布台 501の周辺には、歴史と文化が息づく存在もあります。麻布台は、古くからの伝統と現代の洗練が融合したエリア。街を歩けば、歴史的な建物やアートギャラリーも点在しており、あなたの心にさらなる刺激を与えることでしょう。思わず足を止めて、アートの前に立ち尽くす自分が浮かぶかもしれません。
この空間での日々は、まるで特別な物語のように展開されます。新たな友との出会いや、穏やかなひとときを共に過ごし、どこか心温まる瞬間を次々と生み出すでしょう。その全てが、レジディア麻布台 501という場所で感じ取れる特別な体験となります。だからこそ、この物件はただの住まいではなく、あなたの人生の新たなページを綴る舞台なのです。
この物件に足を踏み入れると、あなたはその瞬間から異なる次元へと誘わ…レジディア麻布台 501。この名前は、あなたが迎える新しい生活の舞台となる場所、まるで映画の1シーンの中に溶け込んでいくかのようです。所在する東京都港区麻布台3-4-9というロケーションは、南西を向いて広がる美しい街並み。そして、その中に佇むレジディア麻布台 501は、まるで優雅な人間のように、洗練された佇まいを見せております。
この物件に足を踏み入れると、あなたはその瞬間から異なる次元へと誘われます。広がる42.67㎡のスペースは、まるであなたの想像力を羽ばたかせるキャンバスのようです。洋室5.7帖の空間は、心に安らぎをもたらす優しい色合いで包まれ、時には穏やかな朝日が差し込み、時には柔らかな月光がその雰囲気を変えて、あなたの心を満たしてくれるでしょう。LDK11.0帖は、贅沢な開放感が溢れ、リビングで過ごす時間は、まるで大切な人々と交わす会話の中で映画のワンシーンとなり得ます。優雅なソファに身を沈め、香ばしいコーヒーの香りを漂わせながら、視線を窓の外へ移せば、まるで絵画のような景色が広がります。
この非日常的な空間は、単なる居住空間ではありません。レジディア麻布台 501は、貴方を迎え入れる親しい友人のように、生活を奏でる舞台役者のように、シーンごとに異なる感情を引き出します。南西の方角から注がれる光は、まるで新たなインスピレーションを与えるために降り注いでいるかのよう。毎朝、この場所で目覚めることで、あなたの1日が特別なものに変わるのです。
さらに、この物件には現代の便利さを詰め込んだ設備も整っています。TVモニターホン、エレベーター、オートロックといった安全性を考慮した設備が、あなたの生活に安心感を与えます。宅配ボックスや駐車場平置きの便利さも、日常のストレスを軽減することでしょう。まるであなたのライフスタイルをサポートしてくれる、寸分の隙もない忠実なパートナーのようです。
レジディア麻布台 501の周辺には、歴史と文化が息づく存在もあります。麻布台は、古くからの伝統と現代の洗練が融合したエリア。街を歩けば、歴史的な建物やアートギャラリーも点在しており、あなたの心にさらなる刺激を与えることでしょう。思わず足を止めて、アートの前に立ち尽くす自分が浮かぶかもしれません。
この空間での日々は、まるで特別な物語のように展開されます。新たな友との出会いや、穏やかなひとときを共に過ごし、どこか心温まる瞬間を次々と生み出すでしょう。その全てが、レジディア麻布台 501という場所で感じ取れる特別な体験となります。だからこそ、この物件はただの住まいではなく、あなたの人生の新たなページを綴る舞台なのです。
バイブルスコア
バイブルスコア: 28.1
平均的なスコアです。
※バイブルスコア詳細はこちら
バイブルスコアとは独自のAI機械学習技術を利用した物件評価システムで、物件のおすすめ度を示します。最高得点は100点で、スコアが高いほど、よりおすすめの物件と評価されています。
写真
契約条件
| 賃料 | 予想金額:191,000〜211,000円程度 | 管理費 | 予想金額:6,000〜10,000円程度 |
| 礼金 | 非公開(アーカイブ) | 敷金 | 非公開(アーカイブ) |
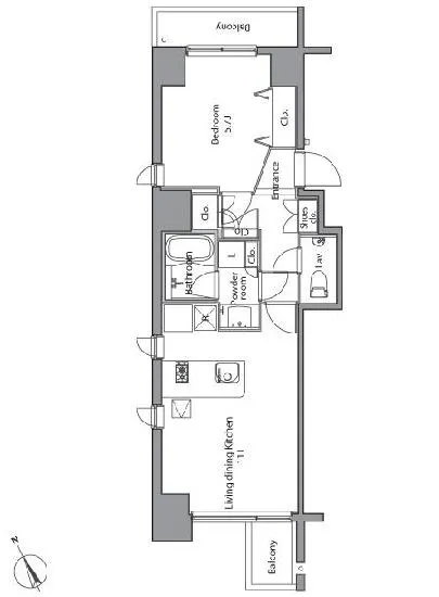
| フリーレント | なし | 平米数 | 42.67㎡ |
| 間取り | 1LDK | 大型収納 | |
| 契約期間 |
| 方角 | 南西 |
| 更新料 | 契約形態 | 普通賃貸借契約 | |
| 取引態様 | 媒介 | 内見状況 | 入居中 |
| 入居時期 | 入居中 | SOHO・事務所 | |
| ペット | ペット可 | 間取り内訳 | 洋室5.7畳 LDK11.0畳 |
| キャンペーン情報・備考 | 本情報は賃料改定交渉の資料作成、収益物件の利回り試算、周辺エリアや最寄り駅の坪単価分析、次回募集開始時期の予測などにご活用いただけます。 | ||
※「どの不動産に頼めばいいのか分からない」「信頼できる営業マンの話を聞きたい」「一番親切な会社と契約したい」とお悩みの方におすすめなのが「高級賃貸バイブル」です。
高級賃貸バイブルは業界10年以上の熟練スタッフ群がお客様ファーストで対応します。
下記ボタンから、まずは無料でご相談下さい。
※内覧をご希望の際には、どうぞ物件のエントランス前にてお待ち合わせくださいませ。ご内覧後は、同じ場所でお別れとさせていただきます。お客様のご都合に合わせたスムーズなご案内を心がけておりますので、ご質問等がございましたら何なりとお申し付けください。 物件概要
| 物件名 |
| 築年月 |
|
|---|---|---|---|
| 所在地 | |||
| 交通 | |||
| 総戸数 |
| 総階数 |
|
| 構造 |
| ||
地図
物件までの道のりは、「拡大地図を表示」をクリックしてナビ機能をご利用ください。
部屋設備

















建物設備

TVモニターホン

エレベーター

オートロック

宅配ボックス

敷地内ゴミ置場

駐車場平置き

駐輪場
レジディア麻布台の現在募集中のお部屋
- No rooms found for this property.






























