
| 賃料 | 予想金額:100,000〜120,000円程度 | 管理費 | 予想金額:8,000〜12,000円程度 |
| 礼金/敷金 | 非公開(アーカイブ) | 平米数 | 33.95㎡ |
| 初期費用概算(参考) | 目安:364,500〜464,500 円 | みなし賃料(月額・参考) | 116,344〜136,344 円 |
| 備考 | 本ページは過去募集のアーカイブです。表示の金額は周辺相場・過去募集を踏まえた参考レンジであり、実際の契約金額・条件ではありません。 | ||
※上記みなし賃料(月額)は仲介手数料割引・無料&キャッシュバックを加味した高級賃貸バイブル限定の金額です。一般的なみなし賃料とは異なります。
【建物ページ】レジディア千鳥町の詳細・最新空室はこちら▶▶選ばれる理由
仲介手数料無料・キャンペーン情報(毎月15名様限定)
〇引っ越しお祝い金22000円プレゼント(キャッシュバック)
〇仲介手数料無料キャンペーン
レジディア千鳥町 212の口コミ・レビュー
レジディア千鳥町 212は、まるで一冊の詩のように、あなたを新たな生活へと誘う美しい空間です。東京都大田区千鳥2-9-20に位置し、東から差し込む朝日の光が、あなたの1日の始まりを優雅に演出します。
この高級賃貸物件は、まるで心地よい音楽のメロディーが流れ出すかのように、住む人々に特別な体験を提供します。専有面積は33.95㎡、1DKというコンパクトな設計ながら、あふれるデザイン性はあなたの生活…レジディア千鳥町 212は、まるで一冊の詩のように、あなたを新たな生活へと誘う美しい空間です。東京都大田区千鳥2-9-20に位置し、東から差し込む朝日の光が、あなたの1日の始まりを優雅に演出します。
この高級賃貸物件は、まるで心地よい音楽のメロディーが流れ出すかのように、住む人々に特別な体験を提供します。専有面積は33.95㎡、1DKというコンパクトな設計ながら、あふれるデザイン性はあなたの生活を豊かに彩ることでしょう。まるで、芸術家が細部までこだわった一枚の絵画のように、空間のすみずみまで愛が込められています。
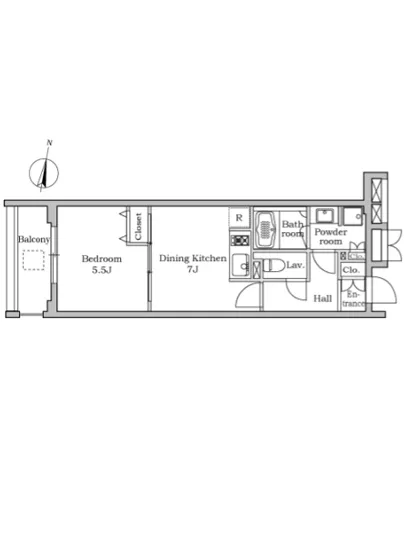
お部屋の中に足を踏み入れると、5.5帖の洋室が心を優しく包み込み、あなたを温かく迎え入れます。窓からは優しい東の光が差し込み、まるで朝露に濡れた花びらが輝くかのように、空間を明るく照らします。7帖のダイニングキッチンでは、料理が生み出す美味しい香りに包まれて、まるで家庭的なレストランにいるかのような温もりを感じることでしょう。愛しい人と一緒にこの地で過ごす食卓には、心地よい笑い声が響き渡ることでしょう。
レジディア千鳥町 212は、ただの住まいではありません。エレベーターを利用して、優雅に低層階へと移動し、オートロックの安心感に包まれながら、日々の生活が特別な物語に変わっていきます。常駐する管理人があたたかく、生活全般を見守ってくれるため、一層安心感が増します。敷地内には、手入れの行き届いたゴミ置き場や駐輪場も完備されており、あなたの暮らしを快適にサポートします。
そして、この場所はただの住まいを超え、大田区の歴史と文化を抱く地でもあります。千鳥町駅まで徒歩7分という立地を活かし、近隣には歴史を感じさせるPlacesが点在し、散策するにはもってこいのエリアです。街並みを感じながら、色あせない日本の風情に触れ、感性を豊かに育てることができるでしょう。駅からの道中では、四季折々の自然があなたを迎え入れ、五感で楽しむことができるのです。
レジディア千鳥町 212での生活は、まるで映画のワンシーンのように、心に刻まれる特別な瞬間の連続です。愛する人々との食卓を囲み、豊かな時間を共有することで、心が潤い、日々が色彩豊かに彩られていきます。家という名の小宇宙で、あなた自身を見つめ直し、感謝の気持ちを育んでいく、そんな居場所に相応しいのです。
この美しい空間で、あなたの新しい章を開いてみませんか?レジディア千鳥町 212が、その旅の出発点となることでしょう。
この高級賃貸物件は、まるで心地よい音楽のメロディーが流れ出すかのように、住む人々に特別な体験を提供します。専有面積は33.95㎡、1DKというコンパクトな設計ながら、あふれるデザイン性はあなたの生活…レジディア千鳥町 212は、まるで一冊の詩のように、あなたを新たな生活へと誘う美しい空間です。東京都大田区千鳥2-9-20に位置し、東から差し込む朝日の光が、あなたの1日の始まりを優雅に演出します。
この高級賃貸物件は、まるで心地よい音楽のメロディーが流れ出すかのように、住む人々に特別な体験を提供します。専有面積は33.95㎡、1DKというコンパクトな設計ながら、あふれるデザイン性はあなたの生活を豊かに彩ることでしょう。まるで、芸術家が細部までこだわった一枚の絵画のように、空間のすみずみまで愛が込められています。
お部屋の中に足を踏み入れると、5.5帖の洋室が心を優しく包み込み、あなたを温かく迎え入れます。窓からは優しい東の光が差し込み、まるで朝露に濡れた花びらが輝くかのように、空間を明るく照らします。7帖のダイニングキッチンでは、料理が生み出す美味しい香りに包まれて、まるで家庭的なレストランにいるかのような温もりを感じることでしょう。愛しい人と一緒にこの地で過ごす食卓には、心地よい笑い声が響き渡ることでしょう。
レジディア千鳥町 212は、ただの住まいではありません。エレベーターを利用して、優雅に低層階へと移動し、オートロックの安心感に包まれながら、日々の生活が特別な物語に変わっていきます。常駐する管理人があたたかく、生活全般を見守ってくれるため、一層安心感が増します。敷地内には、手入れの行き届いたゴミ置き場や駐輪場も完備されており、あなたの暮らしを快適にサポートします。
そして、この場所はただの住まいを超え、大田区の歴史と文化を抱く地でもあります。千鳥町駅まで徒歩7分という立地を活かし、近隣には歴史を感じさせるPlacesが点在し、散策するにはもってこいのエリアです。街並みを感じながら、色あせない日本の風情に触れ、感性を豊かに育てることができるでしょう。駅からの道中では、四季折々の自然があなたを迎え入れ、五感で楽しむことができるのです。
レジディア千鳥町 212での生活は、まるで映画のワンシーンのように、心に刻まれる特別な瞬間の連続です。愛する人々との食卓を囲み、豊かな時間を共有することで、心が潤い、日々が色彩豊かに彩られていきます。家という名の小宇宙で、あなた自身を見つめ直し、感謝の気持ちを育んでいく、そんな居場所に相応しいのです。
この美しい空間で、あなたの新しい章を開いてみませんか?レジディア千鳥町 212が、その旅の出発点となることでしょう。
バイブルスコア
バイブルスコア: 38.1
平均的なスコアです。
※バイブルスコア詳細はこちら
バイブルスコアとは独自のAI機械学習技術を利用した物件評価システムで、物件のおすすめ度を示します。最高得点は100点で、スコアが高いほど、よりおすすめの物件と評価されています。
写真
現在写真が登録されていません契約条件
| 賃料 | 予想金額:100,000〜120,000円程度 | 管理費 | 予想金額:8,000〜12,000円程度 |
| 礼金 | 非公開(アーカイブ) | 敷金 | 非公開(アーカイブ) |
| フリーレント | なし | 平米数 | 33.95㎡ |
| 間取り | 1DK | 大型収納 | なし |
| 契約期間 | 2年 | 方角 | 東 |
| 更新料 | 1ヶ月 | 契約形態 | 普通賃貸借契約 |
| 取引態様 | 媒介 | 内見状況 | 入居中 |
| 入居時期 | 入居中 | SOHO・事務所 | 不可 |
| ペット | ペット可 | 間取り内訳 | 洋:5.5 DK:7 |
| キャンペーン情報・備考 | 本情報は賃料改定交渉の資料作成、収益物件の利回り試算、周辺エリアや最寄り駅の坪単価分析、次回募集開始時期の予測などにご活用いただけます。 | ||
※「どの不動産に頼めばいいのか分からない」「信頼できる営業マンの話を聞きたい」「一番親切な会社と契約したい」とお悩みの方におすすめなのが「高級賃貸バイブル」です。
高級賃貸バイブルは業界10年以上の熟練スタッフ群がお客様ファーストで対応します。
下記ボタンから、まずは無料でご相談下さい。
※内覧をご希望の際には、どうぞ物件のエントランス前にてお待ち合わせくださいませ。ご内覧後は、同じ場所でお別れとさせていただきます。お客様のご都合に合わせたスムーズなご案内を心がけておりますので、ご質問等がございましたら何なりとお申し付けください。 物件概要
地図
物件までの道のりは、「拡大地図を表示」をクリックしてナビ機能をご利用ください。
部屋設備














建物設備

TVモニターホン

エレベーター

オートロック

敷地内ゴミ置場

管理人

駐車場平置き

駐車場機械式

駐輪場
レジディア千鳥町の現在募集中のお部屋
- No rooms found for this property.
