
| 賃料 | 予想金額:100,000〜120,000円程度 | 管理費 | 予想金額:8,000〜12,000円程度 |
| 礼金/敷金 | 非公開(アーカイブ) | 平米数 | 33.95㎡ |
| 初期費用概算(参考) | 目安:441,500〜541,500 円 | みなし賃料(月額・参考) | 117,948〜137,948 円 |
| 備考 | 本ページは過去募集のアーカイブです。表示の金額は周辺相場・過去募集を踏まえた参考レンジであり、実際の契約金額・条件ではありません。 | ||
※上記みなし賃料(月額)は仲介手数料割引・無料&キャッシュバックを加味した高級賃貸バイブル限定の金額です。一般的なみなし賃料とは異なります。
【建物ページ】レジディア千鳥町の詳細・最新空室はこちら▶▶選ばれる理由
仲介手数料無料・キャンペーン情報(毎月15名様限定)
〇仲介手数料割引キャンペーン
レジディア千鳥町 305の口コミ・レビュー
レジディア千鳥町 305、ここはあなたの新しい物語が始まる場所。東京都大田区千鳥2-9-20という住所は、まるで隠れ家のように静寂を保ちながらも、周囲には温かいコミュニティと文化が息づいています。この305号室は、あなたの生活に新たな色彩を与える、特別な空間です。
この物件の扉を開くと、まず触れるのは心地よい空気、白を基調とした洗練されたデザインが、あたかも新しいキャンバスのようにあなたを迎え入…レジディア千鳥町 305、ここはあなたの新しい物語が始まる場所。東京都大田区千鳥2-9-20という住所は、まるで隠れ家のように静寂を保ちながらも、周囲には温かいコミュニティと文化が息づいています。この305号室は、あなたの生活に新たな色彩を与える、特別な空間です。
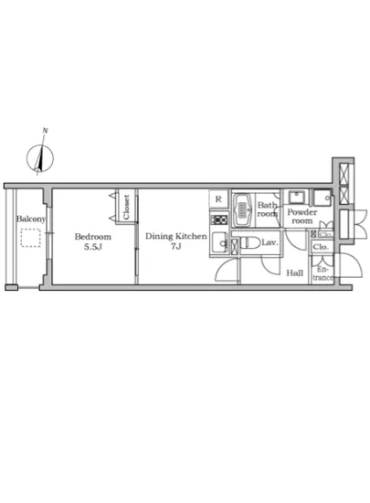
この物件の扉を開くと、まず触れるのは心地よい空気、白を基調とした洗練されたデザインが、あたかも新しいキャンバスのようにあなたを迎え入れます。広さ33.95㎡は、生活に必要なものすべてを収めながらも、心に余裕をもたらす絶妙なバランスを保っています。洋室5.5帖とDK7帖の仕切りを超え、新しい発見が待ち受けています。ここでは、どのような生活が待っているのか、思わず想像が膨らみます。
窓の外には西の陽射しが差し込み、昼下がりのやわらかな光が部屋の中を温かく包み込む様子を思い描いてください。夕暮れ時には、まるで黄金に染まった絹のカーテンを下ろすかのように、あなたの心に安らぎを与えるでしょう。階段を下りれば、エレベーターとオートロックという現代の便利さも捨てがたく、まるでセキュリティがあなたを抱きしめてくれているかのような安心感が漂います。
生活の舞台は、ただの空間ではなく、五感を刺激する体験でもあります。フライパンで肉を焼くときの sizzle(シズル)音、香ばしい香りが漂ってくる瞬間は、心を高揚させ、あなたをキッチンの魔法使いに変えるかもしれません。ダイニングでの食事は、あなたの家族や友人とのコミュニケーションを深め、笑い声が響き渡る瞬間が詰まった特別な時間へと変わることでしょう。
また、駐車場や駐輪場の利便性は、都市生活者にとって必要不可欠な要素です。例えば、週末には自転車を駆り、近くの公園へ出かける冒険が待っています。新たな景色を求めて、千鳥町駅から気ままに歩くことで、街の美しさや人々との出会いを楽しむこともできるのです。
レジディア千鳥町 305は、ただの住まいではなく、あなたの夢を育む舞台です。歴史と文化が共存するこの地域で、毎日が映画のワンシーンのように感じられることでしょう。ユニークな出会いや発見が、この空間に息づくことで、自然とあなたの生活が豊かになるのです。さあ、ここから新しい物語を紡ぎ始める準備を整えてみませんか。あなたの期待を超える、心温まる生活が、レジディア千鳥町 305で待っているのです。
この物件の扉を開くと、まず触れるのは心地よい空気、白を基調とした洗練されたデザインが、あたかも新しいキャンバスのようにあなたを迎え入…レジディア千鳥町 305、ここはあなたの新しい物語が始まる場所。東京都大田区千鳥2-9-20という住所は、まるで隠れ家のように静寂を保ちながらも、周囲には温かいコミュニティと文化が息づいています。この305号室は、あなたの生活に新たな色彩を与える、特別な空間です。
この物件の扉を開くと、まず触れるのは心地よい空気、白を基調とした洗練されたデザインが、あたかも新しいキャンバスのようにあなたを迎え入れます。広さ33.95㎡は、生活に必要なものすべてを収めながらも、心に余裕をもたらす絶妙なバランスを保っています。洋室5.5帖とDK7帖の仕切りを超え、新しい発見が待ち受けています。ここでは、どのような生活が待っているのか、思わず想像が膨らみます。
窓の外には西の陽射しが差し込み、昼下がりのやわらかな光が部屋の中を温かく包み込む様子を思い描いてください。夕暮れ時には、まるで黄金に染まった絹のカーテンを下ろすかのように、あなたの心に安らぎを与えるでしょう。階段を下りれば、エレベーターとオートロックという現代の便利さも捨てがたく、まるでセキュリティがあなたを抱きしめてくれているかのような安心感が漂います。
生活の舞台は、ただの空間ではなく、五感を刺激する体験でもあります。フライパンで肉を焼くときの sizzle(シズル)音、香ばしい香りが漂ってくる瞬間は、心を高揚させ、あなたをキッチンの魔法使いに変えるかもしれません。ダイニングでの食事は、あなたの家族や友人とのコミュニケーションを深め、笑い声が響き渡る瞬間が詰まった特別な時間へと変わることでしょう。
また、駐車場や駐輪場の利便性は、都市生活者にとって必要不可欠な要素です。例えば、週末には自転車を駆り、近くの公園へ出かける冒険が待っています。新たな景色を求めて、千鳥町駅から気ままに歩くことで、街の美しさや人々との出会いを楽しむこともできるのです。
レジディア千鳥町 305は、ただの住まいではなく、あなたの夢を育む舞台です。歴史と文化が共存するこの地域で、毎日が映画のワンシーンのように感じられることでしょう。ユニークな出会いや発見が、この空間に息づくことで、自然とあなたの生活が豊かになるのです。さあ、ここから新しい物語を紡ぎ始める準備を整えてみませんか。あなたの期待を超える、心温まる生活が、レジディア千鳥町 305で待っているのです。
バイブルスコア
バイブルスコア: 22.8
平均的なスコアです。
※バイブルスコア詳細はこちら
バイブルスコアとは独自のAI機械学習技術を利用した物件評価システムで、物件のおすすめ度を示します。最高得点は100点で、スコアが高いほど、よりおすすめの物件と評価されています。
写真
現在写真が登録されていません契約条件
| 賃料 | 予想金額:100,000〜120,000円程度 | 管理費 | 予想金額:8,000〜12,000円程度 |
| 礼金 | 非公開(アーカイブ) | 敷金 | 非公開(アーカイブ) |
| フリーレント | なし | 平米数 | 33.95㎡ |
| 間取り | 1DK | 大型収納 | |
| 契約期間 |
| 方角 | 西 |
| 更新料 | 契約形態 | 普通賃貸借契約 | |
| 取引態様 | 媒介 | 内見状況 | 入居中 |
| 入居時期 | 入居中 | SOHO・事務所 | |
| ペット | ペット可 | 間取り内訳 | 洋:5.5 DK:7 |
| キャンペーン情報・備考 | 本情報は賃料改定交渉の資料作成、収益物件の利回り試算、周辺エリアや最寄り駅の坪単価分析、次回募集開始時期の予測などにご活用いただけます。 | ||
※「どの不動産に頼めばいいのか分からない」「信頼できる営業マンの話を聞きたい」「一番親切な会社と契約したい」とお悩みの方におすすめなのが「高級賃貸バイブル」です。
高級賃貸バイブルは業界10年以上の熟練スタッフ群がお客様ファーストで対応します。
下記ボタンから、まずは無料でご相談下さい。
※内覧をご希望の際には、どうぞ物件のエントランス前にてお待ち合わせくださいませ。ご内覧後は、同じ場所でお別れとさせていただきます。お客様のご都合に合わせたスムーズなご案内を心がけておりますので、ご質問等がございましたら何なりとお申し付けください。 物件概要
地図
物件までの道のりは、「拡大地図を表示」をクリックしてナビ機能をご利用ください。
部屋設備














建物設備

TVモニターホン

エレベーター

オートロック

敷地内ゴミ置場

管理人

駐車場平置き

駐車場機械式

駐輪場
レジディア千鳥町の現在募集中のお部屋
- No rooms found for this property.
