
| 賃料 | 予想金額:130,000〜150,000円程度 | 管理費 | 予想金額:13,000〜17,000円程度 |
| 礼金/敷金 | 非公開(アーカイブ) | 平米数 | 46.86㎡ |
| 初期費用概算(参考) | 目安:447,000〜547,000 円 | みなし賃料(月額・参考) | 152,438〜172,438 円 |
| 備考 | 本ページは過去募集のアーカイブです。表示の金額は周辺相場・過去募集を踏まえた参考レンジであり、実際の契約金額・条件ではありません。 | ||
※上記みなし賃料(月額)は仲介手数料割引・無料&キャッシュバックを加味した高級賃貸バイブル限定の金額です。一般的なみなし賃料とは異なります。
【建物ページ】レジディア池上の詳細・最新空室はこちら▶▶選ばれる理由
仲介手数料無料・キャンペーン情報(毎月15名様限定)
〇仲介手数料割引キャンペーン
レジディア池上 B-0301の口コミ・レビュー
レジディア池上 B-0301。この言葉を目にするだけで、洗練されたライフスタイルがほのかに香り立ち、あなたを魅了することでしょう。東京都大田区池上の心地よい風と静寂な環境に包まれたこの物件は、東と北の二方向からの光が降り注ぎ、まるで朝陽が優しくあなたを迎え入れているかのようです。
心躍る毎日が待つレジディア池上 B-0301の中に足を踏み入れた瞬間、あなたは贅沢な空間に包まれることでしょう。専有…レジディア池上 B-0301。この言葉を目にするだけで、洗練されたライフスタイルがほのかに香り立ち、あなたを魅了することでしょう。東京都大田区池上の心地よい風と静寂な環境に包まれたこの物件は、東と北の二方向からの光が降り注ぎ、まるで朝陽が優しくあなたを迎え入れているかのようです。
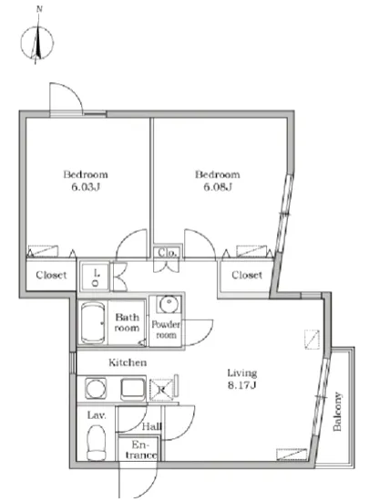
心躍る毎日が待つレジディア池上 B-0301の中に足を踏み入れた瞬間、あなたは贅沢な空間に包まれることでしょう。専有面積46.86㎡に広がるこの住まいは、2LDKの間取りが持つ魅力を余すところなく発揮しています。広々としたLDは8.17帖、まるで映画のセットのように、家族や友人との心温まるひとときを演出するのに最適です。ふんわりとしたソファに腰掛け、心地よい音楽が流れる中、あなたの笑い声が響く様子が目に浮かびます。
続いて、6.08帖と6.03帖の洋室では、ゆったりとしたプライベート空間が広がります。それぞれの部屋には、夢を育むための空気が満ちています。清々しい朝の光が優しく差し込み、目覚めを祝福してくれるでしょう。まるで大自然の中にいるかのような清浄さを感じながら、一杯の香り豊かなコーヒーを手に持ち、窓を開ければ、かすかに漂う花々の香りが心を満たします。
レジディア池上 B-0301には、最新の設備も整っています。TVモニターホンやオートロックが安心感を提供し、デザイナーズ仕様の洗練された空間は、毎日の暮らしを少し特別なものにしてくれます。敷地内のゴミ置場や管理人の存在は、生活をより快適にしてくれる大切な要素です。駐輪場も完備され、自由に街を巡る冒険へ繰り出す準備も整っています。
駅からはたったの徒歩8分、その道のりはまるで宝物を探しに行くかのようです。東京急行電鉄東急池上線の池上駅が近くにあり、日常の喧騒を忘れて静かな池上の魅力を満喫することができます。周囲には歴史と文化が息づく風景が広がり、街の角々にはアートが潜んでいます。散歩を通じて発見する美味しいパン屋や落ち着いたカフェに立ち寄るたび、心が豊かになっていくことでしょう。
レジディア池上 B-0301は、あなたにとっての「住まい」を超えた、心の拠り所となる場所です。この物件が紡ぎ出す毎日は、まるで美しい映画のワンシーンのように、色鮮やかで心に残る思い出を刻むことでしょう。ここでは、贅沢な時間が流れ、あなたの人生がさらに輝くことを約束します。ぜひ一度、その目で、この特別な世界に触れてみてはいかがでしょうか。あなたの新しい物語は、ここから始まるのです。
心躍る毎日が待つレジディア池上 B-0301の中に足を踏み入れた瞬間、あなたは贅沢な空間に包まれることでしょう。専有…レジディア池上 B-0301。この言葉を目にするだけで、洗練されたライフスタイルがほのかに香り立ち、あなたを魅了することでしょう。東京都大田区池上の心地よい風と静寂な環境に包まれたこの物件は、東と北の二方向からの光が降り注ぎ、まるで朝陽が優しくあなたを迎え入れているかのようです。
心躍る毎日が待つレジディア池上 B-0301の中に足を踏み入れた瞬間、あなたは贅沢な空間に包まれることでしょう。専有面積46.86㎡に広がるこの住まいは、2LDKの間取りが持つ魅力を余すところなく発揮しています。広々としたLDは8.17帖、まるで映画のセットのように、家族や友人との心温まるひとときを演出するのに最適です。ふんわりとしたソファに腰掛け、心地よい音楽が流れる中、あなたの笑い声が響く様子が目に浮かびます。
続いて、6.08帖と6.03帖の洋室では、ゆったりとしたプライベート空間が広がります。それぞれの部屋には、夢を育むための空気が満ちています。清々しい朝の光が優しく差し込み、目覚めを祝福してくれるでしょう。まるで大自然の中にいるかのような清浄さを感じながら、一杯の香り豊かなコーヒーを手に持ち、窓を開ければ、かすかに漂う花々の香りが心を満たします。
レジディア池上 B-0301には、最新の設備も整っています。TVモニターホンやオートロックが安心感を提供し、デザイナーズ仕様の洗練された空間は、毎日の暮らしを少し特別なものにしてくれます。敷地内のゴミ置場や管理人の存在は、生活をより快適にしてくれる大切な要素です。駐輪場も完備され、自由に街を巡る冒険へ繰り出す準備も整っています。
駅からはたったの徒歩8分、その道のりはまるで宝物を探しに行くかのようです。東京急行電鉄東急池上線の池上駅が近くにあり、日常の喧騒を忘れて静かな池上の魅力を満喫することができます。周囲には歴史と文化が息づく風景が広がり、街の角々にはアートが潜んでいます。散歩を通じて発見する美味しいパン屋や落ち着いたカフェに立ち寄るたび、心が豊かになっていくことでしょう。
レジディア池上 B-0301は、あなたにとっての「住まい」を超えた、心の拠り所となる場所です。この物件が紡ぎ出す毎日は、まるで美しい映画のワンシーンのように、色鮮やかで心に残る思い出を刻むことでしょう。ここでは、贅沢な時間が流れ、あなたの人生がさらに輝くことを約束します。ぜひ一度、その目で、この特別な世界に触れてみてはいかがでしょうか。あなたの新しい物語は、ここから始まるのです。
バイブルスコア
バイブルスコア: 44.6
条件のいい物件です、引っ越しが2か月以内の場合は仮申し込みを検討すべき物件です。
※バイブルスコア詳細はこちら
バイブルスコアとは独自のAI機械学習技術を利用した物件評価システムで、物件のおすすめ度を示します。最高得点は100点で、スコアが高いほど、よりおすすめの物件と評価されています。
写真
現在写真が登録されていません契約条件
| 賃料 | 予想金額:130,000〜150,000円程度 | 管理費 | 予想金額:13,000〜17,000円程度 |
| 礼金 | 非公開(アーカイブ) | 敷金 | 非公開(アーカイブ) |
| フリーレント | なし | 平米数 | 46.86㎡ |
| 間取り | 2LDK | 大型収納 | なし |
| 契約期間 | 2年 | 方角 | 東 / 北 |
| 更新料 | 1ヶ月 | 契約形態 | 普通賃貸借契約 |
| 取引態様 | 媒介 | 内見状況 | 入居中 |
| 入居時期 | 入居中 | SOHO・事務所 | 不可 |
| ペット | 不可 | 間取り内訳 | 洋:6.08 洋:6.03 LD:8.17 K: |
| キャンペーン情報・備考 | 本情報は賃料改定交渉の資料作成、収益物件の利回り試算、周辺エリアや最寄り駅の坪単価分析、次回募集開始時期の予測などにご活用いただけます。 | ||
※「どの不動産に頼めばいいのか分からない」「信頼できる営業マンの話を聞きたい」「一番親切な会社と契約したい」とお悩みの方におすすめなのが「高級賃貸バイブル」です。
高級賃貸バイブルは業界10年以上の熟練スタッフ群がお客様ファーストで対応します。
下記ボタンから、まずは無料でご相談下さい。
※内覧をご希望の際には、どうぞ物件のエントランス前にてお待ち合わせくださいませ。ご内覧後は、同じ場所でお別れとさせていただきます。お客様のご都合に合わせたスムーズなご案内を心がけておりますので、ご質問等がございましたら何なりとお申し付けください。 物件概要
| 物件名 |
| 築年月 |
|
|---|---|---|---|
| 所在地 | |||
| 交通 | |||
| 総戸数 |
| 総階数 |
|
| 構造 |
| ||
地図
物件までの道のりは、「拡大地図を表示」をクリックしてナビ機能をご利用ください。
部屋設備













建物設備

TVモニターホン

オートロック

敷地内ゴミ置場

管理人

駐輪場
レジディア池上の現在募集中のお部屋
- No rooms found for this property.
