
| 賃料 | 予想金額:86,000〜106,000円程度 | 管理費 | 予想金額:6,000〜10,000円程度 |
| 礼金/敷金 | 非公開(アーカイブ) | 平米数 | 25.11㎡ |
| 初期費用概算(参考) | 目安:293,500〜393,500 円 | みなし賃料(月額・参考) | 99,156〜119,156 円 |
| 備考 | 本ページは過去募集のアーカイブです。表示の金額は周辺相場・過去募集を踏まえた参考レンジであり、実際の契約金額・条件ではありません。 | ||
※上記みなし賃料(月額)は仲介手数料割引・無料&キャッシュバックを加味した高級賃貸バイブル限定の金額です。一般的なみなし賃料とは異なります。
【建物ページ】コンフォリア浅草橋の詳細・最新空室はこちら▶▶選ばれる理由
仲介手数料無料・キャンペーン情報(毎月15名様限定)
〇仲介手数料割引キャンペーン
コンフォリア浅草橋 504の口コミ・レビュー
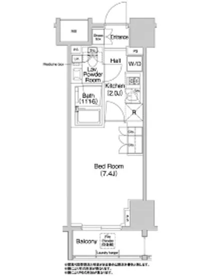
コンフォリア浅草橋 504。この言葉は、単なる物件名ではなく、洗練された生活の扉を開く鍵です。東京都台東区柳橋の閑静な通りに佇むこの高級賃貸の一室は、柔らかな南東の光が降り注ぎ、日々の喧騒からの逃避を可能にします。内装はデザイナーズ仕様で、7.4帖の居心地の良い洋室と、機能的なKが融合したこの1Kは、まるで心地良い夢の中にいるような錯覚を覚えさせてくれます。
想像してみてください。朝、目覚めた瞬…コンフォリア浅草橋 504。この言葉は、単なる物件名ではなく、洗練された生活の扉を開く鍵です。東京都台東区柳橋の閑静な通りに佇むこの高級賃貸の一室は、柔らかな南東の光が降り注ぎ、日々の喧騒からの逃避を可能にします。内装はデザイナーズ仕様で、7.4帖の居心地の良い洋室と、機能的なKが融合したこの1Kは、まるで心地良い夢の中にいるような錯覚を覚えさせてくれます。
想像してみてください。朝、目覚めた瞬間、柔らかな日差しがカーテンの隙間から優しく差し込み、静寂の中で鳥のさえずりが耳に入ります。美しい日本の伝統と現代のデザインが絶妙に調和したコンフォリア浅草橋 504は、あなたの心の奥にある美的感覚を揺さぶります。さらに、あらゆる日常の便利さを支える設備もそろっています。TVモニターホンがあなたのプライバシーを守り、オートロックが安心感を提供し、エレベーターでのアクセスは、まるで特別なVIP待遇を受けているかのようです。
この空間は、ただの住まいではなく、あなたのスタイルを表現する舞台なのです。素晴らしいアメニティ、例えば宅配ボックスや駐輪場、駐車場に至るまで、生活のスムーズさを支える要素が揃っています。コンフォリア浅草橋 504は、まるであなたが主人公の映画のワンシーンを演出しているかのような感覚にさせてくれるのです。
夕暮れ時、窓から見える街の灯りがぽつりぽつりと輝き始め、目の前に広がる美しい景色は、まるで心を癒すアートのようです。周囲には、歴史を感じる建物や文化的なスポットが点在し、散策するたびに新たな発見があります。都営地下鉄浅草線 浅草橋駅まで徒歩5分という利便性も、まるで時間を無駄にせず、人生を謳歌するための素晴らしいアクセントとなります。
このコンフォリア浅草橋 504の住まいの中で、毎日が新たな冒険の始まりです。朝のひんやりとした空気が心地よく、昼は活気にあふれ、夜は静けさに包まれる。この場所で、あなた自身のストーリーを紡いでみてはいかがでしょうか。心の底からリラックスできる空間で、あなたの五感が刺激される瞬間が待っています。さあ、あなたの新しい生活の一歩を、コンフォリア浅草橋 504で踏み出してみてください。この特別な空間が、あなたを一層魅力的に輝かせてくれることでしょう。
想像してみてください。朝、目覚めた瞬…コンフォリア浅草橋 504。この言葉は、単なる物件名ではなく、洗練された生活の扉を開く鍵です。東京都台東区柳橋の閑静な通りに佇むこの高級賃貸の一室は、柔らかな南東の光が降り注ぎ、日々の喧騒からの逃避を可能にします。内装はデザイナーズ仕様で、7.4帖の居心地の良い洋室と、機能的なKが融合したこの1Kは、まるで心地良い夢の中にいるような錯覚を覚えさせてくれます。
想像してみてください。朝、目覚めた瞬間、柔らかな日差しがカーテンの隙間から優しく差し込み、静寂の中で鳥のさえずりが耳に入ります。美しい日本の伝統と現代のデザインが絶妙に調和したコンフォリア浅草橋 504は、あなたの心の奥にある美的感覚を揺さぶります。さらに、あらゆる日常の便利さを支える設備もそろっています。TVモニターホンがあなたのプライバシーを守り、オートロックが安心感を提供し、エレベーターでのアクセスは、まるで特別なVIP待遇を受けているかのようです。
この空間は、ただの住まいではなく、あなたのスタイルを表現する舞台なのです。素晴らしいアメニティ、例えば宅配ボックスや駐輪場、駐車場に至るまで、生活のスムーズさを支える要素が揃っています。コンフォリア浅草橋 504は、まるであなたが主人公の映画のワンシーンを演出しているかのような感覚にさせてくれるのです。
夕暮れ時、窓から見える街の灯りがぽつりぽつりと輝き始め、目の前に広がる美しい景色は、まるで心を癒すアートのようです。周囲には、歴史を感じる建物や文化的なスポットが点在し、散策するたびに新たな発見があります。都営地下鉄浅草線 浅草橋駅まで徒歩5分という利便性も、まるで時間を無駄にせず、人生を謳歌するための素晴らしいアクセントとなります。
このコンフォリア浅草橋 504の住まいの中で、毎日が新たな冒険の始まりです。朝のひんやりとした空気が心地よく、昼は活気にあふれ、夜は静けさに包まれる。この場所で、あなた自身のストーリーを紡いでみてはいかがでしょうか。心の底からリラックスできる空間で、あなたの五感が刺激される瞬間が待っています。さあ、あなたの新しい生活の一歩を、コンフォリア浅草橋 504で踏み出してみてください。この特別な空間が、あなたを一層魅力的に輝かせてくれることでしょう。
バイブルスコア
バイブルスコア: 32.3
平均的なスコアです。
※バイブルスコア詳細はこちら
バイブルスコアとは独自のAI機械学習技術を利用した物件評価システムで、物件のおすすめ度を示します。最高得点は100点で、スコアが高いほど、よりおすすめの物件と評価されています。
写真
契約条件
| 賃料 | 予想金額:86,000〜106,000円程度 | 管理費 | 予想金額:6,000〜10,000円程度 |
| 礼金 | 非公開(アーカイブ) | 敷金 | 非公開(アーカイブ) |
| フリーレント | なし | 平米数 | 25.11㎡ |
| 間取り | 1K | 大型収納 | |
| 契約期間 |
| 方角 | 南東 |
| 更新料 | 契約形態 | 普通賃貸借契約 | |
| 取引態様 | 媒介 | 内見状況 | 入居中 |
| 入居時期 | 入居中 | SOHO・事務所 | |
| ペット | ペット可 | 間取り内訳 | 洋:7.4 K:2 |
| キャンペーン情報・備考 | 本情報は賃料改定交渉の資料作成、収益物件の利回り試算、周辺エリアや最寄り駅の坪単価分析、次回募集開始時期の予測などにご活用いただけます。 | ||
※「どの不動産に頼めばいいのか分からない」「信頼できる営業マンの話を聞きたい」「一番親切な会社と契約したい」とお悩みの方におすすめなのが「高級賃貸バイブル」です。
高級賃貸バイブルは業界10年以上の熟練スタッフ群がお客様ファーストで対応します。
下記ボタンから、まずは無料でご相談下さい。
※内覧をご希望の際には、どうぞ物件のエントランス前にてお待ち合わせくださいませ。ご内覧後は、同じ場所でお別れとさせていただきます。お客様のご都合に合わせたスムーズなご案内を心がけておりますので、ご質問等がございましたら何なりとお申し付けください。 物件概要
| 物件名 |
| 築年月 |
|
|---|---|---|---|
| 所在地 | |||
| 交通 | |||
| 総戸数 |
| 総階数 |
|
| 構造 |
| ||
地図
物件までの道のりは、「拡大地図を表示」をクリックしてナビ機能をご利用ください。
部屋設備












建物設備

TVモニターホン

エレベーター

オートロック

バイク置場

宅配ボックス

敷地内ゴミ置場

管理人

駐車場平置き

駐車場機械式

駐輪場
コンフォリア浅草橋の現在募集中のお部屋
- コンフォリア浅草橋 411 - 間取り: 1LDK - 賃料: 17.9万円
- コンフォリア浅草橋 602 - 間取り: 1LDK - 賃料: 18.1万円
- コンフォリア浅草橋 506 - 間取り: 1LDK - 賃料: 18.1万円
























