
| 賃料 | 予想金額:92,000〜112,000円程度 | 管理費 | 予想金額:6,000〜10,000円程度 |
| 礼金/敷金 | 非公開(アーカイブ) | 平米数 | 25.11㎡ |
| 初期費用概算(参考) | 目安:231,060〜331,060 円 | みなし賃料(月額・参考) | 103,730〜123,730 円 |
| 備考 | 本ページは過去募集のアーカイブです。表示の金額は周辺相場・過去募集を踏まえた参考レンジであり、実際の契約金額・条件ではありません。 | ||
※上記みなし賃料(月額)は仲介手数料割引・無料&キャッシュバックを加味した高級賃貸バイブル限定の金額です。一般的なみなし賃料とは異なります。
【建物ページ】コンフォリア浅草橋の詳細・最新空室はこちら▶▶選ばれる理由
仲介手数料無料・キャンペーン情報(毎月15名様限定)
〇引っ越しお祝い金22440円プレゼント(キャッシュバック)
〇仲介手数料無料キャンペーン
コンフォリア浅草橋 1109の口コミ・レビュー
コンフォリア浅草橋 1109。この美しい名前を持つ住まいは、まるで夢の中にいるかのように、あなたを包み込む空間を提供します。東京都台東区柳橋2-20-10、南東を向いたこの物件は、朝日が優しく差し込み、日々の活力を与えてくれます。エレベーターに乗り、1109号室のドアを開くと、まるで自分専用のアートギャラリーに足を踏み入れたかのような感覚が広がります。
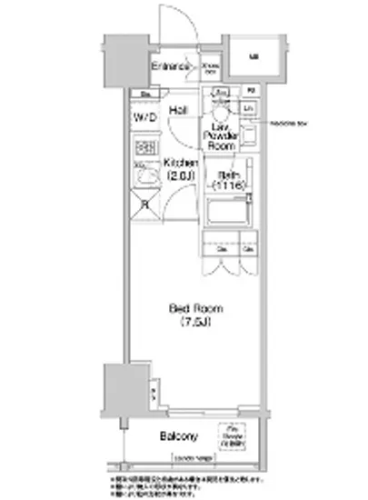
25.11㎡のこの空間は、洋室7.5帖とキ…コンフォリア浅草橋 1109。この美しい名前を持つ住まいは、まるで夢の中にいるかのように、あなたを包み込む空間を提供します。東京都台東区柳橋2-20-10、南東を向いたこの物件は、朝日が優しく差し込み、日々の活力を与えてくれます。エレベーターに乗り、1109号室のドアを開くと、まるで自分専用のアートギャラリーに足を踏み入れたかのような感覚が広がります。
25.11㎡のこの空間は、洋室7.5帖とキッチン2帖の絶妙なコンビネーション。燃えるようなオレンジ色の夕陽が、白い壁を柔らかく染め上げる様子を想像してみてください。窓から流れ込む光が室内を舞い踊り、心地よい風とともに、外の喧騒を静かに洗い流します。
キッチンに立つと、まるでシェフになったかのように、料理の魔法を感じる瞬間が訪れます。新鮮な食材を切り刻むたびに、木の香りが心を豊かにし、スパイスが空気に漂うその香りは、食卓を囲む人々の笑顔を引き出すことでしょう。友人を招いてのホームパーティーや、大切な人とのディナータイムは、あなたの特別な思い出となり、心の奥深くに刻まれることでしょう。
コンフォリア浅草橋 1109には、オートロックやTVモニターホンといった最新のセキュリティシステムが備わっていますので、安心して日常をお楽しみいただけます。また、宅配ボックスや駐輪場、駐車場も完備されているため、生活の利便性も抜群です。周囲にはバイク置場もあり、移動の自由度が高まります。直近には浅草橋駅があり、唯一無二の立地があなたのライフスタイルをさらに豊かに彩ります。
この場所は、歴史と文化が共存する特別な地域。近くには日本の伝統が息づく商店街やアート施設が点在し、訪れる人々にインスピレーションを与えます。アートや音楽の香りが漂う午後、近くのギャラリーで展示を眺めたり、地元のカフェで一杯のコーヒーを楽しむことも、日常のひとコマになることでしょう。
夜には静かな光景が広がり、静寂な時間がやってきます。窓の外を眺めながら、星空に思いを馳せ、未来への夢を描いてみてください。まるで映画のワンシーンのように、静かに流れる時間があなたの心を癒し、より豊かな人生へと導いてくれるでしょう。
コンフォリア浅草橋 1109は、ただの住まいではありません。それは、あなたが描く物語の舞台であり、心の安らぎを与えてくれる特別な場所です。あなたの新しい生活が、ここから始まることを心から願っています。
25.11㎡のこの空間は、洋室7.5帖とキ…コンフォリア浅草橋 1109。この美しい名前を持つ住まいは、まるで夢の中にいるかのように、あなたを包み込む空間を提供します。東京都台東区柳橋2-20-10、南東を向いたこの物件は、朝日が優しく差し込み、日々の活力を与えてくれます。エレベーターに乗り、1109号室のドアを開くと、まるで自分専用のアートギャラリーに足を踏み入れたかのような感覚が広がります。
25.11㎡のこの空間は、洋室7.5帖とキッチン2帖の絶妙なコンビネーション。燃えるようなオレンジ色の夕陽が、白い壁を柔らかく染め上げる様子を想像してみてください。窓から流れ込む光が室内を舞い踊り、心地よい風とともに、外の喧騒を静かに洗い流します。
キッチンに立つと、まるでシェフになったかのように、料理の魔法を感じる瞬間が訪れます。新鮮な食材を切り刻むたびに、木の香りが心を豊かにし、スパイスが空気に漂うその香りは、食卓を囲む人々の笑顔を引き出すことでしょう。友人を招いてのホームパーティーや、大切な人とのディナータイムは、あなたの特別な思い出となり、心の奥深くに刻まれることでしょう。
コンフォリア浅草橋 1109には、オートロックやTVモニターホンといった最新のセキュリティシステムが備わっていますので、安心して日常をお楽しみいただけます。また、宅配ボックスや駐輪場、駐車場も完備されているため、生活の利便性も抜群です。周囲にはバイク置場もあり、移動の自由度が高まります。直近には浅草橋駅があり、唯一無二の立地があなたのライフスタイルをさらに豊かに彩ります。
この場所は、歴史と文化が共存する特別な地域。近くには日本の伝統が息づく商店街やアート施設が点在し、訪れる人々にインスピレーションを与えます。アートや音楽の香りが漂う午後、近くのギャラリーで展示を眺めたり、地元のカフェで一杯のコーヒーを楽しむことも、日常のひとコマになることでしょう。
夜には静かな光景が広がり、静寂な時間がやってきます。窓の外を眺めながら、星空に思いを馳せ、未来への夢を描いてみてください。まるで映画のワンシーンのように、静かに流れる時間があなたの心を癒し、より豊かな人生へと導いてくれるでしょう。
コンフォリア浅草橋 1109は、ただの住まいではありません。それは、あなたが描く物語の舞台であり、心の安らぎを与えてくれる特別な場所です。あなたの新しい生活が、ここから始まることを心から願っています。
バイブルスコア
バイブルスコア: 23.5
平均的なスコアです。
※バイブルスコア詳細はこちら
バイブルスコアとは独自のAI機械学習技術を利用した物件評価システムで、物件のおすすめ度を示します。最高得点は100点で、スコアが高いほど、よりおすすめの物件と評価されています。
写真
契約条件
| 賃料 | 予想金額:92,000〜112,000円程度 | 管理費 | 予想金額:6,000〜10,000円程度 |
| 礼金 | 非公開(アーカイブ) | 敷金 | 非公開(アーカイブ) |
| フリーレント | なし | 平米数 | 25.11㎡ |
| 間取り | 1K | 大型収納 | |
| 契約期間 |
| 方角 | 南東 |
| 更新料 | 契約形態 | 普通賃貸借契約 | |
| 取引態様 | 媒介 | 内見状況 | 入居中 |
| 入居時期 | 入居中 | SOHO・事務所 | |
| ペット | ペット可 | 間取り内訳 | 洋:7.5 K:2 |
| キャンペーン情報・備考 | 本情報は賃料改定交渉の資料作成、収益物件の利回り試算、周辺エリアや最寄り駅の坪単価分析、次回募集開始時期の予測などにご活用いただけます。 | ||
※「どの不動産に頼めばいいのか分からない」「信頼できる営業マンの話を聞きたい」「一番親切な会社と契約したい」とお悩みの方におすすめなのが「高級賃貸バイブル」です。
高級賃貸バイブルは業界10年以上の熟練スタッフ群がお客様ファーストで対応します。
下記ボタンから、まずは無料でご相談下さい。
※内覧をご希望の際には、どうぞ物件のエントランス前にてお待ち合わせくださいませ。ご内覧後は、同じ場所でお別れとさせていただきます。お客様のご都合に合わせたスムーズなご案内を心がけておりますので、ご質問等がございましたら何なりとお申し付けください。 物件概要
| 物件名 |
| 築年月 |
|
|---|---|---|---|
| 所在地 | |||
| 交通 | |||
| 総戸数 |
| 総階数 |
|
| 構造 |
| ||
地図
物件までの道のりは、「拡大地図を表示」をクリックしてナビ機能をご利用ください。
部屋設備












建物設備

TVモニターホン

エレベーター

オートロック

バイク置場

宅配ボックス

敷地内ゴミ置場

管理人

駐車場平置き

駐車場機械式

駐輪場
コンフォリア浅草橋の現在募集中のお部屋
- コンフォリア浅草橋 411 - 間取り: 1LDK - 賃料: 17.9万円
- コンフォリア浅草橋 602 - 間取り: 1LDK - 賃料: 18.1万円
- コンフォリア浅草橋 506 - 間取り: 1LDK - 賃料: 18.1万円
























