
| 賃料 | 予想金額:96,000〜116,000円程度 | 管理費 | 予想金額:6,000〜10,000円程度 |
| 礼金/敷金 | 非公開(アーカイブ) | 平米数 | 25.11㎡ |
| 初期費用概算(参考) | 目安:240,180〜340,180 円 | みなし賃料(月額・参考) | 107,837〜127,837 円 |
| 備考 | 本ページは過去募集のアーカイブです。表示の金額は周辺相場・過去募集を踏まえた参考レンジであり、実際の契約金額・条件ではありません。 | ||
※上記みなし賃料(月額)は仲介手数料割引・無料&キャッシュバックを加味した高級賃貸バイブル限定の金額です。一般的なみなし賃料とは異なります。
【建物ページ】コンフォリア浅草橋の詳細・最新空室はこちら▶▶選ばれる理由
仲介手数料無料・キャンペーン情報(毎月15名様限定)
〇引っ越しお祝い金23320円プレゼント(キャッシュバック)
〇仲介手数料無料キャンペーン
コンフォリア浅草橋 1104の口コミ・レビュー
コンフォリア浅草橋 1104。ここは単なる住まいではなく、まるで優雅な映画の一幕のような生活を提供してくれる場所なのです。地元の人々や旅行者が交わる浅草橋の街並みに囲まれて、あなたはこの静かな隠れ家に一歩足を踏み入れると、南東の窓から差し込む柔らかな朝日が肌を撫でるように感じることでしょう。
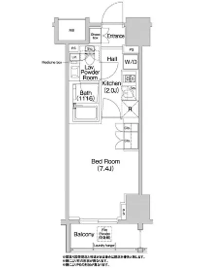
この特別な空間は、25.11㎡の中に、心が満たされる瞬間を数多く詰め込んでいます。洋室7.4帖の広がりは…コンフォリア浅草橋 1104。ここは単なる住まいではなく、まるで優雅な映画の一幕のような生活を提供してくれる場所なのです。地元の人々や旅行者が交わる浅草橋の街並みに囲まれて、あなたはこの静かな隠れ家に一歩足を踏み入れると、南東の窓から差し込む柔らかな朝日が肌を撫でるように感じることでしょう。
この特別な空間は、25.11㎡の中に、心が満たされる瞬間を数多く詰め込んでいます。洋室7.4帖の広がりは、あなたの想像力をかき立てるキャンバス。古き良き江戸情緒と、現代の洗練が交じり合う浅草橋の街で、毎朝、カーテンを開けて新しい一日が始まる瞬間を、臨場感たっぷりに体感できます。窓の外には、時折通り過ぎる人々の笑い声や、商店街のざわめきが心地よいBGMとなり、まるで傍観者から主役へと物語が展開するかのようです。
キッチンは、2帖の空間がその機能を持ちながらも、温かい料理の香りを漂わせる場所。自家製のスープが煮える音や、フライパンでジュウジュウ焼かれる食材の音が、まるで小さなオーケストラのようにリズムを刻むのです。お好きなワインをひと口飲みながら、料理を楽しむ時間は、日常の喧噪を忘れさせてくれる贅沢なひとときです。
そして、コンフォリア浅草橋 1104の魅力は内装だけではありません。デザイナーズの洗練されたエッセンスが、あなたの生活に高級感をもたらします。オートロック完備の安全性は、あなたのプライバシーを守り、心の平穏をもたらすでしょう。エレベーターでの移動も快適で、毎日の生活がスムーズに進むのです。
駐車場も完備されており、バイクや自転車を使って自由に周囲を探索するのも一興です。時には、近隣の歴史ある神社や寺院を訪れて、静寂の中で心を整えるひとときも、その生活には欠かせない彩りとなるでしょう。それは、まさに生活の中で文化を味わう贅沢な旅のようです。
管理人が常駐し、安心して暮らせる安心感も、あなたの生活をさらに彩ります。宅配ボックスのおかげで、大切な荷物が届くたびにワクワクする気持ちを味わえるでしょう。毎日が新しい発見の連続で、そこには生活の喜びと小さな幸せが散りばめられています。
コンフォリア浅草橋 1104は、ただの住まいではありません。そこに暮らすことは、どこか特別な物語の主人公になることなのです。あなた自身のストーリーをこの空間で紡いでみませんか。すべての瞬間が、あなたの人生に色を添えてくれることでしょう。あなたを待っているこの場所で、その特別な日々を始めてください。
この特別な空間は、25.11㎡の中に、心が満たされる瞬間を数多く詰め込んでいます。洋室7.4帖の広がりは…コンフォリア浅草橋 1104。ここは単なる住まいではなく、まるで優雅な映画の一幕のような生活を提供してくれる場所なのです。地元の人々や旅行者が交わる浅草橋の街並みに囲まれて、あなたはこの静かな隠れ家に一歩足を踏み入れると、南東の窓から差し込む柔らかな朝日が肌を撫でるように感じることでしょう。
この特別な空間は、25.11㎡の中に、心が満たされる瞬間を数多く詰め込んでいます。洋室7.4帖の広がりは、あなたの想像力をかき立てるキャンバス。古き良き江戸情緒と、現代の洗練が交じり合う浅草橋の街で、毎朝、カーテンを開けて新しい一日が始まる瞬間を、臨場感たっぷりに体感できます。窓の外には、時折通り過ぎる人々の笑い声や、商店街のざわめきが心地よいBGMとなり、まるで傍観者から主役へと物語が展開するかのようです。
キッチンは、2帖の空間がその機能を持ちながらも、温かい料理の香りを漂わせる場所。自家製のスープが煮える音や、フライパンでジュウジュウ焼かれる食材の音が、まるで小さなオーケストラのようにリズムを刻むのです。お好きなワインをひと口飲みながら、料理を楽しむ時間は、日常の喧噪を忘れさせてくれる贅沢なひとときです。
そして、コンフォリア浅草橋 1104の魅力は内装だけではありません。デザイナーズの洗練されたエッセンスが、あなたの生活に高級感をもたらします。オートロック完備の安全性は、あなたのプライバシーを守り、心の平穏をもたらすでしょう。エレベーターでの移動も快適で、毎日の生活がスムーズに進むのです。
駐車場も完備されており、バイクや自転車を使って自由に周囲を探索するのも一興です。時には、近隣の歴史ある神社や寺院を訪れて、静寂の中で心を整えるひとときも、その生活には欠かせない彩りとなるでしょう。それは、まさに生活の中で文化を味わう贅沢な旅のようです。
管理人が常駐し、安心して暮らせる安心感も、あなたの生活をさらに彩ります。宅配ボックスのおかげで、大切な荷物が届くたびにワクワクする気持ちを味わえるでしょう。毎日が新しい発見の連続で、そこには生活の喜びと小さな幸せが散りばめられています。
コンフォリア浅草橋 1104は、ただの住まいではありません。そこに暮らすことは、どこか特別な物語の主人公になることなのです。あなた自身のストーリーをこの空間で紡いでみませんか。すべての瞬間が、あなたの人生に色を添えてくれることでしょう。あなたを待っているこの場所で、その特別な日々を始めてください。
バイブルスコア
バイブルスコア: 19.2
高級な物件でない場合は割高な物件です。。
※バイブルスコア詳細はこちら
バイブルスコアとは独自のAI機械学習技術を利用した物件評価システムで、物件のおすすめ度を示します。最高得点は100点で、スコアが高いほど、よりおすすめの物件と評価されています。
写真
契約条件
| 賃料 | 予想金額:96,000〜116,000円程度 | 管理費 | 予想金額:6,000〜10,000円程度 |
| 礼金 | 非公開(アーカイブ) | 敷金 | 非公開(アーカイブ) |
| フリーレント | なし | 平米数 | 25.11㎡ |
| 間取り | 1K | 大型収納 | |
| 契約期間 |
| 方角 | 南東 |
| 更新料 | 契約形態 | 普通賃貸借契約 | |
| 取引態様 | 媒介 | 内見状況 | 入居中 |
| 入居時期 | 入居中 | SOHO・事務所 | |
| ペット | ペット可 | 間取り内訳 | 洋:7.4 K:2 |
| キャンペーン情報・備考 | 本情報は賃料改定交渉の資料作成、収益物件の利回り試算、周辺エリアや最寄り駅の坪単価分析、次回募集開始時期の予測などにご活用いただけます。 | ||
※「どの不動産に頼めばいいのか分からない」「信頼できる営業マンの話を聞きたい」「一番親切な会社と契約したい」とお悩みの方におすすめなのが「高級賃貸バイブル」です。
高級賃貸バイブルは業界10年以上の熟練スタッフ群がお客様ファーストで対応します。
下記ボタンから、まずは無料でご相談下さい。
※内覧をご希望の際には、どうぞ物件のエントランス前にてお待ち合わせくださいませ。ご内覧後は、同じ場所でお別れとさせていただきます。お客様のご都合に合わせたスムーズなご案内を心がけておりますので、ご質問等がございましたら何なりとお申し付けください。 物件概要
| 物件名 |
| 築年月 |
|
|---|---|---|---|
| 所在地 | |||
| 交通 | |||
| 総戸数 |
| 総階数 |
|
| 構造 |
| ||
地図
物件までの道のりは、「拡大地図を表示」をクリックしてナビ機能をご利用ください。
部屋設備












建物設備

TVモニターホン

エレベーター

オートロック

バイク置場

宅配ボックス

敷地内ゴミ置場

管理人

駐車場平置き

駐車場機械式

駐輪場
コンフォリア浅草橋の現在募集中のお部屋
- コンフォリア浅草橋 411 - 間取り: 1LDK - 賃料: 17.9万円
- コンフォリア浅草橋 602 - 間取り: 1LDK - 賃料: 18.1万円
- コンフォリア浅草橋 506 - 間取り: 1LDK - 賃料: 18.1万円
























